Obj. Nr.: 42468
            
 
                            1230 Wien Adresse anfragen
Wittgenstein 23 – Villenflair zwischen Hietzing und Mauer
Die Wittgensteinstraße zählt zu den klassischen Wiener Villenstraßen und verbindet Rosenhügelstraße mit Speisingerstraße. Hier treffen Hietzings Flair und das Grün von Mauer aufeinander. Die Umgebung besticht durch großzügige Gärten, alte Bäume und detailreiche Villen. Wiesen des Lainzer Tiergartens, Wienerwald-Spaziergänge und Traditionsheurige wie Wiltschko oder Steinklammer liegen in unmittelbarer Nähe. Ein idealer Ort für Familien, die Wohnqualität und Ästhetik schätzen.
Das Projekt
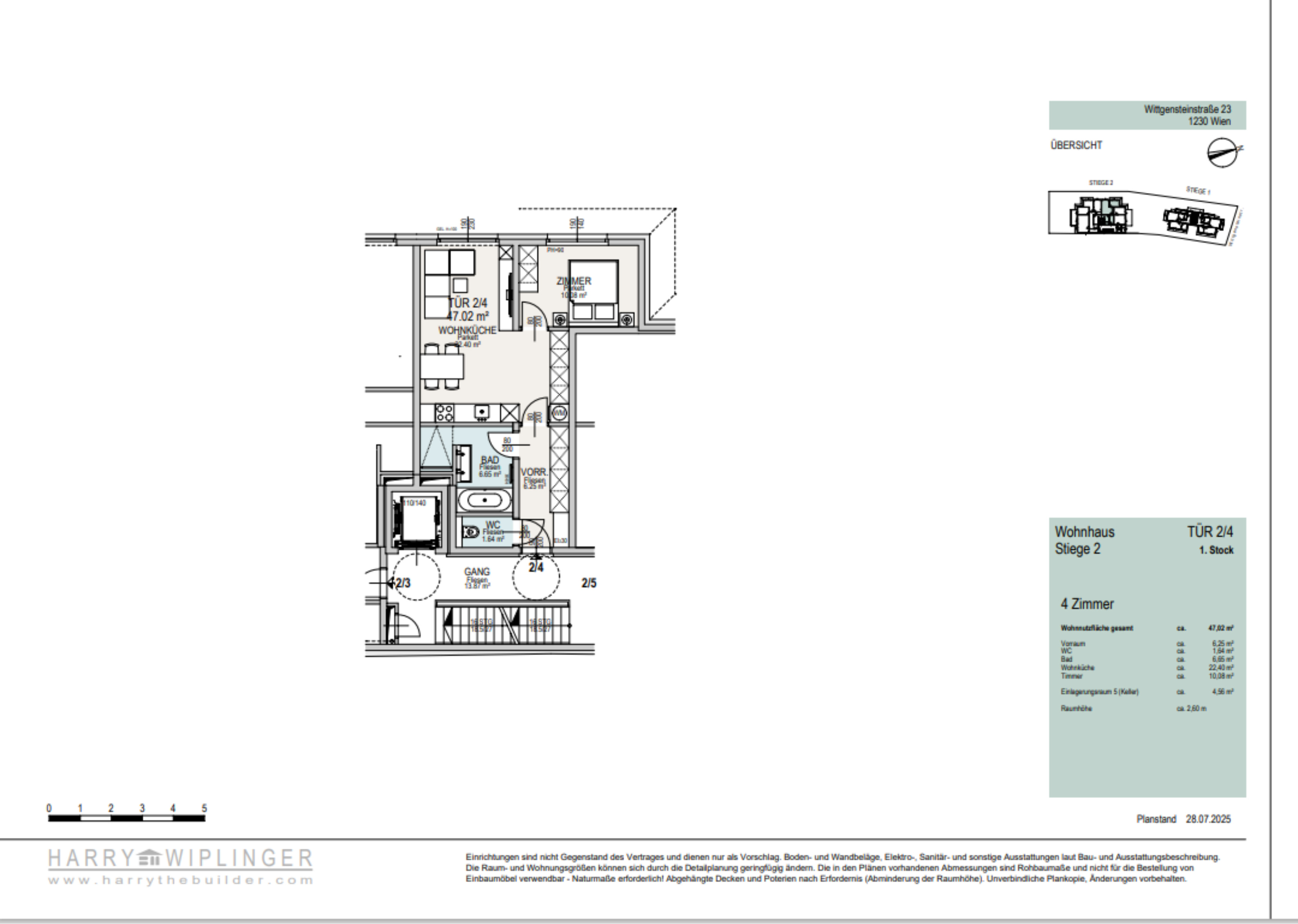
Wittgenstein 23 umfasst sieben Eigentumswohnungen und ein Doppelhaus mit Wohnflächen von 38 bis 156 m² und großzügigen Freiflächen. Die Architektur verbindet traditionelle Villenformen mit modernen Elementen und schafft ein gemeinschaftliches Wohngefühl. Lichtdurchflutete Räume, natürliche Materialien und klare Linien fügen sich harmonisch in das gewachsene Umfeld ein.
Wittgenstein 23 vereint Lebensqualität, Nachhaltigkeit und niedrige Betriebskosten – ein Zuhause, das sich selbstverständlich in seine Umgebung einfügt.
Die Lage
Die Wittgensteinstraße zieht sich sanft den Hang hinauf – oben eröffnet sich ein Ausblick über ein Stück Wien, das Stadt und Landschaft vereint. Dieses „Dorf in der Stadt“ ermöglicht Urbanität und Natur gleichermaßen: Vormittags im Zentrum arbeiten, am Nachmittag im Wald oder auf dem Rad entspannen, abends ein Glas Wein beim Heurigen genießen.
Nur wenige Schritte trennen die Bewohner von den Spazierwegen des Lainzer Tiergartens, den Mauerer Weinbergen und den traditionellen Heurigen. Hier wird Work-Life-Balance greifbar – Natur, Erholung und Familienzeit liegen direkt vor der Haustür.
Die renommierte Privatschule St. Ursula liegt direkt im Viertel. Nahversorgung, Gesundheitszentren und Freizeitmöglichkeiten sind fußläufig erreichbar. Eine schnelle Anbindung ins Zentrum ist über S-Bahn, Bus und Straßenbahn gewährleistet.
Wittgenstein 23 verbindet Rückzugsort und Lebensmittelpunkt: ein Zuhause, in dem man ankommt, bleibt und wächst – Ausgangspunkt für ein urbanes Lebensgefühl zwischen Natur, Kultur und Stadt.
Provisionsfrei für den Käufer!
Fertigstellung: voraussichtlich 1. Quartal 2028
Wir weisen darauf hin, dass zwischen dem Vermittler und dem zu vermittelnden Dritten ein familiäres oder wirtschaftliches Naheverhältnis besteht.
Der Vermittler ist als Doppelmakler tätig.
Infrastruktur / Entfernungen
    Gesundheit
    
    Arzt <500m
    
    Apotheke <1.000m
    
    Klinik <1.500m
    
    Krankenhaus <1.000m
    
    
    Kinder & Schulen
    
    Schule <500m
    
    Kindergarten <500m
    
    Universität <3.500m
    
    Höhere Schule <5.500m
    
    
    Nahversorgung
    
    Supermarkt <1.000m
    
    Bäckerei <1.000m
    
    Einkaufszentrum <2.500m
    
    
    Sonstige
    
    Geldautomat <500m
    
    Bank <1.000m
    
    Post <1.000m
    
    Polizei <2.500m
    
    
    Verkehr
    
    Bus <500m
    
    Straßenbahn <500m
    
    U-Bahn <4.000m
    
    Bahnhof <2.000m
    
    Autobahnanschluss <4.000m
    
    
    Angaben Entfernung Luftlinie / Quelle: OpenStreetMap
*Der Vertrag kommt nicht mit der INFINA Credit Broker GmbH zustande. Das Objekt wird von einem externen Immobilienunternehmen angeboten. Allfällige aus dem Vertragsabschluss resultierende Rechte sind ausschließlich gegenüber dem anbietenden Immobilienunternehmen geltend zu machen. Wir weisen Sie darauf hin, dass die gemachten Angaben und Informationen lediglich unverbindliche Vorabinformationen sind und daher ohne Gewähr erfolgen.
Der Kauf einer Immobilie ist eine wichtige Entscheidung – sei es für die Eigennutzung oder zur Vermietung. Mit unserem Portal unterstützen wir Sie dabei, die richtige Immobilie zu kaufen. Nutzen Sie unsere Suchmöglichkeiten, um gezielt eine Immobilie zu suchen, die Ihren Vorstellungen entspricht. Unsere Immobilienangebote decken eine breite Palette ab: vom Einfamilienhaus über die Eigentumswohnung bis hin zum Grundstück für Ihr Bauvorhaben. Mit uns können Sie sicher und unkompliziert Eigentum erwerben – ob für die private Nutzung oder als Investition als Immobilie. Erkunden Sie jetzt unsere Angebote und finden Sie die perfekte Lösung, die zu Ihren Wohn- oder Anlagezielen passt.
Bereiten Sie sich bestens vor: Infina stellt Ihnen kostenlos über 300 Ratgeber und Beiträge zu den Themen Immobilie, Finanzierung, Zinsen und Recht zur Verfügung. Nutzen Sie unser umfassendes Wissen, um richtige Entscheidungen zu treffen.
Bei jedem Kauf einer Immobilie oder eines Grundstücks ist es wichtig, die passende Finanzierung zu finden. Mit seiner eigenen Vertriebsorganisation ist Infina als Wohnbau-Finanz-Experte an über 100 Standorten in ganz Österreich vertreten und vermittelt Finanzierungen an über 120 Banken und Bausparkassen. Nutzen Sie unseren kostenlosen Kreditvergleich für den passenden Wohnkredit:
Die Entscheidung, eine Immobilie zu mieten, bietet Flexibilität und zahlreiche Möglichkeiten – ob eine Wohnung für den Alltag oder ein Haus für die Familie. Bei Infina können Sie gezielt sowohl eine Wohnung suchen als auch ein Haus suchen, das Ihren Bedürfnissen entspricht. Unsere Angebote erleichtern es Ihnen, eine Mietwohnung zu suchen und Ihre ideale Wohnung finden zu können. Entdecken Sie vielfältige Optionen, um die passende Immobilie zu finden und Ihre Wohnträume zu verwirklichen. Starten Sie noch heute Ihre Suche und profitieren Sie von einer großen Auswahl an Mietobjekten in Ihrer Wunschregion.
Starten Sie gut vorbereitet in Ihre Mietentscheidung: Infina stellt Ihnen vielseitige Ratgeber und Beiträge zu Themen wie Immobilie, Mietrecht, Finanzierung und Wohntrends zur Verfügung. Verschaffen Sie sich einen Überblick über alle relevanten Aspekte und gestalten Sie Ihren Weg ins neue Zuhause einfacher und sicherer.
Mit Infina haben Sie einen verlässlichen Partner an Ihrer Seite, der Sie von der ersten Beratung bis zum erfolgreichen Abschluss ganzheitlich unterstützt. Erfahren Sie hier, wie wir gemeinsam Ihren Immobilienerfolg gestalten.
Nach zahlreichen Informationen rund um die Themen Immobilie kaufen und Immobilie mieten können Sie nun den nächsten Schritt machen. Starten Sie die Immobiliensuche, um Ihr neues Zuhause oder Ihre nächste Investition zu finden und entdecken Sie die passenden Angebote:
Als Kunde von Infina profitieren Sie von unserer umfangreichen und unabhängigen Expertise als Teil einer wachsenden, unabhängigen Immobilien- und Finanzierungsnetzwerkgruppe. Bereits 50.000 Kunden hat Infina erfolgreich bei Ihrem Vorhaben begleitet. Infina bietet Ihnen eine umfassende Beratung in allen Bereichen rund um Ihre Immobilienvorhaben:
Mit Infina erhalten Sie nicht nur eine unabhängige Beratung, sondern auch die passende Finanzierungslösung für Ihre Immobilie. Aus den Angeboten von über 120 Banken und Bausparkassen vermitteln wir Ihnen das, was perfekt zu Ihren Bedürfnissen passt. Wir begleiten Sie professionell und verlässlich – von der ersten Beratung bis zum erfolgreichen Abschluss.