INFINA LOGO
Entspannt zur Immobilie Persönlich & kompetent beraten Finanzierbarkeit sofort überprüfbar
499.000 €
Kostenlos &
unverbindlich.
Kontakt aufnehmen

Fitness, Wellness & Work-Life-Balance

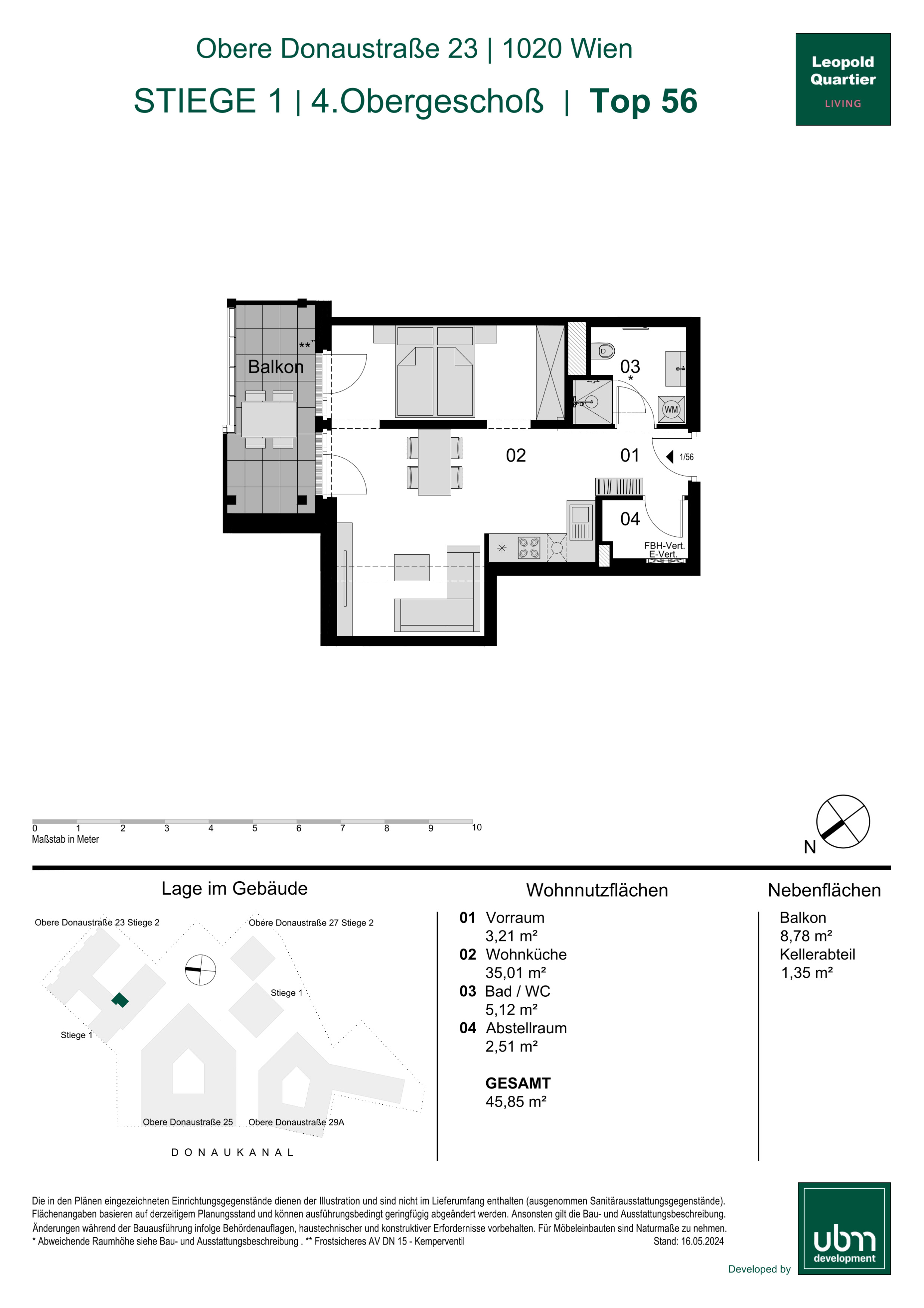
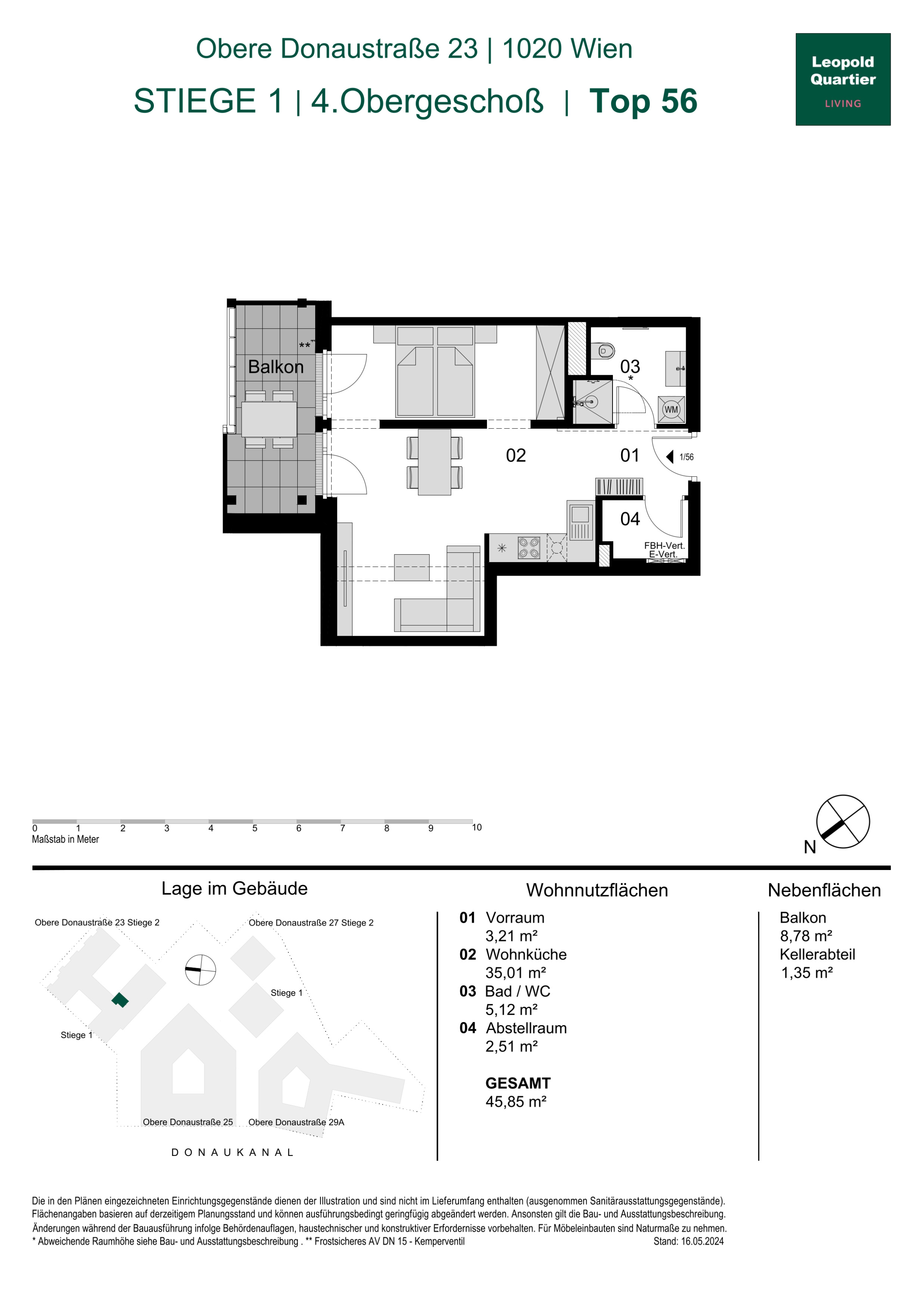
Obj. Nr.: 38546

ca. 45,85 m² Wohnfläche 1,5 Zimmer
Partner von Infina EHL Wohnen Immobilienmakler 
Partner von Infina EHL Wohnen Immobilienmakler
499.000 € Kaufpreis der Immobilie Kreditvergleich von über 120 Banken mit Infina.
Immobilie finanzieren
Mehr Informationen zur Immobilie: Detaillierte Einblicke in dieses Objekt.
Zurück zur Übersicht

Objektstandort

1020 Wien, Obere Donaustraße

Directions Icon Fahrtzeit berechnen
Preisinformationen
Kaufpreis 499.000 €
Grundbucheintragung: 1.1 %
Grunderwerbsteuer: 3.5 %
Was kann ich mir leisten?
Jetzt berechnen

Objektinformationen

Objektart: Wohnung
Nutzungsart: Wohnen
Bauart: Neubau
Zustand: Erstbezug
Baujahr: 2026
barrierefrei: Ja

Rauminformationen & Flächen

Wohnfläche: ca. 45,85 m²
Balkonfläche: ca. 8,78 m²
Anzahl Balkone: 1
Anzahl Zimmer: 2
Anzahl WC: 1
Anzahl Bäder: 1

Ausstattung

Boden: Fliesen, Parkett
Befeuerung: Erdwärme
Heizungsart: Fußbodenheizung
Küche: Wohnküche / offene Küche
Fahrstuhl: Personenaufzug
Balkon: Nordostbalkon / -terrasse, Südbalkon / -terrasse
Bad: Dusche
Stellplatzart: Tiefgarage
Extras: Wasch- / Trockenraum, Abstellraum, Fahrradraum
Belüftung: Klimaanlage

Beschreibung *

Eingebettet zwischen dem Donaukanal, dem grünen Augarten und dem pulsierenden 1. Wiener Gemeindebezirk vereint das LeopoldQuartier Natur, Urbanität und höchste Lebensqualität. Stephansdom, Kärntner Straße und die kulinarischen Hotspots des Servitenviertels sind fußläufig erreichbar.
Die Anbindung ist hervorragend: In wenigen Minuten erreicht man die U4-Station Roßauer Lände, die wichtigsten Verkehrsknotenpunkte der Stadt sowie in nur 20 Autominuten den Flughafen Wien.
 

Architektur & Nachhaltigkeit

Das LeopoldQuartier ist Europas erstes Stadtquartier in Holz-Hybrid-Bauweise – ein Meilenstein für ökologisches Bauen.

  • Holz-Hybrid-Konstruktion: bis zu 80 % weniger CO²-Ausstoß gegenüber Massivbau, schnellere und leisere Errichtung, rund 4.000 t gebundenes CO².
  • Geothermie: 200 Erdsonden liefern jährlich ca. 4.800 MWh Heiz- und Kühlenergie.
  • Photovoltaik: über 1.000 Paneele mit 425 kWp sorgen für eine zusätzliche Energieversorgung.

Die natürliche Materialität schafft ein gesundes Raumklima, kombiniert mit moderner Technik für maximalen Komfort.

Das Projekt

  • 253 Wohnungen, 178 davon in der Oberen Donaustraße 23
  • Wohnflächen zwischen rd. 35 m² und rd. 108 m²
  • Wohnungsgrößen von smarten 1,5-Zimmer-Einheiten bis zu familiengerechten 4-Zimmer-Wohnungen
  • Raumhöhen von 2,60 m
  • Außenflächen: jede Wohnung mit Balkon, Loggia, Terrasse oder Eigengarten

Ausstattung

  • Parkett- und Feinsteinzeugböden
  • Holzoberflächen & Brettsperrholzdecken
  • Fußbodenheizung & -temperierung
  • Außenliegender Sonnenschutz (Raffstores, im EG Rollläden)
  • Moderne Lüftungssysteme mit Fensterspaltlüftern

Services & Infrastruktur

  • Gastronomie & Nahversorgung: Café, Restaurants und ein Supermarkt direkt im Quartier
  • Mobilität: autofreie Zone mit Mobility Point (Car- & Bikesharing), E-Ladestationen, Fahrradstellplätze, 97 Pkw-Stellplätze
  • Wellness & Fitness: eigenes Fitness-Studio, Sauna, Co-Working-Space
  • Gästeparkplätze: komfortabel in der Tiefgarage

Highlights auf einen Blick

  • Europas erstes Stadtquartier in Holzbauweise
  • CO²-neutrale Energieversorgung durch Geothermie & Photovoltaik
  • 253 Wohnungen von 34 – 108 m²
  • Jede Einheit mit Außenfläche
  • Autofreie Zone mit Sharing-Angeboten & E-Mobilität
  • Perfekte Innenstadtlage mit Natur, Kultur und Kulinarik direkt vor der Haustür
     

Beim Kauf einer 3- oder 4-Zimmerwohnung kann ein Kfz-Stellplatz in der hauseigenen Tiefgarage um € 44.000,- erworben werden.

Provisionsfrei für den Käufer!
Fertigstellung voraussichtlich Q2/2026

Wir weisen darauf hin, dass zwischen dem Vermittler und dem zu vermittelnden Dritten ein familiäres oder wirtschaftliches Naheverhältnis besteht.

Der Vermittler ist als Doppelmakler tätig.


Infrastruktur / Entfernungen

Gesundheit
Arzt <500m
Apotheke <500m
Klinik <500m
Krankenhaus <1.250m

Kinder & Schulen
Schule <500m
Kindergarten <250m
Universität <500m
Höhere Schule <500m

Nahversorgung
Supermarkt <250m
Bäckerei <500m
Einkaufszentrum <2.000m

Sonstige
Geldautomat <250m
Bank <750m
Post <750m
Polizei <750m

Verkehr
Bus <250m
U-Bahn <250m
Straßenbahn <500m
Bahnhof <250m
Autobahnanschluss <2.000m

Angaben Entfernung Luftlinie / Quelle: OpenStreetMap


*Der Vertrag kommt nicht mit der INFINA Credit Broker GmbH zustande. Das Objekt wird von einem externen Immobilienunternehmen angeboten. Allfällige aus dem Vertragsabschluss resultierende Rechte sind ausschließlich gegenüber dem anbietenden Immobilienunternehmen geltend zu machen. Wir weisen Sie darauf hin, dass die gemachten Angaben und Informationen lediglich unverbindliche Vorabinformationen sind und daher ohne Gewähr erfolgen. Der Vermittler ist als Doppelmakler tätig.

Energieausweis & Heizung
HWB (kWh/m2/Jahr): 23
HWB Energieklasse A
fGEE: 0.81
fGEE Energieklasse A
Gültig bis: 14.12.2032
Heizung: Fußbodenheizung
Befeuerung: Erdwärme
Dokumente & Videos Pläne Exposé Preisliste Planmappe
Partner von Infina EHL Wohnen Immobilienmakler
Kinder & Schulen:
Schule: 250 m
Universität: 410 m
Kindergarten: 400 m
Höhere Schule: 610 m
Sonstige:
Polizei: 320 m
Bank: 230 m
Geldautomat: 220 m
Post: 320 m
Verkehr:
Autobahnanschluss: 2470 m
Straßenbahn: 190 m
U-Bahn: 90 m
Bus: 120 m
Bahnhof: 100 m
Nahversorgung:
Bäckerei: 170 m
Supermarkt: 280 m
Einkaufszentrum: 1580 m
Gesundheit:
Apotheke: 290 m
Klinik: 190 m
Arzt: 90 m
Krankenhaus: 760 m

Jetzt Experten kontaktieren

Weitere interessante Objekte

Partner von Infina
Jetzt anfragen
ca. 45,00 m² Wohnfläche 2 Zimmer
250.000 €
Partner von Infina
Jetzt anfragen
397.000 €

Immobilie kaufen: Das passende Angebot finden

Der Kauf einer Immobilie ist eine wichtige Entscheidung – sei es für die Eigennutzung oder zur Vermietung. Mit unserem Portal unterstützen wir Sie dabei, die richtige Immobilie zu kaufen. Nutzen Sie unsere Suchmöglichkeiten, um gezielt eine Immobilie zu suchen, die Ihren Vorstellungen entspricht. Unsere Immobilienangebote decken eine breite Palette ab: vom Einfamilienhaus über die Eigentumswohnung bis hin zum Grundstück für Ihr Bauvorhaben. Mit uns können Sie sicher und unkompliziert Eigentum erwerben – ob für die private Nutzung oder als Investition als Immobilie. Erkunden Sie jetzt unsere Angebote und finden Sie die perfekte Lösung, die zu Ihren Wohn- oder Anlagezielen passt.

Fundiertes Wissen für Ihre Entscheidung, eine Immobilie zu kaufen

Bereiten Sie sich bestens vor: Infina stellt Ihnen kostenlos über 300 Ratgeber und Beiträge zu den Themen Immobilie, Finanzierung, Zinsen und Recht zur Verfügung. Nutzen Sie unser umfassendes Wissen, um richtige Entscheidungen zu treffen.

Bei jedem Kauf einer Immobilie oder eines Grundstücks ist es wichtig, die passende Finanzierung zu finden. Mit seiner eigenen Vertriebsorganisation ist Infina als Wohnbau-Finanz-Experte an über 100 Standorten in ganz Österreich vertreten und vermittelt Finanzierungen an über 120 Banken und Bausparkassen. Nutzen Sie unseren kostenlosen Kreditvergleich für den passenden Wohnkredit: 

Kreditvergleich

Kostenlos und unverbindlich

Immobilie mieten: Ihr neues Zuhause wartet

Die Entscheidung, eine Immobilie zu mieten, bietet Flexibilität und zahlreiche Möglichkeiten – ob eine Wohnung für den Alltag oder ein Haus für die Familie. Bei Infina können Sie gezielt sowohl eine Wohnung suchen als auch ein Haus suchen, das Ihren Bedürfnissen entspricht. Unsere Angebote erleichtern es Ihnen, eine Mietwohnung zu suchen und Ihre ideale Wohnung finden zu können. Entdecken Sie vielfältige Optionen, um die passende Immobilie zu finden und Ihre Wohnträume zu verwirklichen. Starten Sie noch heute Ihre Suche und profitieren Sie von einer großen Auswahl an Mietobjekten in Ihrer Wunschregion.

Hilfreiche Informationen zu Immobilie mieten

Starten Sie gut vorbereitet in Ihre Mietentscheidung: Infina stellt Ihnen vielseitige Ratgeber und Beiträge zu Themen wie Immobilie, Mietrecht, Finanzierung und Wohntrends zur Verfügung. Verschaffen Sie sich einen Überblick über alle relevanten Aspekte und gestalten Sie Ihren Weg ins neue Zuhause einfacher und sicherer.

Erfolgreich zur neuen Immobilie

Mit Infina haben Sie einen verlässlichen Partner an Ihrer Seite, der Sie von der ersten Beratung bis zum erfolgreichen Abschluss ganzheitlich unterstützt. Erfahren Sie hier, wie wir gemeinsam Ihren Immobilienerfolg gestalten.

Starten Sie jetzt Ihre Immobiliensuche

Nach zahlreichen Informationen rund um die Themen Immobilie kaufen und Immobilie mieten können Sie nun den nächsten Schritt machen. Starten Sie die Immobiliensuche, um Ihr neues Zuhause oder Ihre nächste Investition zu finden und entdecken Sie die passenden Angebote:

Das innovative Portal für Immobilien und Finanzierung 

Als Kunde von Infina profitieren Sie von unserer umfangreichen und unabhängigen Expertise als Teil einer wachsenden, unabhängigen Immobilien- und Finanzierungsnetzwerkgruppe. Bereits 50.000 Kunden hat Infina erfolgreich bei Ihrem Vorhaben begleitet. Infina bietet Ihnen eine umfassende Beratung in allen Bereichen rund um Ihre Immobilienvorhaben:

Die passende Finanzierung für Ihre Immobilie

Mit Infina erhalten Sie nicht nur eine unabhängige Beratung, sondern auch die passende Finanzierungslösung für Ihre Immobilie. Aus den Angeboten von über 120 Banken und Bausparkassen vermitteln wir Ihnen das, was perfekt zu Ihren Bedürfnissen passt. Wir begleiten Sie professionell und verlässlich – von der ersten Beratung bis zum erfolgreichen Abschluss.

Kreditvergleich

Kostenlos und unverbindlich

Wir holen das Beste für Sie heraus

Verkaufen Sie Ihre Immobilie mit uns & profitieren Sie von unserer Expertise. Wir bringen Ihre Immobilie optimal auf den Markt & erzielen den besten Preis. 

Kontaktieren Sie uns jetzt.

Jetzt Experten kontaktieren
Junge Frau im pinken Blazer hält ein Modellhaus in der linken Hand und zeigt mit der rechten Hand nach oben, als hätte sie eine Idee. Sie lächelt und blickt leicht nach oben – symbolisch für Inspiration oder Immobilienberatung.