INFINA LOGO
Entspannt zur Immobilie Persönlich & kompetent beraten Finanzierbarkeit sofort überprüfbar
328.440 €
Kostenlos &
unverbindlich.
Kontakt aufnehmen

STADTVILLEN Wilhelminenberg: Wien's Grünoase am Fuße des Wilhelminenbergs

Obj. Nr.: 3795

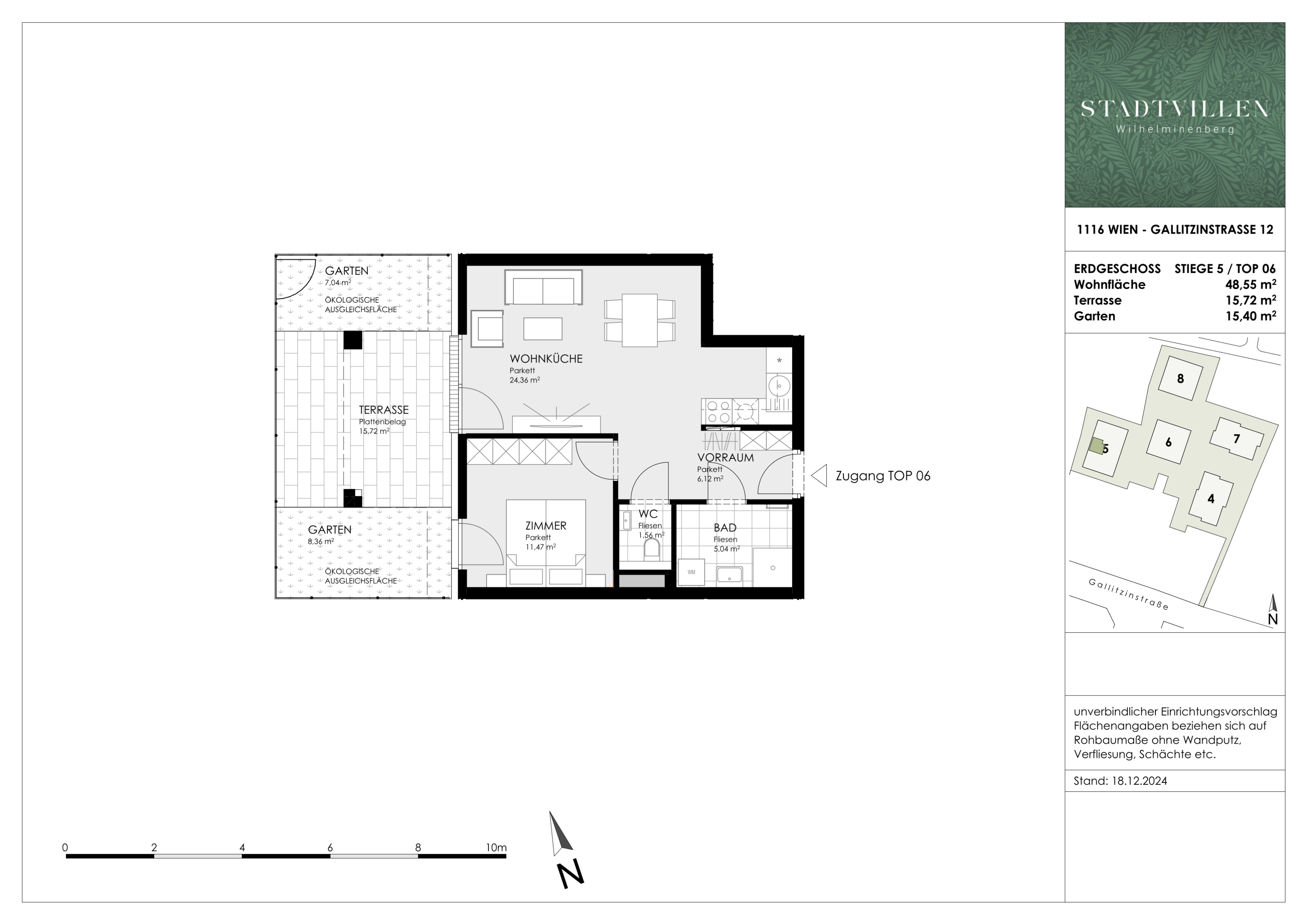
ca. 48,55 m² Wohnfläche 2 Zimmer
Partner von Infina EHL Wohnen Immobilienmakler 
Partner von Infina EHL Wohnen Immobilienmakler
328.440 € Kaufpreis der Immobilie Kreditvergleich von über 120 Banken mit Infina.
Immobilie finanzieren
Mehr Informationen zur Immobilie: Detaillierte Einblicke in dieses Objekt.
Zurück zur Übersicht

Objektstandort

1160 Wien, Erdbrustgasse 6

Directions Icon Fahrtzeit berechnen
Preisinformationen
Kaufpreis 328.440 €
Grundbucheintragung: 1.1 %
Grunderwerbsteuer: 3.5 %
Was kann ich mir leisten?
Jetzt berechnen
Maklerprovision:
Provisionsfrei für den Käufer!

Objektinformationen

Objektart: Wohnung
Nutzungsart: Anlage
Bauart: Neubau
Zustand: Erstbezug
Baujahr: 2026

Rauminformationen & Flächen

Wohnfläche: ca. 48,55 m²
Gartenfläche: ca. 15,40 m²
Terrassenfläche: ca. 15,72 m²
Anzahl Terrassen: 1
Anzahl Zimmer: 2
Anzahl WC: 1
Anzahl Bäder: 1

Ausstattung

Boden: Fliesen, Parkett
Befeuerung: Luftwärmepumpe
Heizungsart: Fußbodenheizung
Balkon: Westbalkon / -terrasse
Bad: Dusche
Extras: Fahrradraum

Beschreibung *

Die STADTVILLEN Wilhelminenberg!

Willkommen zu einer einzigartigen Investitionsmöglichkeit in Wien!

Die STADTVILLEN Wilhelminenberg bieten nicht nur exklusive Wohnungen, sondern auch eine äußerst seltene Gelegenheit für Anleger, die nach einer zukunftsorientierten und wertstabilen Investition suchen.

Diese Lage am Fuße des Wilhelminenbergs ist nicht nur selten, sondern auch äußerst begehrt. Die Kombination aus urbaner Infrastruktur und grüner Umgebung ist in Wien kaum zu finden und macht das Wilhelminen Cottage zu einem begehrten Juwel für Investoren.

Fünf Stadtvillen beherbergen 126 Wohnungen und 100 Garagenstellplätze von parkartigem Grünraum umgeben in bester Cottagelage.

Das Projekt

Mit einer nachhaltigen Energieversorgung durch Geothermie und Photovoltaik bietet dieses Projekt nicht nur ökonomische, sondern auch ökologische Vorteile. In Zeiten steigender Energiekosten und wachsendem Umweltbewusstsein ist eine solche Investition äußerst attraktiv und zukunftsweisend, findet insbesondere einen großen Zuspruch seitens der zukünftigen Mieter, was folglich die Rendite maximiert.

Darüber hinaus sind die Stadtvillen Wilhelminenberg nicht nur eine Wohnanlage, sondern auch ein Renditeobjekt. Die steigende Nachfrage nach hochwertigem Wohnraum in Wien macht diese Investition besonders vielversprechend. Die langfristige Wertsteigerung dieser Lage ist nahezu garantiert, da immer mehr Menschen die Vorzüge einer grünen und dennoch zentralen Wohnlage zu schätzen wissen.

Investieren Sie jetzt in die Zukunft Wiens und sichern Sie sich Ihren Anteil an diesem einzigartigen Projekt. Die STADTVILLEN Wilhelminenberg, die ideale Wahl für Investoren, die nach einer sicheren und rentablen Anlagemöglichkeit suchen.

  • 126 freifinanzierte Vorsorgewohnungen
  • 100 Tiefgaragenplätze mit e-Ladestationen
  • 2 – 5 Zimmerwohnungen
  • Wohnungsgrößen zwischen 37 und 165 m²
  • Kellerabteile mit Lademöglichkeit für e-Bikes
  • Autofreie Kinder-Spielbereich und Begegnunszonen
  • Kinderwagen- und Fahrradabstellraum

Die Ausstattung

  • Heizungs- und Warmwasserbereitstellung durch Wärmepumpen (Sole Wärmepumpe und Luft-Wärmepumpe)
  • Fußbodenheizung im EG
  • Bauteilaktivierung ab dem 1.OG
  • Kunststoff-Alu-Elemente, mit 3-Scheiben Isolierverglasung
  • Außenliegende, elektrisch bedienbare Außenjalousien bzw. Raffstores
  • Parkett Eiche Schiffboden
  • Verfliesung mit großformatigem Feinsteinzeug

Kaufpreise der Vorsorgewohnungen

von EUR 267.800,00 bis EUR 1.610.000,00 netto zzgl. 20% USt.

Zu erwartender Mietertrag

von ca. EUR 16,50 bis EUR 20,50 netto/m²

Provisionsfrei für den Käufer!
Fertigstellung: voraussichtlich Winter 2026

Bei diesem Angebot handelt es sich um eine Vorsorgewohnung, die zu Vermietungszwecken erworben wird. Der angegebene Kaufpreis versteht sich daher zzgl. 20% USt. Diese Daten sind vorbehaltlich möglicher Änderungen.

Wir weisen darauf hin, dass zwischen dem Vermittler und dem zu vermittelnden Dritten ein familiäres oder wirtschaftliches Naheverhältnis besteht.

Der Vermittler ist als Doppelmakler tätig.


Infrastruktur / Entfernungen

Gesundheit
Arzt <500m
Apotheke <750m
Klinik <750m
Krankenhaus <750m

Kinder & Schulen
Schule <750m
Kindergarten <500m
Universität <1.500m
Höhere Schule <1.750m

Nahversorgung
Supermarkt <500m
Bäckerei <500m
Einkaufszentrum <750m

Sonstige
Geldautomat <750m
Bank <750m
Post <750m
Polizei <500m

Verkehr
Bus <250m
U-Bahn <1.000m
Straßenbahn <500m
Bahnhof <1.000m
Autobahnanschluss <5.500m

Angaben Entfernung Luftlinie / Quelle: OpenStreetMap


*Der Vertrag kommt nicht mit der INFINA Credit Broker GmbH zustande. Das Objekt wird von einem externen Immobilienunternehmen angeboten. Allfällige aus dem Vertragsabschluss resultierende Rechte sind ausschließlich gegenüber dem anbietenden Immobilienunternehmen geltend zu machen. Wir weisen Sie darauf hin, dass die gemachten Angaben und Informationen lediglich unverbindliche Vorabinformationen sind und daher ohne Gewähr erfolgen. Der Vermittler ist als Doppelmakler tätig.

Energieausweis & Heizung
HWB (kWh/m2/Jahr): 22.5
HWB Energieklasse B
fGEE: 0.68
fGEE Energieklasse B
Gültig bis: 10.12.2033
Heizung: Fußbodenheizung
Befeuerung: Luftwärmepumpe
Dokumente & Videos Pläne Exposé Preisliste Planmappe Lagereport Bau- und Ausstattungsbeschreibung
Partner von Infina EHL Wohnen Immobilienmakler
Kinder & Schulen:
Höhere Schule: 1600 m
Schule: 500 m
Universität: 1290 m
Kindergarten: 290 m
Nahversorgung:
Supermarkt: 480 m
Bäckerei: 500 m
Einkaufszentrum: 660 m
Verkehr:
Autobahnanschluss: 5340 m
U-Bahn: 980 m
Bus: 150 m
Straßenbahn: 430 m
Bahnhof: 910 m
Sonstige:
Post: 660 m
Polizei: 500 m
Bank: 630 m
Geldautomat: 660 m
Gesundheit:
Apotheke: 690 m
Klinik: 750 m
Arzt: 470 m
Krankenhaus: 550 m

Jetzt Experten kontaktieren

Weitere interessante Objekte

Partner von Infina
Jetzt anfragen
ca. 68,50 m² Wohnfläche 3 Zimmer
981 €
Partner von Infina
Jetzt anfragen
ca. 50,11 m² Wohnfläche 2 Zimmer
5.592 €/m²
290.000 €
Partner von Infina
Jetzt anfragen
899 €
Partner von Infina
Jetzt anfragen
899 €
Partner von Infina
Jetzt anfragen
6.009 €/m²
321.100 €
Partner von Infina
Jetzt anfragen
ca. 38,46 m² Wohnfläche 2 Zimmer
340.000 €
Partner von Infina
Jetzt anfragen
ca. 62,08 m² Wohnfläche 2 Zimmer
599.000 €

Immobilie kaufen: Das passende Angebot finden

Der Kauf einer Immobilie ist eine wichtige Entscheidung – sei es für die Eigennutzung oder zur Vermietung. Mit unserem Portal unterstützen wir Sie dabei, die richtige Immobilie zu kaufen. Nutzen Sie unsere Suchmöglichkeiten, um gezielt eine Immobilie zu suchen, die Ihren Vorstellungen entspricht. Unsere Immobilienangebote decken eine breite Palette ab: vom Einfamilienhaus über die Eigentumswohnung bis hin zum Grundstück für Ihr Bauvorhaben. Mit uns können Sie sicher und unkompliziert Eigentum erwerben – ob für die private Nutzung oder als Investition als Immobilie. Erkunden Sie jetzt unsere Angebote und finden Sie die perfekte Lösung, die zu Ihren Wohn- oder Anlagezielen passt.

Fundiertes Wissen für Ihre Entscheidung, eine Immobilie zu kaufen

Bereiten Sie sich bestens vor: Infina stellt Ihnen kostenlos über 300 Ratgeber und Beiträge zu den Themen Immobilie, Finanzierung, Zinsen und Recht zur Verfügung. Nutzen Sie unser umfassendes Wissen, um richtige Entscheidungen zu treffen.

Bei jedem Kauf einer Immobilie oder eines Grundstücks ist es wichtig, die passende Finanzierung zu finden. Mit seiner eigenen Vertriebsorganisation ist Infina als Wohnbau-Finanz-Experte an über 100 Standorten in ganz Österreich vertreten und vermittelt Finanzierungen an über 120 Banken und Bausparkassen. Nutzen Sie unseren kostenlosen Kreditvergleich für den passenden Wohnkredit: 

Kreditvergleich

Kostenlos und unverbindlich

Immobilie mieten: Ihr neues Zuhause wartet

Die Entscheidung, eine Immobilie zu mieten, bietet Flexibilität und zahlreiche Möglichkeiten – ob eine Wohnung für den Alltag oder ein Haus für die Familie. Bei Infina können Sie gezielt sowohl eine Wohnung suchen als auch ein Haus suchen, das Ihren Bedürfnissen entspricht. Unsere Angebote erleichtern es Ihnen, eine Mietwohnung zu suchen und Ihre ideale Wohnung finden zu können. Entdecken Sie vielfältige Optionen, um die passende Immobilie zu finden und Ihre Wohnträume zu verwirklichen. Starten Sie noch heute Ihre Suche und profitieren Sie von einer großen Auswahl an Mietobjekten in Ihrer Wunschregion.

Hilfreiche Informationen zu Immobilie mieten

Starten Sie gut vorbereitet in Ihre Mietentscheidung: Infina stellt Ihnen vielseitige Ratgeber und Beiträge zu Themen wie Immobilie, Mietrecht, Finanzierung und Wohntrends zur Verfügung. Verschaffen Sie sich einen Überblick über alle relevanten Aspekte und gestalten Sie Ihren Weg ins neue Zuhause einfacher und sicherer.

Erfolgreich zur neuen Immobilie

Mit Infina haben Sie einen verlässlichen Partner an Ihrer Seite, der Sie von der ersten Beratung bis zum erfolgreichen Abschluss ganzheitlich unterstützt. Erfahren Sie hier, wie wir gemeinsam Ihren Immobilienerfolg gestalten.

Starten Sie jetzt Ihre Immobiliensuche

Nach zahlreichen Informationen rund um die Themen Immobilie kaufen und Immobilie mieten können Sie nun den nächsten Schritt machen. Starten Sie die Immobiliensuche, um Ihr neues Zuhause oder Ihre nächste Investition zu finden und entdecken Sie die passenden Angebote:

Das innovative Portal für Immobilien und Finanzierung 

Als Kunde von Infina profitieren Sie von unserer umfangreichen und unabhängigen Expertise als Teil einer wachsenden, unabhängigen Immobilien- und Finanzierungsnetzwerkgruppe. Bereits 50.000 Kunden hat Infina erfolgreich bei Ihrem Vorhaben begleitet. Infina bietet Ihnen eine umfassende Beratung in allen Bereichen rund um Ihre Immobilienvorhaben:

Die passende Finanzierung für Ihre Immobilie

Mit Infina erhalten Sie nicht nur eine unabhängige Beratung, sondern auch die passende Finanzierungslösung für Ihre Immobilie. Aus den Angeboten von über 120 Banken und Bausparkassen vermitteln wir Ihnen das, was perfekt zu Ihren Bedürfnissen passt. Wir begleiten Sie professionell und verlässlich – von der ersten Beratung bis zum erfolgreichen Abschluss.

Kreditvergleich

Kostenlos und unverbindlich

Wir holen das Beste für Sie heraus

Verkaufen Sie Ihre Immobilie mit uns & profitieren Sie von unserer Expertise. Wir bringen Ihre Immobilie optimal auf den Markt & erzielen den besten Preis. 

Kontaktieren Sie uns jetzt.

Jetzt Experten kontaktieren
Junge Frau im pinken Blazer hält ein Modellhaus in der linken Hand und zeigt mit der rechten Hand nach oben, als hätte sie eine Idee. Sie lächelt und blickt leicht nach oben – symbolisch für Inspiration oder Immobilienberatung.