INFINA LOGO
Entspannt zur Immobilie Persönlich & kompetent beraten Finanzierbarkeit sofort überprüfbar
513.000 € 6.056 €/m²
Kostenlos &
unverbindlich.
Kontakt aufnehmen

Neues Projekt in der Schwarzelackenau beim Marchfeldkanal - noch 18 Einheiten verfügbar!

Obj. Nr.: 27949

Infina approved
Infina approved
Kein Pachtgrundstück! 15.09.2025 Spatenstich! Auch als Anlage möglich! Freifinanziert! Eigentumswohnungen!
513.000 € Kaufpreis der Immobilie Kreditvergleich von über 120 Banken mit Infina.
Immobilie finanzieren
Mehr Informationen zur Immobilie: Detaillierte Einblicke in dieses Objekt.
Zurück zur Übersicht

Objektstandort

1210 Wien Adresse anfragen

Directions Icon Fahrtzeit berechnen
Preisinformationen
Kaufpreis 513.000 €
Grundbucheintragung: 1.1 %
Grunderwerbsteuer: 3.5 %
Was kann ich mir leisten?
Jetzt berechnen

Objektinformationen

Objektart: Wohnung
Unterobjektart: Wohnung
Nutzungsart: Wohnen, Anlage
Bauart: Neubau
Zustand: Erstbezug
Eigentumsform: Wohnungseigentum
barrierefrei: Ja

Rauminformationen & Flächen

Wohnfläche: ca. 73,18 m²
Nutzfläche: ca. 84,71 m²
Kellerfläche: ca. 2,95 m²
Balkonfläche: ca. 11,53 m²
Anzahl Keller: 1
Anzahl Balkone: 1
Anzahl Zimmer: 3
Anzahl WC: 1
Anzahl Bäder: 1
Anzahl Abstellräume: 1

Ausstattung

Boden: Fliesen, Fertigparkett
Befeuerung: Luftwärmepumpe
Heizungsart: Fußbodenheizung
Küche: Wohnküche / offene Küche
Fahrstuhl: Personenaufzug
Bad: Badewanne
Stellplatzart: Tiefgarage
Extras: Fahrradraum, Abstellraum, Kinderspielplatz
Fenster: Außenliegender Sonnenschutz, Öffenbare Fenster, Doppel- / Mehrfachverglasung, Kunststofffenster, Schallschutzfenster
WCs: Toilette
Bauweise: Massiv
Ausblick: Grünblick

Lage

In der Nähe der großflächigen Grünzone der Schwarzlackenau entsteht ein exklusives Neubau-Wohnprojekt in ruhiger, naturnaher Umgebung

Dieses Projekt ist für alle, die Natur und Freizeit direkt vor der Haustür schätzen.

 

Naherholung am Wasser: Nur wenige Minuten bis zur Donauinsel, Neuen und Alten Donau – perfekte Bedingungen für Sport, Entspannung und Naturgenuss

Erholung & Freizeitsport: Schwimmen, Fischen, Segeln, Radfahren und Joggen – alles schnell erreichbar.

 

Nahversorger:

-Eurospar: ca. 750m

-Billa: ca. 800m

 

Öffentliche Verkehrsmittel:

-Bahnhof Wien Floridsdorf (U6, S1, S2, S3, S4, S7, Regionalzüge):

-Ist der wichtigste Verkehrsknotenpunkt im Bezirk. Mit den Buslinien 30A oder 31A erreicht man den Bahnhof in ca. 10–15 Minuten.

 

S-Bahn-Station Strebersdorf (S3, S4):

-Diese Station ist mit der Buslinie 32A gut erreichbar.

Beschreibung

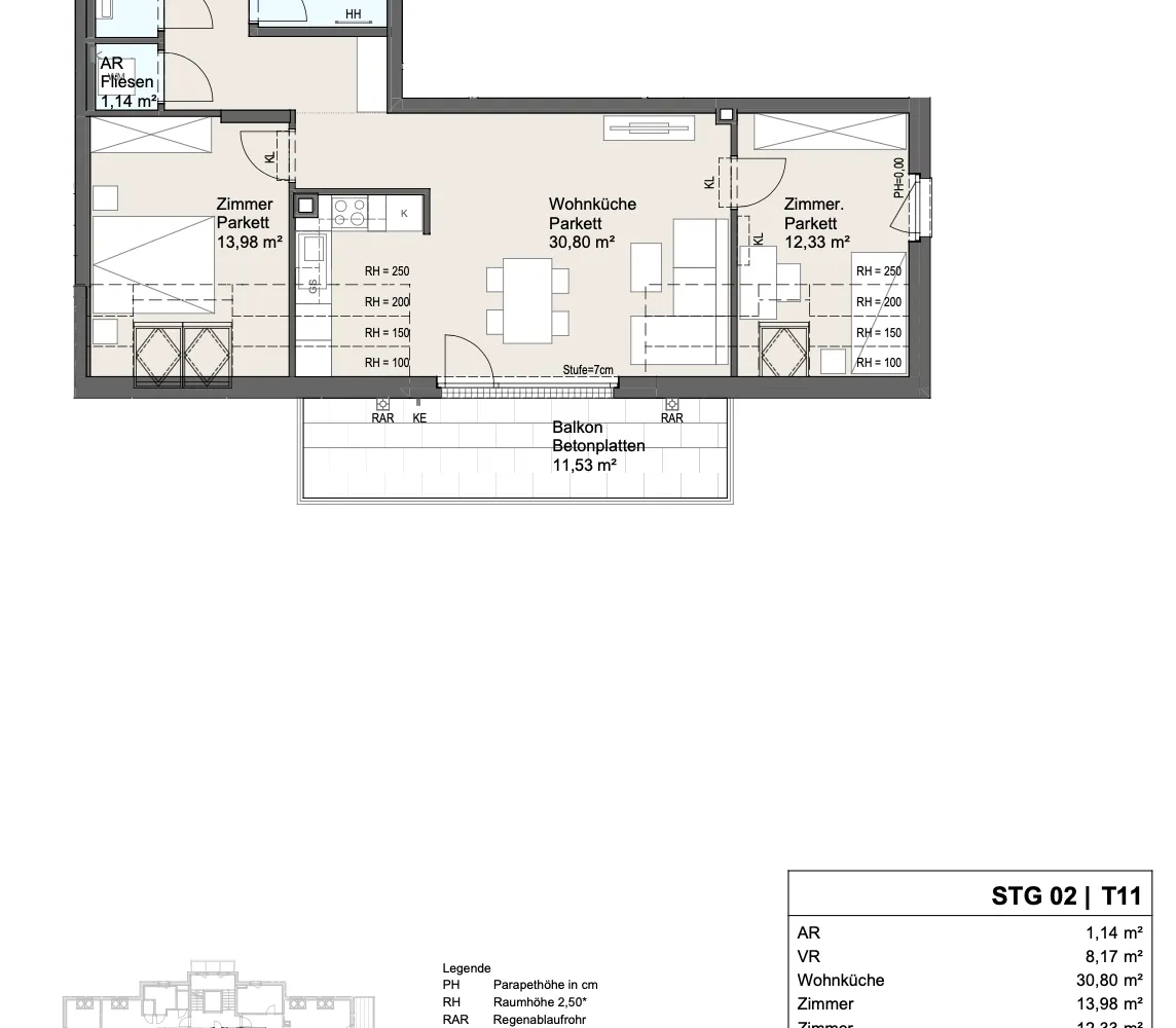
Stg. 2 Top 11 | 3 Zimmer | ca. 73  m² + ca. 12  m² Balkon

Die ca. 73 m² große Wohnung befindet sich im 2. Liftstock und verfügt über eine großzügige Wohnküche mit direktem Zugang zum ca. 12 m² großen Balkon. Zusätzlich stehen zwei weitere Zimmer zur Verfügung. Alle Räume sind hell, mit großflächigen Fensterflächen ausgestattet und vielseitig nutzbar.

Raumaufteilung:

  • Vorraum: ca. 8,17 m²
  • Wohnküche: ca. 30,80 m²
  • Zimmer: ca. 13,98 m²
  • Zimmer: ca. 12,33 m²
  • Bad: ca. 4,91 m²
  • WC: ca. 1,85 m²
  • Abstellraum: ca. 1,14 m²
  • Balkon: ca. 11,53 m²

Ein Kellerabteil mit ca. 2,95 m² ist der Wohnung zugeordnet.

Besonders hervorzuheben: Der Bau hat bereits begonnen – das ermöglicht Ihnen als Käufer, gemeinsam mit dem Architekten individuelle Anpassungen in der Raumgestaltung vorzunehmen und Ihre persönlichen Wohnideen zu verwirklichen (solange es noch möglich ist).

Die Architektur ist klar und zeitgemäß, das Wohnkonzept auf langfristige Qualität ausgerichtet: Alle Wohnungen sind  barrierefrei zugänglich. Beheizt wird mittels Luft/Wasser-Wärmepumpe , ergänzt durch eine Photovoltaikanlage zur Unterstützung des Allgemeinstroms. Eine Tiefgarage mit gesamt 19 Stellplätzen , steht Ihnen zur Verfügung. 

Technische Ausstattung & Komfort:

  • Wärmepumpe 
  • Photovoltaik/Solaranlage zur Reduktion von Energie- und Betriebskosten
  • Fußbodenheizung mit Raumthermostaten  
  • Fußbodentemperierung in sämtlichen Zimmern
  • Hochwertige Innenausstattung (Eichenparkett, Feinsteinfliesen u.v.m.)
  • 3‑fach verglaste Kunststoff‑Alu‑Fenster und Sonnenschutz in allen Wohnungen (Rollladen, Raffstores, Markisoletten) 
  • Kleinkinderspielplatz auf Eigengrund

Kaufpreis:

Der  Verkaufspreis   beläuft sich auf  Euro 513.000.-

Diese Wohnung kann auch als  Vorsorge- / Anlagewohnung   mit Umsatzsteuerausweisung (weitere Vermietung verpflichtend!) erworben werden: 

Anlegerpreis: Euro 462.162,16.-  (zzgl. 20% Ust).  

Alle Preise verstehen sich ohne Kücheneinrichtung und Tiefgaragenstellplatz ( á € 32.256.- bzw. 29.059,46.- Netto + USt) , in schlüsselfertiger Ausführung! 

Was überzeugt? Ein klar strukturiertes Konzept, intelligente Grundrisse und eine Lage mit Lebensqualität. Egal ob zur Kapitalanlage oder für den Eigenbedarf – Mit diesem Wohnbauprojekt investieren Sie in Lebensqualität und Substanz! Immobilien gelten als wertbeständige und sichere Anlageform. Alle Wohnungen und Stellplätze können auch als  Vorsorge- / Anlagewohnung   mit Umsatzsteuerausweisung (weitere Vermietung verpflichtend!) erworben werden! 

Sichern Sie sich Ihre neue Vorsorgewohnung - gerne beraten wir Sie dazu!


Wir weisen Sie darauf hin, dass die gemachten Angaben und Informationen lediglich unverbindliche Vorabinformationen sind und daher ohne Gewähr erfolgen.

Energieausweis & Heizung
HWB (kWh/m2/Jahr): 37.3
HWB Energieklasse: Energieeffizienzklasse B
fGEE: 0.67
fGEE Energieklasse: Energieeffizienzklasse A+
Heizung: Fußbodenheizung
Befeuerung: Luftwärmepumpe
Dokumente & Videos Pläne
Sebastian Scheuermann
Infina Immobilien: Sebastian Scheuermann +43 676 4207846
sebastian.scheuermann@infina-partner.at
Nahversorgung:
Bäckerei: 970 m
Supermarkt: 430 m
Einkaufszentrum: 1630 m
Sonstige:
Post: 1300 m
Bank: 1300 m
Geldautomat: 1590 m
Polizei: 990 m
Gesundheit:
Apotheke: 460 m
Arzt: 920 m
Klinik: 2110 m
Krankenhaus: 2140 m
Kinder & Schulen:
Höhere Schule: 1850 m
Kindergarten: 220 m
Schule: 210 m
Universität: 2000 m
Verkehr:
Autobahnanschluss: 1070 m
U-Bahn: 2670 m
Bus: 490 m
Straßenbahn: 1510 m
Bahnhof: 2100 m

Jetzt Experten kontaktieren

Weitere interessante Objekte

Wien
Infina Immobilien
Jetzt anfragen
Kein Pachtgrundstück! 15.09.2025 Spatenstich! Auch als Anlage möglich! Freifinanziert! Eigentumswohnungen!
5.662 €/m²
549.000 €
Wien
Infina Immobilien
Jetzt anfragen
Kein Pachtgrundstück! 15.09.2025 Spatenstich! Auch als Anlage möglich! Freifinanziert! Eigentumswohnungen!
6.007 €/m²
575.000 €
Wien
Infina Immobilien
Jetzt anfragen
Kein Pachtgrundstück 15.09.2025 Spatenstich! Auch als Anlage möglich! Freifinanziert! Eigentumswohnungen!
5.284 €/m²
589.000 €
Wien
Infina Immobilien
Jetzt anfragen
Kein Pachtgrundstück! 15.09.2025 Spatenstich! Auch als Anlage möglich! Freifinanziert! Eigentumswohnungen!
5.700 €/m²
432.000 €
Wien
Infina Immobilien
Jetzt anfragen
30.08.2025 Tag der offenen Tür 15.09.2025 Spatenstich! 5% Rabatt sicher! Freifinanziert! Eigentumswohnungen!
5.875 €/m²
499.000 €
Wien
Infina Immobilien
Jetzt anfragen
Kein Pachtgrundstück! 15.09.2025 Spatenstich! Auch als Anlage möglich! Freifinanziert! Eigentumswohnungen!
6.389 €/m²
467.000 €
Wien
Infina Immobilien
Jetzt anfragen
Kein Pachtgrundstück! 15.09.2025 Spatenstich! Auch als Anlage möglich! Freifinanziert! Eigentumswohnungen!
6.975 €/m²
589.000 €
Wien
Infina Immobilien
Jetzt anfragen
Kein Pachtgrundstück! 15.09.2025 Spatenstich! Auch als Anlage möglich! Freifinanziert! Eigentumswohnungen!
6.244 €/m²
545.000 €
Wien
Infina Immobilien
Jetzt anfragen
Kein Pachtgrundstück! 15.09.2025 Spatenstich! Auch als Anlage möglich! Freifinanziert! Eigentumswohnungen!
6.133 €/m²
669.000 €

Immobilie kaufen: Das passende Angebot finden

Der Kauf einer Immobilie ist eine wichtige Entscheidung – sei es für die Eigennutzung oder zur Vermietung. Mit unserem Portal unterstützen wir Sie dabei, die richtige Immobilie zu kaufen. Nutzen Sie unsere Suchmöglichkeiten, um gezielt eine Immobilie zu suchen, die Ihren Vorstellungen entspricht. Unsere Immobilienangebote decken eine breite Palette ab: vom Einfamilienhaus über die Eigentumswohnung bis hin zum Grundstück für Ihr Bauvorhaben. Mit uns können Sie sicher und unkompliziert Eigentum erwerben – ob für die private Nutzung oder als Investition als Immobilie. Erkunden Sie jetzt unsere Angebote und finden Sie die perfekte Lösung, die zu Ihren Wohn- oder Anlagezielen passt.

Fundiertes Wissen für Ihre Entscheidung, eine Immobilie zu kaufen

Bereiten Sie sich bestens vor: Infina stellt Ihnen kostenlos über 300 Ratgeber und Beiträge zu den Themen Immobilie, Finanzierung, Zinsen und Recht zur Verfügung. Nutzen Sie unser umfassendes Wissen, um richtige Entscheidungen zu treffen.

Bei jedem Kauf einer Immobilie oder eines Grundstücks ist es wichtig, die passende Finanzierung zu finden. Mit seiner eigenen Vertriebsorganisation ist Infina als Wohnbau-Finanz-Experte an über 100 Standorten in ganz Österreich vertreten und vermittelt Finanzierungen an über 120 Banken und Bausparkassen. Nutzen Sie unseren kostenlosen Kreditvergleich für den passenden Wohnkredit: 

Kreditvergleich

Kostenlos und unverbindlich

Immobilie mieten: Ihr neues Zuhause wartet

Die Entscheidung, eine Immobilie zu mieten, bietet Flexibilität und zahlreiche Möglichkeiten – ob eine Wohnung für den Alltag oder ein Haus für die Familie. Bei Infina können Sie gezielt sowohl eine Wohnung suchen als auch ein Haus suchen, das Ihren Bedürfnissen entspricht. Unsere Angebote erleichtern es Ihnen, eine Mietwohnung zu suchen und Ihre ideale Wohnung finden zu können. Entdecken Sie vielfältige Optionen, um die passende Immobilie zu finden und Ihre Wohnträume zu verwirklichen. Starten Sie noch heute Ihre Suche und profitieren Sie von einer großen Auswahl an Mietobjekten in Ihrer Wunschregion.

Hilfreiche Informationen zu Immobilie mieten

Starten Sie gut vorbereitet in Ihre Mietentscheidung: Infina stellt Ihnen vielseitige Ratgeber und Beiträge zu Themen wie Immobilie, Mietrecht, Finanzierung und Wohntrends zur Verfügung. Verschaffen Sie sich einen Überblick über alle relevanten Aspekte und gestalten Sie Ihren Weg ins neue Zuhause einfacher und sicherer.

Erfolgreich zur neuen Immobilie

Mit Infina haben Sie einen verlässlichen Partner an Ihrer Seite, der Sie von der ersten Beratung bis zum erfolgreichen Abschluss ganzheitlich unterstützt. Erfahren Sie hier, wie wir gemeinsam Ihren Immobilienerfolg gestalten.

Starten Sie jetzt Ihre Immobiliensuche

Nach zahlreichen Informationen rund um die Themen Immobilie kaufen und Immobilie mieten können Sie nun den nächsten Schritt machen. Starten Sie die Immobiliensuche, um Ihr neues Zuhause oder Ihre nächste Investition zu finden und entdecken Sie die passenden Angebote:

Das innovative Portal für Immobilien und Finanzierung 

Als Kunde von Infina profitieren Sie von unserer umfangreichen und unabhängigen Expertise als Teil einer wachsenden, unabhängigen Immobilien- und Finanzierungsnetzwerkgruppe. Bereits 50.000 Kunden hat Infina erfolgreich bei Ihrem Vorhaben begleitet. Infina bietet Ihnen eine umfassende Beratung in allen Bereichen rund um Ihre Immobilienvorhaben:

Die passende Finanzierung für Ihre Immobilie

Mit Infina erhalten Sie nicht nur eine unabhängige Beratung, sondern auch die passende Finanzierungslösung für Ihre Immobilie. Aus den Angeboten von über 120 Banken und Bausparkassen vermitteln wir Ihnen das, was perfekt zu Ihren Bedürfnissen passt. Wir begleiten Sie professionell und verlässlich – von der ersten Beratung bis zum erfolgreichen Abschluss.

Kreditvergleich

Kostenlos und unverbindlich

Wir holen das Beste für Sie heraus

Verkaufen Sie Ihre Immobilie mit uns & profitieren Sie von unserer Expertise. Wir bringen Ihre Immobilie optimal auf den Markt & erzielen den besten Preis. 

Kontaktieren Sie uns jetzt.

Jetzt Experten kontaktieren
Junge Frau im pinken Blazer hält ein Modellhaus in der linken Hand und zeigt mit der rechten Hand nach oben, als hätte sie eine Idee. Sie lächelt und blickt leicht nach oben – symbolisch für Inspiration oder Immobilienberatung.