INFINA LOGO
Entspannt zur Immobilie Persönlich & kompetent beraten Finanzierbarkeit sofort überprüfbar
357.700 € 5.607 €/m²
Kostenlos &
unverbindlich.
Kontakt aufnehmen

BEZUGSFERTIG I Nähe Mühlwasser I Klimaaktiv-zertifiziert I Tiefgarage I Wärmepumpe I Fußbodenheizung & Kühlung I PV-Anlage

Obj. Nr.: 25373

ca. 63,80 m² Nutzfläche 3 Zimmer
Partner von Infina Alexander Ringsmuth Immobilien Immobilienmakler 
Partner von Infina Alexander Ringsmuth Immobilien Immobilienmakler
357.700 € Kaufpreis der Immobilie Kreditvergleich von über 120 Banken mit Infina.
Immobilie finanzieren
Mehr Informationen zur Immobilie: Detaillierte Einblicke in dieses Objekt.
Zurück zur Übersicht

Objektstandort

1220 Wien Adresse anfragen

Directions Icon Fahrtzeit berechnen
Preisinformationen
Kaufpreis 357.700 €
Grundbucheintragung: 1.1 %
Grunderwerbsteuer: 3.5 %
Was kann ich mir leisten?
Jetzt berechnen
Maklerprovision:
3,00 % des Kaufpreises zzgl. 20 % USt.

Objektinformationen

Objektart: Wohnung
Nutzungsart: Wohnen
Bauart: Neubau
Zustand: Erstbezug
Baujahr: 2025
barrierefrei: Ja

Rauminformationen & Flächen

Wohnfläche: ca. 55,35 m²
Nutzfläche: ca. 63,80 m²
Kellerfläche: ca. 2,14 m²
Balkonfläche: ca. 8,45 m²
Anzahl Balkone: 1
Anzahl Zimmer: 3
Anzahl WC: 1
Anzahl Bäder: 1

Ausstattung

Boden: Fliesen, Parkett
Befeuerung: Luftwärmepumpe
Heizungsart: Fußbodenheizung
Küche: Wohnküche / offene Küche
Fahrstuhl: Personenaufzug
Balkon: Nordostbalkon / -terrasse
Bad: Dusche
Stellplatzart: Tiefgarage
Extras: Abstellraum
Belüftung: Klimaanlage
Bauweise: Massiv

Lage

Das Projekt liegt in einer ruhigen Seitengasse, umgeben von weitläufigen Grünflächen und nur ca. 10min (Fußweg) vom Mühlwasser entfernt. Die Donau-Auen, der Nationalpark Lobau und weitere Freizeitangebote sind ebenfalls schnell fußläufig oder mit dem Fahrrad erreichbar. Die Buslinien 93A und 98A liegen fußläufig, die U2 Station "Aspernstraße" ist über Anschluss erreichbar.

Öffentliche Verkehrsmittel:
-Buslinien 93A, N91, 98A, 97A, 92A,
-U2-Station erreichbar mit dem Bus oder Straßenbahn,

Einkaufsmöglichkeit:
-Billa: ca. 250 m entfernt

Beschreibung *

Wohnbauprojekt "K5"- bezugsfertig 

Nahe dem Mühlwasser in einer ruhigen Seitengasse, befindet sich das Neubauprojekt "K5" mit insgesamt 30 Eigentumswohnungen in Bau. Die Einheiten verfügen über 2 bis 4 Zimmer und Wohnflächen zwischen ca. 38 und 101 m² – jeweils mit Balkon, Terrasse oder Eigengarten. 

Das Projekt ist klimaaktiv-zertifiziert und setzt auf eine nachhaltige Bauweise mit langfristigem Fokus: Energieversorgung über eine Wasser-Wasser-Wärmepumpe, Photovoltaikanlage am Dach sowie moderne Dämmung sorgen für niedrige Betriebskosten und ein angenehmes Raumklima. Alle Wohnungen sind barrierefrei zugänglich, ein Lift ist vorhanden. In der Tiefgarage stehen 17 Stellplätze mit Option einer E‑Ladevorbereitung zur Verfügung.

Durch Kombination aus Grünlage, guter Anbindung und der zukunftsorientierten Bauweise sind die Wohnungen sowohl für Eigennutzer als auch für Anleger ideal geeignet.

Im Überblick: 

  • Wohneinheiten : 30 Wohnungen verteilt auf zwei Stiegen mit 2 bis 4 Zimmern 
  • Wohnflächen:  ca. 38 m² bis 101 m²
  • Geplante Fertigstellung : Dezember 2025
  • Außenflächen : Balkon, Terrasse oder Eigengarten je Einheit
  • Barrierefreier Zugang zu allen Wohnungen
  • Tiefgarage mit 17 Stellplätzen
  • Fahrradraum / Kinderwagenabstellraum  / Eigenes Kellerabteil

Technische Ausstattung & Komfort:

  • Wasser-Wasser-Wärmepumpe in Splitausführung (Kühlung & Heizung)
  • Photovoltaik/Solaranlage zur Reduktion von Energie- und Betriebskosten
  • Fußbodenheizung mit Raumthermostaten  
  • Fußbodentemperierung in sämtlichen Wohnbereichen
  • Elektrische Handtuchheizkörper in den Bädern
  • Split-Klimageräte in den Dachgeschosswohnungen
  • Hochwertige Innenausstattung (Eichenparkett, Feinsteinfliesen u.v.m.)
  • 3‑fach verglaste Holz‑Alu‑Fenster und Sonnenschutz in allen Wohnungen (Rollladen, Raffstores, Markisoletten) 
  • Kleinkinderspielplatz auf Eigengrund

In die Zukunft Investieren:  Immobilien gelten als wertbeständige und sichere Anlageform. Alle Wohnungen und Stellplätze können auch als  Vorsorge- / Anlagewohnung   mit Umsatzsteuerausweisung (weitere Vermietung verpflichtend!) erworben werden! 

Sichern Sie sich Ihre neue Vorsorgewohnung - gerne beraten wir Sie dazu! 

Gerne steht Ihnen Herr Benjamin Bornschein für weitere Fragen bzw. flexibel gestaltbare Besichtigungstermine unter  0664 4255 264 zur Verfügung.  

www.ringsmuth-immobilien.at

Irrtum und Änderungen vorbehalten!

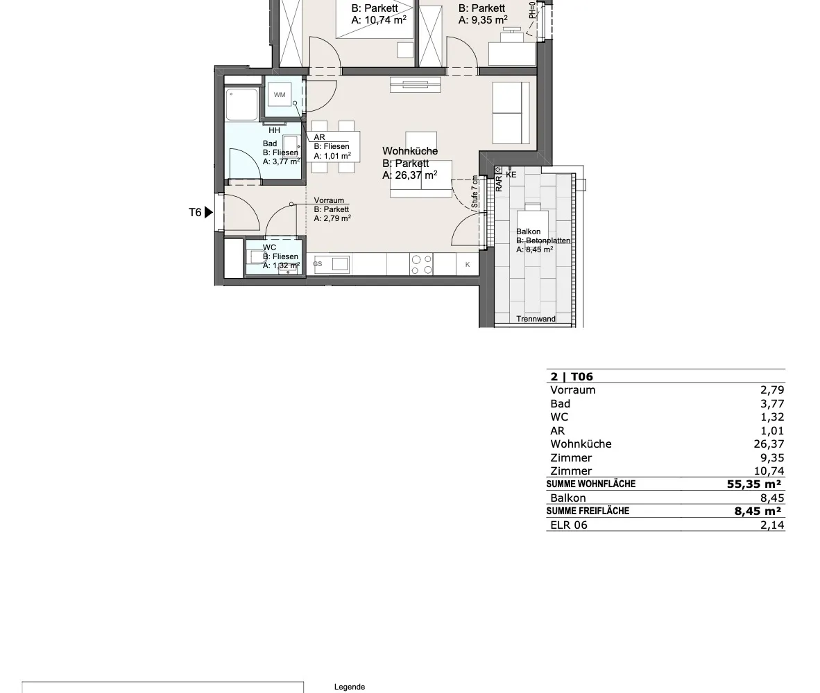
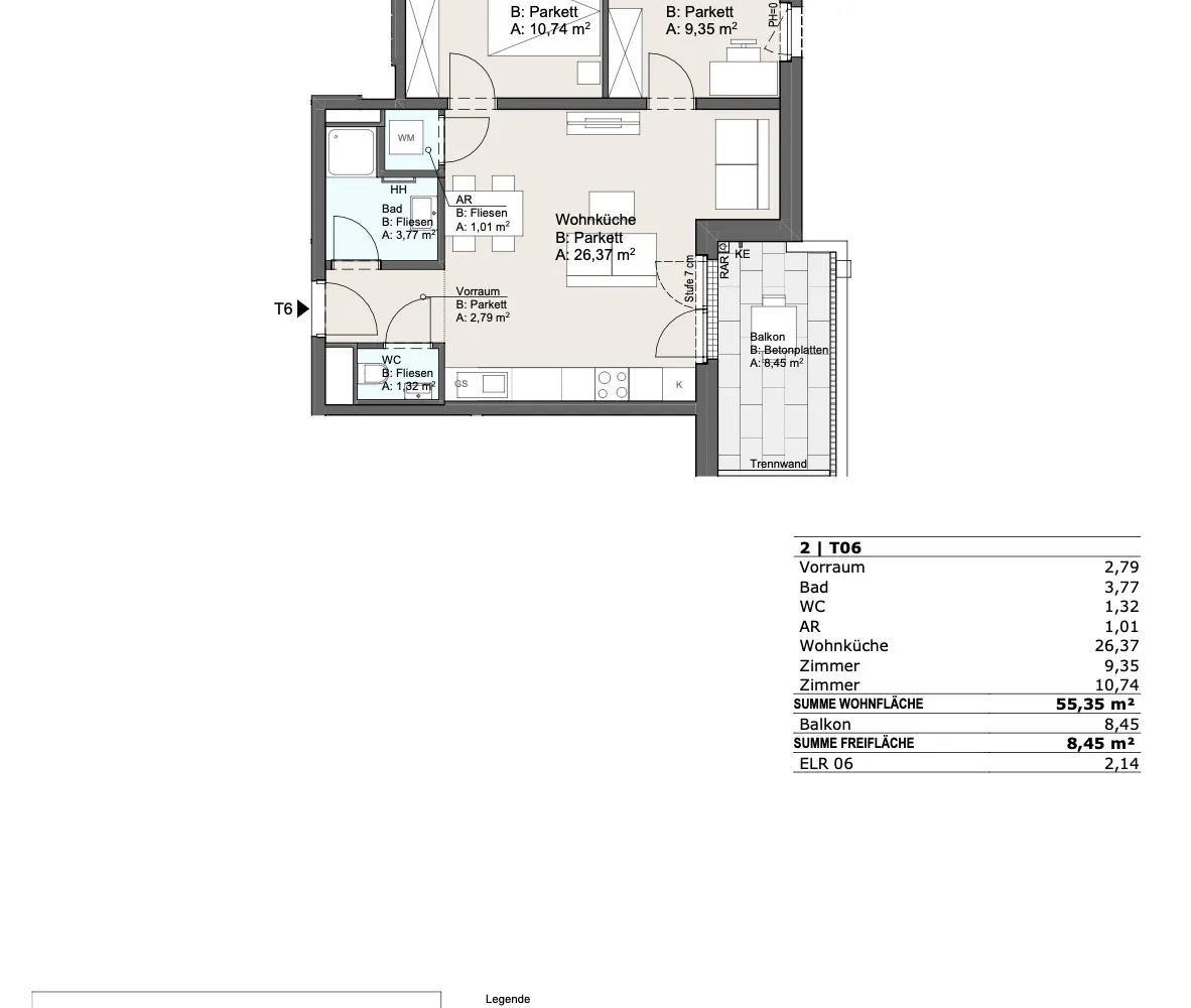
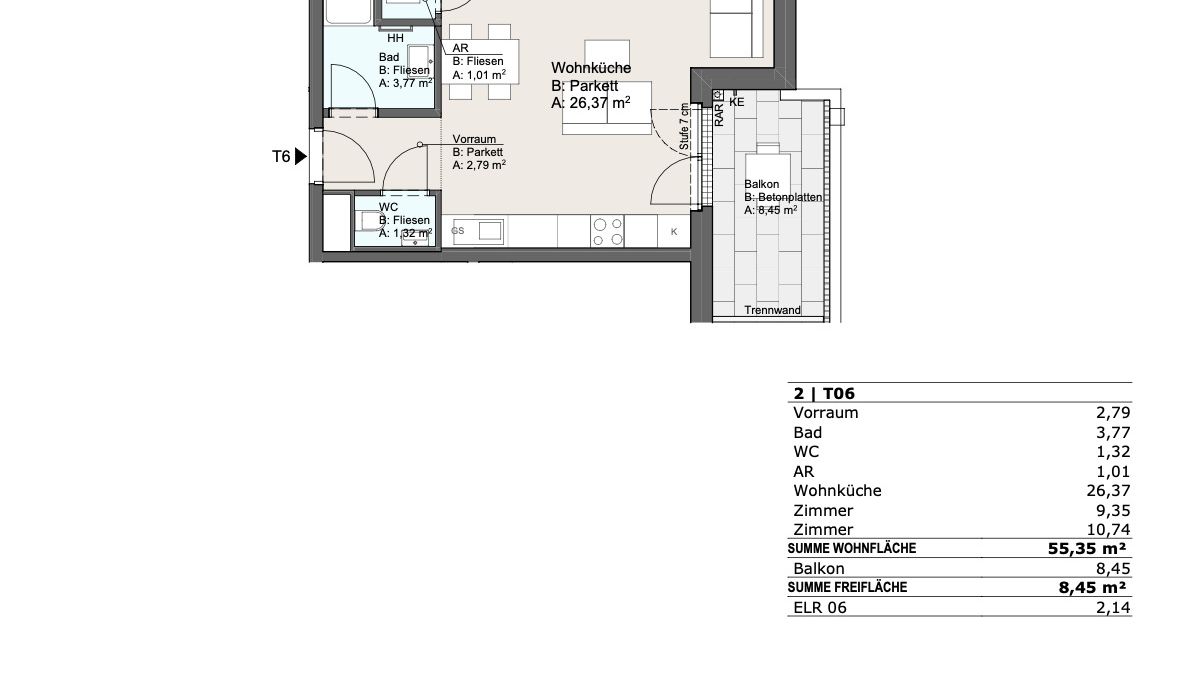
Top 06 | 3 Zimmer | ca. 55 m² + ca. 8 m² Balkon

Die Wohnung liegt im 1. Liftstock und bietet ca. 55 m² Wohnfläche mit zentralem Vorraum, offener Wohnküche und zwei gut geschnittenen Schlafzimmern. Der Balkon mit ca. 8 m² ist von der Wohnküche aus begehbar.

Raumaufteilung:
– Wohnküche: ca. 26,37 m²
– Zimmer 1: ca. 10,74 m²
– Zimmer 2: ca. 9,35 m²
– Bad: ca. 3,77 m²
– WC separat: ca. 1,32 m²
– Vorraum: ca. 2,79 m²
– Abstellraum: ca. 1,01 m²
– Balkon: ca. 8,45 m²  

Ein Kellerabteil mit ca. 2,14 m² ist der Wohnung zugeordnet.

Wohnbauprojekt "K5"- fertiggestellt und bezugsfertig!

Nahe dem Mühlwasser in einer ruhigen Seitengasse, entsteht das Neubauprojekt "K5" mit insgesamt 30 Eigentumswohnungen. Die Einheiten verfügen über 2 bis 4 Zimmer und Wohnflächen zwischen ca. 38 und 101 m² – jeweils mit Balkon, Terrasse oder Eigengarten. 

Das Projekt ist klimaaktiv-zertifiziert und setzt auf eine nachhaltige Bauweise mit langfristigem Fokus: Energieversorgung über eine Wasser-Wasser-Wärmepumpe, Photovoltaikanlage am Dach sowie moderne Dämmung sorgen für niedrige Betriebskosten und ein angenehmes Raumklima. Alle Wohnungen sind barrierefrei zugänglich, ein Lift ist vorhanden. In der Tiefgarage stehen 17 Stellplätze zur Verfügung.

Technische Ausstattung & Komfort:

  • Wasser-Wasser-Wärmepumpe in Splitausführung (Kühlung & Heizung)
  • Photovoltaik/Solaranlage zur Reduktion von Energie- und Betriebskosten
  • Fußbodenheizung mit Raumthermostaten  
  • Fußbodentemperierung in sämtlichen Wohnbereichen
  • Elektrische Handtuchheizkörper in den Bädern
  • Split-Klimageräte in den Dachgeschosswohnungen
  • Hochwertige Innenausstattung (Eichenparkett, Feinsteinfliesen u.v.m.)
  • 3‑fach verglaste Holz‑Alu‑Fenster und Sonnenschutz in allen Wohnungen (Rollladen, Raffstores, Markisoletten) 
  • Kleinkinderspielplatz auf Eigengrund

Kaufpreis:

Der  Verkaufspreis   beläuft sich auf  Euro 357.700.-

Diese Wohnung kann auch als  Vorsorge- / Anlagewohnung   mit Umsatzsteuerausweisung (weitere Vermietung verpflichtend!) erworben werden: 

Anlegerpreis: Euro 322.252 . - (zzgl. 20% Ust).  

Alle Preise verstehen sich ohne Kücheneinrichtung und Tiefgaragenstellplatz ( á € 28.800.- bzw. 25.350.- Netto + USt) , in schlüsselfertiger Ausführung! 

In die Zukunft Investieren:  Immobilien gelten als wertbeständige und sichere Anlageform.

Sichern Sie sich Ihre neue Vorsorgewohnung - gerne beraten wir Sie dazu! 

Gerne steht Ihnen Herr Benjamin Bornschein für weitere Fragen bzw. flexibel gestaltbare Besichtigungstermine unter  0664 4255 264 zur Verfügung.  

www.ringsmuth-immobilien.at

Irrtum und Änderungen vorbehalten!

Der Vermittler ist als Doppelmakler tätig.


Infrastruktur / Entfernungen

Gesundheit
Arzt <500m
Apotheke <1.000m
Klinik <1.500m
Krankenhaus <1.500m

Kinder & Schulen
Schule <500m
Kindergarten <500m
Universität <3.000m
Höhere Schule <2.500m

Nahversorgung
Supermarkt <500m
Bäckerei <1.000m
Einkaufszentrum <3.500m

Sonstige
Geldautomat <1.000m
Bank <1.000m
Post <1.000m
Polizei <1.000m

Verkehr
Bus <500m
U-Bahn <1.500m
Straßenbahn <1.000m
Bahnhof <1.500m
Autobahnanschluss <2.500m

Angaben Entfernung Luftlinie / Quelle: OpenStreetMap


*Der Vertrag kommt nicht mit der INFINA Credit Broker GmbH zustande. Das Objekt wird von einem externen Immobilienunternehmen angeboten. Allfällige aus dem Vertragsabschluss resultierende Rechte sind ausschließlich gegenüber dem anbietenden Immobilienunternehmen geltend zu machen. Wir weisen Sie darauf hin, dass die gemachten Angaben und Informationen lediglich unverbindliche Vorabinformationen sind und daher ohne Gewähr erfolgen. Der Vermittler ist als Doppelmakler tätig.

Energieausweis & Heizung
HWB (kWh/m2/Jahr): 29.7
HWB Energieklasse B
fGEE: 0.6
fGEE Energieklasse B
Heizung: Fußbodenheizung
Befeuerung: Luftwärmepumpe
Dokumente & Videos Pläne
Partner von Infina Alexander Ringsmuth Immobilien Immobilienmakler
Verkehr:
Autobahnanschluss: 1660 m
U-Bahn: 380 m
Bus: 320 m
Straßenbahn: 440 m
Bahnhof: 400 m
Nahversorgung:
Supermarkt: 380 m
Einkaufszentrum: 1810 m
Bäckerei: 480 m
Kinder & Schulen:
Universität: 2490 m
Höhere Schule: 2450 m
Kindergarten: 470 m
Schule: 540 m
Gesundheit:
Apotheke: 350 m
Klinik: 1730 m
Arzt: 320 m
Krankenhaus: 2310 m
Sonstige:
Post: 430 m
Geldautomat: 330 m
Polizei: 440 m
Bank: 340 m

Jetzt Experten kontaktieren

Weitere interessante Objekte

Partner von Infina
Jetzt anfragen
ca. 69,12 m² Wohnfläche 3 Zimmer
1.545 €

Immobilie kaufen: Das passende Angebot finden

Der Kauf einer Immobilie ist eine wichtige Entscheidung – sei es für die Eigennutzung oder zur Vermietung. Mit unserem Portal unterstützen wir Sie dabei, die richtige Immobilie zu kaufen. Nutzen Sie unsere Suchmöglichkeiten, um gezielt eine Immobilie zu suchen, die Ihren Vorstellungen entspricht. Unsere Immobilienangebote decken eine breite Palette ab: vom Einfamilienhaus über die Eigentumswohnung bis hin zum Grundstück für Ihr Bauvorhaben. Mit uns können Sie sicher und unkompliziert Eigentum erwerben – ob für die private Nutzung oder als Investition als Immobilie. Erkunden Sie jetzt unsere Angebote und finden Sie die perfekte Lösung, die zu Ihren Wohn- oder Anlagezielen passt.

Fundiertes Wissen für Ihre Entscheidung, eine Immobilie zu kaufen

Bereiten Sie sich bestens vor: Infina stellt Ihnen kostenlos über 300 Ratgeber und Beiträge zu den Themen Immobilie, Finanzierung, Zinsen und Recht zur Verfügung. Nutzen Sie unser umfassendes Wissen, um richtige Entscheidungen zu treffen.

Bei jedem Kauf einer Immobilie oder eines Grundstücks ist es wichtig, die passende Finanzierung zu finden. Mit seiner eigenen Vertriebsorganisation ist Infina als Wohnbau-Finanz-Experte an über 100 Standorten in ganz Österreich vertreten und vermittelt Finanzierungen an über 150 Banken und Bausparkassen. Nutzen Sie unseren kostenlosen Kreditvergleich für den passenden Wohnkredit: 

Kreditvergleich

Kostenlos und unverbindlich

Immobilie mieten: Ihr neues Zuhause wartet

Die Entscheidung, eine Immobilie zu mieten, bietet Flexibilität und zahlreiche Möglichkeiten – ob eine Wohnung für den Alltag oder ein Haus für die Familie. Bei Infina können Sie gezielt sowohl eine Wohnung suchen als auch ein Haus suchen, das Ihren Bedürfnissen entspricht. Unsere Angebote erleichtern es Ihnen, eine Mietwohnung zu suchen und Ihre ideale Wohnung finden zu können. Entdecken Sie vielfältige Optionen, um die passende Immobilie zu finden und Ihre Wohnträume zu verwirklichen. Starten Sie noch heute Ihre Suche und profitieren Sie von einer großen Auswahl an Mietobjekten in Ihrer Wunschregion.

Hilfreiche Informationen zu Immobilie mieten

Starten Sie gut vorbereitet in Ihre Mietentscheidung: Infina stellt Ihnen vielseitige Ratgeber und Beiträge zu Themen wie Immobilie, Mietrecht, Finanzierung und Wohntrends zur Verfügung. Verschaffen Sie sich einen Überblick über alle relevanten Aspekte und gestalten Sie Ihren Weg ins neue Zuhause einfacher und sicherer.

Erfolgreich zur neuen Immobilie

Mit Infina haben Sie einen verlässlichen Partner an Ihrer Seite, der Sie von der ersten Beratung bis zum erfolgreichen Abschluss ganzheitlich unterstützt. Erfahren Sie hier, wie wir gemeinsam Ihren Immobilienerfolg gestalten.

Starten Sie jetzt Ihre Immobiliensuche

Nach zahlreichen Informationen rund um die Themen Immobilie kaufen und Immobilie mieten können Sie nun den nächsten Schritt machen. Starten Sie die Immobiliensuche, um Ihr neues Zuhause oder Ihre nächste Investition zu finden und entdecken Sie die passenden Angebote:

Das innovative Portal für Immobilien und Finanzierung 

Als Kunde von Infina profitieren Sie von unserer umfangreichen und unabhängigen Expertise als Teil einer wachsenden, unabhängigen Immobilien- und Finanzierungsnetzwerkgruppe. Bereits 50.000 Kunden hat Infina erfolgreich bei Ihrem Vorhaben begleitet. Infina bietet Ihnen eine umfassende Beratung in allen Bereichen rund um Ihre Immobilienvorhaben:

Die passende Finanzierung für Ihre Immobilie

Mit Infina erhalten Sie nicht nur eine unabhängige Beratung, sondern auch die passende Finanzierungslösung für Ihre Immobilie. Aus den Angeboten von über 150 Banken und Bausparkassen vermitteln wir Ihnen das, was perfekt zu Ihren Bedürfnissen passt. Wir begleiten Sie professionell und verlässlich – von der ersten Beratung bis zum erfolgreichen Abschluss.

Kreditvergleich

Kostenlos und unverbindlich

Wir holen das Beste für Sie heraus

Verkaufen Sie Ihre Immobilie mit uns & profitieren Sie von unserer Expertise. Wir bringen Ihre Immobilie optimal auf den Markt & erzielen den besten Preis. 

Kontaktieren Sie uns jetzt.

Jetzt Experten kontaktieren
Junge Frau im pinken Blazer hält ein Modellhaus in der linken Hand und zeigt mit der rechten Hand nach oben, als hätte sie eine Idee. Sie lächelt und blickt leicht nach oben – symbolisch für Inspiration oder Immobilienberatung.