INFINA LOGO
Entspannt zur Immobilie Persönlich & kompetent beraten Finanzierbarkeit sofort überprüfbar
625.000 €
Kostenlos &
unverbindlich.
Kontakt aufnehmen

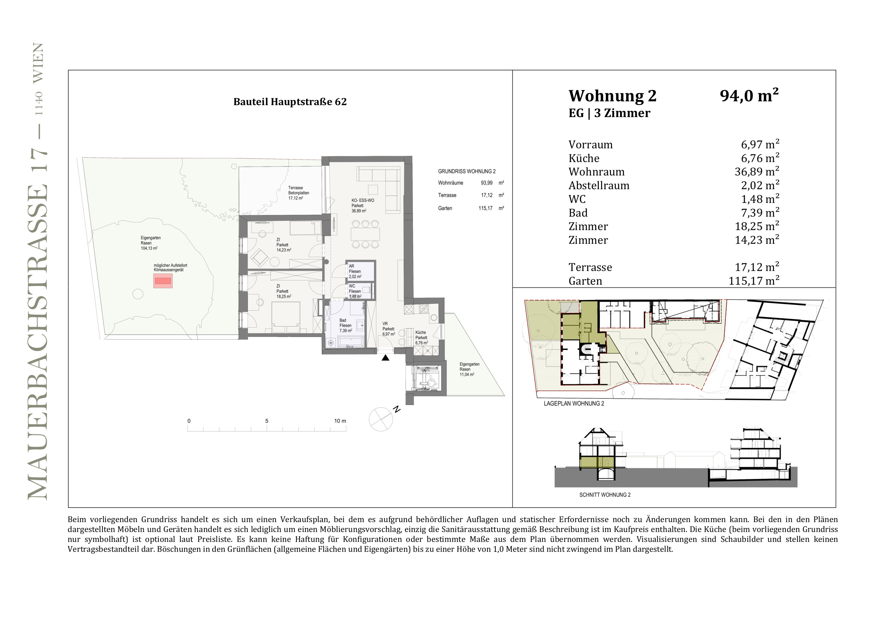
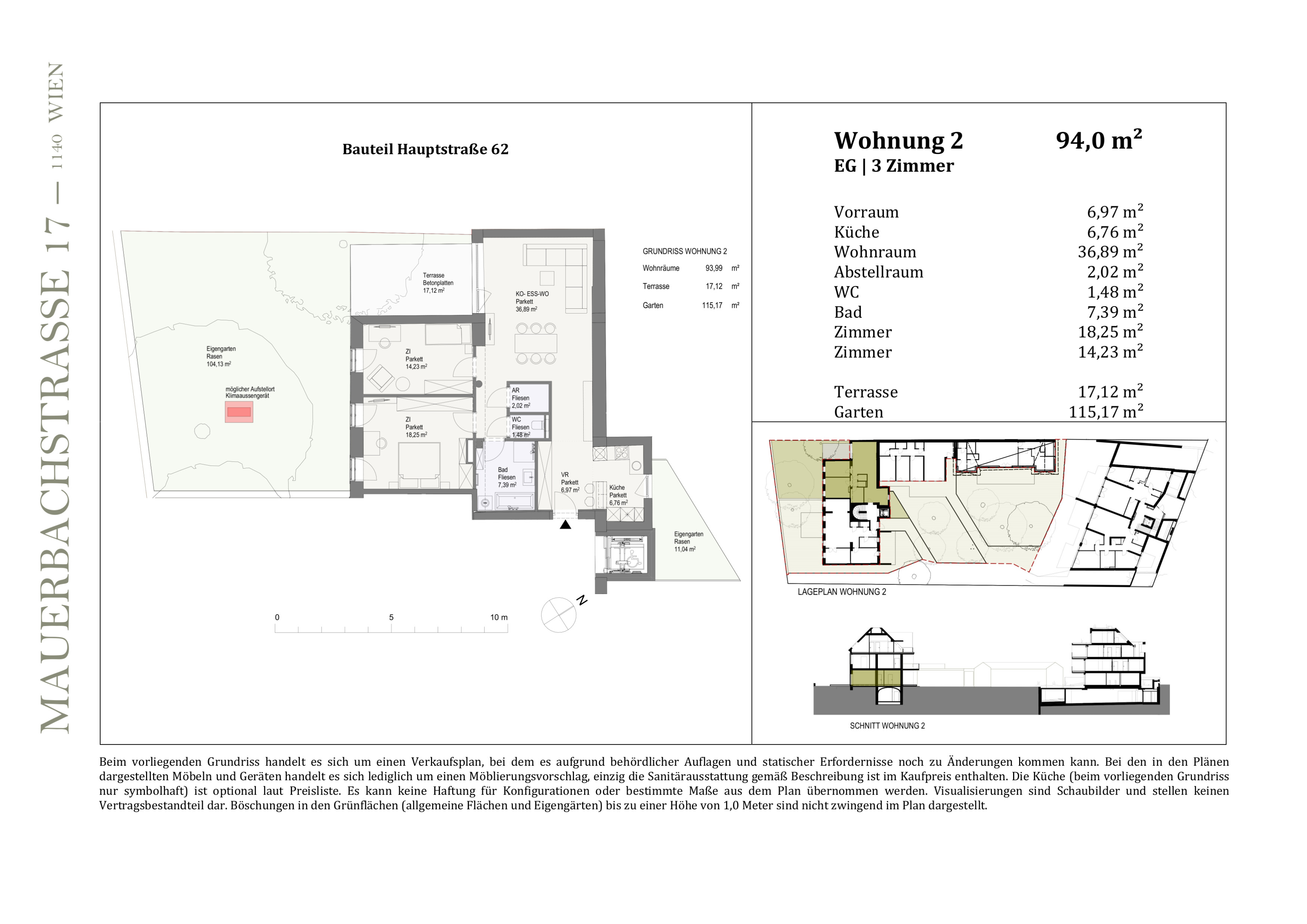
Symbiose aus Alt- und Neubau: Stilvolle Wohnungen in der Mauerbachstraße

Obj. Nr.: 2409

ca. 94,00 m² Wohnfläche 3 Zimmer
Partner von Infina EHL Wohnen Immobilienmakler 
Partner von Infina EHL Wohnen Immobilienmakler
625.000 € Kaufpreis der Immobilie Kreditvergleich von über 120 Banken mit Infina.
Immobilie finanzieren
Mehr Informationen zur Immobilie: Detaillierte Einblicke in dieses Objekt.
Zurück zur Übersicht

Objektstandort

1140 Wien, Hauptstraße 2

Directions Icon Fahrtzeit berechnen
Preisinformationen
Kaufpreis 625.000 €
Grundbucheintragung: 1.1 %
Grunderwerbsteuer: 3.5 %
Was kann ich mir leisten?
Jetzt berechnen
Maklerprovision:
Provisionsfrei für den Käufer

Objektinformationen

Objektart: Wohnung
Nutzungsart: Wohnen
Bauart: Altbau
Zustand: Erstbezug
Baujahr: 2026

Rauminformationen & Flächen

Wohnfläche: ca. 94,00 m²
Gartenfläche: ca. 115,17 m²
Terrassenfläche: ca. 17,12 m²
Anzahl Terrassen: 1
Anzahl Zimmer: 3
Anzahl WC: 1
Anzahl Bäder: 1

Ausstattung

Boden: Fliesen, Parkett
Befeuerung: Luftwärmepumpe
Heizungsart: Fußbodenheizung
Küche: Wohnküche / offene Küche
Fahrstuhl: Personenaufzug
Balkon: Nordwestbalkon / -terrasse
Bad: Dusche, Badewanne
Belüftung: Klimaanlage
Fenster: Rollladen
Bauweise: Massiv

Beschreibung *

Wohnen im malerischen "Hawei" - Exklusives Neubauprojekt in der Mauerbachstraße

In einer der idyllischsten und zugleich charmantesten Lagen Wiens entsteht ein außergewöhnliches Immobilienprojekt, das keine Wünsche offen lässt. In der Mauerbachstraße, im beliebten Viertel Hadersdorf-Weidlingau – von den Bewohnern liebevoll als "Hawei" bezeichnet – vereinen sich modernes Wohnen und historischer Charme zu einem einzigartigen Wohngefühl.

Das Projekt

Moderne, großzügig geschnittene Wohnungen mit lichtdurchfluteten Räumen bieten viel Platz und Komfort für ein angenehmes Wohngefühl. Ergänzt wird dieses Angebot durch wunderschöne Bestandswohnungen, die im Zuge einer umfassenden Sanierung wieder zum Leben erweckt werden.

Ein besonderes Highlight der Wohnanlage ist das unter Denkmalschutz stehende „Salettl“, das sich im Herzen der Anlage befindet und als Atelier genutzt werden kann. Das „Salettl“ ist nicht nur ein optischer Blickfang, sondern auch ein echtes Unikat, das dem gesamten Projekt einen einzigartigen Charakter verleiht.

  • 14 freifinanzierte Eigentums- und Vorsorgewohnungen
  • 14 Tiefgaragenplätze
  • 3 – 4 Zimmerwohnungen
  • Wohnungsgrößen zwischen 81 und 137 m²
  • Freiflächen wie Eigengarten, Terrasse, Loggia oder Balkon
  • Kinderwagen- und Fahrradabstellraum 
  • Lift
  • Kellerabteile

Die Ausstattung

  • Hochwertige Parkettböden
  • Feinsteinzeug in den Nassbereichen (Format 30x60 sowie 60x60)
  • Fußbodenheizung mit nachhaltiger Luft-Wärmepumpe
  • Markenausstattung in den Sanitärbereichen (Laufen Pro, Hansgrohe)
  • Holzfenster im Bestand
  • Kunststoff-Alu-Fenster im Neubau
  • Beschattung je bauphysikalischer Gegebenheiten
  • Photovoltaikanlage
  • Vorbereitungen für Klimageräte in den Dachgeschoßwohnungen des Neubaus in der Mauerbachstraße (DG 1 und DG 2)
  • Videogegensprechanlagen

Der Verkauf erfolgt provisionsfrei für den Käufer!

Geplante Fertigstellung: 1. Quartal 2026

Kaufpreis Stellplatz: EUR 30.000,-

Die Lage & Infrastruktur:

Mauerbach gilt als grünes Juwel am Rande Wiens und bietet eine perfekte Balance zwischen Naturverbundenheit und urbaner Lebensqualität. Eingebettet in die malerische Landschaft des Wienerwalds, liegt das Wohnprojekt dennoch in unmittelbarer Nähe zur Stadt. Die ruhige und naturnahe Umgebung mit zahlreichen Wanderwegen, dem nahegelegenen Mauerbach und dem Lainzer Tiergarten bietet unzählige Freizeitmöglichkeiten und lädt zur Erholung im Grünen ein.

Das Projekt ist Teil eines aufstrebenden, dennoch familiären Stadtviertels, in dem Tradition und Moderne miteinander verschmelzen. Hier genießt man die Vorteile einer ruhigen Wohngegend, während das pulsierende Leben der Stadt nur einen Katzensprung entfernt ist.

Die Lage des Projekts überzeugt nicht nur durch ihre idyllische Umgebung, sondern auch durch die hervorragende Infrastruktur. In unmittelbarer Nähe befinden sich zahlreiche Einkaufsmöglichkeiten, Kindergärten, Schulen sowie Arztpraxen, die eine perfekte Versorgung sicherstellen.

Auch die öffentliche Verkehrsanbindung ist optimal. Die S-Bahn-Station „Hadersdorf“ (S50) ist nur wenige Gehminuten entfernt und verbindet Sie in kürzester Zeit mit dem Wiener Westbahnhof und der Wiener Innenstadt. Zudem sorgen die Buslinien 49A und 50A für eine bequeme Verbindung ins Zentrum von Hütteldorf sowie zu weiteren Verkehrsknotenpunkten.

Einen detaillierten Überblick finden Sie auf unserer  EHL-Projekthomepage

Wir weisen darauf hin, dass zwischen dem Vermittler und dem zu vermittelnden Dritten ein familiäres oder wirtschaftliches Naheverhältnis besteht.

Der Vermittler ist als Doppelmakler tätig.


Infrastruktur / Entfernungen

Gesundheit
Arzt <2.500m
Apotheke <500m
Klinik <4.500m
Krankenhaus <3.250m

Kinder & Schulen
Schule <250m
Kindergarten <500m
Universität <1.500m
Höhere Schule <7.000m

Nahversorgung
Supermarkt <250m
Bäckerei <500m
Einkaufszentrum <750m

Sonstige
Geldautomat <750m
Bank <750m
Post <750m
Polizei <500m

Verkehr
Bus <250m
Straßenbahn <2.500m
U-Bahn <2.750m
Bahnhof <250m
Autobahnanschluss <750m

Angaben Entfernung Luftlinie / Quelle: OpenStreetMap


*Der Vertrag kommt nicht mit der INFINA Credit Broker GmbH zustande. Das Objekt wird von einem externen Immobilienunternehmen angeboten. Allfällige aus dem Vertragsabschluss resultierende Rechte sind ausschließlich gegenüber dem anbietenden Immobilienunternehmen geltend zu machen. Wir weisen Sie darauf hin, dass die gemachten Angaben und Informationen lediglich unverbindliche Vorabinformationen sind und daher ohne Gewähr erfolgen.

Energieausweis & Heizung
HWB (kWh/m2/Jahr): 58.1
HWB Energieklasse C
fGEE: 0.91
fGEE Energieklasse C
Gültig bis: 25.07.2032
Heizung: Fußbodenheizung
Befeuerung: Luftwärmepumpe
Dokumente & Videos Pläne Dokument 1 Preisliste Planmappe
Partner von Infina EHL Wohnen Immobilienmakler
Sonstige:
Post: 560 m
Polizei: 360 m
Bank: 560 m
Geldautomat: 340 m
Kinder & Schulen:
Höhere Schule: 6980 m
Kindergarten: 310 m
Schule: 200 m
Universität: 1620 m
Verkehr:
Autobahnanschluss: 520 m
U-Bahn: 2990 m
Bus: 70 m
Straßenbahn: 2910 m
Bahnhof: 1740 m
Nahversorgung:
Supermarkt: 100 m
Bäckerei: 410 m
Einkaufszentrum: 440 m
Gesundheit:
Apotheke: 320 m
Arzt: 2220 m
Krankenhaus: 3230 m
Klinik: 4520 m

Jetzt Experten kontaktieren

Weitere interessante Objekte

Partner von Infina
Jetzt anfragen
6.688 €/m²
542.800 €
Partner von Infina
Jetzt anfragen
ca. 110,17 m² Wohnfläche 4 Zimmer
1.045.000 €
Partner von Infina
Jetzt anfragen
ca. 82,80 m² Wohnfläche 3 Zimmer
699.000 €
Partner von Infina
Jetzt anfragen
ca. 82,62 m² Wohnfläche 3 Zimmer
820.000 €
Partner von Infina
Jetzt anfragen
ca. 83,81 m² Wohnfläche 3 Zimmer
845.000 €
Partner von Infina
Jetzt anfragen
ca. 75,81 m² Wohnfläche 3 Zimmer
640.000 €
Partner von Infina
Jetzt anfragen
ca. 113,48 m² Wohnfläche 4 Zimmer
1.075.000 €
Partner von Infina
Jetzt anfragen
ca. 83,72 m² Wohnfläche 3 Zimmer
870.000 €
Partner von Infina
Jetzt anfragen
ca. 75,05 m² Wohnfläche 3 Zimmer
660.000 €

Immobilie kaufen: Das passende Angebot finden

Der Kauf einer Immobilie ist eine wichtige Entscheidung – sei es für die Eigennutzung oder zur Vermietung. Mit unserem Portal unterstützen wir Sie dabei, die richtige Immobilie zu kaufen. Nutzen Sie unsere Suchmöglichkeiten, um gezielt eine Immobilie zu suchen, die Ihren Vorstellungen entspricht. Unsere Immobilienangebote decken eine breite Palette ab: vom Einfamilienhaus über die Eigentumswohnung bis hin zum Grundstück für Ihr Bauvorhaben. Mit uns können Sie sicher und unkompliziert Eigentum erwerben – ob für die private Nutzung oder als Investition als Immobilie. Erkunden Sie jetzt unsere Angebote und finden Sie die perfekte Lösung, die zu Ihren Wohn- oder Anlagezielen passt.

Fundiertes Wissen für Ihre Entscheidung, eine Immobilie zu kaufen

Bereiten Sie sich bestens vor: Infina stellt Ihnen kostenlos über 300 Ratgeber und Beiträge zu den Themen Immobilie, Finanzierung, Zinsen und Recht zur Verfügung. Nutzen Sie unser umfassendes Wissen, um richtige Entscheidungen zu treffen.

Bei jedem Kauf einer Immobilie oder eines Grundstücks ist es wichtig, die passende Finanzierung zu finden. Mit seiner eigenen Vertriebsorganisation ist Infina als Wohnbau-Finanz-Experte an über 100 Standorten in ganz Österreich vertreten und vermittelt Finanzierungen an über 120 Banken und Bausparkassen. Nutzen Sie unseren kostenlosen Kreditvergleich für den passenden Wohnkredit: 

Kreditvergleich

Kostenlos und unverbindlich

Immobilie mieten: Ihr neues Zuhause wartet

Die Entscheidung, eine Immobilie zu mieten, bietet Flexibilität und zahlreiche Möglichkeiten – ob eine Wohnung für den Alltag oder ein Haus für die Familie. Bei Infina können Sie gezielt sowohl eine Wohnung suchen als auch ein Haus suchen, das Ihren Bedürfnissen entspricht. Unsere Angebote erleichtern es Ihnen, eine Mietwohnung zu suchen und Ihre ideale Wohnung finden zu können. Entdecken Sie vielfältige Optionen, um die passende Immobilie zu finden und Ihre Wohnträume zu verwirklichen. Starten Sie noch heute Ihre Suche und profitieren Sie von einer großen Auswahl an Mietobjekten in Ihrer Wunschregion.

Hilfreiche Informationen zu Immobilie mieten

Starten Sie gut vorbereitet in Ihre Mietentscheidung: Infina stellt Ihnen vielseitige Ratgeber und Beiträge zu Themen wie Immobilie, Mietrecht, Finanzierung und Wohntrends zur Verfügung. Verschaffen Sie sich einen Überblick über alle relevanten Aspekte und gestalten Sie Ihren Weg ins neue Zuhause einfacher und sicherer.

Erfolgreich zur neuen Immobilie

Mit Infina haben Sie einen verlässlichen Partner an Ihrer Seite, der Sie von der ersten Beratung bis zum erfolgreichen Abschluss ganzheitlich unterstützt. Erfahren Sie hier, wie wir gemeinsam Ihren Immobilienerfolg gestalten.

Starten Sie jetzt Ihre Immobiliensuche

Nach zahlreichen Informationen rund um die Themen Immobilie kaufen und Immobilie mieten können Sie nun den nächsten Schritt machen. Starten Sie die Immobiliensuche, um Ihr neues Zuhause oder Ihre nächste Investition zu finden und entdecken Sie die passenden Angebote:

Das innovative Portal für Immobilien und Finanzierung 

Als Kunde von Infina profitieren Sie von unserer umfangreichen und unabhängigen Expertise als Teil einer wachsenden, unabhängigen Immobilien- und Finanzierungsnetzwerkgruppe. Bereits 50.000 Kunden hat Infina erfolgreich bei Ihrem Vorhaben begleitet. Infina bietet Ihnen eine umfassende Beratung in allen Bereichen rund um Ihre Immobilienvorhaben:

Die passende Finanzierung für Ihre Immobilie

Mit Infina erhalten Sie nicht nur eine unabhängige Beratung, sondern auch die passende Finanzierungslösung für Ihre Immobilie. Aus den Angeboten von über 120 Banken und Bausparkassen vermitteln wir Ihnen das, was perfekt zu Ihren Bedürfnissen passt. Wir begleiten Sie professionell und verlässlich – von der ersten Beratung bis zum erfolgreichen Abschluss.

Kreditvergleich

Kostenlos und unverbindlich

Wir holen das Beste für Sie heraus

Verkaufen Sie Ihre Immobilie mit uns & profitieren Sie von unserer Expertise. Wir bringen Ihre Immobilie optimal auf den Markt & erzielen den besten Preis. 

Kontaktieren Sie uns jetzt.

Jetzt Experten kontaktieren
Junge Frau im pinken Blazer hält ein Modellhaus in der linken Hand und zeigt mit der rechten Hand nach oben, als hätte sie eine Idee. Sie lächelt und blickt leicht nach oben – symbolisch für Inspiration oder Immobilienberatung.