INFINA LOGO
Entspannt zur Immobilie Persönlich & kompetent beraten Finanzierbarkeit sofort überprüfbar
432.000 €
Kostenlos &
unverbindlich.
Kontakt aufnehmen

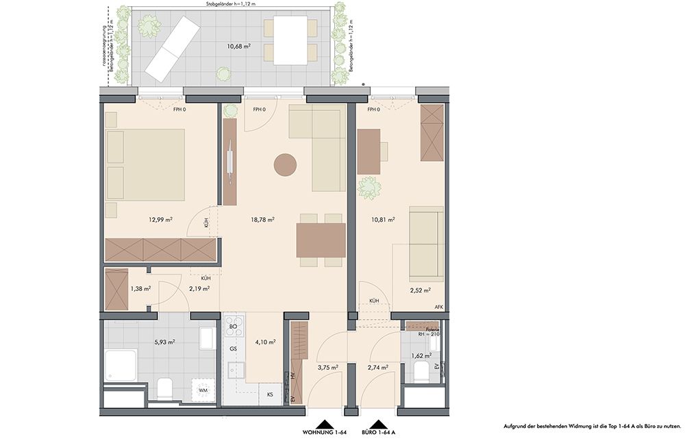
„Die Kompakte“: 3-Zimmer Wohnung mit Home-Office und 11 m² Balkon

Obj. Nr.: 23843

ca. 66,86 m² Wohnfläche 3 Zimmer
Partner von Infina ZIMA Bauträger 
Partner von Infina ZIMA Bauträger
432.000 € Kaufpreis der Immobilie Kreditvergleich von über 120 Banken mit Infina.
Immobilie finanzieren
Mehr Informationen zur Immobilie: Detaillierte Einblicke in dieses Objekt.
Zurück zur Übersicht

Objektstandort

1220 Wien, Ludwig-Reindl-Gasse 1, Senekowitschgasse 2

Directions Icon Fahrtzeit berechnen
Preisinformationen
Kaufpreis 432.000 €
Grundbucheintragung: 1.1 %
Grunderwerbsteuer: 3.5 %
Was kann ich mir leisten?
Jetzt berechnen

Objektinformationen

Objektart: Wohnung
Nutzungsart: Wohnen
Bauart: Neubau
Zustand: Erstbezug
barrierefrei: Ja

Rauminformationen & Flächen

Wohnfläche: ca. 66,86 m²
Balkonfläche: ca. 10,68 m²
Anzahl Balkone: 1
Anzahl Zimmer: 3

Ausstattung

Fahrstuhl: Personenaufzug

Beschreibung *

Das Roomeo in Wien-Donaustadt (U1 Kagraner Platz) bietet mit WohnenPlus eine neue Form des gemeinsamen Wohnens und Arbeitens mit einem Preisvorteil von ca. EUR 50.000,- für 4-Zimmer-Wohnungen und ca. EUR 20.000,- für 3-Zimmer-Wohnungen.

Zusätzlicher finanzieller Vorteil:
Durch den Entfall der Eintragungsgebühr bis Juni 2026 sparen Käufer aktuell weitere 2,3 % des Kaufpreises. Zudem handelt es sich um freifinanzierte Eigentumswohnungen ohne Maklerprovision, wodurch nochmals 3,6 % Kostenersparnis entstehen.

In den speziell gewidmeten WohnenPlus-Apartments finden Sie zusätzlich zum Wohnbereich einen Platz für Homeoffice bzw. Arbeitsbereiche für Selbstständige mit eigenem Eingang. So lässt sich der Alltag zwischen Arbeit und Familie ideal verbinden. Durch die gemischte Wohnform profitieren Sie zusätzlich von steuerlichen Vorteilen.

Äußerst geringe Betriebskosten von aktuell unter EUR 2,80/m² (konkret EUR 2,70/m², Stand Jänner 2025) sorgen langfristig für zusätzliche finanzielle Entlastung.

Specials wie ein kostenloses Fitnessstudio, stromsparende Balkonkraftwerke und Gartenbeete mit traumhafter Aussicht auf dem Dach erhöhen die Attraktivität dieser familienfreundlichen Wohnhausanlage.

Highlights:
Vielseitige Grundrisse für vielseitige Ansprüche von 30 m² bis 110 m²
Großzügige, über 2 m tiefe Freiflächen in allen Einheiten mit Größen ab 10 m²
Private Gartenbeete auf dem Dach, außerdem Outdoor-Bereich mit Küche
70 m² großer Fitnessraum mit Freibereich und Yoga-Raum
Photovoltaik an der Fassade und auf dem Dach
Hochwertige Ausszattung

Lage und Infrastruktur:
Mit der nahegelegenen U1-Station „Kagraner Platz“ ist die Alte Donau, die Donauinsel sowie die Innenstadt mit dem Stephansplatz und der Wiener Hauptbahnhof bequem erreichbar. Der neu geschaffene Ladinigpark und ein großzügiger Innenhof sorgen für grüne Erholung direkt vor der Haustüre. Mit dem Auto geht es in 3 Minuten zur Autobahn und raus aus der Stadt.

Bus 24A: vor der Haustür
U1 Kagraner Platz: 4 Busminuten
Autobahn A23: 3 Autominuten

Sie wünschen – Wir spielen:
Wählen Sie frei nach Ihren Bedürfnissen aus, wie viel Stauraum Sie brauchen oder welchen Platz Sie für Ihre Mobilität innerhalb der Stadt benötigen:

Einlagerungsmöglichkeiten von 2 bis 9 m² in allen Geschossen

Stellplätze für PKW (mit oder ohne Stromanschluss), Motorrad, Fahrrad, Lastenfahrrad oder E-Roller – alle haben ihren eigenen Platz

Privates Gartenbeet von 6 bis 13 m² inklusive Freibereich auf dem Dach

Weitere Wohnungen dieses Neubauprojekts finden Sie unter:
www.roomeo-wohnen.at

*Der Vertrag kommt nicht mit der INFINA Credit Broker GmbH zustande. Das Objekt wird von einem externen Immobilienunternehmen angeboten. Allfällige aus dem Vertragsabschluss resultierende Rechte sind ausschließlich gegenüber dem anbietenden Immobilienunternehmen geltend zu machen. Wir weisen Sie darauf hin, dass die gemachten Angaben und Informationen lediglich unverbindliche Vorabinformationen sind und daher ohne Gewähr erfolgen. Der Vermittler ist als Doppelmakler tätig.

Dokumente & Videos 1-64 807 v2 20250805 Immobilienvideo
Partner von Infina ZIMA Bauträger
Nahversorgung:
Supermarkt: 260 m
Einkaufszentrum: 690 m
Bäckerei: 950 m
Kinder & Schulen:
Höhere Schule: 1280 m
Universität: 2130 m
Schule: 330 m
Kindergarten: 190 m
Verkehr:
Autobahnanschluss: 770 m
Straßenbahn: 630 m
Bus: 50 m
U-Bahn: 970 m
Bahnhof: 980 m
Gesundheit:
Arzt: 290 m
Apotheke: 570 m
Klinik: 1450 m
Krankenhaus: 3790 m
Sonstige:
Polizei: 1040 m
Geldautomat: 650 m
Post: 1370 m
Bank: 1120 m

Jetzt Experten kontaktieren

Weitere interessante Objekte

Partner von Infina
Jetzt anfragen
2.846 €/m²
205.950 €
Partner von Infina
Jetzt anfragen
2.840 €/m²
214.900 €

Immobilie kaufen: Das passende Angebot finden

Der Kauf einer Immobilie ist eine wichtige Entscheidung – sei es für die Eigennutzung oder zur Vermietung. Mit unserem Portal unterstützen wir Sie dabei, die richtige Immobilie zu kaufen. Nutzen Sie unsere Suchmöglichkeiten, um gezielt eine Immobilie zu suchen, die Ihren Vorstellungen entspricht. Unsere Immobilienangebote decken eine breite Palette ab: vom Einfamilienhaus über die Eigentumswohnung bis hin zum Grundstück für Ihr Bauvorhaben. Mit uns können Sie sicher und unkompliziert Eigentum erwerben – ob für die private Nutzung oder als Investition als Immobilie. Erkunden Sie jetzt unsere Angebote und finden Sie die perfekte Lösung, die zu Ihren Wohn- oder Anlagezielen passt.

Fundiertes Wissen für Ihre Entscheidung, eine Immobilie zu kaufen

Bereiten Sie sich bestens vor: Infina stellt Ihnen kostenlos über 300 Ratgeber und Beiträge zu den Themen Immobilie, Finanzierung, Zinsen und Recht zur Verfügung. Nutzen Sie unser umfassendes Wissen, um richtige Entscheidungen zu treffen.

Bei jedem Kauf einer Immobilie oder eines Grundstücks ist es wichtig, die passende Finanzierung zu finden. Mit seiner eigenen Vertriebsorganisation ist Infina als Wohnbau-Finanz-Experte an über 100 Standorten in ganz Österreich vertreten und vermittelt Finanzierungen an über 150 Banken und Bausparkassen. Nutzen Sie unseren kostenlosen Kreditvergleich für den passenden Wohnkredit: 

Kreditvergleich

Kostenlos und unverbindlich

Immobilie mieten: Ihr neues Zuhause wartet

Die Entscheidung, eine Immobilie zu mieten, bietet Flexibilität und zahlreiche Möglichkeiten – ob eine Wohnung für den Alltag oder ein Haus für die Familie. Bei Infina können Sie gezielt sowohl eine Wohnung suchen als auch ein Haus suchen, das Ihren Bedürfnissen entspricht. Unsere Angebote erleichtern es Ihnen, eine Mietwohnung zu suchen und Ihre ideale Wohnung finden zu können. Entdecken Sie vielfältige Optionen, um die passende Immobilie zu finden und Ihre Wohnträume zu verwirklichen. Starten Sie noch heute Ihre Suche und profitieren Sie von einer großen Auswahl an Mietobjekten in Ihrer Wunschregion.

Hilfreiche Informationen zu Immobilie mieten

Starten Sie gut vorbereitet in Ihre Mietentscheidung: Infina stellt Ihnen vielseitige Ratgeber und Beiträge zu Themen wie Immobilie, Mietrecht, Finanzierung und Wohntrends zur Verfügung. Verschaffen Sie sich einen Überblick über alle relevanten Aspekte und gestalten Sie Ihren Weg ins neue Zuhause einfacher und sicherer.

Erfolgreich zur neuen Immobilie

Mit Infina haben Sie einen verlässlichen Partner an Ihrer Seite, der Sie von der ersten Beratung bis zum erfolgreichen Abschluss ganzheitlich unterstützt. Erfahren Sie hier, wie wir gemeinsam Ihren Immobilienerfolg gestalten.

Starten Sie jetzt Ihre Immobiliensuche

Nach zahlreichen Informationen rund um die Themen Immobilie kaufen und Immobilie mieten können Sie nun den nächsten Schritt machen. Starten Sie die Immobiliensuche, um Ihr neues Zuhause oder Ihre nächste Investition zu finden und entdecken Sie die passenden Angebote:

Das innovative Portal für Immobilien und Finanzierung 

Als Kunde von Infina profitieren Sie von unserer umfangreichen und unabhängigen Expertise als Teil einer wachsenden, unabhängigen Immobilien- und Finanzierungsnetzwerkgruppe. Bereits 50.000 Kunden hat Infina erfolgreich bei Ihrem Vorhaben begleitet. Infina bietet Ihnen eine umfassende Beratung in allen Bereichen rund um Ihre Immobilienvorhaben:

Die passende Finanzierung für Ihre Immobilie

Mit Infina erhalten Sie nicht nur eine unabhängige Beratung, sondern auch die passende Finanzierungslösung für Ihre Immobilie. Aus den Angeboten von über 150 Banken und Bausparkassen vermitteln wir Ihnen das, was perfekt zu Ihren Bedürfnissen passt. Wir begleiten Sie professionell und verlässlich – von der ersten Beratung bis zum erfolgreichen Abschluss.

Kreditvergleich

Kostenlos und unverbindlich

Wir holen das Beste für Sie heraus

Verkaufen Sie Ihre Immobilie mit uns & profitieren Sie von unserer Expertise. Wir bringen Ihre Immobilie optimal auf den Markt & erzielen den besten Preis. 

Kontaktieren Sie uns jetzt.

Jetzt Experten kontaktieren
Junge Frau im pinken Blazer hält ein Modellhaus in der linken Hand und zeigt mit der rechten Hand nach oben, als hätte sie eine Idee. Sie lächelt und blickt leicht nach oben – symbolisch für Inspiration oder Immobilienberatung.