INFINA LOGO
Entspannt zur Immobilie Persönlich & kompetent beraten Finanzierbarkeit sofort überprüfbar
498.000 €
Kostenlos &
unverbindlich.
Kontakt aufnehmen

TRAUMLAGE AM MÜHLWASSER!: TOP PREIS! I ERSTBEZUG Dachgeschosswohnung I KLIMATISIERT I Gemeinschaftsgarten I Lift I Garagenstellplatz

Obj. Nr.: 18929

ca. 139,80 m² Nutzfläche 3 Zimmer
Partner von Infina Alexander Ringsmuth Immobilien Immobilienmakler 
Partner von Infina Alexander Ringsmuth Immobilien Immobilienmakler
498.000 € Kaufpreis der Immobilie Kreditvergleich von über 120 Banken mit Infina.
Immobilie finanzieren
Mehr Informationen zur Immobilie: Detaillierte Einblicke in dieses Objekt.
Zurück zur Übersicht

Objektstandort

1220 Wien Adresse anfragen

Directions Icon Fahrtzeit berechnen
Preisinformationen
Kaufpreis 498.000 €
Grundbucheintragung: 1.1 %
Grunderwerbsteuer: 3.5 %
Was kann ich mir leisten?
Jetzt berechnen
Maklerprovision:
3,00 % des Kaufpreises zzgl. 20 % USt.

Objektinformationen

Objektart: Wohnung
Unterobjektart: Dachgeschoß
Nutzungsart: Wohnen
Bauart: Neubau
Zustand: Erstbezug
barrierefrei: Ja

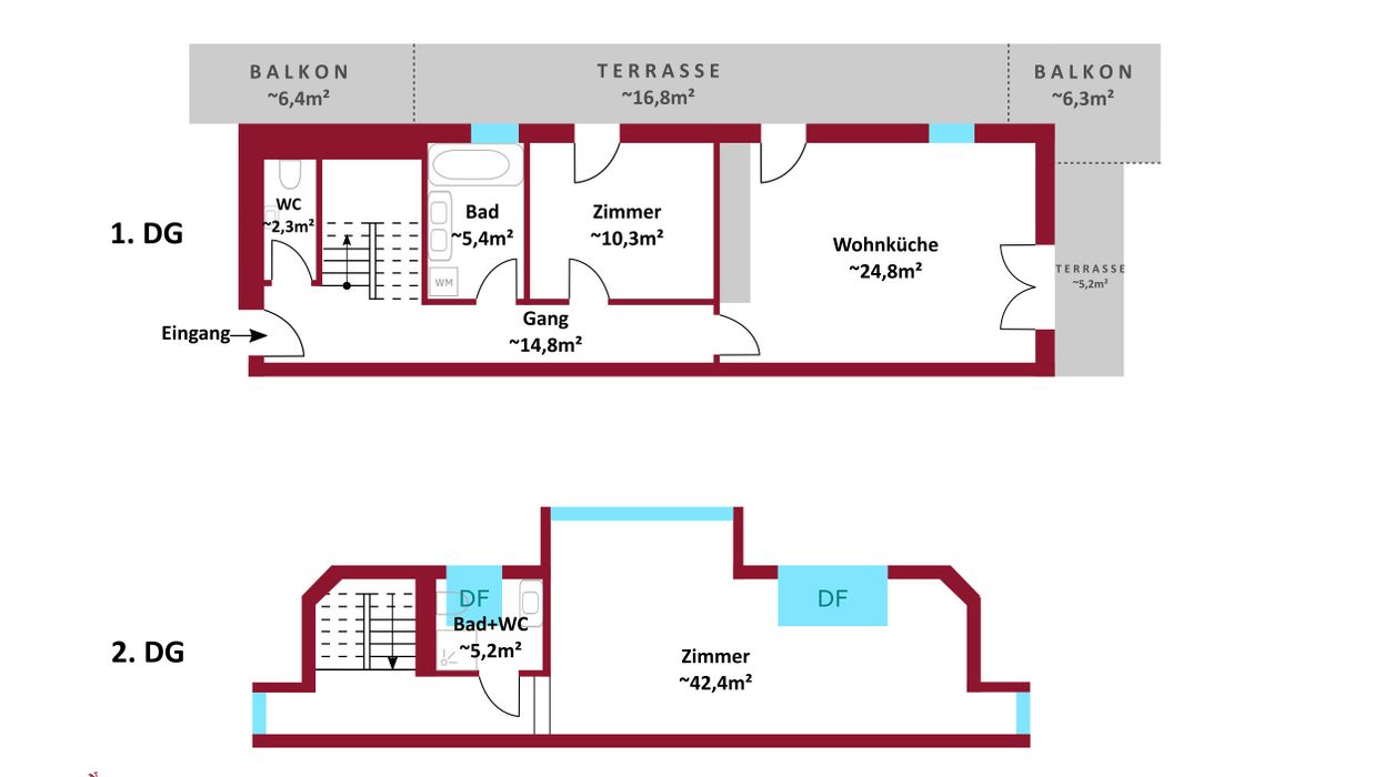
Rauminformationen & Flächen

Wohnfläche: ca. 105,10 m²
Nutzfläche: ca. 139,80 m²
Terrassenfläche: ca. 34,70 m²
Anzahl Terrassen: 1
Anzahl Zimmer: 3
Anzahl WC: 2
Anzahl Bäder: 2

Ausstattung

Boden: Fliesen, Parkett
Heizungsart: Fußbodenheizung
Fahrstuhl: Personenaufzug
Balkon: Südbalkon / -terrasse, Westbalkon / -terrasse
Bad: Dusche, Badewanne, Bad mit Fenster
Belüftung: Klimaanlage
Räume: Räume veränderbar
WCs: Gäste-WC
Ausbaustufe: Schlüsselfertig mit Keller

Lage

Lage und Verkehrsmittel:

Bus 93A (160 m) zur U2-Station "Aspernstraße" in nur 10 Minuten
Nahversorgung: Supermärkte (Billa, Spar, etc.) in wenigen Autominuten
Donau-Auen und Erholung am Oberen Mühlwasser

Beschreibung *

Diese moderne Dachgeschoss-Maisonette vereint erstklassige Ausstattung, großzügige Freiflächen und eine einmalige Grünruhelage direkt am Oberen Mühlwasser. Auf 105,10 m² Wohnfläche und 34,7 m² Rundum-Terrassen erwartet Sie ein lichtdurchflutetes Zuhause, das keine Wünsche offen lässt. Ideal für Naturliebhaber und gleichzeitig bestens angebunden – die U2 und Innenstadt sind schnell erreichbar.

Die Wohnung befindet sich in einer der attraktivsten Grünruhelagen Wiens, direkt am Oberen Mühlwasser . Umgeben von den Naherholungsgebieten des Nationalparks Donau-Auen und der Donauinsel bietet diese Lage ideale Möglichkeiten für Spaziergänge , sportliche Aktivitäten oder einfach zum Entspannen inmitten der Natur. Trotz der ruhigen Umgebung ist die Anbindung ausgezeichnet: Die U2-Station Aspernstraße ist mit dem Bus 93A in nur 10 Minuten erreichbar. Einkaufsmöglichkeiten wie Billa, Spar und weitere Nahversorger befinden sich ebenfalls in kurzer Entfernung.

Einige (von vielen) Highlights: 

  • Erstbezug
  • 34,7 m² Terrassen und Balkone mit Rundumblick
  • Klimaanlage im Obergeschoss
  • Fußbodenheizung und -kühlung
  • Hochwertiger Eichenparkettboden
  • Elektrische Außenjalousien
  • 3-fach verglaste Fenster für optimale Dämmung
  • Zugang zum Gemeinschaftsgarten

Raumaufteilung:

  • Großzügiger Wohn- und Essbereich (24,78 m²) mit offener Wohnküche
  • Zwei separat begehbare Schlafzimmer, eines davon mit   42,4 m²
  • Zwei moderne Badezimmer mit Fenster – eines mit Badewanne, eines mit Dusche
  • Praktisches Gäste-WC und ein geräumiger Eingangsbereich (14,8 m²)

Individuelle Gestaltung:

Sie möchten die Raumaufteilung an Ihre Bedürfnisse anpassen? Auf Anfrage stehen Ihnen Planvorschläge zur Verfügung, um zusätzliche Zimmer oder Änderungen umzusetzen (gegen Aufpreis).

 

Lage und Verkehrsmittel:

  • Bus 93A (160 m) zur U2-Station "Aspernstraße" in nur 10 Minuten
  • Nahversorgung: Supermärkte (Billa, Spar, etc.) in wenigen Autominuten
  • Donau-Auen und Erholung am Oberen Mühlwasser

Energieausweis:

  • HWB: 32,9 kWh/m²a (Klasse B)
  • fGEE: 0,69 (Klasse A+)

Betriebskosten:

  • Netto € 2,05/NFL

Kaufpreis:

  • 498.000 € (schlüsselfertig, ohne Küche)
  • Tiefgaragenplatz optional : 28.000,-- €  


Gerne steht Ihnen Frau Elina Strautmane für weitere Fragen bzw. flexibel gestaltbare Besichtigungstermine unter 0664 99 52 3313  zur Verfügung.  

www.ringsmuth-immobilien.at

Irrtum und Änderungen vorbehalten!

Der Vermittler ist als Doppelmakler tätig.


Infrastruktur / Entfernungen

Gesundheit
Arzt <1.000m
Apotheke <1.500m
Klinik <2.000m
Krankenhaus <2.500m

Kinder & Schulen
Schule <1.500m
Kindergarten <1.500m
Universität <3.000m
Höhere Schule <3.000m

Nahversorgung
Supermarkt <1.000m
Bäckerei <1.500m
Einkaufszentrum <4.500m

Sonstige
Geldautomat <1.500m
Bank <1.500m
Post <2.000m
Polizei <2.000m

Verkehr
Bus <500m
U-Bahn <2.500m
Straßenbahn <2.000m
Bahnhof <2.500m
Autobahnanschluss <3.500m

Angaben Entfernung Luftlinie / Quelle: OpenStreetMap


*Der Vertrag kommt nicht mit der INFINA Credit Broker GmbH zustande. Das Objekt wird von einem externen Immobilienunternehmen angeboten. Allfällige aus dem Vertragsabschluss resultierende Rechte sind ausschließlich gegenüber dem anbietenden Immobilienunternehmen geltend zu machen. Wir weisen Sie darauf hin, dass die gemachten Angaben und Informationen lediglich unverbindliche Vorabinformationen sind und daher ohne Gewähr erfolgen.

Energieausweis & Heizung
HWB (kWh/m2/Jahr): 32.9
HWB Energieklasse: Energieeffizienzklasse B
fGEE: 0.69
fGEE Energieklasse: Energieeffizienzklasse A+
Gültig bis: 21.06.2031
Heizung: Fußbodenheizung
Dokumente & Videos Pläne
Partner von Infina Alexander Ringsmuth Immobilien Immobilienmakler
Kinder & Schulen:
Universität: 2490 m
Höhere Schule: 2450 m
Kindergarten: 470 m
Schule: 540 m
Sonstige:
Post: 430 m
Geldautomat: 330 m
Polizei: 440 m
Bank: 340 m
Gesundheit:
Apotheke: 350 m
Klinik: 1730 m
Arzt: 320 m
Krankenhaus: 2310 m
Verkehr:
Autobahnanschluss: 1660 m
U-Bahn: 380 m
Bus: 320 m
Straßenbahn: 440 m
Bahnhof: 400 m
Nahversorgung:
Supermarkt: 380 m
Einkaufszentrum: 1810 m
Bäckerei: 480 m

Jetzt Experten kontaktieren

Weitere interessante Objekte

Partner von Infina
Jetzt anfragen
ca. 126,60 m² Wohnfläche 4,5 Zimmer
349.000 €
Partner von Infina
Jetzt anfragen
ca. 134,42 m² Nutzfläche 4 Zimmer
690.000 €
Partner von Infina
Jetzt anfragen
ca. 137,36 m² Nutzfläche 3 Zimmer
580.000 €
Partner von Infina
Jetzt anfragen
6.162 €/m²
826.100 €
Partner von Infina
Jetzt anfragen
1.750.000 €
Partner von Infina
Jetzt anfragen
1.890.000 €

Immobilie kaufen: Das passende Angebot finden

Der Kauf einer Immobilie ist eine wichtige Entscheidung – sei es für die Eigennutzung oder zur Vermietung. Mit unserem Portal unterstützen wir Sie dabei, die richtige Immobilie zu kaufen. Nutzen Sie unsere Suchmöglichkeiten, um gezielt eine Immobilie zu suchen, die Ihren Vorstellungen entspricht. Unsere Immobilienangebote decken eine breite Palette ab: vom Einfamilienhaus über die Eigentumswohnung bis hin zum Grundstück für Ihr Bauvorhaben. Mit uns können Sie sicher und unkompliziert Eigentum erwerben – ob für die private Nutzung oder als Investition als Immobilie. Erkunden Sie jetzt unsere Angebote und finden Sie die perfekte Lösung, die zu Ihren Wohn- oder Anlagezielen passt.

Fundiertes Wissen für Ihre Entscheidung, eine Immobilie zu kaufen

Bereiten Sie sich bestens vor: Infina stellt Ihnen kostenlos über 300 Ratgeber und Beiträge zu den Themen Immobilie, Finanzierung, Zinsen und Recht zur Verfügung. Nutzen Sie unser umfassendes Wissen, um richtige Entscheidungen zu treffen.

Bei jedem Kauf einer Immobilie oder eines Grundstücks ist es wichtig, die passende Finanzierung zu finden. Mit seiner eigenen Vertriebsorganisation ist Infina als Wohnbau-Finanz-Experte an über 100 Standorten in ganz Österreich vertreten und vermittelt Finanzierungen an über 120 Banken und Bausparkassen. Nutzen Sie unseren kostenlosen Kreditvergleich für den passenden Wohnkredit: 

Kreditvergleich

Kostenlos und unverbindlich

Immobilie mieten: Ihr neues Zuhause wartet

Die Entscheidung, eine Immobilie zu mieten, bietet Flexibilität und zahlreiche Möglichkeiten – ob eine Wohnung für den Alltag oder ein Haus für die Familie. Bei Infina können Sie gezielt sowohl eine Wohnung suchen als auch ein Haus suchen, das Ihren Bedürfnissen entspricht. Unsere Angebote erleichtern es Ihnen, eine Mietwohnung zu suchen und Ihre ideale Wohnung finden zu können. Entdecken Sie vielfältige Optionen, um die passende Immobilie zu finden und Ihre Wohnträume zu verwirklichen. Starten Sie noch heute Ihre Suche und profitieren Sie von einer großen Auswahl an Mietobjekten in Ihrer Wunschregion.

Hilfreiche Informationen zu Immobilie mieten

Starten Sie gut vorbereitet in Ihre Mietentscheidung: Infina stellt Ihnen vielseitige Ratgeber und Beiträge zu Themen wie Immobilie, Mietrecht, Finanzierung und Wohntrends zur Verfügung. Verschaffen Sie sich einen Überblick über alle relevanten Aspekte und gestalten Sie Ihren Weg ins neue Zuhause einfacher und sicherer.

Erfolgreich zur neuen Immobilie

Mit Infina haben Sie einen verlässlichen Partner an Ihrer Seite, der Sie von der ersten Beratung bis zum erfolgreichen Abschluss ganzheitlich unterstützt. Erfahren Sie hier, wie wir gemeinsam Ihren Immobilienerfolg gestalten.

Starten Sie jetzt Ihre Immobiliensuche

Nach zahlreichen Informationen rund um die Themen Immobilie kaufen und Immobilie mieten können Sie nun den nächsten Schritt machen. Starten Sie die Immobiliensuche, um Ihr neues Zuhause oder Ihre nächste Investition zu finden und entdecken Sie die passenden Angebote:

Das innovative Portal für Immobilien und Finanzierung 

Als Kunde von Infina profitieren Sie von unserer umfangreichen und unabhängigen Expertise als Teil einer wachsenden, unabhängigen Immobilien- und Finanzierungsnetzwerkgruppe. Bereits 50.000 Kunden hat Infina erfolgreich bei Ihrem Vorhaben begleitet. Infina bietet Ihnen eine umfassende Beratung in allen Bereichen rund um Ihre Immobilienvorhaben:

Die passende Finanzierung für Ihre Immobilie

Mit Infina erhalten Sie nicht nur eine unabhängige Beratung, sondern auch die passende Finanzierungslösung für Ihre Immobilie. Aus den Angeboten von über 120 Banken und Bausparkassen vermitteln wir Ihnen das, was perfekt zu Ihren Bedürfnissen passt. Wir begleiten Sie professionell und verlässlich – von der ersten Beratung bis zum erfolgreichen Abschluss.

Kreditvergleich

Kostenlos und unverbindlich

Wir holen das Beste für Sie heraus

Verkaufen Sie Ihre Immobilie mit uns & profitieren Sie von unserer Expertise. Wir bringen Ihre Immobilie optimal auf den Markt & erzielen den besten Preis. 

Kontaktieren Sie uns jetzt.

Jetzt Experten kontaktieren
Junge Frau im pinken Blazer hält ein Modellhaus in der linken Hand und zeigt mit der rechten Hand nach oben, als hätte sie eine Idee. Sie lächelt und blickt leicht nach oben – symbolisch für Inspiration oder Immobilienberatung.