INFINA LOGO
Entspannt zur Immobilie Persönlich & kompetent beraten Finanzierbarkeit sofort überprüfbar
647.000 €
Kostenlos &
unverbindlich.
Kontakt aufnehmen

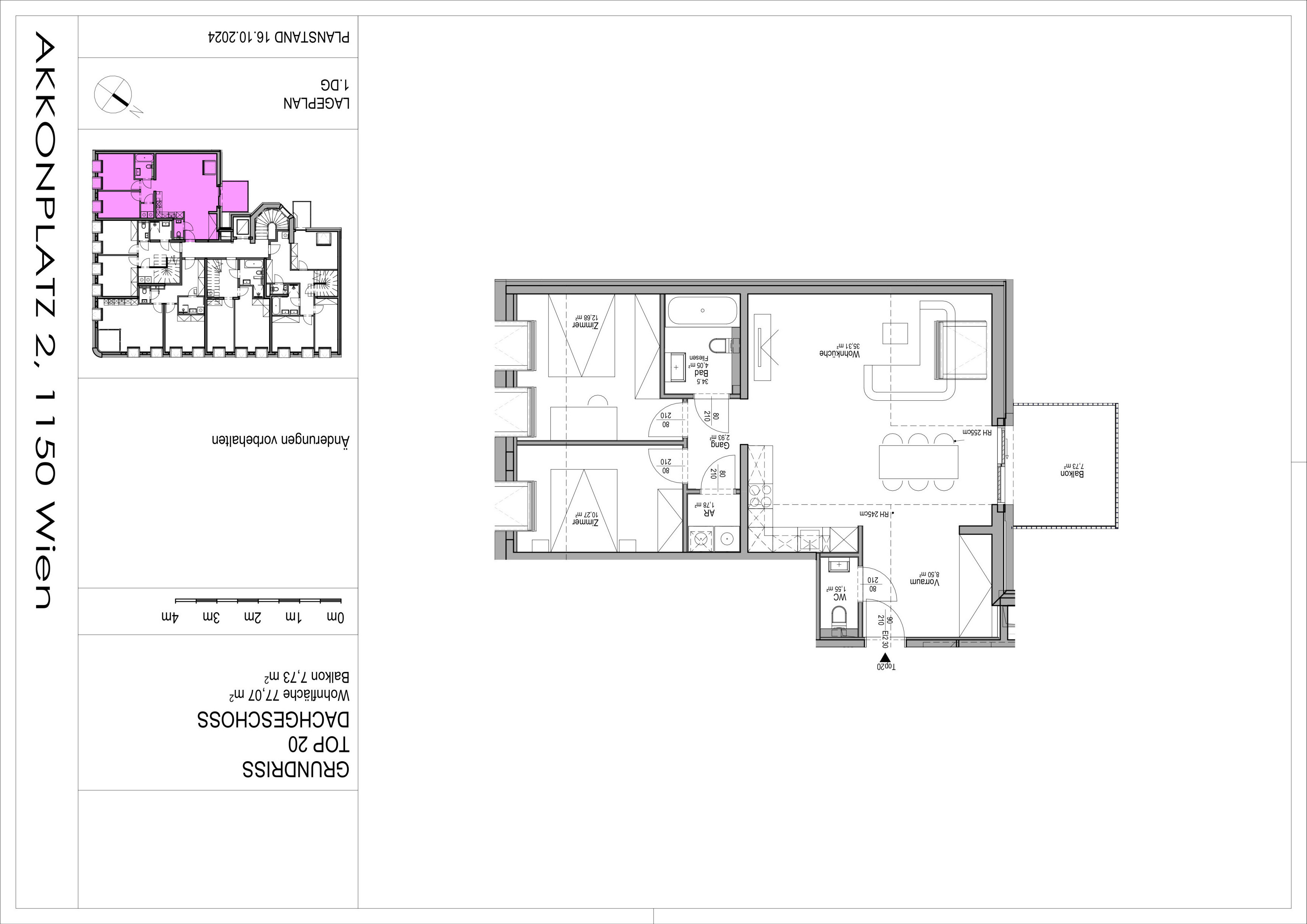
3-Zimmer-Dachgeschosswohnung (Massivbauweise) mit Balkon in generalsaniertem Altbau

Obj. Nr.: 17218

ca. 77,07 m² Wohnfläche 3 Zimmer
Partner von Infina J. Rainer & Partner Immobilien Immobilienmakler / Bauträger 
Partner von Infina J. Rainer & Partner Immobilien Immobilienmakler / Bauträger
647.000 € Kaufpreis der Immobilie Kreditvergleich von über 120 Banken mit Infina.
Immobilie finanzieren
Mehr Informationen zur Immobilie: Detaillierte Einblicke in dieses Objekt.
Zurück zur Übersicht

Objektstandort

1150 Wien, Akkonplatz 2/20

Directions Icon Fahrtzeit berechnen
Preisinformationen
Kaufpreis 647.000 €
Betriebskosten inkl. USt. 138,49 €
Heizkosten inkl. USt. 49,75 €
Sonstige Kosten inkl. USt. 56,66 €
Grundbucheintragung: 1.1 %
Grunderwerbsteuer: 3.5 %
Was kann ich mir leisten?
Jetzt berechnen
Maklerprovision:
3,00 % des Kaufpreises zzgl. 20 % USt.

Objektinformationen

Objektart: Wohnung
Unterobjektart: Dachgeschoß
Nutzungsart: Wohnen
Bauart: Altbau
Zustand: Erstbezug
Baujahr: 1900

Rauminformationen & Flächen

Wohnfläche: ca. 77,07 m²
Kellerfläche: ca. 2,50 m²
Balkonfläche: ca. 7,73 m²
Anzahl Balkone: 1
Anzahl Zimmer: 3
Anzahl WC: 2
Anzahl Bäder: 1

Ausstattung

Boden: Fliesen, Parkett
Befeuerung: Luftwärmepumpe
Heizungsart: Fußbodenheizung
Fahrstuhl: Personenaufzug
Bad: Badewanne
Fernsehen: Kabel / Satelliten-TV
Bauweise: Massiv

Lage

Die sehr attraktive Lage besticht durch ihre unmittelbare Nähe zum aufstrebenden Viertel rund um den MEISELMARKT. Ebenso ist eine perfekte Nahversorgung (BILLA, EUROSPAR, DM, MEISELMARKT, APOTHEKE, Citybaumarkt etc.) und Bildungseinrichtungen gegeben.

Weiters befindet sich die Liegenschaft unweit des Naherholungsgebietes "AUF DER SCHMELZ" mit seiner Parkanlage, seinem Kinderspielplatz und dem Schutzhaus.

Ebenso ist die WIENER STADTHALLE als Veranstaltungszentrum (Events, Konzerte, Sportveranstaltungen) und Sportstätte (Hallenbad, Eishalle) leicht zu erreichen.

VERKEHRSVERBINDUNGEN:

Das Projekt " AKKONPLATZ 2" zeichnet sich durch seine ideale Verkehrsanbindung aus. Durch die nahe Anbindung an die U-Bahn U3 und die Straßenbahnlinien 49 und 10 ist man mit den öffentlichen Linien sowohl schnell im Grünen als auch autofrei in der Innenstadt.

U-BAHN STATIONEN:
U 3 - Johnstraße (Meiselmarkt)
U 3 - Hütteldorfer Straße

STRASSENBAHNLINIEN:
Linie 49 (Volkstheater, Burggarten, Museen)
Linie 10 (Schloss und Tierpark Schönbrunn)

BUSLINIEN:
Linie 10 A und 12 A

Beschreibung *

DAS PROJEKT:

Das Projekt "AKKONPLATZ" befindet sich in einem historischen Gebäude, das in den Jahren 1913 bis 1914 vom Architekten August Ribak in spätsecessionistischem Stil errichtet wurde.

Es entstehen 22 Wohneinheiten, die fast alle über Freiflächen (Garten/Balkon/Terrasse) verfügen. Weiters wird die Liegenschaft generalsaniert.

Die 22 Wohnungen teilen sich wie folgt auf:

  • 10 generalsanierte Altbauwohnungen für Endnutzer bzw. Anleger
  • 7 generalsanierte Altbauwohnungen mit Widmung “ Kurzzeitvermietung ” (z.B.: für AirBNB)
  • 5 Dachgeschosswohnungen in Massivbauweise

Die Größen der Wohnungen in Verbindung mit erstklassiger Ausstattung und Bauqualität sowie der guten Lage machen das Projekt "AKKONPLATZ 2" auch attraktiv für Anleger, die auf der Suche nach einer soliden Vorsorgewohnung sind.

Das Wohnhaus besteht aus Kellergeschoss, Erdgeschoss, drei Obergeschossen und einem Dachgeschoss. Die Geschosse sind alle mit einem behindertengerechten Personenaufzug erreichbar.  Jeder Wohnung ist ein Kellerabteil zugeordnet. Ein Kinderwagen/Fahrradabstellbereich ist auf der Liegenschaft vorhanden.

Die Wohnungen werden über umweltfreundliche Luftwärmepumpen beheizt bzw. gekühlt.

DIE FAKTEN:

  • Generalsanierung der Allgemeinflächen
  • 37 m² bis 150 m² Wohnfläche
  • 1 bis 4-Zimmer-Wohnungen
  • Teilweise Balkon, Terrasse oder Garten
  • Topausstattung
  • behindertengerechter Personenlift
  • Fahrrad/Kinderwagenabstellbereich
  • Kellerabteile
  • Schlüsselfertige Übergabe Frühjahr 2025

DIE AUSSTATTUNG:

  • Luft-Wärmepumpe
  • Alle Wohnungen mit Kühlfunktion über Kühldecken (L/W-Wärmepumpe)
  • Fußbodenheizung (-kühlung)
  • Großzügige Sanitärbereiche (Feinsteinzeug 60x30/60x60)
  • Eichenparkettböden
  • Großformatige Feinsteinzeugfliesen (Bad/WC)
  • Gegensprechanlage

Weitere Wohnungen und Unterlagen zu diesem Projekt finden Sie auch unter der Projekthomepage

www.akkonplatz2.at

Wir weisen darauf hin, dass zwischen dem Vermittler und dem zu vermittelnden Dritten ein familiäres oder wirtschaftliches Naheverhältnis besteht.

Der Vermittler ist als Doppelmakler tätig.


Infrastruktur / Entfernungen

Gesundheit
Arzt <225m
Apotheke <300m
Klinik <1.175m
Krankenhaus <1.500m

Kinder & Schulen
Schule <275m
Kindergarten <300m
Universität <425m
Höhere Schule <750m

Nahversorgung
Supermarkt <125m
Bäckerei <300m
Einkaufszentrum <525m

Sonstige
Geldautomat <325m
Bank <375m
Post <375m
Polizei <575m

Verkehr
Bus <50m
U-Bahn <325m
Straßenbahn <300m
Bahnhof <325m
Autobahnanschluss <4.875m

Angaben Entfernung Luftlinie / Quelle: OpenStreetMap


*Wir weisen Sie darauf hin, dass die gemachten Angaben und Informationen lediglich unverbindliche Vorabinformationen sind und daher ohne Gewähr erfolgen. Die Angaben beruhen auf Informationen und Unterlagen, die uns von Dritten bereitgestellt wurden.

Energieausweis & Heizung
HWB (kWh/m2/Jahr): 35.6
HWB Energieklasse A
fGEE: 0.65
fGEE Energieklasse A
Gültig bis: 28.02.2034
Heizung: Fußbodenheizung
Befeuerung: Luftwärmepumpe
Dokumente & Videos Pläne Dokument 1
Partner von Infina J. Rainer & Partner Immobilien Immobilienmakler / Bauträger
Kinder & Schulen:
Kindergarten: 290 m
Höhere Schule: 750 m
Universität: 320 m
Schule: 270 m
Gesundheit:
Apotheke: 280 m
Klinik: 1170 m
Arzt: 230 m
Krankenhaus: 1480 m
Nahversorgung:
Supermarkt: 110 m
Bäckerei: 300 m
Einkaufszentrum: 530 m
Verkehr:
U-Bahn: 320 m
Autobahnanschluss: 4880 m
Bus: 40 m
Straßenbahn: 300 m
Bahnhof: 330 m
Sonstige:
Post: 370 m
Polizei: 560 m
Bank: 370 m
Geldautomat: 320 m

Jetzt Experten kontaktieren

Weitere interessante Objekte

Partner von Infina
Jetzt anfragen
ca. 83,64 m² Nutzfläche 3 Zimmer
460.000 €
Partner von Infina
Jetzt anfragen
ca. 93,38 m² Nutzfläche 4 Zimmer
821.800 €
Partner von Infina
Jetzt anfragen
ca. 58,98 m² Wohnfläche 3 Zimmer
3.730 €/m²
220.000 €
Partner von Infina
Jetzt anfragen
ca. 67,37 m² Wohnfläche 3 Zimmer
4.423 €/m²
298.000 €
Partner von Infina
Jetzt anfragen
4.460 €/m²
359.000 €
Partner von Infina
Jetzt anfragen
2.761 €/m²
242.500 €

Immobilie kaufen: Das passende Angebot finden

Der Kauf einer Immobilie ist eine wichtige Entscheidung – sei es für die Eigennutzung oder zur Vermietung. Mit unserem Portal unterstützen wir Sie dabei, die richtige Immobilie zu kaufen. Nutzen Sie unsere Suchmöglichkeiten, um gezielt eine Immobilie zu suchen, die Ihren Vorstellungen entspricht. Unsere Immobilienangebote decken eine breite Palette ab: vom Einfamilienhaus über die Eigentumswohnung bis hin zum Grundstück für Ihr Bauvorhaben. Mit uns können Sie sicher und unkompliziert Eigentum erwerben – ob für die private Nutzung oder als Investition als Immobilie. Erkunden Sie jetzt unsere Angebote und finden Sie die perfekte Lösung, die zu Ihren Wohn- oder Anlagezielen passt.

Fundiertes Wissen für Ihre Entscheidung, eine Immobilie zu kaufen

Bereiten Sie sich bestens vor: Infina stellt Ihnen kostenlos über 300 Ratgeber und Beiträge zu den Themen Immobilie, Finanzierung, Zinsen und Recht zur Verfügung. Nutzen Sie unser umfassendes Wissen, um richtige Entscheidungen zu treffen.

Bei jedem Kauf einer Immobilie oder eines Grundstücks ist es wichtig, die passende Finanzierung zu finden. Mit seiner eigenen Vertriebsorganisation ist Infina als Wohnbau-Finanz-Experte an über 100 Standorten in ganz Österreich vertreten und vermittelt Finanzierungen an über 120 Banken und Bausparkassen. Nutzen Sie unseren kostenlosen Kreditvergleich für den passenden Wohnkredit: 

Kreditvergleich

Kostenlos und unverbindlich

Immobilie mieten: Ihr neues Zuhause wartet

Die Entscheidung, eine Immobilie zu mieten, bietet Flexibilität und zahlreiche Möglichkeiten – ob eine Wohnung für den Alltag oder ein Haus für die Familie. Bei Infina können Sie gezielt sowohl eine Wohnung suchen als auch ein Haus suchen, das Ihren Bedürfnissen entspricht. Unsere Angebote erleichtern es Ihnen, eine Mietwohnung zu suchen und Ihre ideale Wohnung finden zu können. Entdecken Sie vielfältige Optionen, um die passende Immobilie zu finden und Ihre Wohnträume zu verwirklichen. Starten Sie noch heute Ihre Suche und profitieren Sie von einer großen Auswahl an Mietobjekten in Ihrer Wunschregion.

Hilfreiche Informationen zu Immobilie mieten

Starten Sie gut vorbereitet in Ihre Mietentscheidung: Infina stellt Ihnen vielseitige Ratgeber und Beiträge zu Themen wie Immobilie, Mietrecht, Finanzierung und Wohntrends zur Verfügung. Verschaffen Sie sich einen Überblick über alle relevanten Aspekte und gestalten Sie Ihren Weg ins neue Zuhause einfacher und sicherer.

Erfolgreich zur neuen Immobilie

Mit Infina haben Sie einen verlässlichen Partner an Ihrer Seite, der Sie von der ersten Beratung bis zum erfolgreichen Abschluss ganzheitlich unterstützt. Erfahren Sie hier, wie wir gemeinsam Ihren Immobilienerfolg gestalten.

Starten Sie jetzt Ihre Immobiliensuche

Nach zahlreichen Informationen rund um die Themen Immobilie kaufen und Immobilie mieten können Sie nun den nächsten Schritt machen. Starten Sie die Immobiliensuche, um Ihr neues Zuhause oder Ihre nächste Investition zu finden und entdecken Sie die passenden Angebote:

Das innovative Portal für Immobilien und Finanzierung 

Als Kunde von Infina profitieren Sie von unserer umfangreichen und unabhängigen Expertise als Teil einer wachsenden, unabhängigen Immobilien- und Finanzierungsnetzwerkgruppe. Bereits 50.000 Kunden hat Infina erfolgreich bei Ihrem Vorhaben begleitet. Infina bietet Ihnen eine umfassende Beratung in allen Bereichen rund um Ihre Immobilienvorhaben:

Die passende Finanzierung für Ihre Immobilie

Mit Infina erhalten Sie nicht nur eine unabhängige Beratung, sondern auch die passende Finanzierungslösung für Ihre Immobilie. Aus den Angeboten von über 120 Banken und Bausparkassen vermitteln wir Ihnen das, was perfekt zu Ihren Bedürfnissen passt. Wir begleiten Sie professionell und verlässlich – von der ersten Beratung bis zum erfolgreichen Abschluss.

Kreditvergleich

Kostenlos und unverbindlich

Wir holen das Beste für Sie heraus

Verkaufen Sie Ihre Immobilie mit uns & profitieren Sie von unserer Expertise. Wir bringen Ihre Immobilie optimal auf den Markt & erzielen den besten Preis. 

Kontaktieren Sie uns jetzt.

Jetzt Experten kontaktieren
Junge Frau im pinken Blazer hält ein Modellhaus in der linken Hand und zeigt mit der rechten Hand nach oben, als hätte sie eine Idee. Sie lächelt und blickt leicht nach oben – symbolisch für Inspiration oder Immobilienberatung.