INFINA LOGO
Entspannt zur Immobilie Persönlich & kompetent beraten Finanzierbarkeit sofort überprüfbar
539.000 €
Kostenlos &
unverbindlich.
Kontakt aufnehmen

Klimatisierte 2-Zimmer-Dachgeschoss-Maisonette mit Terrasse – ruhige Lage in Hernals nahe AKH

Obj. Nr.: 155347

ca. 80,43 m² Wohnfläche 2 Zimmer
Partner von Infina OPTIN Immobilien Immobilienmakler 
Partner von Infina OPTIN Immobilien Immobilienmakler
539.000 € Kaufpreis der Immobilie Kreditvergleich von über 150 Banken mit Infina.
Immobilie finanzieren
Mehr Informationen zur Immobilie: Detaillierte Einblicke in dieses Objekt.
Zurück zur Übersicht

Objektstandort

1170 Wien,Hernals, Wien Adresse anfragen

Directions Icon Fahrtzeit berechnen
Preisinformationen
Kaufpreis 539.000 €
Grundbucheintragung: 1.1 %
Grunderwerbsteuer: 3.5 %
Was kann ich mir leisten?
Jetzt berechnen
Maklerprovision:
3,00 % des Kaufpreises zzgl. 20 % USt.

Objektinformationen

Objektart: Wohnung
Unterobjektart: Etagenwohnung
Nutzungsart: Wohnen
Zustand: gepflegt
Baujahr: 1910

Rauminformationen & Flächen

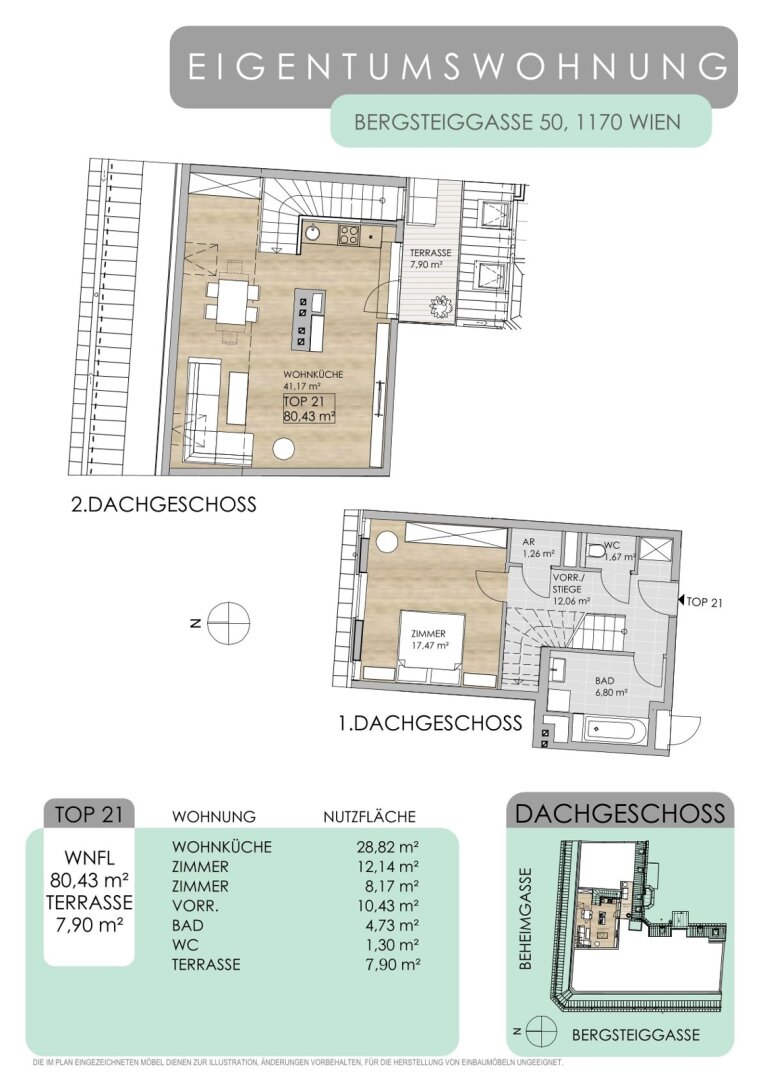
Wohnfläche: ca. 80,43 m²
Terrassenfläche: ca. 7,90 m²
Anzahl Terrassen: 1
Anzahl Zimmer: 2
Anzahl WC: 1
Anzahl Bäder: 1

Ausstattung

Boden: Fliesen, Parkett
Küche: Einbauküche
Fahrstuhl: Personenaufzug
Fernsehen: Kabel / Satelliten-TV
Belüftung: Klimaanlage

Lage

Lage & Umgebung
Diese Wohnung liegt in der Bergsteiggasse im 17. Wiener Gemeindebezirk – einer gut angebundenen und dennoch ruhigen Wohngegend. Zahlreiche Nahversorger wie Billa, Hofer, Lidl, Interspar, Apotheken, Banken und Drogerien sind bequem zu Fuß erreichbar. Der Kutschkermarkt (ca. 900 m entfernt) sowie das Einkaufszentrum Hernals (ca. 550 m) bieten zusätzliche Einkaufsmöglichkeiten und gastronomische Vielfalt. Auch der nahe gelegene Frederic-Morton-Park mit Spielplatz lädt zu entspannten Stunden im Grünen ein.
Die Wiener Innenstadt erreichen Sie mit der Straßenbahn in etwa 15 Minuten, das beliebte Naherholungsgebiet Wilhelminenberg ist in rund 20 Minuten erreichbar.

Öffentliche Verkehrsmittel
• U-Bahn: U6 „Alser Straße“ (ca. 700 m)
• Straßenbahnlinien: 9, 42, 43, 44

Beschreibung *

Klimatisierte 2-Zimmer-Dachgeschoss-Maisonette mit Terrasse – ruhige Lage in Hernals nahe AKH
Diese hochwertig ausgestattete 2-Zimmer-Maisonettewohnung liegt im 1. und 2. Dachgeschoss eines liebevoll sanierten Eckzinshauses in der Bergsteiggasse im 17. Wiener Gemeindebezirk. Die rund 80 m² große Wohnung überzeugt mit großzügigem Wohngefühl, durchdachter Raumaufteilung und moderner Ausstattung – ergänzt durch eine hofseitige Terrasse mit ca. 7,9 m², die den ganzen Tag zum Sonnenbaden einlädt und mit einem schönen Fernblick überzeugt.
Der untere Wohnbereich bietet ein ruhiges Schlafzimmer mit ca. 17,5 m², einen zentral gelegenen Vorraum mit ca. 12 m² (inkl. Stauraum unter der Stiege), ein großräumiges Badezimmer mit Badewanne und Waschmaschinenanschluss sowie ein separates WC. Zusätzlich befindet sich hier auch ein praktischer Abstellraum mit ca. 1,3 m² – ein echtes Plus im Dachgeschoss. Über die innenliegende Stiege gelangt man in das obere Stockwerk, das mit einer großzügigen Wohnküche mit ca. 41 m² begeistert. Von hier aus gelangt man auch direkt auf die Terrasse, die sich hofseitig und sonnig nach Südosten öffnet – perfekt für entspannte Stunden im Freien.
Für besonders angenehmes Wohnklima sorgen Klimaanlagen im Wohnbereich sowie im Schlafzimmer. Zusätzlich ist die Wohnung mit einer manuell bedienbaren außenliegenden Beschattung (Textil & Rollläden) ausgestattet, um Sonneneinstrahlung und Wärme gezielt zu regulieren.
Die Liegenschaft wurde bereits im Jahr 2003 umfassend modernisiert, inklusive Dachgeschossausbau und barrierearmem Personenaufzug, der vom Keller bis ins oberste Stockwerk führt. Im Zuge einer weiteren Aufwertung wurde 2023 der Eingangsbereich neu gestaltet – mit hochwertigen Holzverkleidungen, einem digitalen Schwarzen Brett und einem freundlich begrünten Innenhof.
Zur gemeinschaftlichen Nutzung stehen den Bewohner:innen ein sorgfältig sanierter Keller mit Waschküche (inkl. Waschmaschine & Trockner), ein Fahrrad- und Kinderwagenabstellraum sowie individuell zugewiesene Kellerabteile zur Verfügung. Darüber hinaus bietet das Haus sieben PKW-Stellplätze, von denen sechs als platzsparende Hebebühnenlösungen ausgeführt sind.

*Der Vertrag kommt nicht mit der INFINA Credit Broker GmbH zustande. Das Objekt wird von einem externen Immobilienunternehmen angeboten. Allfällige aus dem Vertragsabschluss resultierende Rechte sind ausschließlich gegenüber dem anbietenden Immobilienunternehmen geltend zu machen. Wir weisen Sie darauf hin, dass die gemachten Angaben und Informationen lediglich unverbindliche Vorabinformationen sind und daher ohne Gewähr erfolgen. Der Vermittler ist als Doppelmakler tätig.

Energieausweis & Heizung
HWB (kWh/m2/Jahr): 71.9
HWB Energieklasse C
fGEE: 1.59
fGEE Energieklasse C
Gültig bis: 05.12.2031
Dokumente & Videos Pläne
Partner von Infina OPTIN Immobilien Immobilienmakler
Sonstige:
Polizei: 2400 m
Geldautomat: 2380 m
Bank: 2050 m
Post: 910 m
Verkehr:
Autobahnanschluss: 5340 m
U-Bahn: 2900 m
Bus: 50 m
Straßenbahn: 860 m
Bahnhof: 2480 m
Kinder & Schulen:
Schule: 2080 m
Kindergarten: 930 m
Höhere Schule: 3510 m
Universität: 870 m
Nahversorgung:
Supermarkt: 950 m
Bäckerei: 890 m
Einkaufszentrum: 2060 m
Gesundheit:
Apotheke: 1010 m
Arzt: 1100 m
Krankenhaus: 1610 m
Klinik: 1940 m

Jetzt Experten kontaktieren

Weitere interessante Objekte

Partner von Infina
Jetzt anfragen
ca. 66,38 m² Wohnfläche 2 Zimmer
1.406 €
Partner von Infina
Jetzt anfragen
1.445 €
Partner von Infina
Jetzt anfragen
ca. 63,00 m² Wohnfläche 2 Zimmer
Auf Anfrage
Partner von Infina
Jetzt anfragen
ca. 77,00 m² Wohnfläche 2 Zimmer
Auf Anfrage
Partner von Infina
Jetzt anfragen
ca. 100,00 m² Nutzfläche 3 Zimmer
Auf Anfrage
Partner von Infina
Jetzt anfragen
279.000 €
Partner von Infina
Jetzt anfragen
ca. 75,00 m² Wohnfläche 3 Zimmer
279.000 €
Partner von Infina
Jetzt anfragen
Auf Anfrage
Partner von Infina
Jetzt anfragen
ca. 85,00 m² Wohnfläche 3 Zimmer
480.000 €

Immobilie kaufen: Das passende Angebot finden

Der Kauf einer Immobilie ist eine wichtige Entscheidung – sei es für die Eigennutzung oder zur Vermietung. Mit unserem Portal unterstützen wir Sie dabei, die richtige Immobilie zu kaufen. Nutzen Sie unsere Suchmöglichkeiten, um gezielt eine Immobilie zu suchen, die Ihren Vorstellungen entspricht. Unsere Immobilienangebote decken eine breite Palette ab: vom Einfamilienhaus über die Eigentumswohnung bis hin zum Grundstück für Ihr Bauvorhaben. Mit uns können Sie sicher und unkompliziert Eigentum erwerben – ob für die private Nutzung oder als Investition als Immobilie. Erkunden Sie jetzt unsere Angebote und finden Sie die perfekte Lösung, die zu Ihren Wohn- oder Anlagezielen passt.

Fundiertes Wissen für Ihre Entscheidung, eine Immobilie zu kaufen

Bereiten Sie sich bestens vor: Infina stellt Ihnen kostenlos über 300 Ratgeber und Beiträge zu den Themen Immobilie, Finanzierung, Zinsen und Recht zur Verfügung. Nutzen Sie unser umfassendes Wissen, um richtige Entscheidungen zu treffen.

Bei jedem Kauf einer Immobilie oder eines Grundstücks ist es wichtig, die passende Finanzierung zu finden. Mit seiner eigenen Vertriebsorganisation ist Infina als Wohnbau-Finanz-Experte an über 100 Standorten in ganz Österreich vertreten und vermittelt Finanzierungen an über 150 Banken und Bausparkassen. Nutzen Sie unseren kostenlosen Kreditvergleich für den passenden Wohnkredit: 

Kreditvergleich

Kostenlos und unverbindlich

Immobilie mieten: Ihr neues Zuhause wartet

Die Entscheidung, eine Immobilie zu mieten, bietet Flexibilität und zahlreiche Möglichkeiten – ob eine Wohnung für den Alltag oder ein Haus für die Familie. Bei Infina können Sie gezielt sowohl eine Wohnung suchen als auch ein Haus suchen, das Ihren Bedürfnissen entspricht. Unsere Angebote erleichtern es Ihnen, eine Mietwohnung zu suchen und Ihre ideale Wohnung finden zu können. Entdecken Sie vielfältige Optionen, um die passende Immobilie zu finden und Ihre Wohnträume zu verwirklichen. Starten Sie noch heute Ihre Suche und profitieren Sie von einer großen Auswahl an Mietobjekten in Ihrer Wunschregion.

Hilfreiche Informationen zu Immobilie mieten

Starten Sie gut vorbereitet in Ihre Mietentscheidung: Infina stellt Ihnen vielseitige Ratgeber und Beiträge zu Themen wie Immobilie, Mietrecht, Finanzierung und Wohntrends zur Verfügung. Verschaffen Sie sich einen Überblick über alle relevanten Aspekte und gestalten Sie Ihren Weg ins neue Zuhause einfacher und sicherer.

Erfolgreich zur neuen Immobilie

Mit Infina haben Sie einen verlässlichen Partner an Ihrer Seite, der Sie von der ersten Beratung bis zum erfolgreichen Abschluss ganzheitlich unterstützt. Erfahren Sie hier, wie wir gemeinsam Ihren Immobilienerfolg gestalten.

Starten Sie jetzt Ihre Immobiliensuche

Nach zahlreichen Informationen rund um die Themen Immobilie kaufen und Immobilie mieten können Sie nun den nächsten Schritt machen. Starten Sie die Immobiliensuche, um Ihr neues Zuhause oder Ihre nächste Investition zu finden und entdecken Sie die passenden Angebote:

Das innovative Portal für Immobilien und Finanzierung 

Als Kunde von Infina profitieren Sie von unserer umfangreichen und unabhängigen Expertise als Teil einer wachsenden, unabhängigen Immobilien- und Finanzierungsnetzwerkgruppe. Bereits 50.000 Kunden hat Infina erfolgreich bei Ihrem Vorhaben begleitet. Infina bietet Ihnen eine umfassende Beratung in allen Bereichen rund um Ihre Immobilienvorhaben:

Die passende Finanzierung für Ihre Immobilie

Mit Infina erhalten Sie nicht nur eine unabhängige Beratung, sondern auch die passende Finanzierungslösung für Ihre Immobilie. Aus den Angeboten von über 150 Banken und Bausparkassen vermitteln wir Ihnen das, was perfekt zu Ihren Bedürfnissen passt. Wir begleiten Sie professionell und verlässlich – von der ersten Beratung bis zum erfolgreichen Abschluss.

Kreditvergleich

Kostenlos und unverbindlich

Wir holen das Beste für Sie heraus

Verkaufen Sie Ihre Immobilie mit uns & profitieren Sie von unserer Expertise. Wir bringen Ihre Immobilie optimal auf den Markt & erzielen den besten Preis. 

Kontaktieren Sie uns jetzt.

Jetzt Experten kontaktieren
Junge Frau im pinken Blazer hält ein Modellhaus in der linken Hand und zeigt mit der rechten Hand nach oben, als hätte sie eine Idee. Sie lächelt und blickt leicht nach oben – symbolisch für Inspiration oder Immobilienberatung.