INFINA LOGO
Entspannt zur Immobilie Persönlich & kompetent beraten Finanzierbarkeit sofort überprüfbar
479.000 €
Kostenlos &
unverbindlich.
Kontakt aufnehmen

Erstbezug! Luxuriöse 3-Zimmer Dachgeschosswohnung, Nähe Schloss Schönbrunn

Obj. Nr.: 14968

ca. 74,48 m² Wohnfläche 3 Zimmer
Partner von Infina IM Lifestyle Properties Immobilienmakler 
Partner von Infina IM Lifestyle Properties Immobilienmakler
479.000 € Kaufpreis der Immobilie Kreditvergleich von über 120 Banken mit Infina.
Immobilie finanzieren
Mehr Informationen zur Immobilie: Detaillierte Einblicke in dieses Objekt.
Zurück zur Übersicht

Objektstandort

1120 Wien Adresse anfragen

Directions Icon Fahrtzeit berechnen
Preisinformationen
Kaufpreis 479.000 €
Grundbucheintragung: 1.1 %
Grunderwerbsteuer: 3.5 %
Was kann ich mir leisten?
Jetzt berechnen
Maklerprovision:
3,00 % des Kaufpreises zzgl. 20 % USt.

Objektinformationen

Objektart: Wohnung
Unterobjektart: Dachgeschoß
Nutzungsart: Wohnen, Anlage
Bauart: Neubau
Zustand: Erstbezug
Baujahr: 2024

Rauminformationen & Flächen

Wohnfläche: ca. 74,48 m²
Anzahl Zimmer: 3
Anzahl WC: 1
Anzahl Bäder: 1

Ausstattung

Boden: Fliesen, Parkett
Befeuerung: Luftwärmepumpe
Heizungsart: Fußbodenheizung
Küche: Wohnküche / offene Küche
Fahrstuhl: Personenaufzug
Bad: Dusche
Extras: Abstellraum
Belüftung: Klimaanlage

Beschreibung *

Im Falle der Notwendigkeit einer Fremdfinanzierung Ihrer Wunschimmobilie ermittelt unser Wohnbau-Finanzierungsexperte gerne die optimale Finanzierungslösung und findet das passende Zins- und Konditionsangebot für Sie. Er vergleicht die aktuellen Angebote aller relevanten Banken und Bausparkassen. Der Angebotsvergleich kann aus einem Portfolio von über 120 Banken erfolgen. Das Erstgespräch ist für Sie kostenfrei und unverbindlich, gerne auch bei Ihnen vor Ort. So sparen Sie Ihre wertvolle Zeit und erhalten eine professionelle und unabhängige Finanzierungslösung vom Spezialisten. Sprechen Sie uns wegen eines Termins gerne an!

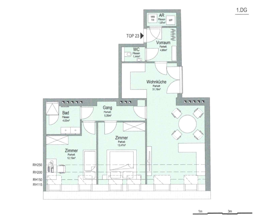
Zum Verkauf steht eine wunderschöne sonnige Dachgeschosswohnung im 12. Wiener Gemeindebezirk in der Nähe des Schlosspark Schönbrunn.

Diese wunderschöne Dachgeschosswohnung in der Nähe des Schönbrunn Parks bietet Komfort und Eleganz und ist bequem über einen Aufzug erreichbar. Erst kürzlich im Jahr 2024 fertiggestellt, präsentiert sie sich in modernstem Design und hochwertiger Ausstattung. Die großzügige Wohnfläche von ca. 74 m² teilt sich in eine Wohnküche, zwei Zimmer, ein Badezimmer, ein separates WC und einen Abstellraum auf. Die Wohnung wird mit einer effizienten Wärmepumpe beheizt und verfügt über Fußbodenheizung sowie eine Klimaanlage für angenehmes Wohnklima zu jeder Jahreszeit. Die Fenster bestehen aus Aluminium mit dreifacher Verglasung und elektrischen Außenrollläden in Anthrazitfarbe, die sowohl Ästhetik als auch Funktionalität bieten.

Beim Betreten der Wohnung gelangen Sie in den charmanten Vorraum, welcher auf der linken Seite einen Abstellraum bietet, der sich optimal als Garderobe anbietet. Das WC ist ebenfalls über den Vorraum erreichbar. Nach dem Vorraum erwartet Sie auf der rechten Seite ein großzügiger Wohn-, Koch- und Essbereich mit ca. 31 m², der mit viel natürlichem Licht durchflutet ist. Dieser einladende Raum bietet ausreichend Platz für gemütliche Abende und geselliges Beisammensein mit Familie und Freunden. Vom Wohn- und Essbereich führt ein Gang auf der rechten Seite zu zwei weiteren Schlafzimmern und dem Badezimmer. Diese Schlafzimmer bieten Rückzugsmöglichkeiten für erholsame Nächte und sind liebevoll gestaltet, um Komfort und Entspannung zu gewährleisten. Das Badezimmer, welches sich am Ende des Ganges befindet, ist praktisch angeordnet und mit modernen Annehmlichkeiten ausgestattet, um Ihren täglichen Bedürfnissen gerecht zu werden. Diese Wohnung bietet eine intelligente Raumaufteilung und ein angenehmes Wohngefühl, ideal für Familien oder Paare, die nach einem stilvollen und gemütlichen Zuhause suchen.

Diese Wohnung vereint modernes Wohnen mit einer begehrten Lage nahe dem Schönbrunn Park und bietet Ihnen ein einladendes Zuhause zum Entspannen und Genießen.

Die Lage der Immobilie kann als sehr Gut bewertet werden. Innerhalb von wenigen Gehminuten erreichen Sie die nahegelegene U-Bahn-Stationen der U4 und der U6. Ebenso befindet sich der Bahnhof Wien Meidling nur ca. 15 Minuten entfernt, über welchen Sie mit Hilfe von Schnellbahn Verbindungen schnell an Ihr Ziel bringt. In direkter Umgebung befinden sich mehrere Geschäfte für den täglichen Bedarf. Für angenehme Spaziergänge bietet sich der nahegelegene Schlosspark Schönbrunn perfekt an. Edler und idyllischer kann man in Wien kaum die frische Luft genießen. Für eine Abkühlung an heißen Sommertagen steht das nur ca. 10 Gehminuten Theresienbad zur Verfügung.

Gerne lassen wir Ihnen bei ernsthaftem Interesse - vor Kaufanbotlegung - weitere vertraulichen Dokumente zu dieser Liegenschaft zukommen, welche nicht veröffentlicht werden dürfen.

Überzeugen Sie sich selbst von diesem überaus attraktiven Objekt. Für Besichtigungen und nähere Informationen stehen wir Ihnen gerne zur Verfügung!

Herr Aleksandar Mihajlovic, MSc
national - Tel: 0660 652 5500
international - Tel: +43 660 652 5500
e-mail: mihajlovic@lifestyle-properties.at

Wir weisen darauf hin, dass zwischen dem Vermittler und dem zu vermittelnden Dritten ein familiäres oder wirtschaftliches Naheverhältnis besteht.

Der Vermittler ist als Doppelmakler tätig.


Infrastruktur / Entfernungen

Gesundheit
Arzt <500m
Apotheke <500m
Klinik <1.000m
Krankenhaus <2.000m

Kinder & Schulen
Schule <500m
Kindergarten <500m
Universität <1.000m
Höhere Schule <1.000m

Nahversorgung
Supermarkt <500m
Bäckerei <500m
Einkaufszentrum <1.000m

Sonstige
Geldautomat <500m
Bank <500m
Post <500m
Polizei <1.000m

Verkehr
Bus <500m
U-Bahn <1.000m
Straßenbahn <1.000m
Bahnhof <1.000m
Autobahnanschluss <2.500m

Angaben Entfernung Luftlinie / Quelle: OpenStreetMap


*Wir weisen Sie darauf hin, dass die gemachten Angaben und Informationen lediglich unverbindliche Vorabinformationen sind und daher ohne Gewähr erfolgen. Die Angaben beruhen auf Informationen und Unterlagen, die uns von Dritten bereitgestellt wurden.

Energieausweis & Heizung
HWB (kWh/m2/Jahr): 41
HWB Energieklasse B
fGEE: 0.69
fGEE Energieklasse B
Gültig bis: 05.05.2031
Heizung: Fußbodenheizung
Befeuerung: Luftwärmepumpe
Dokumente & Videos Pläne
Partner von Infina IM Lifestyle Properties Immobilienmakler
Sonstige:
Post: 920 m
Geldautomat: 790 m
Bank: 810 m
Polizei: 190 m
Gesundheit:
Apotheke: 530 m
Klinik: 830 m
Arzt: 450 m
Krankenhaus: 1720 m
Nahversorgung:
Supermarkt: 440 m
Bäckerei: 710 m
Einkaufszentrum: 830 m
Kinder & Schulen:
Universität: 1430 m
Höhere Schule: 1170 m
Kindergarten: 490 m
Schule: 420 m
Verkehr:
U-Bahn: 790 m
Autobahnanschluss: 1550 m
Straßenbahn: 430 m
Bus: 90 m
Bahnhof: 790 m

Jetzt Experten kontaktieren

Weitere interessante Objekte

Immobilie kaufen: Das passende Angebot finden

Der Kauf einer Immobilie ist eine wichtige Entscheidung – sei es für die Eigennutzung oder zur Vermietung. Mit unserem Portal unterstützen wir Sie dabei, die richtige Immobilie zu kaufen. Nutzen Sie unsere Suchmöglichkeiten, um gezielt eine Immobilie zu suchen, die Ihren Vorstellungen entspricht. Unsere Immobilienangebote decken eine breite Palette ab: vom Einfamilienhaus über die Eigentumswohnung bis hin zum Grundstück für Ihr Bauvorhaben. Mit uns können Sie sicher und unkompliziert Eigentum erwerben – ob für die private Nutzung oder als Investition als Immobilie. Erkunden Sie jetzt unsere Angebote und finden Sie die perfekte Lösung, die zu Ihren Wohn- oder Anlagezielen passt.

Fundiertes Wissen für Ihre Entscheidung, eine Immobilie zu kaufen

Bereiten Sie sich bestens vor: Infina stellt Ihnen kostenlos über 300 Ratgeber und Beiträge zu den Themen Immobilie, Finanzierung, Zinsen und Recht zur Verfügung. Nutzen Sie unser umfassendes Wissen, um richtige Entscheidungen zu treffen.

Bei jedem Kauf einer Immobilie oder eines Grundstücks ist es wichtig, die passende Finanzierung zu finden. Mit seiner eigenen Vertriebsorganisation ist Infina als Wohnbau-Finanz-Experte an über 100 Standorten in ganz Österreich vertreten und vermittelt Finanzierungen an über 120 Banken und Bausparkassen. Nutzen Sie unseren kostenlosen Kreditvergleich für den passenden Wohnkredit: 

Kreditvergleich

Kostenlos und unverbindlich

Immobilie mieten: Ihr neues Zuhause wartet

Die Entscheidung, eine Immobilie zu mieten, bietet Flexibilität und zahlreiche Möglichkeiten – ob eine Wohnung für den Alltag oder ein Haus für die Familie. Bei Infina können Sie gezielt sowohl eine Wohnung suchen als auch ein Haus suchen, das Ihren Bedürfnissen entspricht. Unsere Angebote erleichtern es Ihnen, eine Mietwohnung zu suchen und Ihre ideale Wohnung finden zu können. Entdecken Sie vielfältige Optionen, um die passende Immobilie zu finden und Ihre Wohnträume zu verwirklichen. Starten Sie noch heute Ihre Suche und profitieren Sie von einer großen Auswahl an Mietobjekten in Ihrer Wunschregion.

Hilfreiche Informationen zu Immobilie mieten

Starten Sie gut vorbereitet in Ihre Mietentscheidung: Infina stellt Ihnen vielseitige Ratgeber und Beiträge zu Themen wie Immobilie, Mietrecht, Finanzierung und Wohntrends zur Verfügung. Verschaffen Sie sich einen Überblick über alle relevanten Aspekte und gestalten Sie Ihren Weg ins neue Zuhause einfacher und sicherer.

Erfolgreich zur neuen Immobilie

Mit Infina haben Sie einen verlässlichen Partner an Ihrer Seite, der Sie von der ersten Beratung bis zum erfolgreichen Abschluss ganzheitlich unterstützt. Erfahren Sie hier, wie wir gemeinsam Ihren Immobilienerfolg gestalten.

Starten Sie jetzt Ihre Immobiliensuche

Nach zahlreichen Informationen rund um die Themen Immobilie kaufen und Immobilie mieten können Sie nun den nächsten Schritt machen. Starten Sie die Immobiliensuche, um Ihr neues Zuhause oder Ihre nächste Investition zu finden und entdecken Sie die passenden Angebote:

Das innovative Portal für Immobilien und Finanzierung 

Als Kunde von Infina profitieren Sie von unserer umfangreichen und unabhängigen Expertise als Teil einer wachsenden, unabhängigen Immobilien- und Finanzierungsnetzwerkgruppe. Bereits 50.000 Kunden hat Infina erfolgreich bei Ihrem Vorhaben begleitet. Infina bietet Ihnen eine umfassende Beratung in allen Bereichen rund um Ihre Immobilienvorhaben:

Die passende Finanzierung für Ihre Immobilie

Mit Infina erhalten Sie nicht nur eine unabhängige Beratung, sondern auch die passende Finanzierungslösung für Ihre Immobilie. Aus den Angeboten von über 120 Banken und Bausparkassen vermitteln wir Ihnen das, was perfekt zu Ihren Bedürfnissen passt. Wir begleiten Sie professionell und verlässlich – von der ersten Beratung bis zum erfolgreichen Abschluss.

Kreditvergleich

Kostenlos und unverbindlich

Wir holen das Beste für Sie heraus

Verkaufen Sie Ihre Immobilie mit uns & profitieren Sie von unserer Expertise. Wir bringen Ihre Immobilie optimal auf den Markt & erzielen den besten Preis. 

Kontaktieren Sie uns jetzt.

Jetzt Experten kontaktieren
Junge Frau im pinken Blazer hält ein Modellhaus in der linken Hand und zeigt mit der rechten Hand nach oben, als hätte sie eine Idee. Sie lächelt und blickt leicht nach oben – symbolisch für Inspiration oder Immobilienberatung.