INFINA LOGO
Entspannt zur Immobilie Persönlich & kompetent beraten Finanzierbarkeit sofort überprüfbar
849.000 €
Kostenlos &
unverbindlich.
Kontakt aufnehmen

Luxuriöse 2-Zimmer-Altbauwohnung im Herzen der Innenstadt

Obj. Nr.: 130225

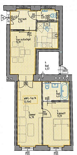
ca. 53,15 m² Wohnfläche 2 Zimmer
Partner von Infina IM Lifestyle Properties Immobilienmakler 
Partner von Infina IM Lifestyle Properties Immobilienmakler
849.000 € Kaufpreis der Immobilie Kreditvergleich von über 120 Banken mit Infina.
Immobilie finanzieren
Mehr Informationen zur Immobilie: Detaillierte Einblicke in dieses Objekt.
Zurück zur Übersicht

Objektstandort

1010 Wien Adresse anfragen

Directions Icon Fahrtzeit berechnen
Preisinformationen
Kaufpreis 849.000 €
Betriebskosten inkl. USt. 290,00 €
Grundbucheintragung: 1.1 %
Grunderwerbsteuer: 3.5 %
Was kann ich mir leisten?
Jetzt berechnen
Maklerprovision:
3,00 % des Kaufpreises zzgl. 20 % USt.

Objektinformationen

Objektart: Wohnung
Nutzungsart: Wohnen
Bauart: Altbau
Zustand: Erstbezug
barrierefrei: Ja

Rauminformationen & Flächen

Wohnfläche: ca. 53,15 m²
Anzahl Zimmer: 2
Anzahl WC: 2
Anzahl Bäder: 1

Ausstattung

Boden: Fliesen, Estrich, Parkett
Befeuerung: Gas
Heizungsart: Fußbodenheizung
Küche: Einbauküche
Fahrstuhl: Personenaufzug
Bad: Dusche
Belüftung: Klimaanlage

Beschreibung *

Zum Verkauf gelangt diese exquisite 2 Zimmer-Wohnung im 1 Wiener Bezirk.

Das im berühmten Wiener Historismus der Jahrhundertwende 1872 erbaute Haus befindet sich in einer ruhigen Seitengasse, im sogenannten Stubenviertel und wurde rundum saniert. Die historische, sehr kunstvolle Außenfassade wurde mit einem Steinsockel ausgebildet und ist somit über die gesamte Fläche beleuchtet. Das auf höchsten Niveau fertiggestellte Objekt, glänzt besonders durch die fantastische Lage sowie die einzigartige Auswahl der hochwertigen und exklusiven Materialien. Beeindruckende imperiale Wohnungen entstanden und gewähren Ihnen die Möglichkeit in allerbestem Hause mit dementsprechender Nachbarschaft zu wohnen.

Dieses edle Objekt bietet Ihnen jeden erdenklichen Komfort. Auf hochwertige Haustechnik, wie zum Beispiel die Klimaanlage, sowie modernste Elektro-Verkabelung für IT wurde wert gelegt. Der Lift ist als Durchlader gebaut, wodurch auch das gesamte Haus türschwellenfrei ist. Eine Druckbelüftungsanlage im Stiegenhaus sorgt für die nötige Rauchfreiheit im Brandfall. Die Holzkastenfenster aus Lerchenholz sind mit einer dreifach Isolierverglasung versehen. Die Böden sind entweder aus Nuss- oder Eichenholz in Form von Kasettenboden verlegt.

Diese traumhafte Wohnung besteht aus einer Fläche von ca. 53,15 m². Sie betreten den schönen Vorraum, in dem sich eine Gästetoilette befindet. Das Schlafzimmer ist mit einem en Suite Badezimmer ausgestattet. In den Nassräumen treffen Sie ausschließlich hochwertige Steinzeug Materialien sowie Hochglanzfliesen und modernste Sanitäreinrichtungen an. Ein geräumiges Wohnzimmer und ein schönes Esszimmer mit integrierter Küche runden das Wohlbefinden in dieser Wohnung ab.

Ein weiteres Highlight ist die Nähe zum Stadtpark, sowie zur Kärntnerstraße, die zum Shoppen einlädt. Vor der Haustüre befinden sich ausgezeichnete Restaurants, das Akademietheater, das Wiener Konzerthaus sowie die Staatsoper und diverse Museen. Die öffentlichen Verkehrsmittel (Straßenbahnlinie 2,U-Bahn Linie 3) sind in nächster Nähe zu erreichen

Überzeugen Sie sich selbst von diesem exklusiven Objekt.

Für Besichtigungen und nähere Informationen stehen wir Ihnen gerne zur Verfügung!

Hr. Christian Kiedl
national - Tel: 0664 336 0836
international - Tel: +43 664 336 0836
e-mail: kiedl@lifestyle-properties.at


Infrastruktur / Entfernungen

Gesundheit
Arzt <500m
Apotheke <500m
Klinik <1.000m
Krankenhaus <1.000m

Kinder & Schulen
Schule <500m
Kindergarten <1.000m
Universität <500m
Höhere Schule <500m

Nahversorgung
Supermarkt <500m
Bäckerei <500m
Einkaufszentrum <500m

Sonstige
Geldautomat <500m
Bank <500m
Post <500m
Polizei <1.000m

Verkehr
Bus <500m
U-Bahn <500m
Straßenbahn <500m
Bahnhof <500m
Autobahnanschluss <3.000m

Angaben Entfernung Luftlinie / Quelle: OpenStreetMap


*Der Vertrag kommt nicht mit der INFINA Credit Broker GmbH zustande. Das Objekt wird von einem externen Immobilienunternehmen angeboten. Allfällige aus dem Vertragsabschluss resultierende Rechte sind ausschließlich gegenüber dem anbietenden Immobilienunternehmen geltend zu machen. Wir weisen Sie darauf hin, dass die gemachten Angaben und Informationen lediglich unverbindliche Vorabinformationen sind und daher ohne Gewähr erfolgen. Der Vermittler ist als Doppelmakler tätig.

Energieausweis & Heizung
HWB (kWh/m2/Jahr): 73.37
HWB Energieklasse C
fGEE: 1.82
fGEE Energieklasse C
Gültig bis: 26.07.2027
Heizung: Fußbodenheizung
Befeuerung: Gas
Dokumente & Videos Pläne
Partner von Infina IM Lifestyle Properties Immobilienmakler
Nahversorgung:
Supermarkt: 130 m
Einkaufszentrum: 690 m
Bäckerei: 120 m
Sonstige:
Polizei: 210 m
Bank: 120 m
Geldautomat: 100 m
Post: 320 m
Verkehr:
Autobahnanschluss: 2730 m
Straßenbahn: 480 m
Bus: 110 m
U-Bahn: 140 m
Bahnhof: 150 m
Kinder & Schulen:
Schule: 90 m
Höhere Schule: 450 m
Kindergarten: 610 m
Universität: 240 m
Gesundheit:
Apotheke: 140 m
Arzt: 160 m
Klinik: 390 m
Krankenhaus: 960 m

Jetzt Experten kontaktieren

Immobilie kaufen: Das passende Angebot finden

Der Kauf einer Immobilie ist eine wichtige Entscheidung – sei es für die Eigennutzung oder zur Vermietung. Mit unserem Portal unterstützen wir Sie dabei, die richtige Immobilie zu kaufen. Nutzen Sie unsere Suchmöglichkeiten, um gezielt eine Immobilie zu suchen, die Ihren Vorstellungen entspricht. Unsere Immobilienangebote decken eine breite Palette ab: vom Einfamilienhaus über die Eigentumswohnung bis hin zum Grundstück für Ihr Bauvorhaben. Mit uns können Sie sicher und unkompliziert Eigentum erwerben – ob für die private Nutzung oder als Investition als Immobilie. Erkunden Sie jetzt unsere Angebote und finden Sie die perfekte Lösung, die zu Ihren Wohn- oder Anlagezielen passt.

Fundiertes Wissen für Ihre Entscheidung, eine Immobilie zu kaufen

Bereiten Sie sich bestens vor: Infina stellt Ihnen kostenlos über 300 Ratgeber und Beiträge zu den Themen Immobilie, Finanzierung, Zinsen und Recht zur Verfügung. Nutzen Sie unser umfassendes Wissen, um richtige Entscheidungen zu treffen.

Bei jedem Kauf einer Immobilie oder eines Grundstücks ist es wichtig, die passende Finanzierung zu finden. Mit seiner eigenen Vertriebsorganisation ist Infina als Wohnbau-Finanz-Experte an über 100 Standorten in ganz Österreich vertreten und vermittelt Finanzierungen an über 150 Banken und Bausparkassen. Nutzen Sie unseren kostenlosen Kreditvergleich für den passenden Wohnkredit: 

Kreditvergleich

Kostenlos und unverbindlich

Immobilie mieten: Ihr neues Zuhause wartet

Die Entscheidung, eine Immobilie zu mieten, bietet Flexibilität und zahlreiche Möglichkeiten – ob eine Wohnung für den Alltag oder ein Haus für die Familie. Bei Infina können Sie gezielt sowohl eine Wohnung suchen als auch ein Haus suchen, das Ihren Bedürfnissen entspricht. Unsere Angebote erleichtern es Ihnen, eine Mietwohnung zu suchen und Ihre ideale Wohnung finden zu können. Entdecken Sie vielfältige Optionen, um die passende Immobilie zu finden und Ihre Wohnträume zu verwirklichen. Starten Sie noch heute Ihre Suche und profitieren Sie von einer großen Auswahl an Mietobjekten in Ihrer Wunschregion.

Hilfreiche Informationen zu Immobilie mieten

Starten Sie gut vorbereitet in Ihre Mietentscheidung: Infina stellt Ihnen vielseitige Ratgeber und Beiträge zu Themen wie Immobilie, Mietrecht, Finanzierung und Wohntrends zur Verfügung. Verschaffen Sie sich einen Überblick über alle relevanten Aspekte und gestalten Sie Ihren Weg ins neue Zuhause einfacher und sicherer.

Erfolgreich zur neuen Immobilie

Mit Infina haben Sie einen verlässlichen Partner an Ihrer Seite, der Sie von der ersten Beratung bis zum erfolgreichen Abschluss ganzheitlich unterstützt. Erfahren Sie hier, wie wir gemeinsam Ihren Immobilienerfolg gestalten.

Starten Sie jetzt Ihre Immobiliensuche

Nach zahlreichen Informationen rund um die Themen Immobilie kaufen und Immobilie mieten können Sie nun den nächsten Schritt machen. Starten Sie die Immobiliensuche, um Ihr neues Zuhause oder Ihre nächste Investition zu finden und entdecken Sie die passenden Angebote:

Das innovative Portal für Immobilien und Finanzierung 

Als Kunde von Infina profitieren Sie von unserer umfangreichen und unabhängigen Expertise als Teil einer wachsenden, unabhängigen Immobilien- und Finanzierungsnetzwerkgruppe. Bereits 50.000 Kunden hat Infina erfolgreich bei Ihrem Vorhaben begleitet. Infina bietet Ihnen eine umfassende Beratung in allen Bereichen rund um Ihre Immobilienvorhaben:

Die passende Finanzierung für Ihre Immobilie

Mit Infina erhalten Sie nicht nur eine unabhängige Beratung, sondern auch die passende Finanzierungslösung für Ihre Immobilie. Aus den Angeboten von über 150 Banken und Bausparkassen vermitteln wir Ihnen das, was perfekt zu Ihren Bedürfnissen passt. Wir begleiten Sie professionell und verlässlich – von der ersten Beratung bis zum erfolgreichen Abschluss.

Kreditvergleich

Kostenlos und unverbindlich

Wir holen das Beste für Sie heraus

Verkaufen Sie Ihre Immobilie mit uns & profitieren Sie von unserer Expertise. Wir bringen Ihre Immobilie optimal auf den Markt & erzielen den besten Preis. 

Kontaktieren Sie uns jetzt.

Jetzt Experten kontaktieren
Junge Frau im pinken Blazer hält ein Modellhaus in der linken Hand und zeigt mit der rechten Hand nach oben, als hätte sie eine Idee. Sie lächelt und blickt leicht nach oben – symbolisch für Inspiration oder Immobilienberatung.