INFINA LOGO
Entspannt zur Immobilie Persönlich & kompetent beraten Finanzierbarkeit sofort überprüfbar
1.945.000 €
Kostenlos &
unverbindlich.
Kontakt aufnehmen

Nachhaltig investieren. Langfristig profitieren.

Obj. Nr.: 130171

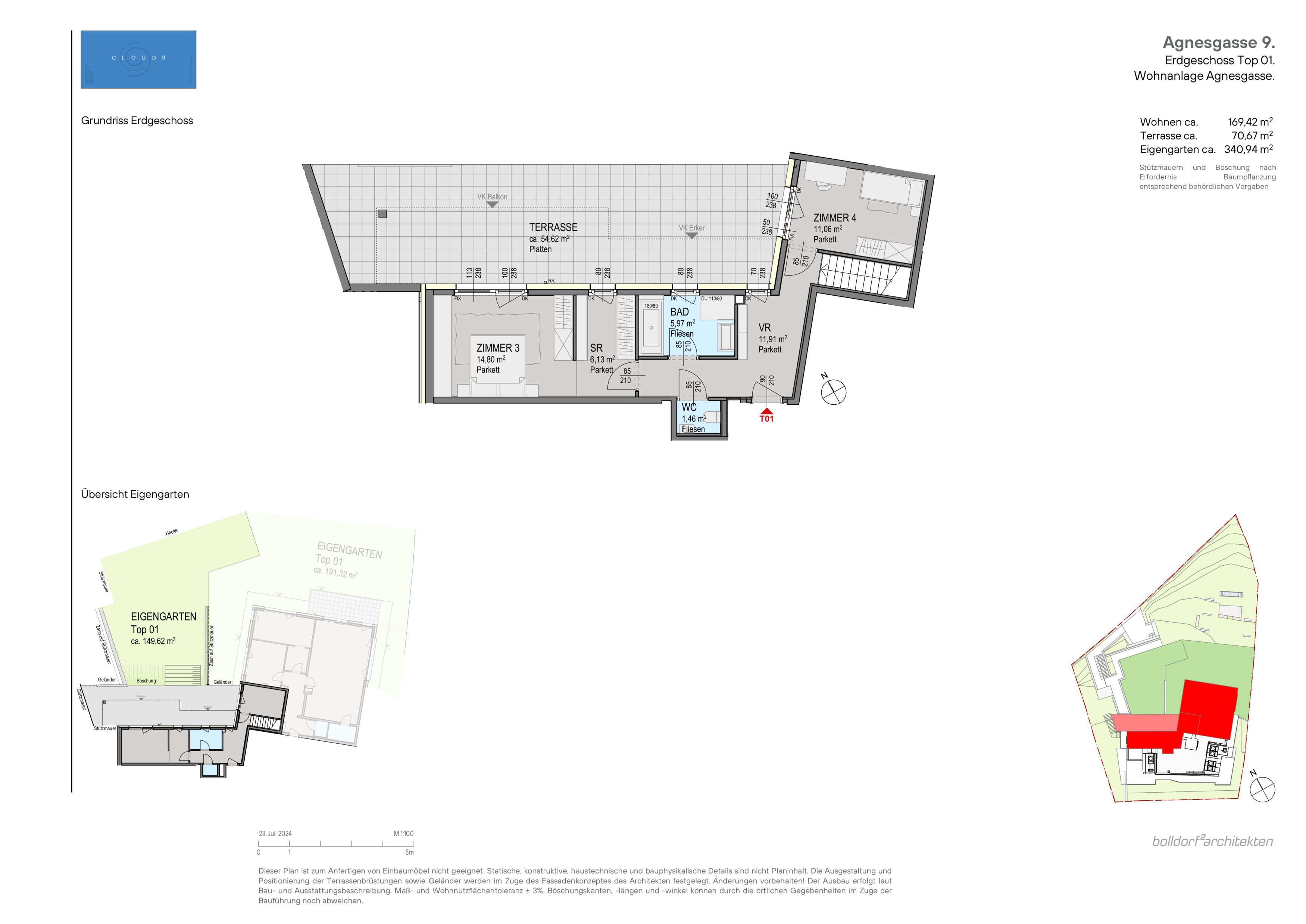
ca. 169,42 m² Wohnfläche 5 Zimmer
Partner von Infina EHL Wohnen Immobilienmakler 
Partner von Infina EHL Wohnen Immobilienmakler
1.945.000 € Kaufpreis der Immobilie Kreditvergleich von über 150 Banken mit Infina.
Immobilie finanzieren
Mehr Informationen zur Immobilie: Detaillierte Einblicke in dieses Objekt.
Zurück zur Übersicht

Objektstandort

1190 Wien, Agnesgasse

Directions Icon Fahrtzeit berechnen
Preisinformationen
Kaufpreis 1.945.000 €
Grundbucheintragung: 1.1 %
Grunderwerbsteuer: 3.5 %
Was kann ich mir leisten?
Jetzt berechnen
Maklerprovision:
3,00 % des Kaufpreises zzgl. 20 % USt.

Objektinformationen

Objektart: Wohnung
Nutzungsart: Anlage
Bauart: Neubau
Zustand: Erstbezug

Rauminformationen & Flächen

Wohnfläche: ca. 169,42 m²
Gartenfläche: ca. 340,94 m²
Kellerfläche: ca. 11,75 m²
Terrassenfläche: ca. 70,67 m²
Anzahl Terrassen: 1
Anzahl Zimmer: 5
Anzahl WC: 2
Anzahl Bäder: 2

Ausstattung

Boden: Fliesen, Parkett
Befeuerung: Luftwärmepumpe
Heizungsart: Fußbodenheizung
Küche: Wohnküche / offene Küche
Fahrstuhl: Personenaufzug
Balkon: Nordostbalkon / -terrasse
Bad: Dusche, Badewanne, Bad mit Fenster
Extras: Fahrradraum
Belüftung: Klimaanlage

Beschreibung *

CLOUD 9 – Exklusives Investment in einer der begehrtesten Wohnlagen Wiens

Agnesgasse 9 – Investieren über den Dächern der Stadt

Im grünen Herzen von Sievering, dem noblen 19. Wiener Gemeindebezirk, entsteht mit CLOUD 9 ein einzigartiges Wohnbauprojekt für anspruchsvolle Anleger:innen. In erhöhter Ruhelage, umgeben von Weingärten, Villen und dem Wienerwald, treffen Nachhaltigkeit, Luxus und Werthaltigkeit aufeinander. Die exzellente Mikrolage und die Nähe zur Wiener Innenstadt (15 Fahrminuten) machen dieses Projekt zu einer attraktiven Kapitalanlage.

Investment-Highlights auf einen Blick

  • 11 exklusive Eigentumswohnungen mit 2,5 bis 5 Zimmern
  • Wohnflächen von ca. 65 m² bis 169 m²
  • Jede Einheit mit großzügigen Freiflächen: Gärten, Balkone oder Terrassen
  • 11 Tiefgaragenplätze, optional mit E-Ladestation
  • Photovoltaikanlage, Luftwärmepumpe, Deckenkühlung
  • Regenwasserzisterne zur Gartenbewässerung

Attraktives Anlageobjekt mit nachhaltiger Perspektive

CLOUD 9 kombiniert hochwertige Bauweise mit energieeffizienten Technologien – von der Photovoltaik bis zur Bauteilaktivierung zur Kühlung. Dadurch profitieren Anleger:innen nicht nur von niedrigen Betriebskosten, sondern auch von einer gesteigerten Nachfrage bei zukünftiger Vermietung oder Verwertung.

Premium-Ausstattung für höchste Ansprüche

  • Fußbodenheizung mit Luftwärmepumpe
  • 3-fach verglaste Holz-Alu-Fenster, Außenraffstores
  • Edle Landhausdielen (Eiche), Feinsteinzeug in Nassräumen
  • Hochwertige Sanitärmarken
  • Einbruchshemmende Türen, Videosprechanlage
  • Stilvolles, barrierefreies Entree
  • Gemeinschaftsbereiche inkl. Yoga- & Fitnessraum, Wellnesszone mit Infrarotkabine und Kneippbecken

Standort mit nachhaltiger Wertentwicklung

Sievering zählt zu den stabilsten und exklusivsten Wohngegenden Wiens. Die Kombination aus hoher Lebensqualität, Nahversorgung, Natur und Stadtnähe bietet ideale Voraussetzungen für langfristige Mietrenditen oder wertgesicherte Eigennutzung.

  • Nähe zu American International School, Dominikanerinnen-Schule
  • Vielfältiges Angebot an Heurigen, Gastronomie & Nahversorgern
  • Hoher Freizeitwert: Cobenzl, Himmel, Stadtwanderweg 2
  • Gute medizinische Versorgung (Rudolfinerhaus, Göttlicher Heiland)

Optimale Anbindung – hohe Lebensqualität

  • Buslinie 39A (Haltestelle Agnesgasse) direkt vor der Tür
  • Direkte Verbindung zu U4, S-Bahn, Regionalzügen (Bahnhof Heiligenstadt)
  • Wiener Innenstadt in 15–20 Min. mit dem Auto, 30 Min. öffentlich
  • Flughafen Wien-Schwechat in ca. 30–35 Min. erreichbar

Ihr Investmentvorteil in einer raren Toplage

Mit CLOUD 9 investieren Sie in ein hochwertiges Immobilienprojekt in einer selten verfügbaren Wohnlage Wiens. Die Kombination aus stilvoller Architektur, nachhaltiger Technik und exzellenter Mikrolage schafft die Grundlage für langfristige Wertstabilität

Besuchen Sie unsere Projektseite  für weiterführende Informationen, Grundrisse und Preisspiegel.

Kaufpreise der Vorsorgewohnungen

von EUR 600.100,- bis EUR 1.945.000,- netto zzgl. 20% USt.

Zu erwartender Mietertrag

von ca. EUR 17,50 bis EUR 20,00 netto/m²

Provisionsfrei für den Käufer!
Fertigstellung voraussichtlich Q4/2027

Bei diesem Angebot handelt es sich um eine Vorsorgewohnung, die zu Vermietungszwecken erworben wird. Der angegebene Kaufpreis versteht sich daher zzgl. 20% USt. Diese Daten sind vorbehaltlich möglicher Änderungen.

Wir weisen darauf hin, dass zwischen dem Vermittler und dem zu vermittelnden Dritten ein familiäres oder wirtschaftliches Naheverhältnis besteht.

Der Vermittler ist als Doppelmakler tätig.


Infrastruktur / Entfernungen

Gesundheit
Arzt <1.000m
Apotheke <1.000m
Klinik <2.500m
Krankenhaus <2.750m

Kinder & Schulen
Schule <1.000m
Kindergarten <750m
Universität <2.250m
Höhere Schule <2.250m

Nahversorgung
Supermarkt <750m
Bäckerei <1.250m
Einkaufszentrum <4.000m

Sonstige
Geldautomat <1.250m
Bank <1.250m
Post <1.000m
Polizei <1.750m

Verkehr
Bus <250m
Straßenbahn <1.500m
U-Bahn <3.500m
Bahnhof <2.500m
Autobahnanschluss <4.000m

Angaben Entfernung Luftlinie / Quelle: OpenStreetMap


*Der Vertrag kommt nicht mit der INFINA Credit Broker GmbH zustande. Das Objekt wird von einem externen Immobilienunternehmen angeboten. Allfällige aus dem Vertragsabschluss resultierende Rechte sind ausschließlich gegenüber dem anbietenden Immobilienunternehmen geltend zu machen. Wir weisen Sie darauf hin, dass die gemachten Angaben und Informationen lediglich unverbindliche Vorabinformationen sind und daher ohne Gewähr erfolgen. Der Vermittler ist als Doppelmakler tätig.

Energieausweis & Heizung
HWB (kWh/m2/Jahr): 27.9
HWB Energieklasse B
fGEE: 0.61
fGEE Energieklasse B
Gültig bis: 08.10.2033
Heizung: Fußbodenheizung
Befeuerung: Luftwärmepumpe
Dokumente & Videos Pläne Pläne Exposé Preisliste Planmappe
Partner von Infina EHL Wohnen Immobilienmakler
Nahversorgung:
Supermarkt: 520 m
Einkaufszentrum: 1340 m
Bäckerei: 1230 m
Sonstige:
Polizei: 1740 m
Geldautomat: 1350 m
Bank: 1340 m
Post: 570 m
Verkehr:
Autobahnanschluss: 4080 m
Straßenbahn: 1430 m
U-Bahn: 3880 m
Bus: 10 m
Bahnhof: 2590 m
Gesundheit:
Apotheke: 570 m
Arzt: 820 m
Klinik: 2420 m
Krankenhaus: 2800 m
Kinder & Schulen:
Kindergarten: 520 m
Höhere Schule: 2830 m
Schule: 900 m
Universität: 2230 m

Jetzt Experten kontaktieren

Weitere interessante Objekte

Immobilie kaufen: Das passende Angebot finden

Der Kauf einer Immobilie ist eine wichtige Entscheidung – sei es für die Eigennutzung oder zur Vermietung. Mit unserem Portal unterstützen wir Sie dabei, die richtige Immobilie zu kaufen. Nutzen Sie unsere Suchmöglichkeiten, um gezielt eine Immobilie zu suchen, die Ihren Vorstellungen entspricht. Unsere Immobilienangebote decken eine breite Palette ab: vom Einfamilienhaus über die Eigentumswohnung bis hin zum Grundstück für Ihr Bauvorhaben. Mit uns können Sie sicher und unkompliziert Eigentum erwerben – ob für die private Nutzung oder als Investition als Immobilie. Erkunden Sie jetzt unsere Angebote und finden Sie die perfekte Lösung, die zu Ihren Wohn- oder Anlagezielen passt.

Fundiertes Wissen für Ihre Entscheidung, eine Immobilie zu kaufen

Bereiten Sie sich bestens vor: Infina stellt Ihnen kostenlos über 300 Ratgeber und Beiträge zu den Themen Immobilie, Finanzierung, Zinsen und Recht zur Verfügung. Nutzen Sie unser umfassendes Wissen, um richtige Entscheidungen zu treffen.

Bei jedem Kauf einer Immobilie oder eines Grundstücks ist es wichtig, die passende Finanzierung zu finden. Mit seiner eigenen Vertriebsorganisation ist Infina als Wohnbau-Finanz-Experte an über 100 Standorten in ganz Österreich vertreten und vermittelt Finanzierungen an über 150 Banken und Bausparkassen. Nutzen Sie unseren kostenlosen Kreditvergleich für den passenden Wohnkredit: 

Kreditvergleich

Kostenlos und unverbindlich

Immobilie mieten: Ihr neues Zuhause wartet

Die Entscheidung, eine Immobilie zu mieten, bietet Flexibilität und zahlreiche Möglichkeiten – ob eine Wohnung für den Alltag oder ein Haus für die Familie. Bei Infina können Sie gezielt sowohl eine Wohnung suchen als auch ein Haus suchen, das Ihren Bedürfnissen entspricht. Unsere Angebote erleichtern es Ihnen, eine Mietwohnung zu suchen und Ihre ideale Wohnung finden zu können. Entdecken Sie vielfältige Optionen, um die passende Immobilie zu finden und Ihre Wohnträume zu verwirklichen. Starten Sie noch heute Ihre Suche und profitieren Sie von einer großen Auswahl an Mietobjekten in Ihrer Wunschregion.

Hilfreiche Informationen zu Immobilie mieten

Starten Sie gut vorbereitet in Ihre Mietentscheidung: Infina stellt Ihnen vielseitige Ratgeber und Beiträge zu Themen wie Immobilie, Mietrecht, Finanzierung und Wohntrends zur Verfügung. Verschaffen Sie sich einen Überblick über alle relevanten Aspekte und gestalten Sie Ihren Weg ins neue Zuhause einfacher und sicherer.

Erfolgreich zur neuen Immobilie

Mit Infina haben Sie einen verlässlichen Partner an Ihrer Seite, der Sie von der ersten Beratung bis zum erfolgreichen Abschluss ganzheitlich unterstützt. Erfahren Sie hier, wie wir gemeinsam Ihren Immobilienerfolg gestalten.

Starten Sie jetzt Ihre Immobiliensuche

Nach zahlreichen Informationen rund um die Themen Immobilie kaufen und Immobilie mieten können Sie nun den nächsten Schritt machen. Starten Sie die Immobiliensuche, um Ihr neues Zuhause oder Ihre nächste Investition zu finden und entdecken Sie die passenden Angebote:

Das innovative Portal für Immobilien und Finanzierung 

Als Kunde von Infina profitieren Sie von unserer umfangreichen und unabhängigen Expertise als Teil einer wachsenden, unabhängigen Immobilien- und Finanzierungsnetzwerkgruppe. Bereits 50.000 Kunden hat Infina erfolgreich bei Ihrem Vorhaben begleitet. Infina bietet Ihnen eine umfassende Beratung in allen Bereichen rund um Ihre Immobilienvorhaben:

Die passende Finanzierung für Ihre Immobilie

Mit Infina erhalten Sie nicht nur eine unabhängige Beratung, sondern auch die passende Finanzierungslösung für Ihre Immobilie. Aus den Angeboten von über 150 Banken und Bausparkassen vermitteln wir Ihnen das, was perfekt zu Ihren Bedürfnissen passt. Wir begleiten Sie professionell und verlässlich – von der ersten Beratung bis zum erfolgreichen Abschluss.

Kreditvergleich

Kostenlos und unverbindlich

Wir holen das Beste für Sie heraus

Verkaufen Sie Ihre Immobilie mit uns & profitieren Sie von unserer Expertise. Wir bringen Ihre Immobilie optimal auf den Markt & erzielen den besten Preis. 

Kontaktieren Sie uns jetzt.

Jetzt Experten kontaktieren
Junge Frau im pinken Blazer hält ein Modellhaus in der linken Hand und zeigt mit der rechten Hand nach oben, als hätte sie eine Idee. Sie lächelt und blickt leicht nach oben – symbolisch für Inspiration oder Immobilienberatung.