INFINA LOGO
Entspannt zur Immobilie Persönlich & kompetent beraten Finanzierbarkeit sofort überprüfbar
519.000 €
Kostenlos &
unverbindlich.
Kontakt aufnehmen

Zwischen Sehnsucht und Realität - Das Herzstück städtischen Lebens

Obj. Nr.: 11048

ca. 77,66 m² Nutzfläche 2 Zimmer
Partner von Infina EHL Wohnen Immobilienmakler 
Partner von Infina EHL Wohnen Immobilienmakler
519.000 € Kaufpreis der Immobilie Kreditvergleich von über 120 Banken mit Infina.
Immobilie finanzieren
Mehr Informationen zur Immobilie: Detaillierte Einblicke in dieses Objekt.
Zurück zur Übersicht

Objektstandort

1040 Wien, Leibenfrostgasse

Directions Icon Fahrtzeit berechnen
Preisinformationen
Kaufpreis 519.000 €
Betriebskosten inkl. USt. 133,76 €
Sonstige Kosten inkl. USt. 20,22 €
Grundbucheintragung: 1.1 %
Grunderwerbsteuer: 3.5 %
Was kann ich mir leisten?
Jetzt berechnen
Maklerprovision:
3,00 % des Kaufpreises zzgl. 20 % USt.

Objektinformationen

Objektart: Wohnung
Nutzungsart: Wohnen
Bauart: Neubau
Zustand: Erstbezug
Baujahr: 1900

Rauminformationen & Flächen

Wohnfläche: ca. 77,66 m²
Nutzfläche: ca. 77,66 m²
Anzahl Zimmer: 2
Anzahl WC: 1
Anzahl Bäder: 1

Ausstattung

Boden: Fliesen, Parkett
Befeuerung: Gas
Heizungsart: Etagenheizung
Küche: Wohnküche / offene Küche
Fahrstuhl: Personenaufzug
Bad: Badewanne
Fernsehen: Kabel / Satelliten-TV
Belüftung: Klimaanlage

Beschreibung *

​​​​​​ Leibenfrostgasse: Zwischen Sehnsucht und Realität - Das Herzstück städtischen Lebens

Willkommen in der Leibenfrostgasse, einem stilvollen Refugium im Herzen des 4. Wiener Gemeindebezirks. Hier treffen Gründerzeit-Charme und modernes Wohnen aufeinander. Der um die Jahrhundertwende errichtete Stilaltbau besticht durch seine elegante Fassade und liebevoll renovierten Allgemeinflächen. Mit drei Regelgeschossen und einem ausgebauten Dachgeschoss bietet dieses Eckzinshaus alles, was das Herz begehrt:

  • teilweise sanierte und unsanierte Eigentumswohnungen
  • Dachgeschoßwohnungen
  • 1,5 bis 4 Zimmerwohnungen
  • ca. 53 bis 77 m² Wohnfläche
  • ruhige Lage im 5. Bezirk

Das Leben in der Leibenfrostgasse – Ihr pulsierendes Zuhause nahe dem Herzen der Stadt!

Erleben Sie exquisiten Komfort und stilvolles Wohnen in unmittelbarer Nähe zum Zentrum. Genießen Sie die grünen Oasen der umliegenden Parkanlagen und lassen Sie sich von den Aromen und Farben des berühmten Naschmarkts verführen, der nur wenige Minuten entfernt liegt. Ob gemütlicher Kaffee, kulinarisches Erlebnis oder entspannter Einkaufsbummel – hier ist alles möglich. Der Karlsplatz, ebenfalls um die Ecke, lädt zum Verweilen und Tagträumen ein.

Unschlagbare Infrastruktur

Nur wenige Gehminuten entfernt befinden sich die belebte Wiedner Hauptstraße und die Margarethenstraße, wo Sie alles für den täglichen Bedarf finden: von kleinen Weinläden, in denen edle Tropfen verköstigt werden können, bis hin zu gemütlichen Restaurants und vielem mehr. Die öffentlichen Verkehrsanbindungen sind ausgezeichnet. Die Buslinien 13A, 59A, 14A sowie die Straßenbahnen 1 und 62 und die Badner Bahn sind in unmittelbarer Fußnähe. Die U-Bahnlinien U4 (Pilgramgasse) und U1 (Taubstummengasse und Hauptbahnhof) sind in nur 5-7 Gehminuten erreichbar. Für Autofahrer bietet die Lage ideale Bedingungen: die erstklassige Verkehrsanbindung über A1, A2 oder A23 ermöglicht maximale Flexibilität und Komfort.

Vielfalt und Lebendigkeit

Erleben Sie die Vielfalt und Lebendigkeit dieser einzigartigen Nachbarschaft und lassen Sie sich von ihrem unwiderstehlichen Charme verzaubern. Die Wohnungen sind bereits bezugsfertig und warten darauf, Ihr neues Zuhause zu werden.

3% Kundenprovision
bereits bezugsfertig

Zögern Sie nicht und machen Sie die Leibenfrostgasse zu Ihrem neuen Wohntraum. Kontaktieren Sie uns noch heute!

© Bilder aus AdobeStock

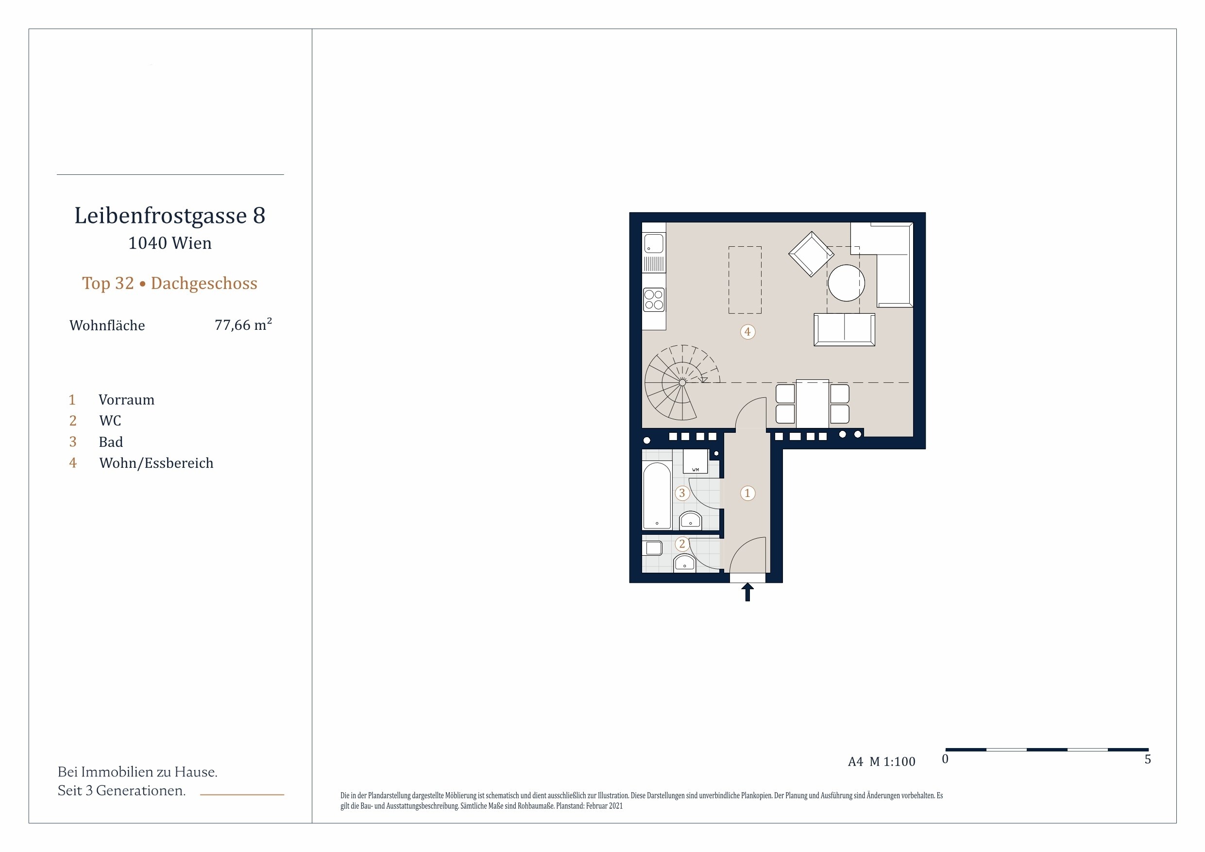
TOP 32 IM 2. DACHGESCHOSS

Die Wohnung wurde modernisiert und hochwertig ausgestattet, sie besticht durch ihren durchdachten Grundriss und teilt sich auf 2 Etagen wie folgt auf: 

* Eingangsbereich 
* separates WC
* Badezimmer mit Badewanne und Waschmaschinenanschluss
* Wohn- / Essbereich
* Galeriebereich
* Schlafzimmer
 

NEBENKOSTEN

Der guten Ordnung halber halten wir fest, dass, sofern im Angebot nicht anders vermerkt, bei erfolgreichem Abschlussfall eine Provision anfällt, die den in der Immobilienmaklerverordnung BGBI. 262 und 297/1996 festgelegten Sätzen entspricht – das sind 3 % des Kaufpreises zzgl. 20 % USt. Diese Provisionspflicht besteht auch dann, wenn Sie die Ihnen überlassenen Informationen an Dritte weitergeben. 

Die Vertragserrichtung und Treuhandabwicklung ist gebunden an die Kanzlei TaylorWessing, e|n|w|c Natlacen Walderdorff Cancola Rechtsanwälte GmbH, Schwarzenbergplatz 7, 1030 Wien. Die Kosten betragen 1,5 % des Kaufpreises zzgl. 20 % USt. sowie Barauslagen und Beglaubigung. Bei Fremdfinanzierung erhöht sich das Honorar auf 1,8 % vom Kaufpreis zzgl. 20 % USt., Barauslagen und Beglaubigung.

Wir weisen darauf hin, dass zwischen dem Vermittler und dem zu vermittelnden Dritten ein familiäres oder wirtschaftliches Naheverhältnis besteht.

Der Vermittler ist als Doppelmakler tätig.


Infrastruktur / Entfernungen

Gesundheit
Arzt <250m
Apotheke <250m
Klinik <500m
Krankenhaus <250m

Kinder & Schulen
Schule <250m
Kindergarten <250m
Universität <500m
Höhere Schule <500m

Nahversorgung
Supermarkt <250m
Bäckerei <250m
Einkaufszentrum <250m

Sonstige
Geldautomat <250m
Bank <250m
Post <250m
Polizei <500m

Verkehr
Bus <250m
U-Bahn <750m
Straßenbahn <250m
Bahnhof <750m
Autobahnanschluss <3.250m

Angaben Entfernung Luftlinie / Quelle: OpenStreetMap


*Der Vertrag kommt nicht mit der INFINA Credit Broker GmbH zustande. Das Objekt wird von einem externen Immobilienunternehmen angeboten. Allfällige aus dem Vertragsabschluss resultierende Rechte sind ausschließlich gegenüber dem anbietenden Immobilienunternehmen geltend zu machen. Wir weisen Sie darauf hin, dass die gemachten Angaben und Informationen lediglich unverbindliche Vorabinformationen sind und daher ohne Gewähr erfolgen. Der Vermittler ist als Doppelmakler tätig.

Energieausweis & Heizung
HWB (kWh/m2/Jahr): 79.3
HWB Energieklasse C
fGEE: 1.61
fGEE Energieklasse C
Gültig bis: 26.10.2032
Heizung: Etagenheizung
Befeuerung: Gas
Dokumente & Videos Pläne Pläne Exposé Preisliste Dokument 1 Dokument 2 Dokument 3 Dokument 4 Planmappe
Partner von Infina EHL Wohnen Immobilienmakler
Kinder & Schulen:
Kindergarten: 150 m
Höhere Schule: 390 m
Schule: 40 m
Universität: 290 m
Nahversorgung:
Einkaufszentrum: 100 m
Supermarkt: 160 m
Bäckerei: 120 m
Sonstige:
Post: 100 m
Polizei: 490 m
Geldautomat: 160 m
Bank: 100 m
Gesundheit:
Apotheke: 240 m
Arzt: 160 m
Klinik: 520 m
Krankenhaus: 210 m
Verkehr:
Autobahnanschluss: 2220 m
Bus: 30 m
Straßenbahn: 140 m
U-Bahn: 650 m
Bahnhof: 600 m

Jetzt Experten kontaktieren

Weitere interessante Objekte

Partner von Infina
Jetzt anfragen
ca. 77,00 m² Wohnfläche 3 Zimmer
299.000 €
Partner von Infina
Jetzt anfragen
ca. 69,00 m² Wohnfläche 3 Zimmer
Auf Anfrage
Partner von Infina
Jetzt anfragen
ca. 92,00 m² Wohnfläche 4 Zimmer
339.000 €
Partner von Infina
Jetzt anfragen
519.000 €
Partner von Infina
Jetzt anfragen
299.000 €
Partner von Infina
Jetzt anfragen
ca. 84,00 m² Wohnfläche 3 Zimmer
Auf Anfrage
Partner von Infina
Jetzt anfragen
ca. 67,00 m² Wohnfläche 3 Zimmer
239.000 €

Immobilie kaufen: Das passende Angebot finden

Der Kauf einer Immobilie ist eine wichtige Entscheidung – sei es für die Eigennutzung oder zur Vermietung. Mit unserem Portal unterstützen wir Sie dabei, die richtige Immobilie zu kaufen. Nutzen Sie unsere Suchmöglichkeiten, um gezielt eine Immobilie zu suchen, die Ihren Vorstellungen entspricht. Unsere Immobilienangebote decken eine breite Palette ab: vom Einfamilienhaus über die Eigentumswohnung bis hin zum Grundstück für Ihr Bauvorhaben. Mit uns können Sie sicher und unkompliziert Eigentum erwerben – ob für die private Nutzung oder als Investition als Immobilie. Erkunden Sie jetzt unsere Angebote und finden Sie die perfekte Lösung, die zu Ihren Wohn- oder Anlagezielen passt.

Fundiertes Wissen für Ihre Entscheidung, eine Immobilie zu kaufen

Bereiten Sie sich bestens vor: Infina stellt Ihnen kostenlos über 300 Ratgeber und Beiträge zu den Themen Immobilie, Finanzierung, Zinsen und Recht zur Verfügung. Nutzen Sie unser umfassendes Wissen, um richtige Entscheidungen zu treffen.

Bei jedem Kauf einer Immobilie oder eines Grundstücks ist es wichtig, die passende Finanzierung zu finden. Mit seiner eigenen Vertriebsorganisation ist Infina als Wohnbau-Finanz-Experte an über 100 Standorten in ganz Österreich vertreten und vermittelt Finanzierungen an über 150 Banken und Bausparkassen. Nutzen Sie unseren kostenlosen Kreditvergleich für den passenden Wohnkredit: 

Kreditvergleich

Kostenlos und unverbindlich

Immobilie mieten: Ihr neues Zuhause wartet

Die Entscheidung, eine Immobilie zu mieten, bietet Flexibilität und zahlreiche Möglichkeiten – ob eine Wohnung für den Alltag oder ein Haus für die Familie. Bei Infina können Sie gezielt sowohl eine Wohnung suchen als auch ein Haus suchen, das Ihren Bedürfnissen entspricht. Unsere Angebote erleichtern es Ihnen, eine Mietwohnung zu suchen und Ihre ideale Wohnung finden zu können. Entdecken Sie vielfältige Optionen, um die passende Immobilie zu finden und Ihre Wohnträume zu verwirklichen. Starten Sie noch heute Ihre Suche und profitieren Sie von einer großen Auswahl an Mietobjekten in Ihrer Wunschregion.

Hilfreiche Informationen zu Immobilie mieten

Starten Sie gut vorbereitet in Ihre Mietentscheidung: Infina stellt Ihnen vielseitige Ratgeber und Beiträge zu Themen wie Immobilie, Mietrecht, Finanzierung und Wohntrends zur Verfügung. Verschaffen Sie sich einen Überblick über alle relevanten Aspekte und gestalten Sie Ihren Weg ins neue Zuhause einfacher und sicherer.

Erfolgreich zur neuen Immobilie

Mit Infina haben Sie einen verlässlichen Partner an Ihrer Seite, der Sie von der ersten Beratung bis zum erfolgreichen Abschluss ganzheitlich unterstützt. Erfahren Sie hier, wie wir gemeinsam Ihren Immobilienerfolg gestalten.

Starten Sie jetzt Ihre Immobiliensuche

Nach zahlreichen Informationen rund um die Themen Immobilie kaufen und Immobilie mieten können Sie nun den nächsten Schritt machen. Starten Sie die Immobiliensuche, um Ihr neues Zuhause oder Ihre nächste Investition zu finden und entdecken Sie die passenden Angebote:

Das innovative Portal für Immobilien und Finanzierung 

Als Kunde von Infina profitieren Sie von unserer umfangreichen und unabhängigen Expertise als Teil einer wachsenden, unabhängigen Immobilien- und Finanzierungsnetzwerkgruppe. Bereits 50.000 Kunden hat Infina erfolgreich bei Ihrem Vorhaben begleitet. Infina bietet Ihnen eine umfassende Beratung in allen Bereichen rund um Ihre Immobilienvorhaben:

Die passende Finanzierung für Ihre Immobilie

Mit Infina erhalten Sie nicht nur eine unabhängige Beratung, sondern auch die passende Finanzierungslösung für Ihre Immobilie. Aus den Angeboten von über 150 Banken und Bausparkassen vermitteln wir Ihnen das, was perfekt zu Ihren Bedürfnissen passt. Wir begleiten Sie professionell und verlässlich – von der ersten Beratung bis zum erfolgreichen Abschluss.

Kreditvergleich

Kostenlos und unverbindlich

Wir holen das Beste für Sie heraus

Verkaufen Sie Ihre Immobilie mit uns & profitieren Sie von unserer Expertise. Wir bringen Ihre Immobilie optimal auf den Markt & erzielen den besten Preis. 

Kontaktieren Sie uns jetzt.

Jetzt Experten kontaktieren
Junge Frau im pinken Blazer hält ein Modellhaus in der linken Hand und zeigt mit der rechten Hand nach oben, als hätte sie eine Idee. Sie lächelt und blickt leicht nach oben – symbolisch für Inspiration oder Immobilienberatung.