INFINA LOGO
Entspannt zur Immobilie Persönlich & kompetent beraten Finanzierbarkeit sofort überprüfbar
149.000 € 3.631 €/m²
Kostenlos &
unverbindlich.
Kontakt aufnehmen

Charmante 2-Zimmer Wohnung im Altbau mit Lift - Zentrale Lage im 16. Bezirk Nähe U3 Ottakring!

Obj. Nr.: 105742

ca. 41,03 m² Nutzfläche 2 Zimmer
Partner von Infina Vienna Estate Makler Immobilienmakler 
Partner von Infina Vienna Estate Makler Immobilienmakler
149.000 € Kaufpreis der Immobilie Kreditvergleich von über 120 Banken mit Infina.
Immobilie finanzieren
Mehr Informationen zur Immobilie: Detaillierte Einblicke in dieses Objekt.
Zurück zur Übersicht

Objektstandort

1160 Wien Adresse anfragen

Directions Icon Fahrtzeit berechnen
Preisinformationen
Kaufpreis 149.000 €
Betriebskosten inkl. USt. 82,12 €
Sonstige Kosten inkl. USt. 97,50 €
Grundbucheintragung: 1.1 %
Grunderwerbsteuer: 3.5 %
Was kann ich mir leisten?
Jetzt berechnen
Maklerprovision:
3,00 % des Kaufpreises zzgl. 20 % USt.

Objektinformationen

Objektart: Wohnung
Nutzungsart: Wohnen
Bauart: Altbau
Zustand: sanierungsbedürftig
Baujahr: 1913

Rauminformationen & Flächen

Wohnfläche: ca. 41,03 m²
Nutzfläche: ca. 41,03 m²
Anzahl Zimmer: 2
Anzahl WC: 1

Ausstattung

Boden: Fliesen, Laminat
Befeuerung: Gas
Heizungsart: Etagenheizung
Fahrstuhl: Personenaufzug
Extras: Abstellraum

Lage

Ottakring ist ein vielfältiger Bezirk im Westen Wiens, der für seine lebendige Atmosphäre und kulturelle Vielfalt bekannt ist. Er zeichnet sich durch eine Mischung aus historischen Gebäuden, modernen Wohnanlagen und zahlreichen Geschäften aus. Besonders beliebt ist der Wilhelminenberg mit seinem Schloss und den schönen Ausblicken über die Stadt. Ottakring hat auch eine reiche Biertradition, die in der berühmten Ottakringer Brauerei ihren Ausdruck findet. Der Bezirk ist gut an das öffentliche Verkehrsnetz angebunden und bietet eine Vielzahl von Freizeitmöglichkeiten, darunter Parks, Restaurants und kulturelle Veranstaltungen.

Öffentliche Verkehrsmittel:
- U-Bahn Station U3 Ottakring
- S-Bahn S45 Bahnhof Ottakring
- Straßenbahnlinie 44, 46
- Buslinie N46

Beschreibung *

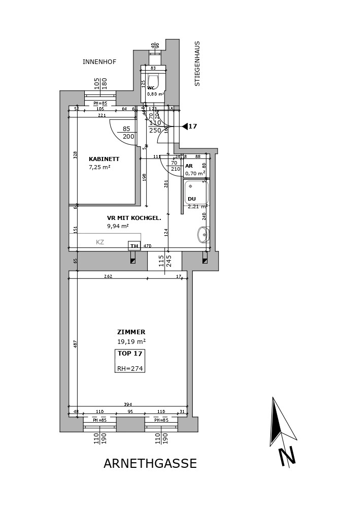
FAST FACTS WOHNUNG | KAUF | 1160 | 2. Stock mit Lift | Wohnfläche rund 41,03 | 2 Zimmer | Toilette separat | Sanierungsbedürftig | Nähe U3 Ottakring |

Diese charmante Wohnung mit einer Wohnfläche von rund  41,03 m² befindet sich in einer gepflegten Altbauliegenschaft aus dem Jahr 1913 und überzeugt durch ihren klassischen Charakter sowie eine praktische Raumaufteilung.

Die Wohnung gliedert sich in einen Vorraum , der zugleich Platz für eine Küchennische sowie einen Bereich für die Dusche bietet. Von hier aus gelangen Sie in das Wohnzimmer , das mit einem entspannten Ausblick und modernen Fenstern mit Doppelverglasung überzeugt. Ein separates Schlafzimmer sorgt für eine angenehme Rückzugsmöglichkeit und bietet hier eine Ausrichtung in den Innenhof. 

Ergänzt wird das Raumangebot durch eine separat begehbare Toilette,  sowie einen praktischen Abstellraum , der zusätzlichen Stauraum für Haushaltsgeräte und persönliche Gegenstände schafft.

Die Wohnung eignet sich ideal für Singles, Pendler oder Anleger , die eine kompakte und funktional geschnittene Wohnung in einem klassischen Wiener Altbau suchen. Die Kombination aus historischer Bausubstanz, effizienter Raumaufteilung und zentraler Lage macht diese Einheit zu einer attraktiven Gelegenheit.

Ein Kellerabteil steht zur Verfügung!

Die Wohnung wird im sanierungsbedürftigem Zustand angeboten!

Raumaufteilung:

  • Vorraum
  • Toilette
  • Abstellraum
  • Schlafzimmer
  • Wohnzimmer

Infrastruktur & Verkehrsanbindung:

  • U-Bahn: Linie U3 – Station Ottakring (fußläufig erreichbar)

  • Straßenbahn: Linien 44 und 46

  • Bus: Linie 10A

  • S-Bahn: S45 – Bahnhof Ottakring

Die Liegenschaft bietet Ihnen eine ideale Anbindung an die öffentlichen Verkehrsnetze. Die U-Bahnlinien U3 Ottakring ist fußläufig in kürzester Zeit zu erreichen. Schnellbahn, Straßenbahn und diverse Buslinien erweitern das Angebot. Eine perfekte Nahversorgung ist dank einem reichhaltigen Angebot an Gastronomie und Einzelhandel in direkter Nachbarschaft garantiert. Sämtliche Geschäfte des alltäglichen Lebens befinden sich in unmittelbarer Umgebung und eine Vielzahl an Restaurants wartet darauf von Ihnen entdeckt zu werden. 

Für einen Besichtigungstermin oder Fragen stehe ich Ihnen sehr gerne zur Verfügung.

Wir möchten darauf hinweisen, dass zwischen ViennaEstate Makler GmbH und dem Auftraggeber ein wirtschaftliches Naheverhältnis besteht. Die ViennaEstate Makler GmbH ist als Doppelmakler tätig.

Wir weisen darauf hin, dass zwischen dem Vermittler und dem zu vermittelnden Dritten ein familiäres oder wirtschaftliches Naheverhältnis besteht.

Der Vermittler ist als Doppelmakler tätig.


Infrastruktur / Entfernungen

Gesundheit
Arzt <500m
Apotheke <500m
Klinik <1.000m
Krankenhaus <500m

Kinder & Schulen
Schule <500m
Kindergarten <500m
Universität <1.500m
Höhere Schule <1.500m

Nahversorgung
Supermarkt <500m
Bäckerei <500m
Einkaufszentrum <1.000m

Sonstige
Geldautomat <500m
Bank <500m
Post <500m
Polizei <500m

Verkehr
Bus <500m
U-Bahn <500m
Straßenbahn <500m
Bahnhof <500m
Autobahnanschluss <5.000m

Angaben Entfernung Luftlinie / Quelle: OpenStreetMap


*Der Vertrag kommt nicht mit der INFINA Credit Broker GmbH zustande. Das Objekt wird von einem externen Immobilienunternehmen angeboten. Allfällige aus dem Vertragsabschluss resultierende Rechte sind ausschließlich gegenüber dem anbietenden Immobilienunternehmen geltend zu machen. Wir weisen Sie darauf hin, dass die gemachten Angaben und Informationen lediglich unverbindliche Vorabinformationen sind und daher ohne Gewähr erfolgen. Der Vermittler ist als Doppelmakler tätig.

Energieausweis & Heizung
HWB (kWh/m2/Jahr): 148.8
HWB Energieklasse D
fGEE: 2.56
fGEE Energieklasse D
Gültig bis: 23.06.2033
Heizung: Etagenheizung
Befeuerung: Gas
Dokumente & Videos Pläne
Partner von Infina Vienna Estate Makler Immobilienmakler
Nahversorgung:
Supermarkt: 60 m
Bäckerei: 40 m
Einkaufszentrum: 710 m
Sonstige:
Post: 490 m
Polizei: 70 m
Bank: 230 m
Geldautomat: 280 m
Gesundheit:
Apotheke: 270 m
Klinik: 320 m
Arzt: 50 m
Krankenhaus: 540 m
Verkehr:
Autobahnanschluss: 5080 m
Straßenbahn: 50 m
U-Bahn: 450 m
Bus: 40 m
Bahnhof: 370 m
Kinder & Schulen:
Kindergarten: 140 m
Höhere Schule: 1070 m
Universität: 1190 m
Schule: 60 m

Jetzt Experten kontaktieren

Weitere interessante Objekte

Immobilie kaufen: Das passende Angebot finden

Der Kauf einer Immobilie ist eine wichtige Entscheidung – sei es für die Eigennutzung oder zur Vermietung. Mit unserem Portal unterstützen wir Sie dabei, die richtige Immobilie zu kaufen. Nutzen Sie unsere Suchmöglichkeiten, um gezielt eine Immobilie zu suchen, die Ihren Vorstellungen entspricht. Unsere Immobilienangebote decken eine breite Palette ab: vom Einfamilienhaus über die Eigentumswohnung bis hin zum Grundstück für Ihr Bauvorhaben. Mit uns können Sie sicher und unkompliziert Eigentum erwerben – ob für die private Nutzung oder als Investition als Immobilie. Erkunden Sie jetzt unsere Angebote und finden Sie die perfekte Lösung, die zu Ihren Wohn- oder Anlagezielen passt.

Fundiertes Wissen für Ihre Entscheidung, eine Immobilie zu kaufen

Bereiten Sie sich bestens vor: Infina stellt Ihnen kostenlos über 300 Ratgeber und Beiträge zu den Themen Immobilie, Finanzierung, Zinsen und Recht zur Verfügung. Nutzen Sie unser umfassendes Wissen, um richtige Entscheidungen zu treffen.

Bei jedem Kauf einer Immobilie oder eines Grundstücks ist es wichtig, die passende Finanzierung zu finden. Mit seiner eigenen Vertriebsorganisation ist Infina als Wohnbau-Finanz-Experte an über 100 Standorten in ganz Österreich vertreten und vermittelt Finanzierungen an über 150 Banken und Bausparkassen. Nutzen Sie unseren kostenlosen Kreditvergleich für den passenden Wohnkredit: 

Kreditvergleich

Kostenlos und unverbindlich

Immobilie mieten: Ihr neues Zuhause wartet

Die Entscheidung, eine Immobilie zu mieten, bietet Flexibilität und zahlreiche Möglichkeiten – ob eine Wohnung für den Alltag oder ein Haus für die Familie. Bei Infina können Sie gezielt sowohl eine Wohnung suchen als auch ein Haus suchen, das Ihren Bedürfnissen entspricht. Unsere Angebote erleichtern es Ihnen, eine Mietwohnung zu suchen und Ihre ideale Wohnung finden zu können. Entdecken Sie vielfältige Optionen, um die passende Immobilie zu finden und Ihre Wohnträume zu verwirklichen. Starten Sie noch heute Ihre Suche und profitieren Sie von einer großen Auswahl an Mietobjekten in Ihrer Wunschregion.

Hilfreiche Informationen zu Immobilie mieten

Starten Sie gut vorbereitet in Ihre Mietentscheidung: Infina stellt Ihnen vielseitige Ratgeber und Beiträge zu Themen wie Immobilie, Mietrecht, Finanzierung und Wohntrends zur Verfügung. Verschaffen Sie sich einen Überblick über alle relevanten Aspekte und gestalten Sie Ihren Weg ins neue Zuhause einfacher und sicherer.

Erfolgreich zur neuen Immobilie

Mit Infina haben Sie einen verlässlichen Partner an Ihrer Seite, der Sie von der ersten Beratung bis zum erfolgreichen Abschluss ganzheitlich unterstützt. Erfahren Sie hier, wie wir gemeinsam Ihren Immobilienerfolg gestalten.

Starten Sie jetzt Ihre Immobiliensuche

Nach zahlreichen Informationen rund um die Themen Immobilie kaufen und Immobilie mieten können Sie nun den nächsten Schritt machen. Starten Sie die Immobiliensuche, um Ihr neues Zuhause oder Ihre nächste Investition zu finden und entdecken Sie die passenden Angebote:

Das innovative Portal für Immobilien und Finanzierung 

Als Kunde von Infina profitieren Sie von unserer umfangreichen und unabhängigen Expertise als Teil einer wachsenden, unabhängigen Immobilien- und Finanzierungsnetzwerkgruppe. Bereits 50.000 Kunden hat Infina erfolgreich bei Ihrem Vorhaben begleitet. Infina bietet Ihnen eine umfassende Beratung in allen Bereichen rund um Ihre Immobilienvorhaben:

Die passende Finanzierung für Ihre Immobilie

Mit Infina erhalten Sie nicht nur eine unabhängige Beratung, sondern auch die passende Finanzierungslösung für Ihre Immobilie. Aus den Angeboten von über 150 Banken und Bausparkassen vermitteln wir Ihnen das, was perfekt zu Ihren Bedürfnissen passt. Wir begleiten Sie professionell und verlässlich – von der ersten Beratung bis zum erfolgreichen Abschluss.

Kreditvergleich

Kostenlos und unverbindlich

Wir holen das Beste für Sie heraus

Verkaufen Sie Ihre Immobilie mit uns & profitieren Sie von unserer Expertise. Wir bringen Ihre Immobilie optimal auf den Markt & erzielen den besten Preis. 

Kontaktieren Sie uns jetzt.

Jetzt Experten kontaktieren
Junge Frau im pinken Blazer hält ein Modellhaus in der linken Hand und zeigt mit der rechten Hand nach oben, als hätte sie eine Idee. Sie lächelt und blickt leicht nach oben – symbolisch für Inspiration oder Immobilienberatung.