INFINA LOGO
Entspannt zur Immobilie Persönlich & kompetent beraten Finanzierbarkeit sofort überprüfbar
218.000 €
Kostenlos &
unverbindlich.
Kontakt aufnehmen

Dachgeschosswohnung - voll möbliert und sofort bezugsbereit!

Obj. Nr.: 114792

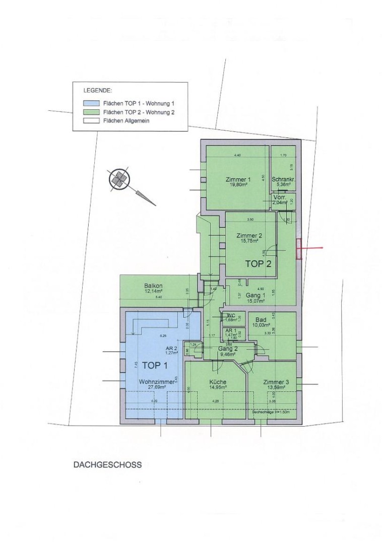
ca. 110,00 m² Wohnfläche 3 Zimmer
Partner von Infina SMK Immo Treuhand Immobilienmakler 
Partner von Infina SMK Immo Treuhand Immobilienmakler
218.000 € Kaufpreis der Immobilie Kreditvergleich von über 120 Banken mit Infina.
Immobilie finanzieren
Mehr Informationen zur Immobilie: Detaillierte Einblicke in dieses Objekt.
Zurück zur Übersicht

Objektstandort

3610 Weißenkirchen in der Wachau, Krems, Niederösterreich Adresse anfragen

Directions Icon Fahrtzeit berechnen
Preisinformationen
Kaufpreis 218.000 €
Grundbucheintragung: 1.1 %
Grunderwerbsteuer: 3.5 %
Was kann ich mir leisten?
Jetzt berechnen
Maklerprovision:
3,00 % des Kaufpreises zzgl. 20 % USt.

Objektinformationen

Objektart: Wohnung
Unterobjektart: Etagenwohnung
Nutzungsart: Wohnen

Rauminformationen & Flächen

Wohnfläche: ca. 110,00 m²
Kellerfläche: ca. 2,50 m²
Balkonfläche: ca. 12,00 m²
Anzahl Zimmer: 3
Anzahl WC: 1
Anzahl Bäder: 1

Ausstattung

Befeuerung: Pellets
Heizungsart: Zentralheizung
Fernsehen: Kabel / Satelliten-TV
Bauweise: Massiv

Beschreibung *

Diese großzügige, ca. 110 m² große Wohnung überzeugt durch ihre durchdachte Raumaufteilung und ihre ruhige Lage in der idyllischen Marktgemeinde Weißenkirchen – fernab vom Trubel und doch bestens angebunden. Die Wohnung verfügt über drei zentral begehbare Zimmer. Dank der vollständigen Möblierung können Sie ohne Umzugsstress direkt einziehen und sich wohlfühlen. Der Zugang erfolgt über stilvolle Außenstiegen im gepflegten Innenhof und verleiht dem Objekt einen besonderen Charme. Raumaufteilung & Ausstattung: Großzügiges, lichtdurchflutetes Wohnzimmer Schlafzimmer mit direktem Zugang zum Schrankraum Weiteres Zimmer – ideal als Gästezimmer, Büro oder Atelier Voll ausgestattete Küche Großes Badezimmer mit Badewanne und Dusche Separates WC Sonniger ostseitiger Balkon Diese Immobilie eignet sich nicht nur als gemütliches Zuhause, sondern auch hervorragend als Kapitalanlage. Die möblierte Übergabe sowie die attraktive Lage bieten beste Voraussetzungen für eine erfolgreiche Vermietung. Überzeugen Sie sich selbst von diesem besonderen Wohnangebot und vereinbaren Sie noch heute einen Besichtigungstermin! Unter folgendem Link finden Sie ein Video zu dieser Immobilie: https://youtube.com/shorts/e5swauKH4OA Für weitere Detaildaten, Auskünfte und Besichtigungen nehme ich mir sehr gerne für Sie Zeit! Ihre regionale Betreuerin: Fr. Stegmeier, Tel.: 0664/60771771, E-Mail: elfriede.stegmeier@smkimmo.at LEBEN IN DEN EIGENEN 4 WÄNDEN - TRÄUME WERDEN WAHR durch SMK! WWW.SMKIMMO.AT Es wird darauf hingewiesen, dass die angeführten Daten ausschließlich auf Informationen des Verkäufers/ Vermieters oder Dritter (z.B. Behörden) beruhen, sodass für die Richtigkeit keine Gewähr übernommen wird. Aufgrund der gesetzlichen Nachweispflicht gegenüber dem Eigentümer bitten wir Sie um Verständnis, dass wir nur Anfragen mit vollständigem Namen, korrekter Telefonnummer und E-Mail-Adresse bearbeiten können. Ihre Daten werden selbstverständlich vertraulich behandelt.

*Der Vertrag kommt nicht mit der INFINA Credit Broker GmbH zustande. Das Objekt wird von einem externen Immobilienunternehmen angeboten. Allfällige aus dem Vertragsabschluss resultierende Rechte sind ausschließlich gegenüber dem anbietenden Immobilienunternehmen geltend zu machen. Wir weisen Sie darauf hin, dass die gemachten Angaben und Informationen lediglich unverbindliche Vorabinformationen sind und daher ohne Gewähr erfolgen. Der Vermittler ist als Doppelmakler tätig.

Energieausweis & Heizung
HWB (kWh/m2/Jahr): 127
HWB Energieklasse D
fGEE: 1.62
fGEE Energieklasse D
Heizung: Zentralheizung
Befeuerung: Pellets
Dokumente & Videos Plan Immobilienvideo
Partner von Infina SMK Immo Treuhand Immobilienmakler
Sonstige:
Post: 600 m
Polizei: 330 m
Bank: 530 m
Geldautomat: 240 m
Kinder & Schulen:
Kindergarten: 330 m
Schule: 670 m
Universität: 7650 m
Gesundheit:
Apotheke: 5360 m
Klinik: 9820 m
Arzt: 460 m
Verkehr:
Bahnhof: 820 m
Bus: 490 m
Nahversorgung:
Bäckerei: 540 m
Supermarkt: 250 m

Jetzt Experten kontaktieren

Weitere interessante Objekte

Partner von Infina
Jetzt anfragen
ca. 110,00 m² Nutzfläche 3 Zimmer
140.000 €
Salzburg
Partner von Infina
Jetzt anfragen
550.000 €
Ardagger
Partner von Infina
Jetzt anfragen
ca. 934,00 m² Grundstücksfläche Kauf
85.000 €
Gabersdorf
Partner von Infina
Jetzt anfragen
ca. 1.499,00 m² Grundstücksfläche Kauf
120 €/m²
Auf Anfrage

Immobilie kaufen: Das passende Angebot finden

Der Kauf einer Immobilie ist eine wichtige Entscheidung – sei es für die Eigennutzung oder zur Vermietung. Mit unserem Portal unterstützen wir Sie dabei, die richtige Immobilie zu kaufen. Nutzen Sie unsere Suchmöglichkeiten, um gezielt eine Immobilie zu suchen, die Ihren Vorstellungen entspricht. Unsere Immobilienangebote decken eine breite Palette ab: vom Einfamilienhaus über die Eigentumswohnung bis hin zum Grundstück für Ihr Bauvorhaben. Mit uns können Sie sicher und unkompliziert Eigentum erwerben – ob für die private Nutzung oder als Investition als Immobilie. Erkunden Sie jetzt unsere Angebote und finden Sie die perfekte Lösung, die zu Ihren Wohn- oder Anlagezielen passt.

Fundiertes Wissen für Ihre Entscheidung, eine Immobilie zu kaufen

Bereiten Sie sich bestens vor: Infina stellt Ihnen kostenlos über 300 Ratgeber und Beiträge zu den Themen Immobilie, Finanzierung, Zinsen und Recht zur Verfügung. Nutzen Sie unser umfassendes Wissen, um richtige Entscheidungen zu treffen.

Bei jedem Kauf einer Immobilie oder eines Grundstücks ist es wichtig, die passende Finanzierung zu finden. Mit seiner eigenen Vertriebsorganisation ist Infina als Wohnbau-Finanz-Experte an über 100 Standorten in ganz Österreich vertreten und vermittelt Finanzierungen an über 150 Banken und Bausparkassen. Nutzen Sie unseren kostenlosen Kreditvergleich für den passenden Wohnkredit: 

Kreditvergleich

Kostenlos und unverbindlich

Immobilie mieten: Ihr neues Zuhause wartet

Die Entscheidung, eine Immobilie zu mieten, bietet Flexibilität und zahlreiche Möglichkeiten – ob eine Wohnung für den Alltag oder ein Haus für die Familie. Bei Infina können Sie gezielt sowohl eine Wohnung suchen als auch ein Haus suchen, das Ihren Bedürfnissen entspricht. Unsere Angebote erleichtern es Ihnen, eine Mietwohnung zu suchen und Ihre ideale Wohnung finden zu können. Entdecken Sie vielfältige Optionen, um die passende Immobilie zu finden und Ihre Wohnträume zu verwirklichen. Starten Sie noch heute Ihre Suche und profitieren Sie von einer großen Auswahl an Mietobjekten in Ihrer Wunschregion.

Hilfreiche Informationen zu Immobilie mieten

Starten Sie gut vorbereitet in Ihre Mietentscheidung: Infina stellt Ihnen vielseitige Ratgeber und Beiträge zu Themen wie Immobilie, Mietrecht, Finanzierung und Wohntrends zur Verfügung. Verschaffen Sie sich einen Überblick über alle relevanten Aspekte und gestalten Sie Ihren Weg ins neue Zuhause einfacher und sicherer.

Erfolgreich zur neuen Immobilie

Mit Infina haben Sie einen verlässlichen Partner an Ihrer Seite, der Sie von der ersten Beratung bis zum erfolgreichen Abschluss ganzheitlich unterstützt. Erfahren Sie hier, wie wir gemeinsam Ihren Immobilienerfolg gestalten.

Starten Sie jetzt Ihre Immobiliensuche

Nach zahlreichen Informationen rund um die Themen Immobilie kaufen und Immobilie mieten können Sie nun den nächsten Schritt machen. Starten Sie die Immobiliensuche, um Ihr neues Zuhause oder Ihre nächste Investition zu finden und entdecken Sie die passenden Angebote:

Das innovative Portal für Immobilien und Finanzierung 

Als Kunde von Infina profitieren Sie von unserer umfangreichen und unabhängigen Expertise als Teil einer wachsenden, unabhängigen Immobilien- und Finanzierungsnetzwerkgruppe. Bereits 50.000 Kunden hat Infina erfolgreich bei Ihrem Vorhaben begleitet. Infina bietet Ihnen eine umfassende Beratung in allen Bereichen rund um Ihre Immobilienvorhaben:

Die passende Finanzierung für Ihre Immobilie

Mit Infina erhalten Sie nicht nur eine unabhängige Beratung, sondern auch die passende Finanzierungslösung für Ihre Immobilie. Aus den Angeboten von über 150 Banken und Bausparkassen vermitteln wir Ihnen das, was perfekt zu Ihren Bedürfnissen passt. Wir begleiten Sie professionell und verlässlich – von der ersten Beratung bis zum erfolgreichen Abschluss.

Kreditvergleich

Kostenlos und unverbindlich

Wir holen das Beste für Sie heraus

Verkaufen Sie Ihre Immobilie mit uns & profitieren Sie von unserer Expertise. Wir bringen Ihre Immobilie optimal auf den Markt & erzielen den besten Preis. 

Kontaktieren Sie uns jetzt.

Jetzt Experten kontaktieren
Junge Frau im pinken Blazer hält ein Modellhaus in der linken Hand und zeigt mit der rechten Hand nach oben, als hätte sie eine Idee. Sie lächelt und blickt leicht nach oben – symbolisch für Inspiration oder Immobilienberatung.