INFINA LOGO
Entspannt zur Immobilie Persönlich & kompetent beraten Finanzierbarkeit sofort überprüfbar
404.656 €
Kostenlos &
unverbindlich.
Kontakt aufnehmen

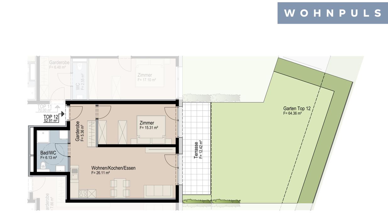
2-Zimmer Gartenwohnung (Top 12)

Obj. Nr.: 46721

ca. 52,91 m² Wohnfläche 2 Zimmer
Partner von Infina Wohnpuls Bauträger 
Partner von Infina Wohnpuls Bauträger
404.656 € Kaufpreis der Immobilie Kreditvergleich von über 120 Banken mit Infina.
Immobilie finanzieren
Mehr Informationen zur Immobilie: Detaillierte Einblicke in dieses Objekt.
Zurück zur Übersicht

Objektstandort

6173 Oberperfuss, Huebe 43 Top 12, Innsbruck-Land, Tirol

Directions Icon Fahrtzeit berechnen
Preisinformationen
Kaufpreis 404.656 €
Grundbucheintragung: 1.1 %
Grunderwerbsteuer: 3.5 %
Was kann ich mir leisten?
Jetzt berechnen

Objektinformationen

Objektart: Wohnung
Unterobjektart: Terrassenwohnung
Nutzungsart: Wohnen
Bauart: Neubau
Zustand: Erstbezug

Rauminformationen & Flächen

Wohnfläche: ca. 52,91 m²
Gartenfläche: ca. 64,36 m²
Terrassenfläche: ca. 12,42 m²
Anzahl Terrassen: 1
Anzahl Zimmer: 2

Ausstattung

Fahrstuhl: Personenaufzug

Beschreibung *

Modernes Wohnen in Oberperfuss – Komfort, Nachhaltigkeit & Lebensqualität

In der begehrten Völsesgasse in Oberperfuss entsteht ein attraktives Wohnprojekt mit 28 hochwertigen Wohnungen, das modernen Wohnkomfort mit nachhaltiger Bauweise verbindet.

Highlights der Wohnanlage

• 28 Wohneinheiten mit durchdachten Grundrissen
• 28 Tiefgaragen-Abstellplätze sowie zusätzliche Außenstellplätze
• Terrassen oder Balkone bei allen Wohneinheiten für entspannte Stunden im Freien
• Private Gartenflächen im Erdgeschoss und teilweise im 1. Obergeschoss
• Zusätzliche Lagerflächen in praktischen Kellerabteilen

Nachhaltig & zukunftssicher
• Energiesparende Gebäudestruktur für niedrige Betriebskosten
• Ökologische Wärmeversorgung mittels moderner Luft-Wärmepumpe – komplett ohne Gas

Perfekte Lage in Oberperfuss

Die Völsesgasse vereint ruhiges Wohnen mit bester Anbindung:
• Nur wenige Fahrminuten nach Innsbruck und zur Autobahnauffahrt
• Einkaufsmöglichkeiten, Kindergarten, Schule und Ärzte in unmittelbarer Nähe
• Herrliche Freizeitmöglichkeiten direkt vor der Haustür: Wandern, Mountainbiken, Skifahren am Rangger Köpfl oder entspannte Spaziergänge entlang des Inn
• Ideale Lage für Naturliebhaber, Familien und Berufspendler

Ihr neues Zuhause wartet

Ob gemütliche Gartenwohnung, sonniges Apartment mit Balkon oder Penthouse mit traumhafter Aussicht – hier finden Sie Ihren persönlichen Wohntraum in einer der lebenswertesten Regionen Tirols.

Stellplätz sind im Preis nicht inkludiert.
Tiefgaragenstellplatz € 35.000,-
Freiparkplatz € 20.000,-

Jetzt informieren und vormerken lassen – diese Chance sollten Sie nicht verpassen!

*Der Vertrag kommt nicht mit der INFINA Credit Broker GmbH zustande. Das Objekt wird von einem externen Immobilienunternehmen angeboten. Allfällige aus dem Vertragsabschluss resultierende Rechte sind ausschließlich gegenüber dem anbietenden Immobilienunternehmen geltend zu machen. Wir weisen Sie darauf hin, dass die gemachten Angaben und Informationen lediglich unverbindliche Vorabinformationen sind und daher ohne Gewähr erfolgen. Der Vermittler ist als Doppelmakler tätig.

Dokumente & Videos Projektbroschu¨re Oberperfuss Huebe
Partner von Infina Wohnpuls Bauträger
Verkehr:
Bahnhof: 1980 m
Autobahnanschluss: 2180 m
Straßenbahn: 7660 m
Bus: 30 m
Flughafen: 8030 m
Nahversorgung:
Supermarkt: 600 m
Bäckerei: 910 m
Einkaufszentrum: 6430 m
Sonstige:
Post: 2390 m
Geldautomat: 770 m
Polizei: 1880 m
Bank: 770 m
Gesundheit:
Apotheke: 720 m
Arzt: 680 m
Krankenhaus: 3770 m
Kinder & Schulen:
Kindergarten: 670 m
Schule: 670 m
Universität: 7750 m

Jetzt Experten kontaktieren

Weitere interessante Objekte

Partner von Infina
Jetzt anfragen
ca. 49,30 m² Wohnfläche 2 Zimmer
366.593 €
Partner von Infina
Jetzt anfragen
ca. 52,91 m² Wohnfläche 2 Zimmer
410.676 €
Partner von Infina
Jetzt anfragen
ca. 70,00 m² Wohnfläche 3 Zimmer
546.461 €
Partner von Infina
Jetzt anfragen
ca. 49,30 m² Wohnfläche 2 Zimmer
391.472 €
Partner von Infina
Jetzt anfragen
ca. 49,30 m² Wohnfläche 2 Zimmer
390.444 €
Partner von Infina
Jetzt anfragen
ca. 70,00 m² Wohnfläche 3 Zimmer
545.400 €
Partner von Infina
Jetzt anfragen
ca. 52,91 m² Wohnfläche 2 Zimmer
411.851 €
Partner von Infina
Jetzt anfragen
ca. 49,30 m² Wohnfläche 2 Zimmer
366.593 €
Partner von Infina
Jetzt anfragen
ca. 49,30 m² Wohnfläche 2 Zimmer
349.899 €

Immobilie kaufen: Das passende Angebot finden

Der Kauf einer Immobilie ist eine wichtige Entscheidung – sei es für die Eigennutzung oder zur Vermietung. Mit unserem Portal unterstützen wir Sie dabei, die richtige Immobilie zu kaufen. Nutzen Sie unsere Suchmöglichkeiten, um gezielt eine Immobilie zu suchen, die Ihren Vorstellungen entspricht. Unsere Immobilienangebote decken eine breite Palette ab: vom Einfamilienhaus über die Eigentumswohnung bis hin zum Grundstück für Ihr Bauvorhaben. Mit uns können Sie sicher und unkompliziert Eigentum erwerben – ob für die private Nutzung oder als Investition als Immobilie. Erkunden Sie jetzt unsere Angebote und finden Sie die perfekte Lösung, die zu Ihren Wohn- oder Anlagezielen passt.

Fundiertes Wissen für Ihre Entscheidung, eine Immobilie zu kaufen

Bereiten Sie sich bestens vor: Infina stellt Ihnen kostenlos über 300 Ratgeber und Beiträge zu den Themen Immobilie, Finanzierung, Zinsen und Recht zur Verfügung. Nutzen Sie unser umfassendes Wissen, um richtige Entscheidungen zu treffen.

Bei jedem Kauf einer Immobilie oder eines Grundstücks ist es wichtig, die passende Finanzierung zu finden. Mit seiner eigenen Vertriebsorganisation ist Infina als Wohnbau-Finanz-Experte an über 100 Standorten in ganz Österreich vertreten und vermittelt Finanzierungen an über 120 Banken und Bausparkassen. Nutzen Sie unseren kostenlosen Kreditvergleich für den passenden Wohnkredit: 

Kreditvergleich

Kostenlos und unverbindlich

Immobilie mieten: Ihr neues Zuhause wartet

Die Entscheidung, eine Immobilie zu mieten, bietet Flexibilität und zahlreiche Möglichkeiten – ob eine Wohnung für den Alltag oder ein Haus für die Familie. Bei Infina können Sie gezielt sowohl eine Wohnung suchen als auch ein Haus suchen, das Ihren Bedürfnissen entspricht. Unsere Angebote erleichtern es Ihnen, eine Mietwohnung zu suchen und Ihre ideale Wohnung finden zu können. Entdecken Sie vielfältige Optionen, um die passende Immobilie zu finden und Ihre Wohnträume zu verwirklichen. Starten Sie noch heute Ihre Suche und profitieren Sie von einer großen Auswahl an Mietobjekten in Ihrer Wunschregion.

Hilfreiche Informationen zu Immobilie mieten

Starten Sie gut vorbereitet in Ihre Mietentscheidung: Infina stellt Ihnen vielseitige Ratgeber und Beiträge zu Themen wie Immobilie, Mietrecht, Finanzierung und Wohntrends zur Verfügung. Verschaffen Sie sich einen Überblick über alle relevanten Aspekte und gestalten Sie Ihren Weg ins neue Zuhause einfacher und sicherer.

Erfolgreich zur neuen Immobilie

Mit Infina haben Sie einen verlässlichen Partner an Ihrer Seite, der Sie von der ersten Beratung bis zum erfolgreichen Abschluss ganzheitlich unterstützt. Erfahren Sie hier, wie wir gemeinsam Ihren Immobilienerfolg gestalten.

Starten Sie jetzt Ihre Immobiliensuche

Nach zahlreichen Informationen rund um die Themen Immobilie kaufen und Immobilie mieten können Sie nun den nächsten Schritt machen. Starten Sie die Immobiliensuche, um Ihr neues Zuhause oder Ihre nächste Investition zu finden und entdecken Sie die passenden Angebote:

Das innovative Portal für Immobilien und Finanzierung 

Als Kunde von Infina profitieren Sie von unserer umfangreichen und unabhängigen Expertise als Teil einer wachsenden, unabhängigen Immobilien- und Finanzierungsnetzwerkgruppe. Bereits 50.000 Kunden hat Infina erfolgreich bei Ihrem Vorhaben begleitet. Infina bietet Ihnen eine umfassende Beratung in allen Bereichen rund um Ihre Immobilienvorhaben:

Die passende Finanzierung für Ihre Immobilie

Mit Infina erhalten Sie nicht nur eine unabhängige Beratung, sondern auch die passende Finanzierungslösung für Ihre Immobilie. Aus den Angeboten von über 120 Banken und Bausparkassen vermitteln wir Ihnen das, was perfekt zu Ihren Bedürfnissen passt. Wir begleiten Sie professionell und verlässlich – von der ersten Beratung bis zum erfolgreichen Abschluss.

Kreditvergleich

Kostenlos und unverbindlich

Wir holen das Beste für Sie heraus

Verkaufen Sie Ihre Immobilie mit uns & profitieren Sie von unserer Expertise. Wir bringen Ihre Immobilie optimal auf den Markt & erzielen den besten Preis. 

Kontaktieren Sie uns jetzt.

Jetzt Experten kontaktieren
Junge Frau im pinken Blazer hält ein Modellhaus in der linken Hand und zeigt mit der rechten Hand nach oben, als hätte sie eine Idee. Sie lächelt und blickt leicht nach oben – symbolisch für Inspiration oder Immobilienberatung.