INFINA LOGO
Entspannt zur Immobilie Persönlich & kompetent beraten Finanzierbarkeit sofort überprüfbar
475.000 €
Kostenlos &
unverbindlich.
Kontakt aufnehmen
+ 2 Bilder

Modern wohnen – nachhaltig gebaut

Obj. Nr.: 59072

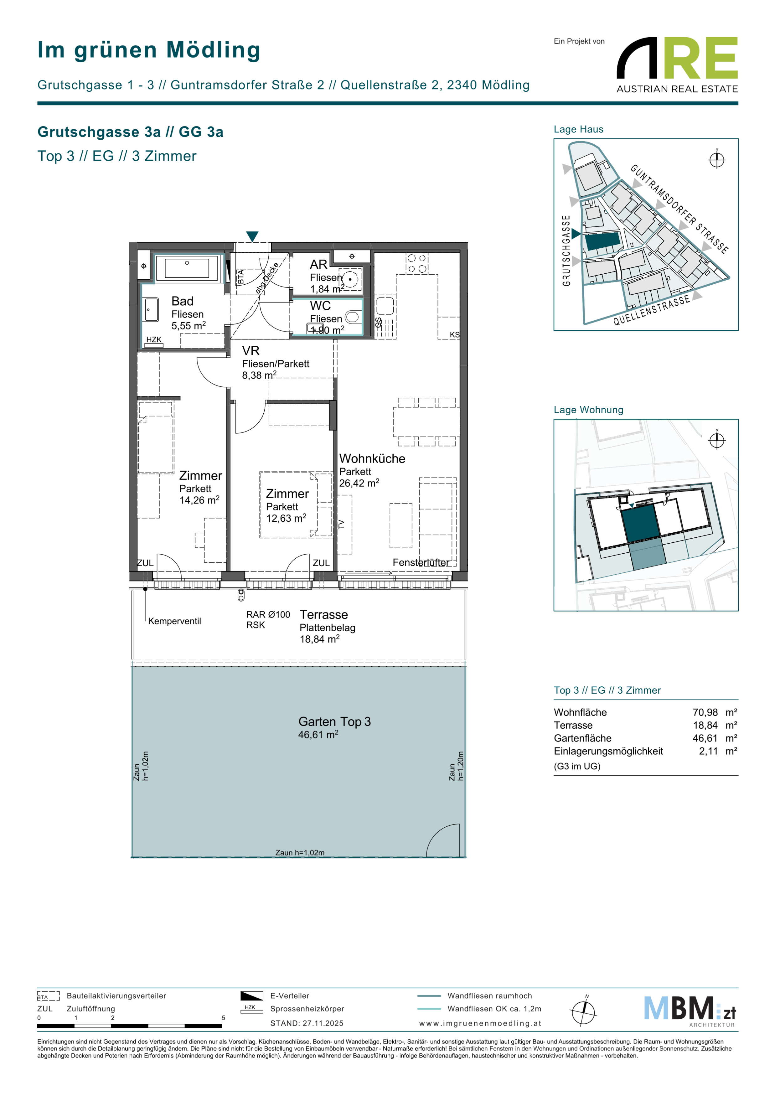
ca. 70,98 m² Wohnfläche 3 Zimmer
Partner von Infina EHL Wohnen Immobilienmakler 
Partner von Infina EHL Wohnen Immobilienmakler
475.000 € Kaufpreis der Immobilie Kreditvergleich von über 120 Banken mit Infina.
Immobilie finanzieren
Mehr Informationen zur Immobilie: Detaillierte Einblicke in dieses Objekt.
Zurück zur Übersicht

Objektstandort

2340 Mödling, Grutschgasse 3a/3, Niederösterreich

Directions Icon Fahrtzeit berechnen
Preisinformationen
Kaufpreis 475.000 €
Grundbucheintragung: 1.1 %
Grunderwerbsteuer: 3.5 %
Was kann ich mir leisten?
Jetzt berechnen
Maklerprovision:
Provision bezahlt der Abgeber.

Objektinformationen

Objektart: Wohnung
Nutzungsart: Wohnen
Bauart: Neubau
Zustand: Erstbezug
Baujahr: 2026
barrierefrei: Ja

Rauminformationen & Flächen

Wohnfläche: ca. 70,98 m²
Gartenfläche: ca. 46,61 m²
Kellerfläche: ca. 2,11 m²
Terrassenfläche: ca. 18,84 m²
Anzahl Terrassen: 1
Anzahl Zimmer: 3
Anzahl WC: 1
Anzahl Bäder: 1

Ausstattung

Boden: Fliesen, Parkett
Befeuerung: Erdwärme
Heizungsart: Fernwärme
Fahrstuhl: Personenaufzug
Balkon: Südbalkon / -terrasse
Bad: Badewanne
Extras: Abstellraum
Belüftung: Klimaanlage
Bauweise: Massiv

Beschreibung *

Im Grünen Mödling – Wohnhausanlage am Fliegenspitz

Nachhaltig wohnen. Entspannt leben.

In einer der lebenswertesten Regionen südlich von Wien entsteht ein modernes Wohnensemble, das Architektur, Nachhaltigkeit und Lebensqualität harmonisch vereint. Zwischen Quellenstraße, Grutschgasse und Guntramsdorfer Straße gelegen, präsentiert sich die Wohnhausanlage am Fliegenspitz in Mödling als ruhiger Rückzugsort mit bester Anbindung und viel Grün – ideal für individuelle Lebensentwürfe.

Zehn moderne Baukörper mit drei bis vier Geschossen sind über ein barrierefreies, halböffentliches Wegesystem miteinander verbunden und schaffen ein offenes, nachbarschaftliches Wohnumfeld. Insgesamt entstehen 116 schlüsselfertige Wohnungen mit 1 bis 5 Zimmern, ergänzt durch private Eigengärten, Balkone oder Terrassen.

Haus A bietet zudem zwei moderne Praxisräumlichkeiten mit ca. 94 m² und ca. 217 m² mit Parkplätzen direkt vor dem Eingang.

Im Untergeschoß befinden sich Einlagerungsräume sowie 177 Stellplätze.

Großzügige Freibereiche und Kinderspielplätze sind integraler Bestandteil des Konzepts und sorgen für eine hohe Aufenthaltsqualität – für entspanntes Wohnen in jeder Lebensphase.

Geplante Fertigstellung: Ende 2026

In der hauseigenen Tiefgarage stehen Stellplätze ab EUR 25.000,--  zum Ankauf zur Verfügung.

Der Verkauf erfolgt provisionsfrei für den Käufer!

Das Projekt

  • 116 Eigentums- und Vorsorgewohnungen mit 1 bis 5 Zimmern
  • Wohnungsgrößen von ca. 31 bis 130 m²
  • Private Freiflächen wie Gärten, Balkone oder Terrassen
  • Einlagerungsräume im Unter- und Dachgeschoß
  • 2 Praxisräumlichkeiten (belagsfertige Ausführung/Edelrohbau)
  • 177 Kfz-Stellplätze in der Tiefgarage
  • Ziegelmauerwerk mit integriertem Dämmstoff kombiniert mit Stahlbeton
  • Gemeinschaftliche Freibereiche wie Gärten und Kinderspielplätze
  • Kinderwagen- und Fahrradabstellräume

Die Ausstattung

  • Heizung und Warmwasser mittels Kombination aus Geothermie und Fernwärme
  • Wärmeabgabe bzw. Temperierung im Sommer über Bauteilaktivierung
  • PV-Anlagen
  • Vorrüstung Klimaanlagen für Dachgeschoßwohnungen 
  • Kunststoff-/Alufenster mit 3-fach-Verglasung
  • Beschattung mittels elektrisch betriebener Außenraffstores
  • Weitzer Parkett, Eiche Kaschmir in den Wohnräumen
  • Feinsteinzeug Cerabella Bari in den Nassräumen
  • Hochwertige Sanitärausstattung

Die Lage

Im grünen Mödling vereinen sich Natur, Stadtleben und Lebensqualität auf besondere Weise. Eine ausgezeichnete Infrastruktur vor Ort bietet alles, was den Alltag angenehm und unkompliziert macht. Gleichzeitig lädt der angrenzende Wienerwald mit vielfältigen Freizeit-, Kultur- und Naturangeboten zur Erholung ein. Dank der sehr guten Anbindung sowie der Nähe zu Bahnhof und Autobahn ist Wien in rund 45 Minuten bequem erreichbar.

Die Mödlinger Innenstadt liegt nur 5–10 Minuten mit dem Rad, Auto oder Bus entfernt und ist auch fußläufig in etwa 10–15 Minuten erreichbar, der Bahnhof in ca. 20 Minuten.

Als ehemaliger Sitz der Babenberger überzeugt Mödling mit einem lebendigen Mix aus Geschichte, Kultur und urbanem Leben. Entlang der charmanten Hauptstraße finden sich zahlreiche Nahversorger, Fachärzte, Bäcker, Restaurants, Cafés, Geschäfte, Fitnessstudios, Banken und Museen – alles, was das tägliche Leben bereichert.

Buslinien

  • Linie 1 (Bahnhof – Prießnitztal)
  • Linie 3 (Bahnhof – WIFI/Mödlinger Zentrum)
  • Linie 263 (Bahnhof – Guntramsdorf)

Ganz in der Nähe der Anlage befindet sich ein weiteres Projekt – „Grüne Stadtvillen“ – in dem wir ebenso Eigentums- sowie Vorsorgewohnungen anbieten. Für nähere Informationen hierfür stehen wir selbstverständlich auch gerne zur Verfügung.

Einen detaillierteren Einblick finden Sie auf unserer EHL-Projekthomepage !

Wir weisen darauf hin, dass zwischen dem Vermittler und dem zu vermittelnden Dritten ein familiäres oder wirtschaftliches Naheverhältnis besteht.

Der Vermittler ist als Doppelmakler tätig.


Infrastruktur / Entfernungen

Gesundheit
Arzt <650m
Apotheke <225m
Klinik <650m
Krankenhaus <1.625m

Kinder & Schulen
Schule <275m
Kindergarten <275m
Höhere Schule <350m

Nahversorgung
Supermarkt <225m
Bäckerei <1.125m
Einkaufszentrum <1.275m

Sonstige
Bank <775m
Geldautomat <775m
Post <775m
Polizei <1.075m

Verkehr
Bus <50m
U-Bahn <6.200m
Bahnhof <1.225m
Autobahnanschluss <3.400m
Straßenbahn <3.750m

Angaben Entfernung Luftlinie / Quelle: OpenStreetMap


*Der Vertrag kommt nicht mit der INFINA Credit Broker GmbH zustande. Das Objekt wird von einem externen Immobilienunternehmen angeboten. Allfällige aus dem Vertragsabschluss resultierende Rechte sind ausschließlich gegenüber dem anbietenden Immobilienunternehmen geltend zu machen. Wir weisen Sie darauf hin, dass die gemachten Angaben und Informationen lediglich unverbindliche Vorabinformationen sind und daher ohne Gewähr erfolgen. Der Vermittler ist als Doppelmakler tätig.

Energieausweis & Heizung
HWB (kWh/m2/Jahr): 24.1
HWB Energieklasse A
fGEE: 0.6
fGEE Energieklasse A
Gültig bis: 13.01.2035
Heizung: Fernwärme
Befeuerung: Erdwärme
Dokumente & Videos Pläne Exposé Preisliste Planmappe
Partner von Infina EHL Wohnen Immobilienmakler
Verkehr:
Autobahnanschluss: 3390 m
Straßenbahn: 6580 m
U-Bahn: 6270 m
Bus: 40 m
Bahnhof: 1000 m
Nahversorgung:
Bäckerei: 1120 m
Supermarkt: 210 m
Einkaufszentrum: 1260 m
Sonstige:
Geldautomat: 260 m
Post: 770 m
Bank: 770 m
Polizei: 1070 m
Kinder & Schulen:
Höhere Schule: 350 m
Kindergarten: 260 m
Schule: 470 m
Gesundheit:
Arzt: 650 m
Klinik: 650 m
Apotheke: 210 m
Krankenhaus: 1620 m

Jetzt Experten kontaktieren

Weitere interessante Objekte

Partner von Infina
Jetzt anfragen
ca. 85,43 m² Wohnfläche 4 Zimmer
555.000 €
Partner von Infina
Jetzt anfragen
ca. 85,43 m² Wohnfläche 4 Zimmer
493.950 €
Partner von Infina
Jetzt anfragen
ca. 72,02 m² Wohnfläche 3 Zimmer
444.110 €
Partner von Infina
Jetzt anfragen
ca. 72,02 m² Wohnfläche 3 Zimmer
453.455 €
Partner von Infina
Jetzt anfragen
ca. 67,75 m² Wohnfläche 3 Zimmer
408.955 €
Partner von Infina
Jetzt anfragen
ca. 77,39 m² Wohnfläche 3 Zimmer
525.100 €
Partner von Infina
Jetzt anfragen
ca. 68,55 m² Wohnfläche 3 Zimmer
426.310 €
Partner von Infina
Jetzt anfragen
ca. 68,55 m² Wohnfläche 3 Zimmer
416.075 €
Partner von Infina
Jetzt anfragen
ca. 83,90 m² Wohnfläche 4 Zimmer
529.550 €

Immobilie kaufen: Das passende Angebot finden

Der Kauf einer Immobilie ist eine wichtige Entscheidung – sei es für die Eigennutzung oder zur Vermietung. Mit unserem Portal unterstützen wir Sie dabei, die richtige Immobilie zu kaufen. Nutzen Sie unsere Suchmöglichkeiten, um gezielt eine Immobilie zu suchen, die Ihren Vorstellungen entspricht. Unsere Immobilienangebote decken eine breite Palette ab: vom Einfamilienhaus über die Eigentumswohnung bis hin zum Grundstück für Ihr Bauvorhaben. Mit uns können Sie sicher und unkompliziert Eigentum erwerben – ob für die private Nutzung oder als Investition als Immobilie. Erkunden Sie jetzt unsere Angebote und finden Sie die perfekte Lösung, die zu Ihren Wohn- oder Anlagezielen passt.

Fundiertes Wissen für Ihre Entscheidung, eine Immobilie zu kaufen

Bereiten Sie sich bestens vor: Infina stellt Ihnen kostenlos über 300 Ratgeber und Beiträge zu den Themen Immobilie, Finanzierung, Zinsen und Recht zur Verfügung. Nutzen Sie unser umfassendes Wissen, um richtige Entscheidungen zu treffen.

Bei jedem Kauf einer Immobilie oder eines Grundstücks ist es wichtig, die passende Finanzierung zu finden. Mit seiner eigenen Vertriebsorganisation ist Infina als Wohnbau-Finanz-Experte an über 100 Standorten in ganz Österreich vertreten und vermittelt Finanzierungen an über 150 Banken und Bausparkassen. Nutzen Sie unseren kostenlosen Kreditvergleich für den passenden Wohnkredit: 

Kreditvergleich

Kostenlos und unverbindlich

Immobilie mieten: Ihr neues Zuhause wartet

Die Entscheidung, eine Immobilie zu mieten, bietet Flexibilität und zahlreiche Möglichkeiten – ob eine Wohnung für den Alltag oder ein Haus für die Familie. Bei Infina können Sie gezielt sowohl eine Wohnung suchen als auch ein Haus suchen, das Ihren Bedürfnissen entspricht. Unsere Angebote erleichtern es Ihnen, eine Mietwohnung zu suchen und Ihre ideale Wohnung finden zu können. Entdecken Sie vielfältige Optionen, um die passende Immobilie zu finden und Ihre Wohnträume zu verwirklichen. Starten Sie noch heute Ihre Suche und profitieren Sie von einer großen Auswahl an Mietobjekten in Ihrer Wunschregion.

Hilfreiche Informationen zu Immobilie mieten

Starten Sie gut vorbereitet in Ihre Mietentscheidung: Infina stellt Ihnen vielseitige Ratgeber und Beiträge zu Themen wie Immobilie, Mietrecht, Finanzierung und Wohntrends zur Verfügung. Verschaffen Sie sich einen Überblick über alle relevanten Aspekte und gestalten Sie Ihren Weg ins neue Zuhause einfacher und sicherer.

Erfolgreich zur neuen Immobilie

Mit Infina haben Sie einen verlässlichen Partner an Ihrer Seite, der Sie von der ersten Beratung bis zum erfolgreichen Abschluss ganzheitlich unterstützt. Erfahren Sie hier, wie wir gemeinsam Ihren Immobilienerfolg gestalten.

Starten Sie jetzt Ihre Immobiliensuche

Nach zahlreichen Informationen rund um die Themen Immobilie kaufen und Immobilie mieten können Sie nun den nächsten Schritt machen. Starten Sie die Immobiliensuche, um Ihr neues Zuhause oder Ihre nächste Investition zu finden und entdecken Sie die passenden Angebote:

Das innovative Portal für Immobilien und Finanzierung 

Als Kunde von Infina profitieren Sie von unserer umfangreichen und unabhängigen Expertise als Teil einer wachsenden, unabhängigen Immobilien- und Finanzierungsnetzwerkgruppe. Bereits 50.000 Kunden hat Infina erfolgreich bei Ihrem Vorhaben begleitet. Infina bietet Ihnen eine umfassende Beratung in allen Bereichen rund um Ihre Immobilienvorhaben:

Die passende Finanzierung für Ihre Immobilie

Mit Infina erhalten Sie nicht nur eine unabhängige Beratung, sondern auch die passende Finanzierungslösung für Ihre Immobilie. Aus den Angeboten von über 150 Banken und Bausparkassen vermitteln wir Ihnen das, was perfekt zu Ihren Bedürfnissen passt. Wir begleiten Sie professionell und verlässlich – von der ersten Beratung bis zum erfolgreichen Abschluss.

Kreditvergleich

Kostenlos und unverbindlich

Wir holen das Beste für Sie heraus

Verkaufen Sie Ihre Immobilie mit uns & profitieren Sie von unserer Expertise. Wir bringen Ihre Immobilie optimal auf den Markt & erzielen den besten Preis. 

Kontaktieren Sie uns jetzt.

Jetzt Experten kontaktieren
Junge Frau im pinken Blazer hält ein Modellhaus in der linken Hand und zeigt mit der rechten Hand nach oben, als hätte sie eine Idee. Sie lächelt und blickt leicht nach oben – symbolisch für Inspiration oder Immobilienberatung.