INFINA LOGO
Entspannt zur Immobilie Persönlich & kompetent beraten Finanzierbarkeit sofort überprüfbar
685.000 €
Kostenlos &
unverbindlich.
Kontakt aufnehmen

Im Grünen Mödling – Grüne Stadtvillen

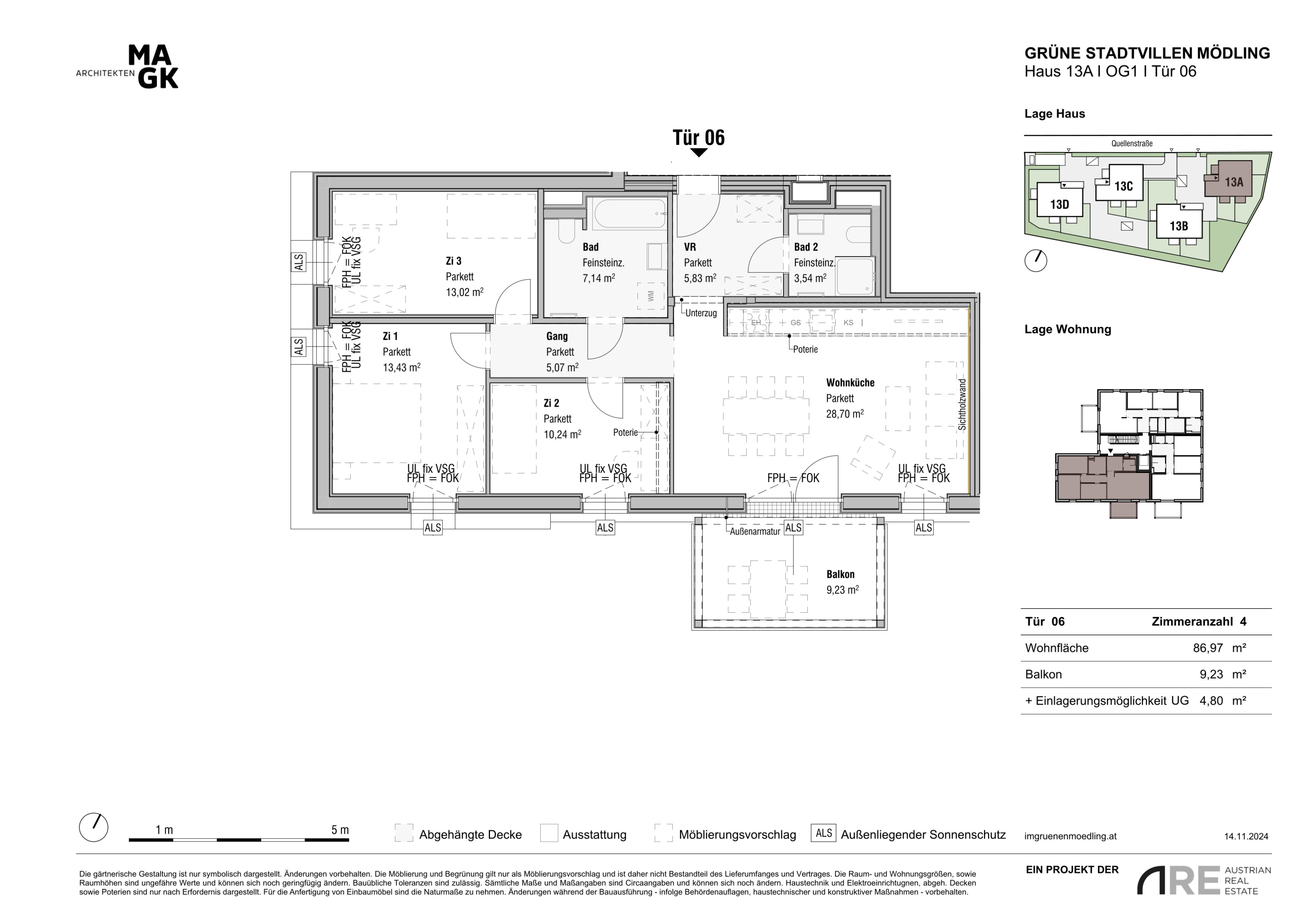
Obj. Nr.: 58141

ca. 95,75 m² Wohnfläche 4 Zimmer
Partner von Infina EHL Wohnen Immobilienmakler 
Partner von Infina EHL Wohnen Immobilienmakler
685.000 € Kaufpreis der Immobilie Kreditvergleich von über 120 Banken mit Infina.
Immobilie finanzieren
Mehr Informationen zur Immobilie: Detaillierte Einblicke in dieses Objekt.
Zurück zur Übersicht

Objektstandort

2340 Mödling, Quellenstraße, Niederösterreich

Directions Icon Fahrtzeit berechnen
Preisinformationen
Kaufpreis 685.000 €
Grundbucheintragung: 1.1 %
Grunderwerbsteuer: 3.5 %
Was kann ich mir leisten?
Jetzt berechnen
Maklerprovision:
Provision bezahlt der Abgeber.

Objektinformationen

Objektart: Wohnung
Nutzungsart: Wohnen
Bauart: Neubau
Zustand: Erstbezug
Baujahr: 2026

Rauminformationen & Flächen

Wohnfläche: ca. 95,75 m²
Kellerfläche: ca. 3,49 m²
Balkonfläche: ca. 9,23 m²
Anzahl Balkone: 1
Anzahl Zimmer: 4
Anzahl WC: 2
Anzahl Bäder: 2

Ausstattung

Boden: Fliesen, Parkett
Befeuerung: Solarenergie
Heizungsart: Fußbodenheizung
Küche: Wohnküche / offene Küche
Fahrstuhl: Personenaufzug
Balkon: Westbalkon / -terrasse
Bad: Dusche, Badewanne, Bad mit Fenster
Stellplatzart: Tiefgarage
Extras: Abstellraum, Fahrradraum

Beschreibung *

Im Grünen Mödling – Grüne Stadtvillen

Nachhaltig wohnen. Urban leben. Natürlich ankommen.

Mit Sommer 2026 werden vier baulich voneinander getrennte Stadtvillen in moderner Holzbauweise bezugsfertig. Die jeweils viergeschossigen Gebäude umfassen insgesamt 47 hochwertig geplante Wohnungen mit zwei bis fünf Zimmern und bieten zeitgemäßen Wohnraum für unterschiedlichste Lebensmodelle.

Eine eingeschossige Tiefgarage mit 71 Stellplätzen steht den Bewohnerinnen und Bewohnern zur Verfügung.

Die innovative Holzbauweise setzt neue Maßstäbe in puncto Nachhaltigkeit und Wohnqualität. Im Inneren der Wohnungen bleibt der natürliche Baustoff teilweise sichtbar und schafft eine warme, entschleunigende Raumatmosphäre mit offenem, wohnlichem Charakter. Durchdachte Grundrisse sorgen für optimale Raumnutzung und hohen Komfort.

Alle Wohnungen verfügen über private Freiflächen und verbinden so urbanes Wohnen mit einem naturnahen Lebensgefühl. Ergänzt wird das nachhaltige Gesamtkonzept durch Photovoltaikanlagen auf den Dächern sowie eine moderne Geothermieanlage, die das Gebäudeensemble klimaschonend mit Wärme versorgt.

Die versetzte Anordnung der Stadtvillen fügt sich harmonisch in die Umgebung ein und schafft großzügige, offene Vorplätze sowie gemeinschaftliche Freibereiche. Kinderspielplätze, Gemeinschaftsgärten und liebevoll gestaltete Grünräume prägen den Zwischenraum der Gebäude. Eine teilweise Fassadenbegrünung unterstreicht das grüne, zukunftsorientierte Erscheinungsbild des Projekts.

So entsteht ein Wohnumfeld, das zum Verweilen einlädt, Begegnungen fördert und ein lebendiges, nachbarschaftliches Miteinander ermöglicht – ein Zuhause für alle, die Nachhaltigkeit, Komfort und Lebensqualität vereinen möchten.

Ganz in der Nähe der Anlage befindet sich ein weiteres Projekt – „Am Fliegenspitz“ – in dem wir ebenso Eigentums- sowie Vorsorgewohnungen anbieten. Für nähere Informationen hierfür stehen wir selbstverständlich auch gerne zur Verfügung.


Fertigstellung : voraussichtlich Sommer 2026

In der hauseigenen Tiefgarage stehen Stellplätze   zum Ankauf zur Verfügung.

Kaufpreise ab EUR 25.000,-

Der Verkauf erfolgt provisionsfrei für den Käufer!


Das Projekt:

  • 47 Eigentums- und Vorsorgewohnungen
  • Wohnungsgrößen von 53 m² bis 104 m²
    • Tiefgarage mit 71 Stellplätzen ( Installation einer E-Ladestation möglich)
  • Gemeinschaftliche Freibereiche wie Kinderspielplätze und Gemeinschaftsgärten
  • Fahrrad- und Kinderwagenabstellräume
  • Eine Einlagerungsmöglichkeit je Wohnung im Untergeschoss
  • Private Freiflächen in Form von Gärten, Balkonen oder Terrassen

Die Ausstattung:

  • Fußbodenheizung und -temperierung mittels Sole-Wasser-Wärmepumpe
  • Photovoltaikanlagen
  • Hochwertige Eichenparkettböden
  • Elegantes Feinsteinzeug in den Nassräumen
  • Holz-Holz-Fenster mit 3-fach-Verglasung
  • Außenliegender, elektrisch betriebener Sonnenschutz
  • Markisen auf den Balkonen mit automatischer Windüberwachung im Dachgeschoss
  • Vorbereitung zur nachträglichen Installation von Split-Klimageräten in allen Wohnungen

Die Lage & Infrastruktur:

Die Stadtvillen liegen in einer zentralen und zugleich angenehmen Wohnlage in Mödling, einer Stadt mit ausgezeichneter Infrastruktur und hoher Lebensqualität. Die Innenstadt ist in 10-15 Minuten zu Fuß oder in 5-10 Minuten mit Rad, Auto und Öffis erreichbar. Auch Wien erreicht man nach nur rund 45 Minuten mit dem Auto oder Zug.

Öffentliche Anbindung:

Die Stationen der Buslinien 259 und 263 befinden sich nur 4 Gehminuten von der Haustüre entfernt.
Der Bahnhof Mödling ist dadurch schnell erreichbar und bietet u.a. eine schnelle Verbindung nach Wien.

Nahversorgung:

Supermärkte, Bäckereien, Apotheken sowie weitere Geschäfte des täglichen Bedarfs befinden sich im nahen Umfeld. Auch Cafés und Restaurants sind rasch erreichbar.

Medizinische Versorgung:

Eine sehr gute medizinische Infrastruktur mit Allgemein- und Fachärzten, Apotheken sowie dem Landesklinikum Mödling sorgt für umfassende Versorgung.

Schulen und Kindergärten:

Kindergärten sowie Volks- und weiterführende Schulen sind ebenfalls teils fußläufig erreichbar – ideal für Familien.

Einen detaillierteren Einblick finden Sie auf unserer EHL-Projekthomepage !

Wir weisen darauf hin, dass zwischen dem Vermittler und dem zu vermittelnden Dritten ein familiäres oder wirtschaftliches Naheverhältnis besteht.

Der Vermittler ist als Doppelmakler tätig.


Infrastruktur / Entfernungen

Gesundheit
Arzt <500m
Apotheke <500m
Klinik <750m
Krankenhaus <2.000m

Kinder & Schulen
Schule <250m
Kindergarten <250m
Höhere Schule <500m

Nahversorgung
Supermarkt <250m
Bäckerei <1.250m
Einkaufszentrum <1.500m

Sonstige
Bank <1.000m
Geldautomat <1.000m
Post <1.000m
Polizei <1.250m

Verkehr
Bus <250m
U-Bahn <6.500m
Bahnhof <1.500m
Autobahnanschluss <3.750m
Straßenbahn <3.750m

Angaben Entfernung Luftlinie / Quelle: OpenStreetMap


*Der Vertrag kommt nicht mit der INFINA Credit Broker GmbH zustande. Das Objekt wird von einem externen Immobilienunternehmen angeboten. Allfällige aus dem Vertragsabschluss resultierende Rechte sind ausschließlich gegenüber dem anbietenden Immobilienunternehmen geltend zu machen. Wir weisen Sie darauf hin, dass die gemachten Angaben und Informationen lediglich unverbindliche Vorabinformationen sind und daher ohne Gewähr erfolgen. Der Vermittler ist als Doppelmakler tätig.

Energieausweis & Heizung
HWB (kWh/m2/Jahr): 23.6
HWB Energieklasse A
fGEE: 0.43
fGEE Energieklasse A
Gültig bis: 18.02.2033
Heizung: Fußbodenheizung
Befeuerung: Solarenergie
Dokumente & Videos Pläne Exposé Preisliste Planmappe
Partner von Infina EHL Wohnen Immobilienmakler
Sonstige:
Geldautomat: 170 m
Post: 870 m
Bank: 880 m
Polizei: 1090 m
Nahversorgung:
Bäckerei: 1220 m
Supermarkt: 150 m
Einkaufszentrum: 1400 m
Verkehr:
Autobahnanschluss: 3490 m
Straßenbahn: 6660 m
U-Bahn: 6390 m
Bus: 80 m
Bahnhof: 1130 m
Kinder & Schulen:
Höhere Schule: 320 m
Kindergarten: 140 m
Schule: 600 m
Gesundheit:
Arzt: 530 m
Klinik: 730 m
Apotheke: 340 m
Krankenhaus: 1750 m

Jetzt Experten kontaktieren

Weitere interessante Objekte

Partner von Infina
Jetzt anfragen
ca. 85,43 m² Wohnfläche 4 Zimmer
520.650 €
Partner von Infina
Jetzt anfragen
ca. 82,07 m² Wohnfläche 3 Zimmer
556.250 €
Partner von Infina
Jetzt anfragen
ca. 85,43 m² Wohnfläche 4 Zimmer
493.950 €
Partner von Infina
Jetzt anfragen
ca. 83,90 m² Wohnfläche 4 Zimmer
511.750 €
Partner von Infina
Jetzt anfragen
ca. 96,39 m² Wohnfläche 4 Zimmer
635.000 €
Partner von Infina
Jetzt anfragen
ca. 96,39 m² Wohnfläche 4 Zimmer
625.000 €
Partner von Infina
Jetzt anfragen
ca. 85,09 m² Wohnfläche 3 Zimmer
680.000 €
Partner von Infina
Jetzt anfragen
ca. 82,43 m² Wohnfläche 3 Zimmer
558.900 €
Partner von Infina
Jetzt anfragen
ca. 101,49 m² Wohnfläche 4 Zimmer
779.000 €

Immobilie kaufen: Das passende Angebot finden

Der Kauf einer Immobilie ist eine wichtige Entscheidung – sei es für die Eigennutzung oder zur Vermietung. Mit unserem Portal unterstützen wir Sie dabei, die richtige Immobilie zu kaufen. Nutzen Sie unsere Suchmöglichkeiten, um gezielt eine Immobilie zu suchen, die Ihren Vorstellungen entspricht. Unsere Immobilienangebote decken eine breite Palette ab: vom Einfamilienhaus über die Eigentumswohnung bis hin zum Grundstück für Ihr Bauvorhaben. Mit uns können Sie sicher und unkompliziert Eigentum erwerben – ob für die private Nutzung oder als Investition als Immobilie. Erkunden Sie jetzt unsere Angebote und finden Sie die perfekte Lösung, die zu Ihren Wohn- oder Anlagezielen passt.

Fundiertes Wissen für Ihre Entscheidung, eine Immobilie zu kaufen

Bereiten Sie sich bestens vor: Infina stellt Ihnen kostenlos über 300 Ratgeber und Beiträge zu den Themen Immobilie, Finanzierung, Zinsen und Recht zur Verfügung. Nutzen Sie unser umfassendes Wissen, um richtige Entscheidungen zu treffen.

Bei jedem Kauf einer Immobilie oder eines Grundstücks ist es wichtig, die passende Finanzierung zu finden. Mit seiner eigenen Vertriebsorganisation ist Infina als Wohnbau-Finanz-Experte an über 100 Standorten in ganz Österreich vertreten und vermittelt Finanzierungen an über 120 Banken und Bausparkassen. Nutzen Sie unseren kostenlosen Kreditvergleich für den passenden Wohnkredit: 

Kreditvergleich

Kostenlos und unverbindlich

Immobilie mieten: Ihr neues Zuhause wartet

Die Entscheidung, eine Immobilie zu mieten, bietet Flexibilität und zahlreiche Möglichkeiten – ob eine Wohnung für den Alltag oder ein Haus für die Familie. Bei Infina können Sie gezielt sowohl eine Wohnung suchen als auch ein Haus suchen, das Ihren Bedürfnissen entspricht. Unsere Angebote erleichtern es Ihnen, eine Mietwohnung zu suchen und Ihre ideale Wohnung finden zu können. Entdecken Sie vielfältige Optionen, um die passende Immobilie zu finden und Ihre Wohnträume zu verwirklichen. Starten Sie noch heute Ihre Suche und profitieren Sie von einer großen Auswahl an Mietobjekten in Ihrer Wunschregion.

Hilfreiche Informationen zu Immobilie mieten

Starten Sie gut vorbereitet in Ihre Mietentscheidung: Infina stellt Ihnen vielseitige Ratgeber und Beiträge zu Themen wie Immobilie, Mietrecht, Finanzierung und Wohntrends zur Verfügung. Verschaffen Sie sich einen Überblick über alle relevanten Aspekte und gestalten Sie Ihren Weg ins neue Zuhause einfacher und sicherer.

Erfolgreich zur neuen Immobilie

Mit Infina haben Sie einen verlässlichen Partner an Ihrer Seite, der Sie von der ersten Beratung bis zum erfolgreichen Abschluss ganzheitlich unterstützt. Erfahren Sie hier, wie wir gemeinsam Ihren Immobilienerfolg gestalten.

Starten Sie jetzt Ihre Immobiliensuche

Nach zahlreichen Informationen rund um die Themen Immobilie kaufen und Immobilie mieten können Sie nun den nächsten Schritt machen. Starten Sie die Immobiliensuche, um Ihr neues Zuhause oder Ihre nächste Investition zu finden und entdecken Sie die passenden Angebote:

Das innovative Portal für Immobilien und Finanzierung 

Als Kunde von Infina profitieren Sie von unserer umfangreichen und unabhängigen Expertise als Teil einer wachsenden, unabhängigen Immobilien- und Finanzierungsnetzwerkgruppe. Bereits 50.000 Kunden hat Infina erfolgreich bei Ihrem Vorhaben begleitet. Infina bietet Ihnen eine umfassende Beratung in allen Bereichen rund um Ihre Immobilienvorhaben:

Die passende Finanzierung für Ihre Immobilie

Mit Infina erhalten Sie nicht nur eine unabhängige Beratung, sondern auch die passende Finanzierungslösung für Ihre Immobilie. Aus den Angeboten von über 120 Banken und Bausparkassen vermitteln wir Ihnen das, was perfekt zu Ihren Bedürfnissen passt. Wir begleiten Sie professionell und verlässlich – von der ersten Beratung bis zum erfolgreichen Abschluss.

Kreditvergleich

Kostenlos und unverbindlich

Wir holen das Beste für Sie heraus

Verkaufen Sie Ihre Immobilie mit uns & profitieren Sie von unserer Expertise. Wir bringen Ihre Immobilie optimal auf den Markt & erzielen den besten Preis. 

Kontaktieren Sie uns jetzt.

Jetzt Experten kontaktieren
Junge Frau im pinken Blazer hält ein Modellhaus in der linken Hand und zeigt mit der rechten Hand nach oben, als hätte sie eine Idee. Sie lächelt und blickt leicht nach oben – symbolisch für Inspiration oder Immobilienberatung.