INFINA LOGO
Entspannt zur Immobilie Persönlich & kompetent beraten Finanzierbarkeit sofort überprüfbar
698.000 €
Kostenlos &
unverbindlich.
Kontakt aufnehmen
+ 1 Bilder

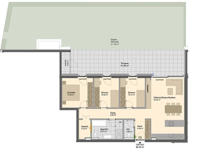
4-Zimmer Wohnung mit schönem Garten (Top A01)

Obj. Nr.: 35608

ca. 96,22 m² Wohnfläche 4 Zimmer
Partner von Infina ZIMA Bauträger 
Partner von Infina ZIMA Bauträger
698.000 € Kaufpreis der Immobilie Kreditvergleich von über 120 Banken mit Infina.
Immobilie finanzieren
Mehr Informationen zur Immobilie: Detaillierte Einblicke in dieses Objekt.
Zurück zur Übersicht

Objektstandort

6890 Lustenau, Flurstraße 30d, Dornbirn, Vorarlberg

Directions Icon Fahrtzeit berechnen
Preisinformationen
Kaufpreis 698.000 €
Grundbucheintragung: 1.1 %
Grunderwerbsteuer: 3.5 %
Was kann ich mir leisten?
Jetzt berechnen

Objektinformationen

Objektart: Wohnung
Unterobjektart: Erdgeschoß
Nutzungsart: Wohnen
Bauart: Neubau
Zustand: Erstbezug

Rauminformationen & Flächen

Wohnfläche: ca. 96,22 m²
Gartenfläche: ca. 124,00 m²
Kellerfläche: ca. 7,38 m²
Terrassenfläche: ca. 41,85 m²
Anzahl Terrassen: 1
Anzahl Zimmer: 4

Ausstattung

Fahrstuhl: Personenaufzug

Beschreibung *

Modern, offen, durchdacht - das Neubauprojekt Flurstraße bietet ein stilvolles Zuhause für jede Lebensphase. Inmitten einer idyllischen, ruhigen Umgebung nahe dem Alten Rhein und mit attraktiver Infrastruktur erleben Sie hier modernes Wohnen auf hohem Niveau.


Stilvoller Wohngenuss mit viel Freiraum:

Inmitten einer ruhigen, grünen Umgebung entsteht mit dem Projekt Flurstraße ein Neubau, der modernes Design mit vollkommenem Wohnkomfort verbindet. Die beiden L-förmigen Baukörper ergeben mit ihrer dunklen Holzfassade und den eleganten, geradlinigen Strukturen ein harmonisches Gesamtbild.

Die großzügigen, überdachten Terrassen erweitern den Wohnraum ins Freie und laden zu entspannten Stunden mit Weitblick ein. Die 2- bis 4-Zimmer Wohnungen bieten durchdachte Grundrisse für unterschiedliche Lebensentwürfe. Eine Tiefgarage, Kellerabteile, ein Fahrradraum und ein eigener Spielplatz sorgen für Komfort.

Dank der durchdachten Architektur und der versetzten Anordnung der Wohnhäuser, bleibt genügend Freiraum zwischen den Gebäuden – für mehr Privatsphäre, viel Tageslicht und unverbaute Ausblicke. Hochwertige Materialien, natürliche Farben und Akzente schaffen eine zeitlose, stilvolle Atmosphäre. Begrünte Dächer und nachhaltige Details, wie die Photovoltaikanlage, runden das Konzept ab.


Hohe Lebensqualität in naturnaher Lage:

In der Flurstraße in Lustenau entsteht ein Wohnprojekt, das Ruhe und Erholung in den Mittelpunkt stellt. Die Lage nahe dem Alten Rhein bietet ideale Voraussetzungen, um die Natur in vollen Zügen zu genießen: naturbelassene Badebuchten, ausgedehnte Wiesen und ein weit verzweigtes Netz an Fahrradwegen laden zu entspannten Stunden im Freien ein. Hier finden Naturliebhaber und Erholungssuchende gleichermaßen einen Ort, um den Alltag hinter sich zu lassen.

Trotz der idyllischen Umgebung überzeugt die Flurstraße durch ihre ausgezeichnete Anbindung. Der Lustenauer Knotenpunkt „Gasthaus Engel“ sowie die Autobahnauffahrten Dornbirn West und Hohenems sind in wenigen Minuten erreichbar. Die nahegelegene Bushaltestelle „Wiesenrain“ verbindet Sie schnell mit zentralen Zielen wie dem Kirchplatz Lustenau, der Messekreuzung Dornbirn oder dem Bahnhof Hohenems. Die Nähe zur Schweizer Grenze macht die Flurstraße besonders attraktiv für Pendler.

Lustenau selbst bietet mit seinen vielfältigen Einkaufsmöglichkeiten, einer guten Infrastruktur und dem „blauen Platz“ alles, was Sie für einen entspannten Alltag benötigen.

*Wir weisen Sie darauf hin, dass die gemachten Angaben und Informationen lediglich unverbindliche Vorabinformationen sind und daher ohne Gewähr erfolgen. Die Angaben beruhen auf Informationen und Unterlagen, die uns von Dritten bereitgestellt wurden.

Dokumente & Videos Folder Flustrasse 144dpi Top A01 EG
Partner von Infina ZIMA Bauträger
Kinder & Schulen:
Höhere Schule: 2500 m
Schule: 590 m
Kindergarten: 590 m
Universität: 6350 m
Verkehr:
Autobahnanschluss: 2120 m
Bahnhof: 2450 m
Bus: 90 m
Flughafen: 4240 m
Sonstige:
Polizei: 1800 m
Bank: 490 m
Post: 1710 m
Geldautomat: 2050 m
Nahversorgung:
Bäckerei: 1470 m
Einkaufszentrum: 1660 m
Supermarkt: 810 m
Gesundheit:
Apotheke: 890 m
Arzt: 750 m
Krankenhaus: 5630 m
Klinik: 6040 m

Jetzt Experten kontaktieren

Weitere interessante Objekte

Lustenau
Partner von Infina
Jetzt anfragen
Auf Anfrage
Lustenau
Partner von Infina
Jetzt anfragen
Auf Anfrage
Lustenau
Partner von Infina
Jetzt anfragen
819.000 €
Lustenau
Partner von Infina
Jetzt anfragen
839.000 €
Lustenau
Partner von Infina
Jetzt anfragen
612.000 €
Partner von Infina
Jetzt anfragen
ca. 100,74 m² Wohnfläche 4 Zimmer
718.000 €

Immobilie kaufen: Das passende Angebot finden

Der Kauf einer Immobilie ist eine wichtige Entscheidung – sei es für die Eigennutzung oder zur Vermietung. Mit unserem Portal unterstützen wir Sie dabei, die richtige Immobilie zu kaufen. Nutzen Sie unsere Suchmöglichkeiten, um gezielt eine Immobilie zu suchen, die Ihren Vorstellungen entspricht. Unsere Immobilienangebote decken eine breite Palette ab: vom Einfamilienhaus über die Eigentumswohnung bis hin zum Grundstück für Ihr Bauvorhaben. Mit uns können Sie sicher und unkompliziert Eigentum erwerben – ob für die private Nutzung oder als Investition als Immobilie. Erkunden Sie jetzt unsere Angebote und finden Sie die perfekte Lösung, die zu Ihren Wohn- oder Anlagezielen passt.

Fundiertes Wissen für Ihre Entscheidung, eine Immobilie zu kaufen

Bereiten Sie sich bestens vor: Infina stellt Ihnen kostenlos über 300 Ratgeber und Beiträge zu den Themen Immobilie, Finanzierung, Zinsen und Recht zur Verfügung. Nutzen Sie unser umfassendes Wissen, um richtige Entscheidungen zu treffen.

Bei jedem Kauf einer Immobilie oder eines Grundstücks ist es wichtig, die passende Finanzierung zu finden. Mit seiner eigenen Vertriebsorganisation ist Infina als Wohnbau-Finanz-Experte an über 100 Standorten in ganz Österreich vertreten und vermittelt Finanzierungen an über 120 Banken und Bausparkassen. Nutzen Sie unseren kostenlosen Kreditvergleich für den passenden Wohnkredit: 

Kreditvergleich

Kostenlos und unverbindlich

Immobilie mieten: Ihr neues Zuhause wartet

Die Entscheidung, eine Immobilie zu mieten, bietet Flexibilität und zahlreiche Möglichkeiten – ob eine Wohnung für den Alltag oder ein Haus für die Familie. Bei Infina können Sie gezielt sowohl eine Wohnung suchen als auch ein Haus suchen, das Ihren Bedürfnissen entspricht. Unsere Angebote erleichtern es Ihnen, eine Mietwohnung zu suchen und Ihre ideale Wohnung finden zu können. Entdecken Sie vielfältige Optionen, um die passende Immobilie zu finden und Ihre Wohnträume zu verwirklichen. Starten Sie noch heute Ihre Suche und profitieren Sie von einer großen Auswahl an Mietobjekten in Ihrer Wunschregion.

Hilfreiche Informationen zu Immobilie mieten

Starten Sie gut vorbereitet in Ihre Mietentscheidung: Infina stellt Ihnen vielseitige Ratgeber und Beiträge zu Themen wie Immobilie, Mietrecht, Finanzierung und Wohntrends zur Verfügung. Verschaffen Sie sich einen Überblick über alle relevanten Aspekte und gestalten Sie Ihren Weg ins neue Zuhause einfacher und sicherer.

Erfolgreich zur neuen Immobilie

Mit Infina haben Sie einen verlässlichen Partner an Ihrer Seite, der Sie von der ersten Beratung bis zum erfolgreichen Abschluss ganzheitlich unterstützt. Erfahren Sie hier, wie wir gemeinsam Ihren Immobilienerfolg gestalten.

Starten Sie jetzt Ihre Immobiliensuche

Nach zahlreichen Informationen rund um die Themen Immobilie kaufen und Immobilie mieten können Sie nun den nächsten Schritt machen. Starten Sie die Immobiliensuche, um Ihr neues Zuhause oder Ihre nächste Investition zu finden und entdecken Sie die passenden Angebote:

Das innovative Portal für Immobilien und Finanzierung 

Als Kunde von Infina profitieren Sie von unserer umfangreichen und unabhängigen Expertise als Teil einer wachsenden, unabhängigen Immobilien- und Finanzierungsnetzwerkgruppe. Bereits 50.000 Kunden hat Infina erfolgreich bei Ihrem Vorhaben begleitet. Infina bietet Ihnen eine umfassende Beratung in allen Bereichen rund um Ihre Immobilienvorhaben:

Die passende Finanzierung für Ihre Immobilie

Mit Infina erhalten Sie nicht nur eine unabhängige Beratung, sondern auch die passende Finanzierungslösung für Ihre Immobilie. Aus den Angeboten von über 120 Banken und Bausparkassen vermitteln wir Ihnen das, was perfekt zu Ihren Bedürfnissen passt. Wir begleiten Sie professionell und verlässlich – von der ersten Beratung bis zum erfolgreichen Abschluss.

Kreditvergleich

Kostenlos und unverbindlich

Wir holen das Beste für Sie heraus

Verkaufen Sie Ihre Immobilie mit uns & profitieren Sie von unserer Expertise. Wir bringen Ihre Immobilie optimal auf den Markt & erzielen den besten Preis. 

Kontaktieren Sie uns jetzt.

Jetzt Experten kontaktieren
Junge Frau im pinken Blazer hält ein Modellhaus in der linken Hand und zeigt mit der rechten Hand nach oben, als hätte sie eine Idee. Sie lächelt und blickt leicht nach oben – symbolisch für Inspiration oder Immobilienberatung.