INFINA LOGO
Entspannt zur Immobilie Persönlich & kompetent beraten Finanzierbarkeit sofort überprüfbar
1.078.000 € 10.079 €/m²
Kostenlos &
unverbindlich.
Kontakt aufnehmen

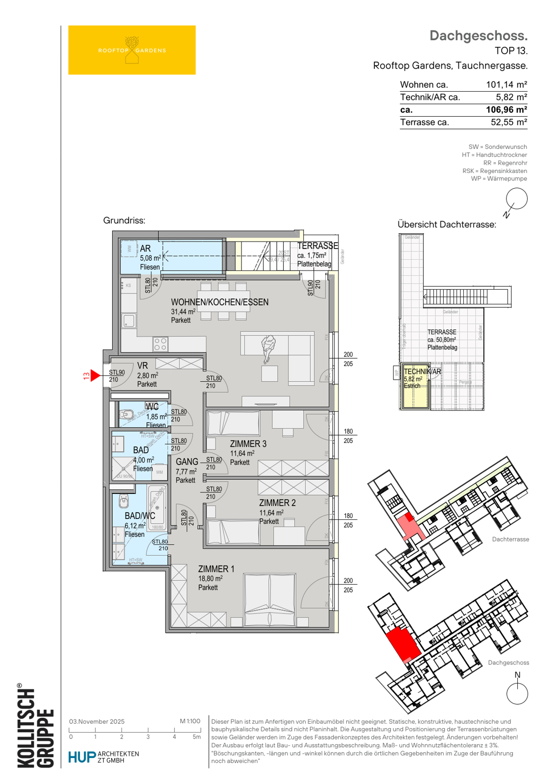
ROOFTOP GARDENS | Top 13 | Wohnen auf höchstem Niveau in Klosterneuburg.

Obj. Nr.: 50234

ca. 106,96 m² Wohnfläche 4 Zimmer
Partner von Infina Kollitsch Immobilien Immobilienmakler 
Partner von Infina Kollitsch Immobilien Immobilienmakler
1.078.000 € Kaufpreis der Immobilie Kreditvergleich von über 120 Banken mit Infina.
Immobilie finanzieren
Mehr Informationen zur Immobilie: Detaillierte Einblicke in dieses Objekt.
Zurück zur Übersicht

Objektstandort

3400 Klosterneuburg, Tulln, Niederösterreich Adresse anfragen

Directions Icon Fahrtzeit berechnen
Preisinformationen
Kaufpreis 1.078.000 €
Grundbucheintragung: 1.1 %
Grunderwerbsteuer: 3.5 %
Was kann ich mir leisten?
Jetzt berechnen

Objektinformationen

Objektart: Wohnung
Nutzungsart: Wohnen

Rauminformationen & Flächen

Wohnfläche: ca. 106,96 m²
Anzahl Zimmer: 4

Ausstattung

Fahrstuhl: Personenaufzug
Extras: Gartennutzung, Fahrradraum, Seniorengerecht

Beschreibung *

ROOFTOP GARDENS.
Wohnen mit besten Aussichten.

Über den Dächern Klosterneuburgs entsteht ein Ort, der Weitblick mit Wohnqualität verbindet. In **ROOFTOP GARDENS** entfalten **zwölf exklusive Dachgeschoßwohnungen** ein Lebensgefühl, das Raum zum Aufblühen, Durchatmen und Ankommen schafft. Großzügige Verglasungen öffnen den Blick auf Wien, die umliegenden Weinberge und die historische Altstadt, während private Dachgärten Rückzugsorte schaffen, in denen Natur und Architektur harmonisch miteinander verschmelzen.

Nachhaltig geplant und mit dem **ÖGNI-Gold-Zertifikat** ausgezeichnet, steht dieses Projekt für eine neue Form des Wohnens – klar in der Architektur, durchdacht in der Konzeption und geprägt von zeitloser Eleganz. Hier entsteht ein Zuhause für Menschen, die bewusst leben, Sinn schätzen und Wert auf Qualität legen.

NICE TO KNOW
- 12 exklusive Dachgeschoßwohnungen ohne Dachschrägen
- 50 bis 230 m² Wohnfläche
- Private Dachgärten, Terrassen und Balkone mit Weitblick
- Raumhöhen über 3 Meter in allen Aufenthaltsräumen
- Nachhaltige Energie durch Photovoltaik und Wärmepumpe
- Holz-Alu-Fenster, erlesene Materialien, Premium-Bäder
- 12 Stellplätze mit E-Ladevorbereitung, 30 Fahrradplätze
- Zentrale Lage, fußläufig zu Einkauf, Schulen und Kultur
-Nur 25 Minuten ins Wiener Stadtzentrum

Die zwölf exklusiven Dachgeschoßwohnungen vereinen Weitblick, Ästhetik und nachhaltigen Komfort. Raumhöhen von über drei Metern, großzügige Verglasungen und offene Grundrisse schaffen eine lichte, offene Atmosphäre und betonen das Gefühl von Freiheit über den Dächern der Stadt. Jede Wohnung ist individuell geplant, mit hochwertigen Materialien ausgestattet und so gestaltet, dass Innen- und Außenraum in fließendem Dialog stehen.

Private Dachgärten, Terrassen und Balkone holen das Grün bis in den Wohnbereich und schenken jedem Raum eine besondere Tiefe. Holz-Alu-Fenster, Premium-Bäder und natürliche Materialien unterstreichen den Anspruch an Qualität und Langlebigkeit. Technisch überzeugt das Projekt mit modernster Haustechnik: Luft-Wasser-Wärmepumpen, Photovoltaikanlagen und ein durchdachtes Energiekonzept sorgen für Effizienz, Wirtschaftlichkeit und ein angenehmes Raumklima.

ROOFTOP GARDENS ist ÖGNI-Gold zertifiziert und erfüllt die Anforderungen der EU-Taxonomie – ein sichtbares Zeichen für nachhaltiges, verantwortungsvolles Bauen. Auch in der Mobilität zeigt sich dieser Anspruch: zwölf Pkw-Stellplätze sind für E-Ladestationen vorbereitet, und 30 Fahrradabstellplätze fördern eine moderne, umweltbewusste Lebensweise.

So entsteht ein Wohnort, der Stil, Bewusstsein und Lebensqualität in Einklang bringt – ein Refugium über den Dächern Klosterneuburgs, geschaffen für Menschen mit Blick nach vorn.

ROOFTOP GARDENS liegt im Herzen Klosterneuburgs, wo Stadtleben, Kultur und Natur auf einzigartige Weise ineinandergreifen. Nur wenige Schritte entfernt finden sich charmante Boutiquen, ausgezeichnete Restaurants und traditionelle Heurige, ebenso wie Schulen, Nahversorger und kulturelle Einrichtungen. Das Stift Klosterneuburg und die Babenbergerhalle liegen ebenso in fußläufiger Distanz wie die Ufer der Donau und die umliegenden Weinberge, die zum Spazieren, Laufen oder Verweilen einladen.

Wer das urbane Flair Wiens sucht, erreicht den Stephansplatz in nur 25 Autominuten oder entspannt mit der Bahn vom nahegelegenen Bahnhof Klosterneuburg-Weidling. Damit verbindet ROOFTOP GARDENS die Vorzüge einer lebenswerten Kleinstadt mit der Nähe zur Großstadt – ein Wohnort, der beides ermöglicht: Ankommen und Aufbrechen.

*Der Vertrag kommt nicht mit der INFINA Credit Broker GmbH zustande. Das Objekt wird von einem externen Immobilienunternehmen angeboten. Allfällige aus dem Vertragsabschluss resultierende Rechte sind ausschließlich gegenüber dem anbietenden Immobilienunternehmen geltend zu machen. Wir weisen Sie darauf hin, dass die gemachten Angaben und Informationen lediglich unverbindliche Vorabinformationen sind und daher ohne Gewähr erfolgen. Der Vermittler ist als Doppelmakler tätig.

Dokumente & Videos Pläne
Partner von Infina Kollitsch Immobilien Immobilienmakler
Gesundheit:
Apotheke: 390 m
Arzt: 350 m
Klinik: 4540 m
Krankenhaus: 640 m
Verkehr:
Autobahnanschluss: 2870 m
U-Bahn: 6700 m
Bahnhof: 770 m
Bus: 80 m
Straßenbahn: 4510 m
Sonstige:
Post: 120 m
Polizei: 260 m
Geldautomat: 130 m
Bank: 120 m
Nahversorgung:
Supermarkt: 100 m
Bäckerei: 380 m
Einkaufszentrum: 3790 m
Kinder & Schulen:
Kindergarten: 430 m
Universität: 3190 m
Schule: 110 m
Höhere Schule: 6170 m

Jetzt Experten kontaktieren

Weitere interessante Objekte

Klosterneuburg
Partner von Infina
Jetzt anfragen
10.515 €/m²
1.078.000 €
Klosterneuburg
Partner von Infina
Jetzt anfragen
10.271 €/m²
1.048.000 €
Klosterneuburg
Partner von Infina
Jetzt anfragen
10.395 €/m²
928.000 €
Klosterneuburg
Partner von Infina
Jetzt anfragen
10.109 €/m²
1.235.000 €
Klosterneuburg
Partner von Infina
Jetzt anfragen
10.010 €/m²
892.000 €
Klosterneuburg
Partner von Infina
Jetzt anfragen
9.892 €/m²
998.000 €
Klosterneuburg
Partner von Infina
Jetzt anfragen
10.265 €/m²
995.000 €
Partner von Infina
Jetzt anfragen
1.214 €
Partner von Infina
Jetzt anfragen
1.291 €

Immobilie kaufen: Das passende Angebot finden

Der Kauf einer Immobilie ist eine wichtige Entscheidung – sei es für die Eigennutzung oder zur Vermietung. Mit unserem Portal unterstützen wir Sie dabei, die richtige Immobilie zu kaufen. Nutzen Sie unsere Suchmöglichkeiten, um gezielt eine Immobilie zu suchen, die Ihren Vorstellungen entspricht. Unsere Immobilienangebote decken eine breite Palette ab: vom Einfamilienhaus über die Eigentumswohnung bis hin zum Grundstück für Ihr Bauvorhaben. Mit uns können Sie sicher und unkompliziert Eigentum erwerben – ob für die private Nutzung oder als Investition als Immobilie. Erkunden Sie jetzt unsere Angebote und finden Sie die perfekte Lösung, die zu Ihren Wohn- oder Anlagezielen passt.

Fundiertes Wissen für Ihre Entscheidung, eine Immobilie zu kaufen

Bereiten Sie sich bestens vor: Infina stellt Ihnen kostenlos über 300 Ratgeber und Beiträge zu den Themen Immobilie, Finanzierung, Zinsen und Recht zur Verfügung. Nutzen Sie unser umfassendes Wissen, um richtige Entscheidungen zu treffen.

Bei jedem Kauf einer Immobilie oder eines Grundstücks ist es wichtig, die passende Finanzierung zu finden. Mit seiner eigenen Vertriebsorganisation ist Infina als Wohnbau-Finanz-Experte an über 100 Standorten in ganz Österreich vertreten und vermittelt Finanzierungen an über 120 Banken und Bausparkassen. Nutzen Sie unseren kostenlosen Kreditvergleich für den passenden Wohnkredit: 

Kreditvergleich

Kostenlos und unverbindlich

Immobilie mieten: Ihr neues Zuhause wartet

Die Entscheidung, eine Immobilie zu mieten, bietet Flexibilität und zahlreiche Möglichkeiten – ob eine Wohnung für den Alltag oder ein Haus für die Familie. Bei Infina können Sie gezielt sowohl eine Wohnung suchen als auch ein Haus suchen, das Ihren Bedürfnissen entspricht. Unsere Angebote erleichtern es Ihnen, eine Mietwohnung zu suchen und Ihre ideale Wohnung finden zu können. Entdecken Sie vielfältige Optionen, um die passende Immobilie zu finden und Ihre Wohnträume zu verwirklichen. Starten Sie noch heute Ihre Suche und profitieren Sie von einer großen Auswahl an Mietobjekten in Ihrer Wunschregion.

Hilfreiche Informationen zu Immobilie mieten

Starten Sie gut vorbereitet in Ihre Mietentscheidung: Infina stellt Ihnen vielseitige Ratgeber und Beiträge zu Themen wie Immobilie, Mietrecht, Finanzierung und Wohntrends zur Verfügung. Verschaffen Sie sich einen Überblick über alle relevanten Aspekte und gestalten Sie Ihren Weg ins neue Zuhause einfacher und sicherer.

Erfolgreich zur neuen Immobilie

Mit Infina haben Sie einen verlässlichen Partner an Ihrer Seite, der Sie von der ersten Beratung bis zum erfolgreichen Abschluss ganzheitlich unterstützt. Erfahren Sie hier, wie wir gemeinsam Ihren Immobilienerfolg gestalten.

Starten Sie jetzt Ihre Immobiliensuche

Nach zahlreichen Informationen rund um die Themen Immobilie kaufen und Immobilie mieten können Sie nun den nächsten Schritt machen. Starten Sie die Immobiliensuche, um Ihr neues Zuhause oder Ihre nächste Investition zu finden und entdecken Sie die passenden Angebote:

Das innovative Portal für Immobilien und Finanzierung 

Als Kunde von Infina profitieren Sie von unserer umfangreichen und unabhängigen Expertise als Teil einer wachsenden, unabhängigen Immobilien- und Finanzierungsnetzwerkgruppe. Bereits 50.000 Kunden hat Infina erfolgreich bei Ihrem Vorhaben begleitet. Infina bietet Ihnen eine umfassende Beratung in allen Bereichen rund um Ihre Immobilienvorhaben:

Die passende Finanzierung für Ihre Immobilie

Mit Infina erhalten Sie nicht nur eine unabhängige Beratung, sondern auch die passende Finanzierungslösung für Ihre Immobilie. Aus den Angeboten von über 120 Banken und Bausparkassen vermitteln wir Ihnen das, was perfekt zu Ihren Bedürfnissen passt. Wir begleiten Sie professionell und verlässlich – von der ersten Beratung bis zum erfolgreichen Abschluss.

Kreditvergleich

Kostenlos und unverbindlich

Wir holen das Beste für Sie heraus

Verkaufen Sie Ihre Immobilie mit uns & profitieren Sie von unserer Expertise. Wir bringen Ihre Immobilie optimal auf den Markt & erzielen den besten Preis. 

Kontaktieren Sie uns jetzt.

Jetzt Experten kontaktieren
Junge Frau im pinken Blazer hält ein Modellhaus in der linken Hand und zeigt mit der rechten Hand nach oben, als hätte sie eine Idee. Sie lächelt und blickt leicht nach oben – symbolisch für Inspiration oder Immobilienberatung.