INFINA LOGO
Entspannt zur Immobilie Persönlich & kompetent beraten Finanzierbarkeit sofort überprüfbar
706.800 € 8.971 €/m²
Kostenlos &
unverbindlich.
Kontakt aufnehmen

VINZENZ | Eigentumswohnungen in der Rizzistraße.

Obj. Nr.: 50242

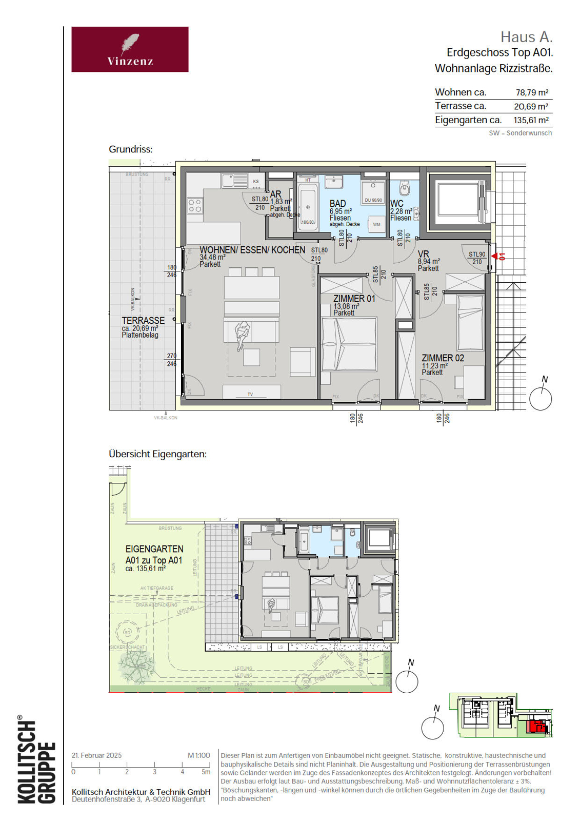
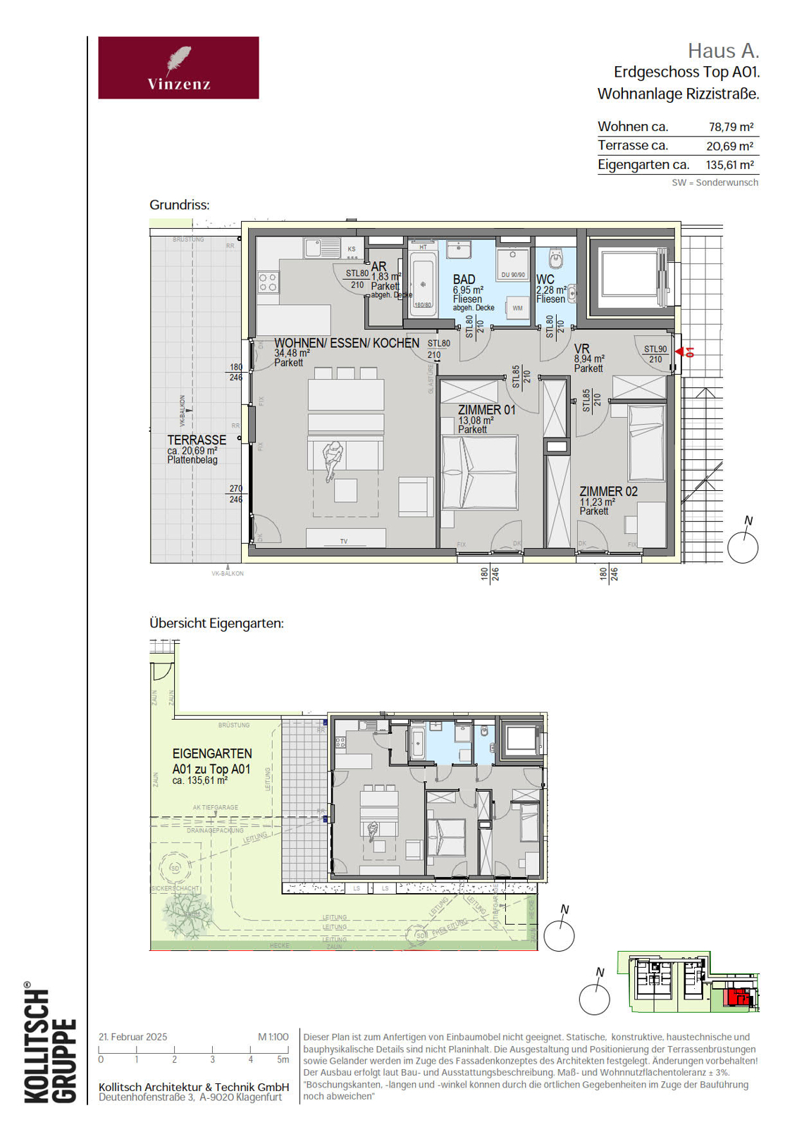
ca. 78,79 m² Wohnfläche 3 Zimmer
Partner von Infina Kollitsch Immobilien Immobilienmakler 
Partner von Infina Kollitsch Immobilien Immobilienmakler
706.800 € Kaufpreis der Immobilie Kreditvergleich von über 120 Banken mit Infina.
Immobilie finanzieren
Mehr Informationen zur Immobilie: Detaillierte Einblicke in dieses Objekt.
Zurück zur Übersicht

Objektstandort

9020 Klagenfurt am Wörthersee, Kärnten Adresse anfragen

Directions Icon Fahrtzeit berechnen
Preisinformationen
Kaufpreis 706.800 €
Grundbucheintragung: 1.1 %
Grunderwerbsteuer: 3.5 %
Was kann ich mir leisten?
Jetzt berechnen

Objektinformationen

Objektart: Wohnung
Unterobjektart: Etagenwohnung
Nutzungsart: Wohnen

Rauminformationen & Flächen

Wohnfläche: ca. 78,79 m²
Gartenfläche: ca. 135,61 m²
Kellerfläche: ca. 9,68 m²
Anzahl Zimmer: 3

Ausstattung

Fahrstuhl: Personenaufzug
Fernsehen: Kabel / Satelliten-TV
Extras: Wasch- / Trockenraum, Abstellraum, Fahrradraum, Seniorengerecht

Beschreibung *

**DAS FEDERLEICHTE LEBEN.**
Ein neues Kapitel aufschlagen. In erlesenen Eigentumswohnungen mit viel Privatsphäre. Ganz nah am Klagenfurter Kreuzbergl. Nur einen Flügelschlag von Innenstadt und Wörthersee entfernt. Wo das Leben federleichte Geschichten schreibt. Erstaunlich inspirierend. Das ist Vinzenz.

**DIE LAGE. EIN GEDICHT. **
Die Rizzistraße liegt am Fuße des Naturidylls Kreuzbergl und mitten im Villenviertel der Stadt Klagenfurt. Es ist herrlich ruhig. Der Wald im Norden lädt zum Spazieren ein. Im Westen lockt der Wörthersee mit kristallklarem Wasser. Und in den Restaurants des östlich gelegenen Stadtzentrums warten verlockende Spezialitäten. Wonach man sich auch immer sehnt: Alles liegt wunderbar nah.

**MORGENSTUND’ IM BLÄTTERWALD.**
Die würzige Luft einatmen. Über den weichen Waldboden laufen, am Karawankenblick-Pavillon vorbei bis hinauf zur Zillhöhe. Zur Kreuzberglkirche spazieren und den Blick über die Stadt schweifen lassen. Die Frösche in den Teichen beobachten. Oder die üppige Flora im Botanischen Garten bestaunen. Das Kreuzbergl ist ein Paradies, ein Genuss für Körper und Geist – und nur acht Gehminuten entfernt.

**ZWISCHEN INNENSTADT UND WÖRTHERSEE.**
Auch stille Wasser sind zum Genießen nah. Den Lendkanal erreichen Sie in nur fünf Gehminuten. Und wenn Sie sich aufs Rad schwingen, sind Sie in gemütlichen fünfzehn Minuten am Ufer des Wörthersees. Der Stadtkern liegt aber noch viel näher. Mit dem Rad sind Sie in nur zehn Minuten auf dem Alten Platz – und mitten in der historischen Altstadt von Klagenfurt.

**NACHHALTIGKEIT. SCHWARZ AUF WEISS.**
Vinzenz begeistert mit einem nachhaltigen Energiekonzept. Geheizt wird mit Geothermie. Gekühlt wird mit Bauteilaktivierung über die Decken. Die hauseigene Photovoltaikanlage liefert umweltfreundlichen Sonnenstrom. Und den können Sie auf Wunsch auch zum Laden Ihres Elektroautos nutzen. Die Tiefgaragenplätze sind nämlich bereits E-Mobility-ready und können jederzeit mit Ladestationen ausgerüstet werden.

**SO SCHÖN. SO VIELSEITIG.**
Die Infrastruktur rund um Vinzenz lässt keine Wünsche offen: In direkter Umgebung finden Sie verschiedenste Nahversorger, Kindergärten, Schulen, Arztpraxen, Krankenhäuser und eine Apotheke. Der Fahrradweg entlang des Lendkanals führt ostwärts in die Innenstadt und westwärts zum Wörthersee. Die nächste Bushaltestelle liegt gleich ums Eck.

**VON DER MUSE GEKÜSST.**
Rund um Vinzenz bieten sich Ihnen wunderbar viele Möglichkeiten für Freizeitaktivitäten. Tun Sie einfach, wonach Ihnen der Sinn steht: Mit dem Bike um den Wörthersee fahren. Unterm Blätterdach des Kreuzbergls spazieren gehen. Im Lendhafen Kaffee trinken. Am See liegen und die Sonne genießen. In der Innenstadt shoppen. Die Stadtgalerie besuchen. Zwischendurch auch mal zu Hause die Seele baumeln lassen. Gitarre spielen. Zur Staffelei greifen. Das Notizbuch zur Hand nehmen. Und reine Lebensfreude zu Papier bringen.

**EIN NEUES ZUHAUSE. EIN SCHÖNER GEDANKE.**
Die Häuser des dreiteiligen Gebäudeensembles tragen die klingenden Namen Silberbach, Goldfeder und Blütenwind. Insgesamt gibt es nur zehn Eigentumswohnungen. Die hochwertige Architektur ist großzügig, geradlinig und sehr auf Privatsphäre bedacht.

**EINE ERSTAUSGABE, DIE BÄNDE SPRICHT.**
Lichtdurchflutete Räume, perfekt durchdachte Grundrisse und eine hochwertige Ausstattung: In Ihrem neuen Zuhause genießen Sie gehobenen Wohnkomfort von A bis Z. Außerdem gehört zu jeder Wohnung ein eigener Garten, ein Balkon oder eine Terrasse. Ein privater Rückzugsort für lauschige Momente im Freien.

**DIE WOHNKUNSTWERKE.**
Erfreuen Sie sich an Baukunst auf höchstem Niveau. Die Häuser Silberbach, Goldfeder und Blütenwind sind sagenhaft schöne Wohnobjekte mit dem Prädikat wertvoll. In ihnen befinden sich insgesamt zehn Eigentumswohnungen mit Flächen von ca. 45 bis 120 m² und Eigengarten, Balkon oder Terrasse. In der hauseigenen Tiefgarage parken Sie bequem auf einem der 18 Stellplätze, die bereits EMobilityready sind. Sie können auf Wunsch mit Ladestationen versehen werden. Mit dem Lift geht es dann nach oben, in einigen Fällen sogar bis direkt in die Wohnung. Doch egal ob Sie sich für das Penthouse oder eine Zwei-, Drei- oder Vierzimmerwohnung entscheiden: Die Ausstattung ist in allen Wohnungen erstklassig. Von den Parkettböden bis zu den Badezimmerarmaturen. Von den elektrischen Raffstores bis zur vorbereiteten Smart-Home-Verkabelung.

*Der Vertrag kommt nicht mit der INFINA Credit Broker GmbH zustande. Das Objekt wird von einem externen Immobilienunternehmen angeboten. Allfällige aus dem Vertragsabschluss resultierende Rechte sind ausschließlich gegenüber dem anbietenden Immobilienunternehmen geltend zu machen. Wir weisen Sie darauf hin, dass die gemachten Angaben und Informationen lediglich unverbindliche Vorabinformationen sind und daher ohne Gewähr erfolgen. Der Vermittler ist als Doppelmakler tätig.

Dokumente & Videos Pläne
Partner von Infina Kollitsch Immobilien Immobilienmakler
Nahversorgung:
Supermarkt: 460 m
Bäckerei: 880 m
Einkaufszentrum: 1450 m
Kinder & Schulen:
Schule: 400 m
Universität: 680 m
Kindergarten: 530 m
Höhere Schule: 1130 m
Sonstige:
Polizei: 830 m
Post: 1120 m
Bank: 440 m
Geldautomat: 1110 m
Verkehr:
Autobahnanschluss: 1950 m
Straßenbahn: 2730 m
Bus: 50 m
Flughafen: 4360 m
Bahnhof: 2000 m
Gesundheit:
Apotheke: 600 m
Arzt: 260 m
Klinik: 660 m
Krankenhaus: 470 m

Jetzt Experten kontaktieren

Weitere interessante Objekte

Klagenfurt am Wörthersee
Partner von Infina
Jetzt anfragen
8.132 €/m²
654.800 €
Klagenfurt am Wörthersee
Partner von Infina
Jetzt anfragen
5.241 €/m²
499.900 €
Partner von Infina
Jetzt anfragen
5.551 €/m²
419.500 €
Klagenfurt am Wörthersee
Partner von Infina
Jetzt anfragen
6.103 €/m²
558.800 €
Klagenfurt am Wörthersee
Partner von Infina
Jetzt anfragen
ca. 72,77 m² Wohnfläche 3 Zimmer
5.014 €/m²
364.900 €
Klagenfurt am Wörthersee
Partner von Infina
Jetzt anfragen
7.514 €/m²
640.000 €
Klagenfurt am Wörthersee
Partner von Infina
Jetzt anfragen
7.281 €/m²
619.800 €
Klagenfurt am Wörthersee
Partner von Infina
Jetzt anfragen
7.327 €/m²
720.000 €
Klagenfurt am Wörthersee
Partner von Infina
Jetzt anfragen
525.000 €

Immobilie kaufen: Das passende Angebot finden

Der Kauf einer Immobilie ist eine wichtige Entscheidung – sei es für die Eigennutzung oder zur Vermietung. Mit unserem Portal unterstützen wir Sie dabei, die richtige Immobilie zu kaufen. Nutzen Sie unsere Suchmöglichkeiten, um gezielt eine Immobilie zu suchen, die Ihren Vorstellungen entspricht. Unsere Immobilienangebote decken eine breite Palette ab: vom Einfamilienhaus über die Eigentumswohnung bis hin zum Grundstück für Ihr Bauvorhaben. Mit uns können Sie sicher und unkompliziert Eigentum erwerben – ob für die private Nutzung oder als Investition als Immobilie. Erkunden Sie jetzt unsere Angebote und finden Sie die perfekte Lösung, die zu Ihren Wohn- oder Anlagezielen passt.

Fundiertes Wissen für Ihre Entscheidung, eine Immobilie zu kaufen

Bereiten Sie sich bestens vor: Infina stellt Ihnen kostenlos über 300 Ratgeber und Beiträge zu den Themen Immobilie, Finanzierung, Zinsen und Recht zur Verfügung. Nutzen Sie unser umfassendes Wissen, um richtige Entscheidungen zu treffen.

Bei jedem Kauf einer Immobilie oder eines Grundstücks ist es wichtig, die passende Finanzierung zu finden. Mit seiner eigenen Vertriebsorganisation ist Infina als Wohnbau-Finanz-Experte an über 100 Standorten in ganz Österreich vertreten und vermittelt Finanzierungen an über 120 Banken und Bausparkassen. Nutzen Sie unseren kostenlosen Kreditvergleich für den passenden Wohnkredit: 

Kreditvergleich

Kostenlos und unverbindlich

Immobilie mieten: Ihr neues Zuhause wartet

Die Entscheidung, eine Immobilie zu mieten, bietet Flexibilität und zahlreiche Möglichkeiten – ob eine Wohnung für den Alltag oder ein Haus für die Familie. Bei Infina können Sie gezielt sowohl eine Wohnung suchen als auch ein Haus suchen, das Ihren Bedürfnissen entspricht. Unsere Angebote erleichtern es Ihnen, eine Mietwohnung zu suchen und Ihre ideale Wohnung finden zu können. Entdecken Sie vielfältige Optionen, um die passende Immobilie zu finden und Ihre Wohnträume zu verwirklichen. Starten Sie noch heute Ihre Suche und profitieren Sie von einer großen Auswahl an Mietobjekten in Ihrer Wunschregion.

Hilfreiche Informationen zu Immobilie mieten

Starten Sie gut vorbereitet in Ihre Mietentscheidung: Infina stellt Ihnen vielseitige Ratgeber und Beiträge zu Themen wie Immobilie, Mietrecht, Finanzierung und Wohntrends zur Verfügung. Verschaffen Sie sich einen Überblick über alle relevanten Aspekte und gestalten Sie Ihren Weg ins neue Zuhause einfacher und sicherer.

Erfolgreich zur neuen Immobilie

Mit Infina haben Sie einen verlässlichen Partner an Ihrer Seite, der Sie von der ersten Beratung bis zum erfolgreichen Abschluss ganzheitlich unterstützt. Erfahren Sie hier, wie wir gemeinsam Ihren Immobilienerfolg gestalten.

Starten Sie jetzt Ihre Immobiliensuche

Nach zahlreichen Informationen rund um die Themen Immobilie kaufen und Immobilie mieten können Sie nun den nächsten Schritt machen. Starten Sie die Immobiliensuche, um Ihr neues Zuhause oder Ihre nächste Investition zu finden und entdecken Sie die passenden Angebote:

Das innovative Portal für Immobilien und Finanzierung 

Als Kunde von Infina profitieren Sie von unserer umfangreichen und unabhängigen Expertise als Teil einer wachsenden, unabhängigen Immobilien- und Finanzierungsnetzwerkgruppe. Bereits 50.000 Kunden hat Infina erfolgreich bei Ihrem Vorhaben begleitet. Infina bietet Ihnen eine umfassende Beratung in allen Bereichen rund um Ihre Immobilienvorhaben:

Die passende Finanzierung für Ihre Immobilie

Mit Infina erhalten Sie nicht nur eine unabhängige Beratung, sondern auch die passende Finanzierungslösung für Ihre Immobilie. Aus den Angeboten von über 120 Banken und Bausparkassen vermitteln wir Ihnen das, was perfekt zu Ihren Bedürfnissen passt. Wir begleiten Sie professionell und verlässlich – von der ersten Beratung bis zum erfolgreichen Abschluss.

Kreditvergleich

Kostenlos und unverbindlich

Wir holen das Beste für Sie heraus

Verkaufen Sie Ihre Immobilie mit uns & profitieren Sie von unserer Expertise. Wir bringen Ihre Immobilie optimal auf den Markt & erzielen den besten Preis. 

Kontaktieren Sie uns jetzt.

Jetzt Experten kontaktieren
Junge Frau im pinken Blazer hält ein Modellhaus in der linken Hand und zeigt mit der rechten Hand nach oben, als hätte sie eine Idee. Sie lächelt und blickt leicht nach oben – symbolisch für Inspiration oder Immobilienberatung.