INFINA LOGO
Entspannt zur Immobilie Persönlich & kompetent beraten Finanzierbarkeit sofort überprüfbar
485.317 €
Kostenlos &
unverbindlich.
Kontakt aufnehmen

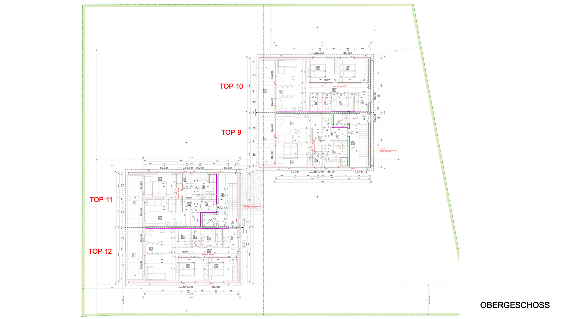
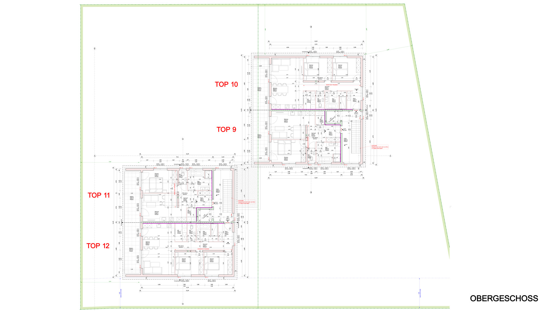
Hollersbach Residenz - Top 11

Obj. Nr.: 42086

ca. 54,75 m² Wohnfläche 2 Zimmer
Partner von Infina KITZIMMO - Real Estate Immobilienmakler 
Partner von Infina KITZIMMO - Real Estate Immobilienmakler
485.317 € Kaufpreis der Immobilie Kreditvergleich von über 120 Banken mit Infina.
Immobilie finanzieren
Mehr Informationen zur Immobilie: Detaillierte Einblicke in dieses Objekt.
Zurück zur Übersicht

Objektstandort

5731 Hollersbach im Pinzgau, Zell am See, Salzburg Adresse anfragen

Directions Icon Fahrtzeit berechnen
Preisinformationen
Kaufpreis 485.317 €
Grundbucheintragung: 1.1 %
Grunderwerbsteuer: 3.5 %
Was kann ich mir leisten?
Jetzt berechnen

Objektinformationen

Objektart: Wohnung
Unterobjektart: Dachgeschoß
Nutzungsart: Wohnen
Zustand: Erstbezug
Baujahr: 2025
barrierefrei: Ja

Rauminformationen & Flächen

Wohnfläche: ca. 54,75 m²
Kellerfläche: ca. 3,24 m²
Anzahl Stellplätze: 2
Anzahl Zimmer: 2

Ausstattung

Boden: Fliesen, Dielen
Befeuerung: Luftwärmepumpe
Heizungsart: Fußbodenheizung
Küche: Einbauküche
Fahrstuhl: Personenaufzug
Balkon: Nordwestbalkon / -terrasse
Bad: Dusche, Badewanne
Fernsehen: Kabel / Satelliten-TV
Extras: Wasch- / Trockenraum, Fahrradraum, Seniorengerecht
Räume: Räume veränderbar
WCs: Gäste-WC

Beschreibung *

Eingebettet in den Hohen Tauern befindet sich die malerische Ortschaft Hollersbach.
Mitten in zentraler Lage entsteht eine exklusive Wohnanlage mit 12 Einheiten in einem der schönsten Täler Salzburgs. Das Gebiet rund um Hollersbach und die einzigartige, teilweise unberührte Natur, zieht jedes Jahr zahlreiche Touristen und Besucher an.

Die Wohnanlage befindet sich gerade in der Bauphase und wird voraussichtlich Mitte 2026 fertiggestellt. Die Innenräume überzeugen durch stilvolle Materialien: so wird in den Wohn- und Schlafräumen edles Eichenparkett verlegt, während Flure, Bäder und WC mit zeitlos eleganten Fliesen ausgestattet werden. Fenster und Terrassentüren sind in langlebiger Kunststoff-Aluminium-Ausführung gefertigt, die Innentüren bestehen aus hochwertigem Eichenholz. Die Küchen werden mit allen notwendigen Kalt- und Warmwasserinstallationen vorbereitet, sodass jeder Käufer die Ausstattung individuell gestalten kann. Auch die Ausstattung der Badezimmer und die Armaturen sind frei wählbar und bieten somit maximale Flexibilität bei der Gestaltung.

Für ein angenehmes Raumklima sorgt eine energieeffiziente Luftwärmepumpe. Die Elektroinstallationen umfassen Anschlüsse für Internet, TV, E-Herd, Deckenbeleuchtung sowie eine moderne Türsprechanlage. In sämtlichen Räumen kommen Qualitätsprodukte von Busch-Jaeger zum Einsatz.

Als Eigenheim oder als Anlageobjekt bietet diese Immobilie alles, was das Herz begehrt – von hochwertiger Ausstattung über energieeffiziente Technik bis hin zu einer einzigartigen Lage inmitten der Alpen.
Jede der Wohnungen verfügt über ein Kellerabteil sowie zwei zugeordnete Freistellplätze. Ein Personenaufzug ist ebenfalls vorhanden.

Die hier angeboten Dachgeschosswohnung Top 11 bietet ca. 54 m² Wohnfläche und überzeugt durch ihre durchdachte Raumgestaltung.
Aufgeteilt in das Entree, den Wohn-Essbereich mit offener Küche, dem Masterschlafzimmer mit großem Badezimmer, einem getrennten Gäste-WC und einem Abstellraum, bietet Ihnen die Eigentumswohnung alles, was man braucht.
Zusätzlich verfügt die Wohnung noch über einen großzügigen Balkon mit Blick auf die Hohen Tauern.
Energiedaten in Arbeit.

*Der Vertrag kommt nicht mit der INFINA Credit Broker GmbH zustande. Das Objekt wird von einem externen Immobilienunternehmen angeboten. Allfällige aus dem Vertragsabschluss resultierende Rechte sind ausschließlich gegenüber dem anbietenden Immobilienunternehmen geltend zu machen. Wir weisen Sie darauf hin, dass die gemachten Angaben und Informationen lediglich unverbindliche Vorabinformationen sind und daher ohne Gewähr erfolgen.

Heizung: Fußbodenheizung
Befeuerung: Luftwärmepumpe
Dokumente & Videos Pläne Pläne
Partner von Infina KITZIMMO - Real Estate Immobilienmakler
Kinder & Schulen:
Schule: 290 m
Kindergarten: 4530 m
Gesundheit:
Arzt: 1330 m
Apotheke: 150 m
Krankenhaus: 4970 m
Sonstige:
Bank: 210 m
Polizei: 4670 m
Geldautomat: 5500 m
Post: 1340 m
Nahversorgung:
Bäckerei: 210 m
Supermarkt: 3290 m
Einkaufszentrum: 5480 m
Verkehr:
Bahnhof: 2360 m
Bus: 190 m

Jetzt Experten kontaktieren

Weitere interessante Objekte

Hollersbach im Pinzgau
Partner von Infina
Jetzt anfragen
ca. 75,52 m² Wohnfläche 3 Zimmer
679.960 €
Hollersbach im Pinzgau
Partner von Infina
Jetzt anfragen
ca. 54,75 m² Wohnfläche 2 Zimmer
485.317 €
Hollersbach im Pinzgau
Partner von Infina
Jetzt anfragen
ca. 69,04 m² Wohnfläche 3 Zimmer
595.920 €
Hollersbach im Pinzgau
Partner von Infina
Jetzt anfragen
ca. 54,75 m² Wohnfläche 2 Zimmer
425.334 €
Hollersbach im Pinzgau
Partner von Infina
Jetzt anfragen
ca. 68,22 m² Wohnfläche 3 Zimmer
538.902 €
Hollersbach im Pinzgau
Partner von Infina
Jetzt anfragen
ca. 54,75 m² Wohnfläche 2 Zimmer
414.428 €
Hollersbach im Pinzgau
Partner von Infina
Jetzt anfragen
ca. 68,29 m² Wohnfläche 3 Zimmer
497.448 €
Hollersbach im Pinzgau
Partner von Infina
Jetzt anfragen
ca. 54,75 m² Wohnfläche 2 Zimmer
403.522 €
Hollersbach im Pinzgau
Partner von Infina
Jetzt anfragen
ca. 68,22 m² Wohnfläche 3 Zimmer
511.266 €

Immobilie kaufen: Das passende Angebot finden

Der Kauf einer Immobilie ist eine wichtige Entscheidung – sei es für die Eigennutzung oder zur Vermietung. Mit unserem Portal unterstützen wir Sie dabei, die richtige Immobilie zu kaufen. Nutzen Sie unsere Suchmöglichkeiten, um gezielt eine Immobilie zu suchen, die Ihren Vorstellungen entspricht. Unsere Immobilienangebote decken eine breite Palette ab: vom Einfamilienhaus über die Eigentumswohnung bis hin zum Grundstück für Ihr Bauvorhaben. Mit uns können Sie sicher und unkompliziert Eigentum erwerben – ob für die private Nutzung oder als Investition als Immobilie. Erkunden Sie jetzt unsere Angebote und finden Sie die perfekte Lösung, die zu Ihren Wohn- oder Anlagezielen passt.

Fundiertes Wissen für Ihre Entscheidung, eine Immobilie zu kaufen

Bereiten Sie sich bestens vor: Infina stellt Ihnen kostenlos über 300 Ratgeber und Beiträge zu den Themen Immobilie, Finanzierung, Zinsen und Recht zur Verfügung. Nutzen Sie unser umfassendes Wissen, um richtige Entscheidungen zu treffen.

Bei jedem Kauf einer Immobilie oder eines Grundstücks ist es wichtig, die passende Finanzierung zu finden. Mit seiner eigenen Vertriebsorganisation ist Infina als Wohnbau-Finanz-Experte an über 100 Standorten in ganz Österreich vertreten und vermittelt Finanzierungen an über 120 Banken und Bausparkassen. Nutzen Sie unseren kostenlosen Kreditvergleich für den passenden Wohnkredit: 

Kreditvergleich

Kostenlos und unverbindlich

Immobilie mieten: Ihr neues Zuhause wartet

Die Entscheidung, eine Immobilie zu mieten, bietet Flexibilität und zahlreiche Möglichkeiten – ob eine Wohnung für den Alltag oder ein Haus für die Familie. Bei Infina können Sie gezielt sowohl eine Wohnung suchen als auch ein Haus suchen, das Ihren Bedürfnissen entspricht. Unsere Angebote erleichtern es Ihnen, eine Mietwohnung zu suchen und Ihre ideale Wohnung finden zu können. Entdecken Sie vielfältige Optionen, um die passende Immobilie zu finden und Ihre Wohnträume zu verwirklichen. Starten Sie noch heute Ihre Suche und profitieren Sie von einer großen Auswahl an Mietobjekten in Ihrer Wunschregion.

Hilfreiche Informationen zu Immobilie mieten

Starten Sie gut vorbereitet in Ihre Mietentscheidung: Infina stellt Ihnen vielseitige Ratgeber und Beiträge zu Themen wie Immobilie, Mietrecht, Finanzierung und Wohntrends zur Verfügung. Verschaffen Sie sich einen Überblick über alle relevanten Aspekte und gestalten Sie Ihren Weg ins neue Zuhause einfacher und sicherer.

Erfolgreich zur neuen Immobilie

Mit Infina haben Sie einen verlässlichen Partner an Ihrer Seite, der Sie von der ersten Beratung bis zum erfolgreichen Abschluss ganzheitlich unterstützt. Erfahren Sie hier, wie wir gemeinsam Ihren Immobilienerfolg gestalten.

Starten Sie jetzt Ihre Immobiliensuche

Nach zahlreichen Informationen rund um die Themen Immobilie kaufen und Immobilie mieten können Sie nun den nächsten Schritt machen. Starten Sie die Immobiliensuche, um Ihr neues Zuhause oder Ihre nächste Investition zu finden und entdecken Sie die passenden Angebote:

Das innovative Portal für Immobilien und Finanzierung 

Als Kunde von Infina profitieren Sie von unserer umfangreichen und unabhängigen Expertise als Teil einer wachsenden, unabhängigen Immobilien- und Finanzierungsnetzwerkgruppe. Bereits 50.000 Kunden hat Infina erfolgreich bei Ihrem Vorhaben begleitet. Infina bietet Ihnen eine umfassende Beratung in allen Bereichen rund um Ihre Immobilienvorhaben:

Die passende Finanzierung für Ihre Immobilie

Mit Infina erhalten Sie nicht nur eine unabhängige Beratung, sondern auch die passende Finanzierungslösung für Ihre Immobilie. Aus den Angeboten von über 120 Banken und Bausparkassen vermitteln wir Ihnen das, was perfekt zu Ihren Bedürfnissen passt. Wir begleiten Sie professionell und verlässlich – von der ersten Beratung bis zum erfolgreichen Abschluss.

Kreditvergleich

Kostenlos und unverbindlich

Wir holen das Beste für Sie heraus

Verkaufen Sie Ihre Immobilie mit uns & profitieren Sie von unserer Expertise. Wir bringen Ihre Immobilie optimal auf den Markt & erzielen den besten Preis. 

Kontaktieren Sie uns jetzt.

Jetzt Experten kontaktieren
Junge Frau im pinken Blazer hält ein Modellhaus in der linken Hand und zeigt mit der rechten Hand nach oben, als hätte sie eine Idee. Sie lächelt und blickt leicht nach oben – symbolisch für Inspiration oder Immobilienberatung.