INFINA LOGO
Entspannt zur Immobilie Persönlich & kompetent beraten Finanzierbarkeit sofort überprüfbar
207.298 €
Kostenlos &
unverbindlich.
Kontakt aufnehmen

Genieße dein Leben - DIREKT an der Alm.

Obj. Nr.: 28494

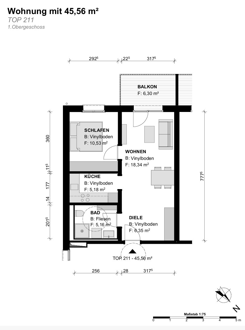
ca. 45,56 m² Wohnfläche 2 Zimmer
Partner von Infina Thanner Immobilien Immobilienmakler 
Partner von Infina Thanner Immobilien Immobilienmakler
207.298 € Kaufpreis der Immobilie Kreditvergleich von über 150 Banken mit Infina.
Immobilie finanzieren
Mehr Informationen zur Immobilie: Detaillierte Einblicke in dieses Objekt.
Zurück zur Übersicht

Objektstandort

4645 Grünau im Almtal, Gmunden, Oberösterreich Adresse anfragen

Directions Icon Fahrtzeit berechnen
Preisinformationen
Kaufpreis 207.298 €
Grundbucheintragung: 1.1 %
Grunderwerbsteuer: 3.5 %
Was kann ich mir leisten?
Jetzt berechnen
Maklerprovision:
3% + 20% USt

Objektinformationen

Objektart: Wohnung
Nutzungsart: Wohnen
Baujahr: 2025

Rauminformationen & Flächen

Wohnfläche: ca. 45,56 m²
Anzahl Zimmer: 2
Anzahl Bäder: 1

Ausstattung

Lage

Herzlich willkommen in Grünau im Almtal, einem malerischen Ort, der sich durch seine atemberaubende Natur und hervorragende Lebensqualität auszeichnet. Eingebettet in die beeindruckende Berglandschaft des Salzkammerguts, bietet Grünau eine optimale Kombination aus Ruhe und Erholung sowie vielfältige Freizeitmöglichkeiten.

Die Immobilie befindet sich in einer ruhigen Wohngegend, die von einer harmonischen Nachbarschaft geprägt ist. Die Umgebung lädt zu ausgedehnten Wanderungen, Mountainbiketouren und im Winter zu Skiausflügen in die nahegelegenen Skigebiete ein. Der malerische Almsee und die umliegenden Wälder sind nur wenige Minuten entfernt und bieten zahlreiche Möglichkeiten für Sport und Entspannung.

In der Nähe finden Sie alle notwendigen Einrichtungen für den täglichen Bedarf, darunter Lebensmittelgeschäfte, Restaurants und Cafés. Die Schulen und Kindergärten in der Umgebung sind gut erreichbar und bieten eine hohe Bildungsqualität.

Die Anbindung an die öffentlichen Verkehrsmittel ist ebenfalls gegeben, sodass Sie bequem in die umliegenden Städte gelangen können. Die Autobahnauffahrt ist in kurzer Zeit erreichbar, was eine schnelle Anbindung an größere Städte wie Linz und Salzburg ermöglicht.

Beschreibung *

Zuhause an der Alm – Naturverbunden wohnen in Grünau im Almtal
18 Eigentumswohnungen in nachhaltiger Holzmodul-Bauweise

Willkommen im Almtal – einem Ort, an dem die Natur den Ton angibt. Inmitten der beeindruckenden Bergkulisse und direkt am sanft plätschernden Wasserlauf der Alm entsteht ein Wohnprojekt, das Erdung, Qualität und modernes Leben harmonisch vereint.

In idyllischer Lage, direkt an der Alm entstehen 18 hochwertig ausgeführte Eigentumswohnungen in nachhaltiger Holzmodul-Bauweise. Hier trifft ökologisches Bauen auf modernes Design – für Menschen, die Natürlichkeit schätzen und gleichzeitig auf Komfort nicht verzichten möchten.

Eingebettet zwischen Wäldern, Wiesen und Bergen liegt Grünau wie ein Geheimtipp für alle, die Ruhe, Natur und Ursprünglichkeit suchen. Wandern, Radfahren, Skifahren, Wildparkbesuche – hier beginnt das Naturerlebnis direkt vor der Haustüre. Und dennoch sind Einkaufsmöglichkeiten, Schule, Kindergarten und Bahnanschluss bequem erreichbar.

Das Projekt auf einen Blick:

- 18 Eigentumswohnungen mit 2 bis 3 Zimmern
- Haus 1 umfasst 15 Wohneinheiten
- Haus 2 umfasst 3 Wohneinheiten

- Wohnflächen zwischen 45m² und 64m²

- Jede Wohneinheit verfügt über eine Terrasse oder einen Balkon

- Nachhaltige, regionale Holzmodul-Bauweise

- allgemeine Terrasse mit Zugang zur Alm, Griller und Sitzgelegenheit

- Hochwertige Ausstattung mit Produkten der Firma Laufen

- Gute Infrastruktur - unmittelbare Nähe zum Supermarkt, Bahn- und Busverbindungen nach Gmunden, Kirchdorf, Wels, und Linz.

- Schöner Alterswohnsitz

- Tolle Start bzw. Singlewohnungen.

- Großkeramik in sämtlichen Nassbereichen.

- Jeder Wohnung ist ein Tiefgaragenstellplatz zugeordnet (zzgl. € 25.000,-)

- Die Gartenfläche wird anteilig mit € 200,-/m² verrechnet.

- Ruhige Lage an der Alm – mit Blick auf die Berge

- Jeder Wohneinheit ist ein Abstellraum im Keller zugeordnet.

- Ideal für Naturliebhaber, Ruhesuchende oder als Familien

- Natürlich gebaut. Für ein geerdetes Leben.

Nach Unterfertigung des Kaufvertrages ist eine Anzahlungssumme von € 150,-/m² fällig.
Anlegerpreise sind vorhanden.

Es werden Renderings bzw. Visualisierungen zur besseren Darstellung verwendet.

Die verwendeten Holzmodule sorgen nicht nur für ein gesundes Raumklima, sondern auch für ein bewusstes Wohngefühl – reduziert auf das Wesentliche, in Harmonie mit der Umgebung. Das Projekt legt Wert auf Regionalität, Nachhaltigkeit und langfristige Wohnqualität.

*Der Vertrag kommt nicht mit der INFINA Credit Broker GmbH zustande. Das Objekt wird von einem externen Immobilienunternehmen angeboten. Allfällige aus dem Vertragsabschluss resultierende Rechte sind ausschließlich gegenüber dem anbietenden Immobilienunternehmen geltend zu machen. Wir weisen Sie darauf hin, dass die gemachten Angaben und Informationen lediglich unverbindliche Vorabinformationen sind und daher ohne Gewähr erfolgen. Der Vermittler ist als Doppelmakler tätig.

Dokumente & Videos Pläne Flächenwidmung HORA Pass Energieausweis Haus 01 Energieausweis Haus 02 Doris
Partner von Infina Thanner Immobilien Immobilienmakler
Verkehr:
Bus: 100 m
Flughafen: 5210 m
Bahnhof: 190 m
Sonstige:
Polizei: 5930 m
Post: 460 m
Bank: 330 m
Gesundheit:
Arzt: 530 m
Apotheke: 5650 m
Kinder & Schulen:
Schule: 380 m
Kindergarten: 5560 m
Nahversorgung:
Bäckerei: 340 m
Supermarkt: 460 m

Jetzt Experten kontaktieren

Weitere interessante Objekte

Grünau im Almtal
Partner von Infina
Jetzt anfragen
1.052 €
Partner von Infina
Jetzt anfragen
281.468 €
Partner von Infina
Jetzt anfragen
ca. 45,56 m² Wohnfläche 2 Zimmer
207.298 €
Grünau im Almtal
Partner von Infina
Jetzt anfragen
ca. 45,56 m² Wohnfläche 2 Zimmer
207.298 €
Partner von Infina
Jetzt anfragen
ca. 45,56 m² Wohnfläche 2 Zimmer
207.298 €
Partner von Infina
Jetzt anfragen
ca. 45,56 m² Wohnfläche 2 Zimmer
207.298 €
Partner von Infina
Jetzt anfragen
ca. 63,97 m² Wohnfläche 3 Zimmer
281.468 €
Partner von Infina
Jetzt anfragen
ca. 45,56 m² Wohnfläche 2 Zimmer
207.298 €
Partner von Infina
Jetzt anfragen
ca. 45,56 m² Wohnfläche 2 Zimmer
207.298 €

Immobilie kaufen: Das passende Angebot finden

Der Kauf einer Immobilie ist eine wichtige Entscheidung – sei es für die Eigennutzung oder zur Vermietung. Mit unserem Portal unterstützen wir Sie dabei, die richtige Immobilie zu kaufen. Nutzen Sie unsere Suchmöglichkeiten, um gezielt eine Immobilie zu suchen, die Ihren Vorstellungen entspricht. Unsere Immobilienangebote decken eine breite Palette ab: vom Einfamilienhaus über die Eigentumswohnung bis hin zum Grundstück für Ihr Bauvorhaben. Mit uns können Sie sicher und unkompliziert Eigentum erwerben – ob für die private Nutzung oder als Investition als Immobilie. Erkunden Sie jetzt unsere Angebote und finden Sie die perfekte Lösung, die zu Ihren Wohn- oder Anlagezielen passt.

Fundiertes Wissen für Ihre Entscheidung, eine Immobilie zu kaufen

Bereiten Sie sich bestens vor: Infina stellt Ihnen kostenlos über 300 Ratgeber und Beiträge zu den Themen Immobilie, Finanzierung, Zinsen und Recht zur Verfügung. Nutzen Sie unser umfassendes Wissen, um richtige Entscheidungen zu treffen.

Bei jedem Kauf einer Immobilie oder eines Grundstücks ist es wichtig, die passende Finanzierung zu finden. Mit seiner eigenen Vertriebsorganisation ist Infina als Wohnbau-Finanz-Experte an über 100 Standorten in ganz Österreich vertreten und vermittelt Finanzierungen an über 150 Banken und Bausparkassen. Nutzen Sie unseren kostenlosen Kreditvergleich für den passenden Wohnkredit: 

Kreditvergleich

Kostenlos und unverbindlich

Immobilie mieten: Ihr neues Zuhause wartet

Die Entscheidung, eine Immobilie zu mieten, bietet Flexibilität und zahlreiche Möglichkeiten – ob eine Wohnung für den Alltag oder ein Haus für die Familie. Bei Infina können Sie gezielt sowohl eine Wohnung suchen als auch ein Haus suchen, das Ihren Bedürfnissen entspricht. Unsere Angebote erleichtern es Ihnen, eine Mietwohnung zu suchen und Ihre ideale Wohnung finden zu können. Entdecken Sie vielfältige Optionen, um die passende Immobilie zu finden und Ihre Wohnträume zu verwirklichen. Starten Sie noch heute Ihre Suche und profitieren Sie von einer großen Auswahl an Mietobjekten in Ihrer Wunschregion.

Hilfreiche Informationen zu Immobilie mieten

Starten Sie gut vorbereitet in Ihre Mietentscheidung: Infina stellt Ihnen vielseitige Ratgeber und Beiträge zu Themen wie Immobilie, Mietrecht, Finanzierung und Wohntrends zur Verfügung. Verschaffen Sie sich einen Überblick über alle relevanten Aspekte und gestalten Sie Ihren Weg ins neue Zuhause einfacher und sicherer.

Erfolgreich zur neuen Immobilie

Mit Infina haben Sie einen verlässlichen Partner an Ihrer Seite, der Sie von der ersten Beratung bis zum erfolgreichen Abschluss ganzheitlich unterstützt. Erfahren Sie hier, wie wir gemeinsam Ihren Immobilienerfolg gestalten.

Starten Sie jetzt Ihre Immobiliensuche

Nach zahlreichen Informationen rund um die Themen Immobilie kaufen und Immobilie mieten können Sie nun den nächsten Schritt machen. Starten Sie die Immobiliensuche, um Ihr neues Zuhause oder Ihre nächste Investition zu finden und entdecken Sie die passenden Angebote:

Das innovative Portal für Immobilien und Finanzierung 

Als Kunde von Infina profitieren Sie von unserer umfangreichen und unabhängigen Expertise als Teil einer wachsenden, unabhängigen Immobilien- und Finanzierungsnetzwerkgruppe. Bereits 50.000 Kunden hat Infina erfolgreich bei Ihrem Vorhaben begleitet. Infina bietet Ihnen eine umfassende Beratung in allen Bereichen rund um Ihre Immobilienvorhaben:

Die passende Finanzierung für Ihre Immobilie

Mit Infina erhalten Sie nicht nur eine unabhängige Beratung, sondern auch die passende Finanzierungslösung für Ihre Immobilie. Aus den Angeboten von über 150 Banken und Bausparkassen vermitteln wir Ihnen das, was perfekt zu Ihren Bedürfnissen passt. Wir begleiten Sie professionell und verlässlich – von der ersten Beratung bis zum erfolgreichen Abschluss.

Kreditvergleich

Kostenlos und unverbindlich

Wir holen das Beste für Sie heraus

Verkaufen Sie Ihre Immobilie mit uns & profitieren Sie von unserer Expertise. Wir bringen Ihre Immobilie optimal auf den Markt & erzielen den besten Preis. 

Kontaktieren Sie uns jetzt.

Jetzt Experten kontaktieren
Junge Frau im pinken Blazer hält ein Modellhaus in der linken Hand und zeigt mit der rechten Hand nach oben, als hätte sie eine Idee. Sie lächelt und blickt leicht nach oben – symbolisch für Inspiration oder Immobilienberatung.