INFINA LOGO
Entspannt zur Immobilie Persönlich & kompetent beraten Finanzierbarkeit sofort überprüfbar
792.000 € 7.008 €/m²
Kostenlos &
unverbindlich.
Kontakt aufnehmen

LUFTSCHLOSS | Natur und Ruhe in der Hohenrainstraße I Graz - St. Peter.

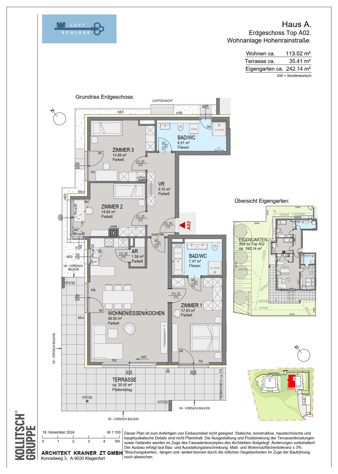
Obj. Nr.: 50089

ca. 113,02 m² Wohnfläche 4 Zimmer
Partner von Infina Kollitsch Immobilien Immobilienmakler 
Partner von Infina Kollitsch Immobilien Immobilienmakler
792.000 € Kaufpreis der Immobilie Kreditvergleich von über 120 Banken mit Infina.
Immobilie finanzieren
Mehr Informationen zur Immobilie: Detaillierte Einblicke in dieses Objekt.
Zurück zur Übersicht

Objektstandort

8042 Graz, Steiermark Adresse anfragen

Directions Icon Fahrtzeit berechnen
Preisinformationen
Kaufpreis 792.000 €
Grundbucheintragung: 1.1 %
Grunderwerbsteuer: 3.5 %
Was kann ich mir leisten?
Jetzt berechnen

Objektinformationen

Objektart: Wohnung
Unterobjektart: Etagenwohnung
Nutzungsart: Wohnen

Rauminformationen & Flächen

Wohnfläche: ca. 113,02 m²
Gartenfläche: ca. 242,14 m²
Kellerfläche: ca. 12,81 m²
Anzahl Zimmer: 4

Ausstattung

Fahrstuhl: Personenaufzug
Fernsehen: Kabel / Satelliten-TV
Extras: Abstellraum, Fahrradraum

Beschreibung *

Luftschloss.
Residieren in der Hohenrainstraße in Graz.

**Traumhaft schön wohnen.**
Leben voller Leichtigkeit. In hochwertigen Eigentumswohnungen in St. Peter. Idyllisch gelegen an einem ruhigen Westhang im Grüngürtel von Graz. Wo Wald- und Wanderwege zu Naturgenüssen führen. Und Ihnen die Stadt zu Füßen liegt. Hier wird Ihr Luftschloss Realität.

- 2 Villen: Wind und Wolke
- ca. 13 Eigentumswohnungen
- ca. 51 bis 138 m² Wohnfläche
- ca. 20 Tiefgaragenplätze

**Obenauf lebt sich’s wunderbar leicht.**
Eine Insel der Ruhe. In luftiger Höhe.
Zwei eindrucksvolle Villen erheben sich am oberen Ende des Westhangs im Grazer Ortsteil St. Peter. In der Hohenrainstraße 95a und 95b. Es ist wunderbar ruhig. Ein sanftes Lüftchen lässt die Blätter rauschen. Man fühlt sich dem Himmel so nah.

Stadt und Land. Glücklich vereint.
Hier atmen Sie klare, frische Luft. Wie auf dem Land. Und doch ist das Stadtzentrum nicht weit. Zwischen Waldspaziergang und Innenstadtbummel liegen nur ca. 6 km. Freuen Sie sich auf das Beste aus Stadt und Land. In einem Zuhause voller Leichtigkeit.

Der Ausblick. Ein Highlight.
Von den Balkonen, Terrassen und Eigengärten aus fällt der Blick. Auf Wälder, Wiesen und bunte Gärten. Je nachdem welchen Winkel man wählt.

Wandern und Natur genießen. Auf dem Lustbühel.
Nur ein paar Schritte nördlich des Luftschlosses befindet sich der Lustbühel. Eine wunderbare Natur- und Kulturlandschaft mit Schloss, Schaulandwirtschaft, Spielplatz, Observatorium und Streichelzoo. Spazieren, wandern, laufen, Dreirad fahren, Drachen steigen lassen: All das und noch viel mehr kann man hier tun.

**Nur ein paar Meter Luftlinie.**
Ihr Luftschloss thront auf einer grünen Anhöhe. Hier finden Sie Ruhe, Entschleunigung und ganz viel Natur. Und doch sind Bushaltestelle, Lebensmittelhandel, Post, Bank und Restaurants nur einen Luftsprung entfernt. Auch Kindergarten und Schulen sind nicht weit.

**Ausflüge für jeden Tag. Echte Hochgenüsse.**
Einfach die Freizeitschuhe schnüren und die Beine vertreten. Auf dem Lustbühel wandern, laufen oder spazieren gehen. Die Ziegen im Streichelzoo besuchen. Und die vielen Gesichter der Stadt Graz entdecken.

Die Natur- und Kulturlandschaft auf dem Lustbühel kennenlernen. Nur ein paar Schritte von der Haustür entfernt. Eine zünftige Jause und ein gutes Glas Wein genießen. Einen Spaziergang zum Grazer Urwald unternehmen. Viel Zeit im Grünen verbringen. Und zwischendurch einen Abstecher in die Stadt machen. Urbanes Lebensgefühl spüren, Restaurants besuchen, einkaufen und Kultur tanken. Über die Schlossbergrutsche sausen. Die Harnische im Zeughaus bestaunen. In den Kasematten internationale Künstler*innen bewundern. In der Merkur Arena jubeln. Und noch so viel mehr erleben. Ihr Luftschloss ist der Ausgangspunkt für vielfältige Hochgenüsse.

*Der Vertrag kommt nicht mit der INFINA Credit Broker GmbH zustande. Das Objekt wird von einem externen Immobilienunternehmen angeboten. Allfällige aus dem Vertragsabschluss resultierende Rechte sind ausschließlich gegenüber dem anbietenden Immobilienunternehmen geltend zu machen. Wir weisen Sie darauf hin, dass die gemachten Angaben und Informationen lediglich unverbindliche Vorabinformationen sind und daher ohne Gewähr erfolgen. Der Vermittler ist als Doppelmakler tätig.

Dokumente & Videos Pläne
Partner von Infina Kollitsch Immobilien Immobilienmakler
Gesundheit:
Apotheke: 1090 m
Arzt: 660 m
Krankenhaus: 3300 m
Klinik: 2230 m
Kinder & Schulen:
Schule: 1340 m
Höhere Schule: 3270 m
Universität: 490 m
Kindergarten: 780 m
Verkehr:
Autobahnanschluss: 3570 m
Bus: 190 m
Straßenbahn: 1280 m
Bahnhof: 3770 m
Flughafen: 9370 m
Nahversorgung:
Supermarkt: 1110 m
Bäckerei: 1110 m
Einkaufszentrum: 1560 m
Sonstige:
Polizei: 2510 m
Bank: 1560 m
Post: 1100 m
Geldautomat: 1960 m

Jetzt Experten kontaktieren

Weitere interessante Objekte

Partner von Infina
Jetzt anfragen
9.700 €/m²
996.800 €
Partner von Infina
Jetzt anfragen
7.169 €/m²
799.000 €
Partner von Infina
Jetzt anfragen
7.067 €/m²
779.800 €
Partner von Infina
Jetzt anfragen
ca. 99,66 m² Wohnfläche 4 Zimmer
4.866 €/m²
484.900 €
Partner von Infina
Jetzt anfragen
ca. 102,56 m² Wohnfläche 4 Zimmer
5.001 €/m²
512.900 €
Partner von Infina
Jetzt anfragen
7.674 €/m²
741.600 €

Immobilie kaufen: Das passende Angebot finden

Der Kauf einer Immobilie ist eine wichtige Entscheidung – sei es für die Eigennutzung oder zur Vermietung. Mit unserem Portal unterstützen wir Sie dabei, die richtige Immobilie zu kaufen. Nutzen Sie unsere Suchmöglichkeiten, um gezielt eine Immobilie zu suchen, die Ihren Vorstellungen entspricht. Unsere Immobilienangebote decken eine breite Palette ab: vom Einfamilienhaus über die Eigentumswohnung bis hin zum Grundstück für Ihr Bauvorhaben. Mit uns können Sie sicher und unkompliziert Eigentum erwerben – ob für die private Nutzung oder als Investition als Immobilie. Erkunden Sie jetzt unsere Angebote und finden Sie die perfekte Lösung, die zu Ihren Wohn- oder Anlagezielen passt.

Fundiertes Wissen für Ihre Entscheidung, eine Immobilie zu kaufen

Bereiten Sie sich bestens vor: Infina stellt Ihnen kostenlos über 300 Ratgeber und Beiträge zu den Themen Immobilie, Finanzierung, Zinsen und Recht zur Verfügung. Nutzen Sie unser umfassendes Wissen, um richtige Entscheidungen zu treffen.

Bei jedem Kauf einer Immobilie oder eines Grundstücks ist es wichtig, die passende Finanzierung zu finden. Mit seiner eigenen Vertriebsorganisation ist Infina als Wohnbau-Finanz-Experte an über 100 Standorten in ganz Österreich vertreten und vermittelt Finanzierungen an über 120 Banken und Bausparkassen. Nutzen Sie unseren kostenlosen Kreditvergleich für den passenden Wohnkredit: 

Kreditvergleich

Kostenlos und unverbindlich

Immobilie mieten: Ihr neues Zuhause wartet

Die Entscheidung, eine Immobilie zu mieten, bietet Flexibilität und zahlreiche Möglichkeiten – ob eine Wohnung für den Alltag oder ein Haus für die Familie. Bei Infina können Sie gezielt sowohl eine Wohnung suchen als auch ein Haus suchen, das Ihren Bedürfnissen entspricht. Unsere Angebote erleichtern es Ihnen, eine Mietwohnung zu suchen und Ihre ideale Wohnung finden zu können. Entdecken Sie vielfältige Optionen, um die passende Immobilie zu finden und Ihre Wohnträume zu verwirklichen. Starten Sie noch heute Ihre Suche und profitieren Sie von einer großen Auswahl an Mietobjekten in Ihrer Wunschregion.

Hilfreiche Informationen zu Immobilie mieten

Starten Sie gut vorbereitet in Ihre Mietentscheidung: Infina stellt Ihnen vielseitige Ratgeber und Beiträge zu Themen wie Immobilie, Mietrecht, Finanzierung und Wohntrends zur Verfügung. Verschaffen Sie sich einen Überblick über alle relevanten Aspekte und gestalten Sie Ihren Weg ins neue Zuhause einfacher und sicherer.

Erfolgreich zur neuen Immobilie

Mit Infina haben Sie einen verlässlichen Partner an Ihrer Seite, der Sie von der ersten Beratung bis zum erfolgreichen Abschluss ganzheitlich unterstützt. Erfahren Sie hier, wie wir gemeinsam Ihren Immobilienerfolg gestalten.

Starten Sie jetzt Ihre Immobiliensuche

Nach zahlreichen Informationen rund um die Themen Immobilie kaufen und Immobilie mieten können Sie nun den nächsten Schritt machen. Starten Sie die Immobiliensuche, um Ihr neues Zuhause oder Ihre nächste Investition zu finden und entdecken Sie die passenden Angebote:

Das innovative Portal für Immobilien und Finanzierung 

Als Kunde von Infina profitieren Sie von unserer umfangreichen und unabhängigen Expertise als Teil einer wachsenden, unabhängigen Immobilien- und Finanzierungsnetzwerkgruppe. Bereits 50.000 Kunden hat Infina erfolgreich bei Ihrem Vorhaben begleitet. Infina bietet Ihnen eine umfassende Beratung in allen Bereichen rund um Ihre Immobilienvorhaben:

Die passende Finanzierung für Ihre Immobilie

Mit Infina erhalten Sie nicht nur eine unabhängige Beratung, sondern auch die passende Finanzierungslösung für Ihre Immobilie. Aus den Angeboten von über 120 Banken und Bausparkassen vermitteln wir Ihnen das, was perfekt zu Ihren Bedürfnissen passt. Wir begleiten Sie professionell und verlässlich – von der ersten Beratung bis zum erfolgreichen Abschluss.

Kreditvergleich

Kostenlos und unverbindlich

Wir holen das Beste für Sie heraus

Verkaufen Sie Ihre Immobilie mit uns & profitieren Sie von unserer Expertise. Wir bringen Ihre Immobilie optimal auf den Markt & erzielen den besten Preis. 

Kontaktieren Sie uns jetzt.

Jetzt Experten kontaktieren
Junge Frau im pinken Blazer hält ein Modellhaus in der linken Hand und zeigt mit der rechten Hand nach oben, als hätte sie eine Idee. Sie lächelt und blickt leicht nach oben – symbolisch für Inspiration oder Immobilienberatung.