INFINA LOGO
Entspannt zur Immobilie Persönlich & kompetent beraten Finanzierbarkeit sofort überprüfbar
272.000 € 4.877 €/m²
Kostenlos &
unverbindlich.
Kontakt aufnehmen
+ 1 Bilder

Gut wohnen in der Harterstraße in Graz.

Obj. Nr.: 50074

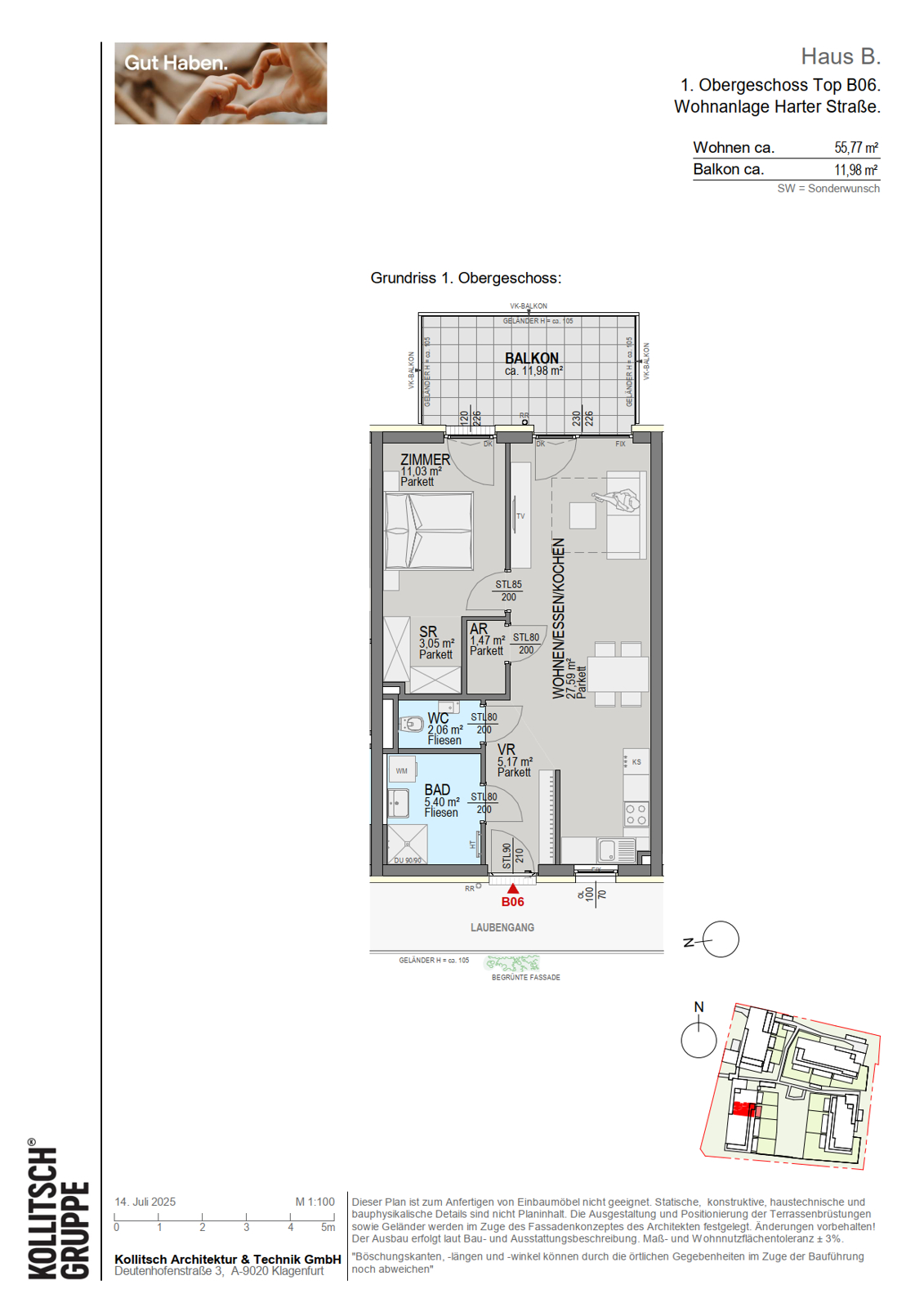
ca. 55,77 m² Wohnfläche 2 Zimmer
Partner von Infina Kollitsch Immobilien Immobilienmakler 
Partner von Infina Kollitsch Immobilien Immobilienmakler
272.000 € Kaufpreis der Immobilie Kreditvergleich von über 120 Banken mit Infina.
Immobilie finanzieren
Mehr Informationen zur Immobilie: Detaillierte Einblicke in dieses Objekt.
Zurück zur Übersicht

Objektstandort

8054 Graz, Steiermark Adresse anfragen

Directions Icon Fahrtzeit berechnen
Preisinformationen
Kaufpreis 272.000 €
1 Stellplatz Freiplatz: Kaufpreis € 0,00 43 Stellplatz Tiefgarage: Kaufpreis € 0,00
Grundbucheintragung: 1.1 %
Grunderwerbsteuer: 3.5 %
Was kann ich mir leisten?
Jetzt berechnen

Objektinformationen

Objektart: Wohnung
Unterobjektart: Etagenwohnung
Nutzungsart: Wohnen

Rauminformationen & Flächen

Wohnfläche: ca. 55,77 m²
Kellerfläche: ca. 3,16 m²
Anzahl Stellplätze: 44
Anzahl Zimmer: 2

Ausstattung

Heizungsart: Fernwärme
Fahrstuhl: Personenaufzug
Extras: Gartennutzung, Abstellraum, Fahrradraum, Seniorengerecht

Lage

Ganz nah an einfach allem.
In Gut Haben ist gut leben. Auch weil sich in direkter Nachbarschaft alles befindet, was man täglich braucht: verschiedenste Einkaufsmöglichkeiten, Bildungs-, Gesundheits- und Freizeiteinrichtungen. Die Innenstadt ist mit dem Auto gute 15 Minuten entfernt. Und wer auspendelt, befindet sich im Nullkommanix auf der Autobahn.

Wandern. Biken. Natur genießen.
Mit dem Fahrrad erreicht man in ungefähr 8 Minuten das malerische Schloss St. Martin. Einen bildhübschen Ausgangspunkt für Wanderungen und Mountainbiketouren auf dem Buchkogel. Auf verschlungenen Waldwegen geht es hinauf. Zur Kronprinz-Rudolf-Warte. Zum Westblick. Zum Waldlehrpfad. Und mit etwas Glück trifft man unterwegs sogar ein paar Gämsen.

Die Stadt im Blick.
Rund um Gut Haben: Das besondere Leben genießen. Einen freudigen Blick auf Straßgang werfen. Und sehen, dass all die guten Dinge so nah liegen. Nur ein paar Herzschläge entfernt.

Beschreibung *

Herzerfrischend. Gut Haben.
Wohnen am Puls der Zeit. In einer grünen Stadtoase im Südwesten von Graz. Wo ein lauschiger Innenhof zum Verweilen einlädt und große Gärten große Freude bereiten. Gut Haben ist ein Ort zum Verlieben. Zum Wohlfühlen und Bleiben. Ein bezahlbares Gut für unbezahlbare Momente.

- 4 Gebäude
- Etwa 42 Eigentumswohnungen
- Circa 45 bis 114 m² Wohnfläche
- Etwa 43 Tiefgaragenplätze


Einladende Architektur.
Gut Haben ist eine einladende Wohnanlage in der Harter Straße in Graz. Die vier Gebäude, in denen rund 42 gemütliche Eigentumswohnungen Raum finden, umschließen einen geschützten grünen Innenhof. Grünflächen und bewachsene Fassaden laden ein zum Verweilen. Zum Wohlfühlen und Genießen.

Ökologisch vorausgedacht.
Hier genießen Sie auch einige ökologische Details: von der Photovoltaikanlage auf dem Dach über die Bewässerung der Grünflächen mit eigenem Grundwasser bis zu den großen, überdachten Fahrradabstellflächen im Innenhof. Außerdem sind die Tiefgaragenplätze bereits E-Mobility-ready, sodass sie optional mit einer E-Ladestation versehen werden können.

*Der Vertrag kommt nicht mit der INFINA Credit Broker GmbH zustande. Das Objekt wird von einem externen Immobilienunternehmen angeboten. Allfällige aus dem Vertragsabschluss resultierende Rechte sind ausschließlich gegenüber dem anbietenden Immobilienunternehmen geltend zu machen. Wir weisen Sie darauf hin, dass die gemachten Angaben und Informationen lediglich unverbindliche Vorabinformationen sind und daher ohne Gewähr erfolgen. Der Vermittler ist als Doppelmakler tätig.

Heizung: Fernwärme
Dokumente & Videos Pläne
Partner von Infina Kollitsch Immobilien Immobilienmakler
Gesundheit:
Arzt: 680 m
Apotheke: 430 m
Klinik: 2600 m
Krankenhaus: 1330 m
Sonstige:
Post: 1640 m
Geldautomat: 940 m
Polizei: 850 m
Bank: 430 m
Verkehr:
Autobahnanschluss: 880 m
Bus: 110 m
Bahnhof: 1030 m
Straßenbahn: 1990 m
Flughafen: 6480 m
Nahversorgung:
Bäckerei: 440 m
Supermarkt: 430 m
Einkaufszentrum: 1280 m
Kinder & Schulen:
Kindergarten: 620 m
Universität: 3240 m
Höhere Schule: 1290 m
Schule: 230 m

Jetzt Experten kontaktieren

Weitere interessante Objekte

Partner von Infina
Jetzt anfragen
139.000 €
Partner von Infina
Jetzt anfragen
ca. 51,00 m² Wohnfläche 2 Zimmer
225.000 €
Partner von Infina
Jetzt anfragen
ca. 43,00 m² Wohnfläche 2 Zimmer
184.700 €
Partner von Infina
Jetzt anfragen
ca. 71,00 m² Wohnfläche 3 Zimmer
199.000 €
Graz
Partner von Infina
Jetzt anfragen
ca. 58,56 m² Wohnfläche 2,5 Zimmer
552 €
Partner von Infina
Jetzt anfragen
ca. 40,94 m² Wohnfläche 2 Zimmer
Auf Anfrage
Partner von Infina
Jetzt anfragen
ca. 49,00 m² Wohnfläche 2 Zimmer
586 €

Immobilie kaufen: Das passende Angebot finden

Der Kauf einer Immobilie ist eine wichtige Entscheidung – sei es für die Eigennutzung oder zur Vermietung. Mit unserem Portal unterstützen wir Sie dabei, die richtige Immobilie zu kaufen. Nutzen Sie unsere Suchmöglichkeiten, um gezielt eine Immobilie zu suchen, die Ihren Vorstellungen entspricht. Unsere Immobilienangebote decken eine breite Palette ab: vom Einfamilienhaus über die Eigentumswohnung bis hin zum Grundstück für Ihr Bauvorhaben. Mit uns können Sie sicher und unkompliziert Eigentum erwerben – ob für die private Nutzung oder als Investition als Immobilie. Erkunden Sie jetzt unsere Angebote und finden Sie die perfekte Lösung, die zu Ihren Wohn- oder Anlagezielen passt.

Fundiertes Wissen für Ihre Entscheidung, eine Immobilie zu kaufen

Bereiten Sie sich bestens vor: Infina stellt Ihnen kostenlos über 300 Ratgeber und Beiträge zu den Themen Immobilie, Finanzierung, Zinsen und Recht zur Verfügung. Nutzen Sie unser umfassendes Wissen, um richtige Entscheidungen zu treffen.

Bei jedem Kauf einer Immobilie oder eines Grundstücks ist es wichtig, die passende Finanzierung zu finden. Mit seiner eigenen Vertriebsorganisation ist Infina als Wohnbau-Finanz-Experte an über 100 Standorten in ganz Österreich vertreten und vermittelt Finanzierungen an über 150 Banken und Bausparkassen. Nutzen Sie unseren kostenlosen Kreditvergleich für den passenden Wohnkredit: 

Kreditvergleich

Kostenlos und unverbindlich

Immobilie mieten: Ihr neues Zuhause wartet

Die Entscheidung, eine Immobilie zu mieten, bietet Flexibilität und zahlreiche Möglichkeiten – ob eine Wohnung für den Alltag oder ein Haus für die Familie. Bei Infina können Sie gezielt sowohl eine Wohnung suchen als auch ein Haus suchen, das Ihren Bedürfnissen entspricht. Unsere Angebote erleichtern es Ihnen, eine Mietwohnung zu suchen und Ihre ideale Wohnung finden zu können. Entdecken Sie vielfältige Optionen, um die passende Immobilie zu finden und Ihre Wohnträume zu verwirklichen. Starten Sie noch heute Ihre Suche und profitieren Sie von einer großen Auswahl an Mietobjekten in Ihrer Wunschregion.

Hilfreiche Informationen zu Immobilie mieten

Starten Sie gut vorbereitet in Ihre Mietentscheidung: Infina stellt Ihnen vielseitige Ratgeber und Beiträge zu Themen wie Immobilie, Mietrecht, Finanzierung und Wohntrends zur Verfügung. Verschaffen Sie sich einen Überblick über alle relevanten Aspekte und gestalten Sie Ihren Weg ins neue Zuhause einfacher und sicherer.

Erfolgreich zur neuen Immobilie

Mit Infina haben Sie einen verlässlichen Partner an Ihrer Seite, der Sie von der ersten Beratung bis zum erfolgreichen Abschluss ganzheitlich unterstützt. Erfahren Sie hier, wie wir gemeinsam Ihren Immobilienerfolg gestalten.

Starten Sie jetzt Ihre Immobiliensuche

Nach zahlreichen Informationen rund um die Themen Immobilie kaufen und Immobilie mieten können Sie nun den nächsten Schritt machen. Starten Sie die Immobiliensuche, um Ihr neues Zuhause oder Ihre nächste Investition zu finden und entdecken Sie die passenden Angebote:

Das innovative Portal für Immobilien und Finanzierung 

Als Kunde von Infina profitieren Sie von unserer umfangreichen und unabhängigen Expertise als Teil einer wachsenden, unabhängigen Immobilien- und Finanzierungsnetzwerkgruppe. Bereits 50.000 Kunden hat Infina erfolgreich bei Ihrem Vorhaben begleitet. Infina bietet Ihnen eine umfassende Beratung in allen Bereichen rund um Ihre Immobilienvorhaben:

Die passende Finanzierung für Ihre Immobilie

Mit Infina erhalten Sie nicht nur eine unabhängige Beratung, sondern auch die passende Finanzierungslösung für Ihre Immobilie. Aus den Angeboten von über 150 Banken und Bausparkassen vermitteln wir Ihnen das, was perfekt zu Ihren Bedürfnissen passt. Wir begleiten Sie professionell und verlässlich – von der ersten Beratung bis zum erfolgreichen Abschluss.

Kreditvergleich

Kostenlos und unverbindlich

Wir holen das Beste für Sie heraus

Verkaufen Sie Ihre Immobilie mit uns & profitieren Sie von unserer Expertise. Wir bringen Ihre Immobilie optimal auf den Markt & erzielen den besten Preis. 

Kontaktieren Sie uns jetzt.

Jetzt Experten kontaktieren
Junge Frau im pinken Blazer hält ein Modellhaus in der linken Hand und zeigt mit der rechten Hand nach oben, als hätte sie eine Idee. Sie lächelt und blickt leicht nach oben – symbolisch für Inspiration oder Immobilienberatung.