INFINA LOGO
Entspannt zur Immobilie Persönlich & kompetent beraten Finanzierbarkeit sofort überprüfbar
Auf Anfrage
Kostenlos &
unverbindlich.
Kontakt aufnehmen
+ 1 Bilder

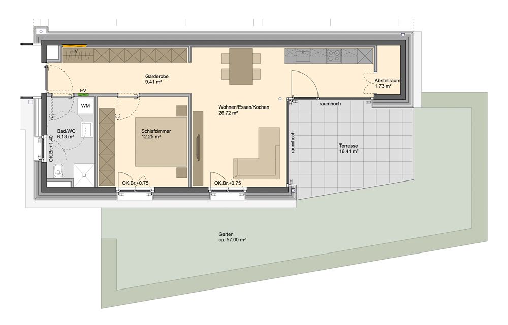
Sehr ruhig gelegene 2-Zimmer Gartenwohnung (Top 01)

Obj. Nr.: 135892

ca. 55,84 m² Wohnfläche 2 Zimmer
Partner von Infina ZIMA Bauträger 
Partner von Infina ZIMA Bauträger
Auf Anfrage Kaufpreis der Immobilie Kreditvergleich von über 150 Banken mit Infina.
Immobilie finanzieren
Mehr Informationen zur Immobilie: Detaillierte Einblicke in dieses Objekt.
Zurück zur Übersicht

Objektstandort

6974 Gaißau, Ofenstraße 32, Bregenz, Vorarlberg

Directions Icon Fahrtzeit berechnen
Preisinformationen
1 Stellplatz Tiefgarage: Kaufpreis € 27.000,00
Grundbucheintragung: 1.1 %
Grunderwerbsteuer: 3.5 %
Was kann ich mir leisten?
Jetzt berechnen
Maklerprovision:
3,00 % des Kaufpreises zzgl. 20 % USt.

Objektinformationen

Objektart: Wohnung
Unterobjektart: Erdgeschoß
Nutzungsart: Wohnen
Bauart: Neubau
Zustand: Erstbezug

Rauminformationen & Flächen

Wohnfläche: ca. 55,84 m²
Gartenfläche: ca. 57,04 m²
Kellerfläche: ca. 5,20 m²
Terrassenfläche: ca. 16,35 m²
Anzahl Terrassen: 1
Anzahl Zimmer: 2

Ausstattung

Fahrstuhl: Personenaufzug

Beschreibung *

STILLVOLLER WOHNGENUSS IN HARMONISCHER LAGE

Eingebettet in die reizvolle Naturlandschaft des Rheindeltas entsteht eine außergewöhnlich ruhige Kleinwohnanlage mit nur sieben hochwertigen 2- und 3-Zimmer Eigentumswohnungen.

Die Architektur des Neubauprojekts Ofenstraße vereint Moderne und Naturverbundenheit: Eine stilvolle Holzfassade sorgt für eine harmonische Eingliederung in die Umgebung und vermittelt eine warme, behagliche Wohnatmosphäre. Große Fensterfronten öffnen den Blick in die grüne Umgebung und lassen die Innenräume in natürlichem Licht erstrahlen.

Die durchdachten Grundrisse der Wohnungen sorgen für optimalen Wohnkomfort und sind perfekt für Singles, Paare oder kleine Familien geeignet. Besondere Momente im Freien und an der Sonne bieten die großzügigen Gärten und Terrassen. Jede Wohnung verfügt zudem über ein privates Kellerabteil, das für ausreichend Stauraum sorgt.


RUHIGE GEMEINDE IM NATURPARADIES RHEINDELTA

Dank der ländlichen Umgebung erwartet die Bewohner der Ofenstraße eine äußerst entspannte, ruhige Wohnatmosphäre ? dennoch sind die wichtigsten Dinge des täglichen Lebens wie Nahversorger und Kinderbetreuung in naher Umgebung zu finden. Die nächstgelegene Gemeinde Höchst bietet weitere Einkaufsmöglichkeiten und Dienstleister. Die Grenznähe zur Schweiz macht Gaißau auch für Pendler attraktiv.

Vor allem die Lage am Naherholungs- und Naturschutzgebiet Rheindelta, welches zahlreiche Freizeitmöglichkeiten bietet, prägt das Wohn- und Lebensgefühl in Gaißau. Neben den herrlichen Rundwanderwegen am Rheinspitz warten zahlreiche wunderschöne Badeplätze und Fahrradwege am Bodensee sowie entlang des Rheins von Gaißau über Höchst bis Hard auf die Bewohner. In 7 Minuten ist das Bodenseeufer mit dem Fahrrad zu erreichen.



Mit der Wohnbauförderung in Vorarlberg bleibt der Traum vom Eigenheim attraktiv. Profitieren Sie jetzt von guten Konditionen – und sparen Sie zusätzlich bis zu € 11.500,- durch den Entfall der Nebengebühren.


Weitere Wohneinheiten und Projekte finden Sie auf unserer Homepage: www.zima.at

*Der Vertrag kommt nicht mit der INFINA Credit Broker GmbH zustande. Das Objekt wird von einem externen Immobilienunternehmen angeboten. Allfällige aus dem Vertragsabschluss resultierende Rechte sind ausschließlich gegenüber dem anbietenden Immobilienunternehmen geltend zu machen. Wir weisen Sie darauf hin, dass die gemachten Angaben und Informationen lediglich unverbindliche Vorabinformationen sind und daher ohne Gewähr erfolgen. Der Vermittler ist als Doppelmakler tätig.

Dokumente & Videos Folder Ofenstraße Gaißau neu 144dpi Top 1 Grundrissplan
Partner von Infina ZIMA Bauträger
Verkehr:
Autobahnanschluss: 1500 m
Bus: 450 m
Bahnhof: 610 m
Flughafen: 2960 m
Nahversorgung:
Supermarkt: 550 m
Bäckerei: 610 m
Einkaufszentrum: 4930 m
Gesundheit:
Apotheke: 670 m
Arzt: 640 m
Klinik: 2490 m
Krankenhaus: 5760 m
Sonstige:
Post: 680 m
Bank: 680 m
Geldautomat: 670 m
Polizei: 1360 m
Kinder & Schulen:
Höhere Schule: 6570 m
Kindergarten: 690 m
Schule: 610 m
Universität: 6990 m

Jetzt Experten kontaktieren

Weitere interessante Objekte

Partner von Infina
Jetzt anfragen
ca. 70,00 m² Wohnfläche 3 Zimmer
265.000 €
Partner von Infina
Jetzt anfragen
ca. 55,56 m² Wohnfläche 2 Zimmer
Auf Anfrage
Partner von Infina
Jetzt anfragen
Auf Anfrage
Partner von Infina
Jetzt anfragen
Auf Anfrage
Partner von Infina
Jetzt anfragen
Auf Anfrage
Partner von Infina
Jetzt anfragen
Auf Anfrage

Immobilie kaufen: Das passende Angebot finden

Der Kauf einer Immobilie ist eine wichtige Entscheidung – sei es für die Eigennutzung oder zur Vermietung. Mit unserem Portal unterstützen wir Sie dabei, die richtige Immobilie zu kaufen. Nutzen Sie unsere Suchmöglichkeiten, um gezielt eine Immobilie zu suchen, die Ihren Vorstellungen entspricht. Unsere Immobilienangebote decken eine breite Palette ab: vom Einfamilienhaus über die Eigentumswohnung bis hin zum Grundstück für Ihr Bauvorhaben. Mit uns können Sie sicher und unkompliziert Eigentum erwerben – ob für die private Nutzung oder als Investition als Immobilie. Erkunden Sie jetzt unsere Angebote und finden Sie die perfekte Lösung, die zu Ihren Wohn- oder Anlagezielen passt.

Fundiertes Wissen für Ihre Entscheidung, eine Immobilie zu kaufen

Bereiten Sie sich bestens vor: Infina stellt Ihnen kostenlos über 300 Ratgeber und Beiträge zu den Themen Immobilie, Finanzierung, Zinsen und Recht zur Verfügung. Nutzen Sie unser umfassendes Wissen, um richtige Entscheidungen zu treffen.

Bei jedem Kauf einer Immobilie oder eines Grundstücks ist es wichtig, die passende Finanzierung zu finden. Mit seiner eigenen Vertriebsorganisation ist Infina als Wohnbau-Finanz-Experte an über 100 Standorten in ganz Österreich vertreten und vermittelt Finanzierungen an über 150 Banken und Bausparkassen. Nutzen Sie unseren kostenlosen Kreditvergleich für den passenden Wohnkredit: 

Kreditvergleich

Kostenlos und unverbindlich

Immobilie mieten: Ihr neues Zuhause wartet

Die Entscheidung, eine Immobilie zu mieten, bietet Flexibilität und zahlreiche Möglichkeiten – ob eine Wohnung für den Alltag oder ein Haus für die Familie. Bei Infina können Sie gezielt sowohl eine Wohnung suchen als auch ein Haus suchen, das Ihren Bedürfnissen entspricht. Unsere Angebote erleichtern es Ihnen, eine Mietwohnung zu suchen und Ihre ideale Wohnung finden zu können. Entdecken Sie vielfältige Optionen, um die passende Immobilie zu finden und Ihre Wohnträume zu verwirklichen. Starten Sie noch heute Ihre Suche und profitieren Sie von einer großen Auswahl an Mietobjekten in Ihrer Wunschregion.

Hilfreiche Informationen zu Immobilie mieten

Starten Sie gut vorbereitet in Ihre Mietentscheidung: Infina stellt Ihnen vielseitige Ratgeber und Beiträge zu Themen wie Immobilie, Mietrecht, Finanzierung und Wohntrends zur Verfügung. Verschaffen Sie sich einen Überblick über alle relevanten Aspekte und gestalten Sie Ihren Weg ins neue Zuhause einfacher und sicherer.

Erfolgreich zur neuen Immobilie

Mit Infina haben Sie einen verlässlichen Partner an Ihrer Seite, der Sie von der ersten Beratung bis zum erfolgreichen Abschluss ganzheitlich unterstützt. Erfahren Sie hier, wie wir gemeinsam Ihren Immobilienerfolg gestalten.

Starten Sie jetzt Ihre Immobiliensuche

Nach zahlreichen Informationen rund um die Themen Immobilie kaufen und Immobilie mieten können Sie nun den nächsten Schritt machen. Starten Sie die Immobiliensuche, um Ihr neues Zuhause oder Ihre nächste Investition zu finden und entdecken Sie die passenden Angebote:

Das innovative Portal für Immobilien und Finanzierung 

Als Kunde von Infina profitieren Sie von unserer umfangreichen und unabhängigen Expertise als Teil einer wachsenden, unabhängigen Immobilien- und Finanzierungsnetzwerkgruppe. Bereits 50.000 Kunden hat Infina erfolgreich bei Ihrem Vorhaben begleitet. Infina bietet Ihnen eine umfassende Beratung in allen Bereichen rund um Ihre Immobilienvorhaben:

Die passende Finanzierung für Ihre Immobilie

Mit Infina erhalten Sie nicht nur eine unabhängige Beratung, sondern auch die passende Finanzierungslösung für Ihre Immobilie. Aus den Angeboten von über 150 Banken und Bausparkassen vermitteln wir Ihnen das, was perfekt zu Ihren Bedürfnissen passt. Wir begleiten Sie professionell und verlässlich – von der ersten Beratung bis zum erfolgreichen Abschluss.

Kreditvergleich

Kostenlos und unverbindlich

Wir holen das Beste für Sie heraus

Verkaufen Sie Ihre Immobilie mit uns & profitieren Sie von unserer Expertise. Wir bringen Ihre Immobilie optimal auf den Markt & erzielen den besten Preis. 

Kontaktieren Sie uns jetzt.

Jetzt Experten kontaktieren
Junge Frau im pinken Blazer hält ein Modellhaus in der linken Hand und zeigt mit der rechten Hand nach oben, als hätte sie eine Idee. Sie lächelt und blickt leicht nach oben – symbolisch für Inspiration oder Immobilienberatung.