INFINA LOGO
Entspannt zur Immobilie Persönlich & kompetent beraten Finanzierbarkeit sofort überprüfbar
563.400 € 8.909 €/m²
Kostenlos &
unverbindlich.
Kontakt aufnehmen

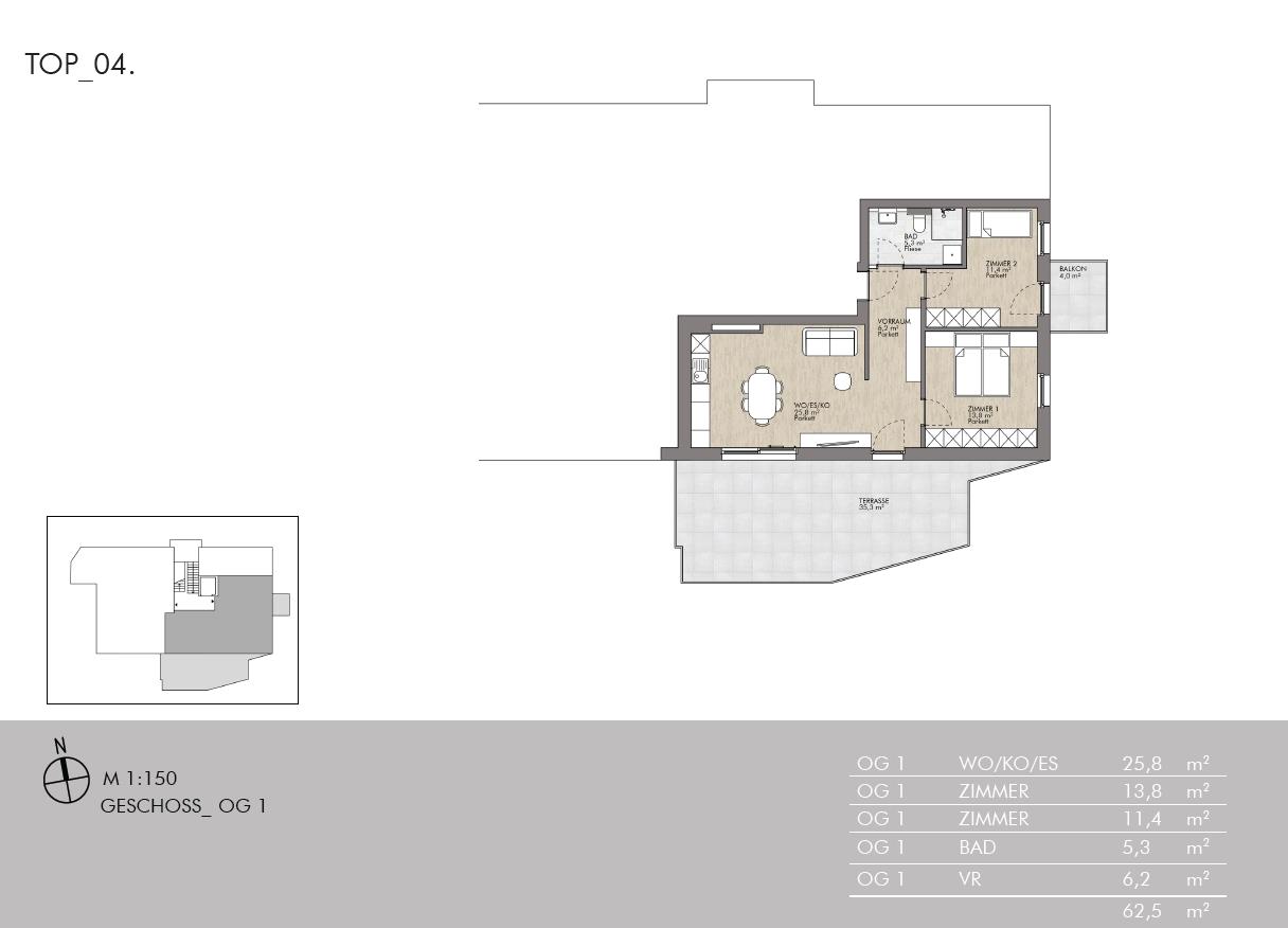
3-Zimmer-Wohnung in traumhafter Lage! Top 04

Obj. Nr.: 39172

Infina approved
Infina approved
Neubau in Aldrans Gartenwohnung mit Terrasse Süd-Ost Ausrichtung Tiefgarage
563.400 € Kaufpreis der Immobilie Kreditvergleich von über 120 Banken mit Infina.
Immobilie finanzieren
Mehr Informationen zur Immobilie: Detaillierte Einblicke in dieses Objekt.
Zurück zur Übersicht

Objektstandort

6071 Aldrans, Innsbruck-Land, Tirol Adresse anfragen

Directions Icon Fahrtzeit berechnen
Preisinformationen
Kaufpreis 563.400 €
Vertragserrichtung: 2% + 20% Steuer
Grundbucheintragung: 1.1 %
Grunderwerbsteuer: 3.5 %
Was kann ich mir leisten?
Jetzt berechnen

Objektinformationen

Objektart: Wohnung
Unterobjektart: Wohnung
Nutzungsart: Wohnen
Raumaufteilung: zentral begehbar
Bauart: Neubau
Zustand: projektiert
Hauszustand (bei Wohn./Büros/...): projektiert
Baujahr: 2027
Eigentumsform: Wohnungseigentum
Möblierung: Bad
Lagebewertung: sehr gut
Lärmpegel: geringe Beeinträchtigung
Erschließung: Vollerschlossen
schlüsselfertig: Ja
barrierefrei: Ja

Rauminformationen & Flächen

Wohnfläche: ca. 62,50 m²
Kellerfläche: ca. 2,70 m²
Terrassenfläche: ca. 35,30 m²
Anzahl Garagen: 1
Garagenfläche: ca. 12,50 m²
Anzahl Keller: 1
Anzahl Terrassen: 1
Anzahl Zimmer: 3
Anzahl WC: 1
Anzahl Bäder: 1
Raumhöhe: ca. 2,50 m

Ausstattung

Boden: Fliesen, Parkett
Befeuerung: Erdwärme
Heizungsart: Fußbodenheizung
Fahrstuhl: Personenaufzug
Bad: Dusche, Bad mit WC
Fernsehen: Kabel / Satelliten-TV
Stellplatzart: Tiefgarage
Extras: Seniorengerecht, Gartennutzung, Rollstuhlgerecht
Belüftung: kontrollierte Wohnraumlüftung
Räume: Räume veränderbar
Fenster: Außenliegender Sonnenschutz, Doppel- / Mehrfachverglasung, Kunststofffenster
Beleuchtung: Deckenleuchten
WCs: Toilette
Dachform: Flachdach
Bauweise: Massiv
Ausblick: Bergblick

Lage

Lagebeschreibung Pfarrtal 5, Aldrans

 

Pfarrtal 5 befindet sich in Aldrans, einer charmanten Gemeinde auf dem sonnigen Plateau oberhalb von Innsbruck. Die Umgebung zeichnet sich durch Ruhe, Weitläufigkeit und eine besonders naturnahe Atmosphäre aus. Sanfte Hügel, Grünflächen und Waldgebiete prägen das Ortsbild und verleihen der Lage ein Gefühl von Gelassenheit und Geborgenheit.

 

Die Straße selbst ist ruhig, vorwiegend von gepflegten Einfamilienhäusern und kleineren Wohnbauten gesäumt. Die südwestliche Ausrichtung des Grundstücks sorgt für viel Sonnenschein und ermöglicht zugleich herrliche Ausblicke auf das Inntal und die umliegenden Berge. Die Lage verbindet ländliche Idylle mit einem weitläufigen Naturpanorama, das zum Spazierengehen, Radfahren oder einfach zum Genießen der frischen Luft einlädt.

 

Trotz der ruhigen Lage sind alle wichtigen Einrichtungen gut erreichbar. Einkaufsmöglichkeiten, Cafés, Restaurants und die Pfarrkirche befinden sich in unmittelbarer Nähe und lassen sich bequem zu Fuß erreichen. Auch die Anbindung an die Landeshauptstadt Innsbruck ist hervorragend: In wenigen Autominuten gelangt man in die Stadt, öffentliche Verkehrsmittel sorgen für eine unkomplizierte Verbindung.

 

Insgesamt vereint Pfarrtal 5 in Aldrans die Vorzüge eines naturnahen, ruhigen Wohnens mit einer exzellenten Infrastruktur und der Nähe zur Stadt. Die Lage vermittelt ein besonderes Gefühl von Lebensqualität: Sie ist gleichermaßen Rückzugsort, Aussichtspunkt und Ausgangspunkt für alle Aktivitäten, die das Leben im Tiroler Mittelgebirge so reizvoll machen.

Heizung: Fußbodenheizung
Befeuerung: Erdwärme
Dokumente & Videos Pläne
Johannes Kurz
Infina Immobilien: Johannes Kurz +43 664 1433953
johannes.kurz@infina-partner.at
Nahversorgung:
Supermarkt: 80 m
Bäckerei: 110 m
Einkaufszentrum: 1760 m
Kinder & Schulen:
Schule: 240 m
Universität: 3870 m
Kindergarten: 1780 m
Höhere Schule: 1040 m
Verkehr:
Autobahnanschluss: 1170 m
Straßenbahn: 1120 m
Bus: 120 m
Bahnhof: 1110 m
Flughafen: 7730 m
Gesundheit:
Apotheke: 670 m
Arzt: 1270 m
Krankenhaus: 4380 m
Klinik: 4100 m
Sonstige:
Bank: 200 m
Polizei: 1570 m
Geldautomat: 1670 m
Post: 1820 m

Jetzt Experten kontaktieren

Weitere interessante Objekte

Infina Immobilien
Jetzt anfragen
Neubau in Aldrans Gartenwohnung mit Terrasse Süd-West Ausrichtung Tiefgarage
8.909 €/m²
541.500 €
Infina Immobilien
Jetzt anfragen
Neubau in Aldrans Gartenwohnung mit Terrasse Süd-West Ausrichtung Tiefgarage
8.909 €/m²
779.400 €
Infina Immobilien
Jetzt anfragen
Neubau in Aldrans Gartenwohnung mit Terrasse Ost-Süd-West Ausrichtung Tiefgarage
8.909 €/m²
1.340.500 €
Infina Immobilien
Jetzt anfragen
Neubau in Aldrans Gartenwohnung mit Terrasse Süd-Ausrichtung Tiefgarage
8.909 €/m²
480.000 €
Infina Immobilien
Jetzt anfragen
Neubau in Aldrans Gartenwohnung mit Terrasse Süd-Ost Ausrichtung Tiefgarage
8.909 €/m²
482.000 €

Immobilie kaufen: Das passende Angebot finden

Der Kauf einer Immobilie ist eine wichtige Entscheidung – sei es für die Eigennutzung oder zur Vermietung. Mit unserem Portal unterstützen wir Sie dabei, die richtige Immobilie zu kaufen. Nutzen Sie unsere Suchmöglichkeiten, um gezielt eine Immobilie zu suchen, die Ihren Vorstellungen entspricht. Unsere Immobilienangebote decken eine breite Palette ab: vom Einfamilienhaus über die Eigentumswohnung bis hin zum Grundstück für Ihr Bauvorhaben. Mit uns können Sie sicher und unkompliziert Eigentum erwerben – ob für die private Nutzung oder als Investition als Immobilie. Erkunden Sie jetzt unsere Angebote und finden Sie die perfekte Lösung, die zu Ihren Wohn- oder Anlagezielen passt.

Fundiertes Wissen für Ihre Entscheidung, eine Immobilie zu kaufen

Bereiten Sie sich bestens vor: Infina stellt Ihnen kostenlos über 300 Ratgeber und Beiträge zu den Themen Immobilie, Finanzierung, Zinsen und Recht zur Verfügung. Nutzen Sie unser umfassendes Wissen, um richtige Entscheidungen zu treffen.

Bei jedem Kauf einer Immobilie oder eines Grundstücks ist es wichtig, die passende Finanzierung zu finden. Mit seiner eigenen Vertriebsorganisation ist Infina als Wohnbau-Finanz-Experte an über 100 Standorten in ganz Österreich vertreten und vermittelt Finanzierungen an über 150 Banken und Bausparkassen. Nutzen Sie unseren kostenlosen Kreditvergleich für den passenden Wohnkredit: 

Kreditvergleich

Kostenlos und unverbindlich

Immobilie mieten: Ihr neues Zuhause wartet

Die Entscheidung, eine Immobilie zu mieten, bietet Flexibilität und zahlreiche Möglichkeiten – ob eine Wohnung für den Alltag oder ein Haus für die Familie. Bei Infina können Sie gezielt sowohl eine Wohnung suchen als auch ein Haus suchen, das Ihren Bedürfnissen entspricht. Unsere Angebote erleichtern es Ihnen, eine Mietwohnung zu suchen und Ihre ideale Wohnung finden zu können. Entdecken Sie vielfältige Optionen, um die passende Immobilie zu finden und Ihre Wohnträume zu verwirklichen. Starten Sie noch heute Ihre Suche und profitieren Sie von einer großen Auswahl an Mietobjekten in Ihrer Wunschregion.

Hilfreiche Informationen zu Immobilie mieten

Starten Sie gut vorbereitet in Ihre Mietentscheidung: Infina stellt Ihnen vielseitige Ratgeber und Beiträge zu Themen wie Immobilie, Mietrecht, Finanzierung und Wohntrends zur Verfügung. Verschaffen Sie sich einen Überblick über alle relevanten Aspekte und gestalten Sie Ihren Weg ins neue Zuhause einfacher und sicherer.

Erfolgreich zur neuen Immobilie

Mit Infina haben Sie einen verlässlichen Partner an Ihrer Seite, der Sie von der ersten Beratung bis zum erfolgreichen Abschluss ganzheitlich unterstützt. Erfahren Sie hier, wie wir gemeinsam Ihren Immobilienerfolg gestalten.

Starten Sie jetzt Ihre Immobiliensuche

Nach zahlreichen Informationen rund um die Themen Immobilie kaufen und Immobilie mieten können Sie nun den nächsten Schritt machen. Starten Sie die Immobiliensuche, um Ihr neues Zuhause oder Ihre nächste Investition zu finden und entdecken Sie die passenden Angebote:

Das innovative Portal für Immobilien und Finanzierung 

Als Kunde von Infina profitieren Sie von unserer umfangreichen und unabhängigen Expertise als Teil einer wachsenden, unabhängigen Immobilien- und Finanzierungsnetzwerkgruppe. Bereits 50.000 Kunden hat Infina erfolgreich bei Ihrem Vorhaben begleitet. Infina bietet Ihnen eine umfassende Beratung in allen Bereichen rund um Ihre Immobilienvorhaben:

Die passende Finanzierung für Ihre Immobilie

Mit Infina erhalten Sie nicht nur eine unabhängige Beratung, sondern auch die passende Finanzierungslösung für Ihre Immobilie. Aus den Angeboten von über 150 Banken und Bausparkassen vermitteln wir Ihnen das, was perfekt zu Ihren Bedürfnissen passt. Wir begleiten Sie professionell und verlässlich – von der ersten Beratung bis zum erfolgreichen Abschluss.

Kreditvergleich

Kostenlos und unverbindlich

Wir holen das Beste für Sie heraus

Verkaufen Sie Ihre Immobilie mit uns & profitieren Sie von unserer Expertise. Wir bringen Ihre Immobilie optimal auf den Markt & erzielen den besten Preis. 

Kontaktieren Sie uns jetzt.

Jetzt Experten kontaktieren
Junge Frau im pinken Blazer hält ein Modellhaus in der linken Hand und zeigt mit der rechten Hand nach oben, als hätte sie eine Idee. Sie lächelt und blickt leicht nach oben – symbolisch für Inspiration oder Immobilienberatung.