INFINA LOGO
Entspannt zur Immobilie Persönlich & kompetent beraten Finanzierbarkeit sofort überprüfbar
595.000 €
Kostenlos &
unverbindlich.
Kontakt aufnehmen

DACHGESCHOSS - HELLES 3 ZIMMER APARTMENT MIT BALKON

Obj. Nr.: 36829

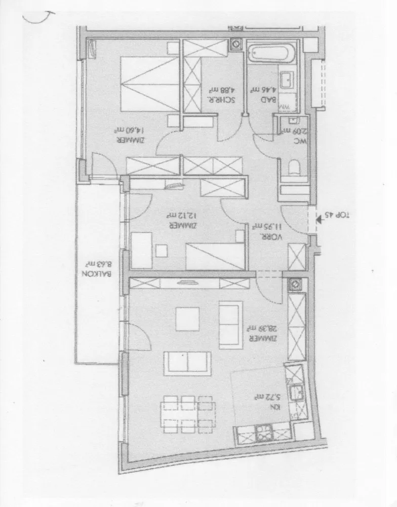
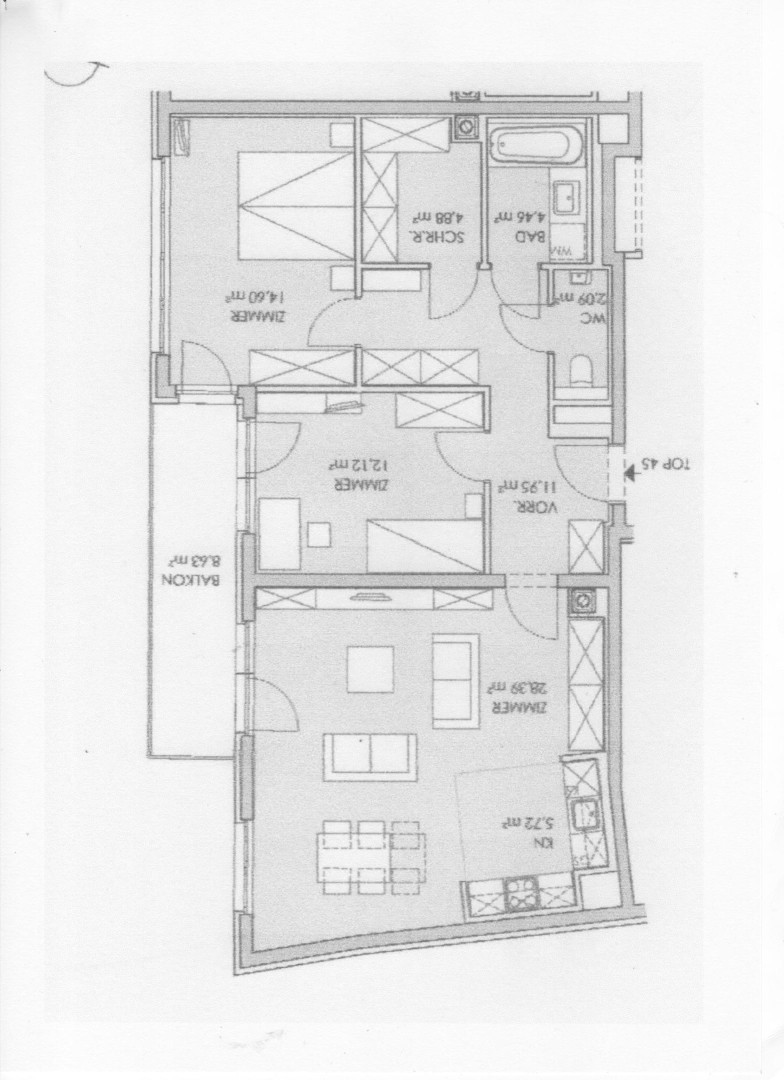
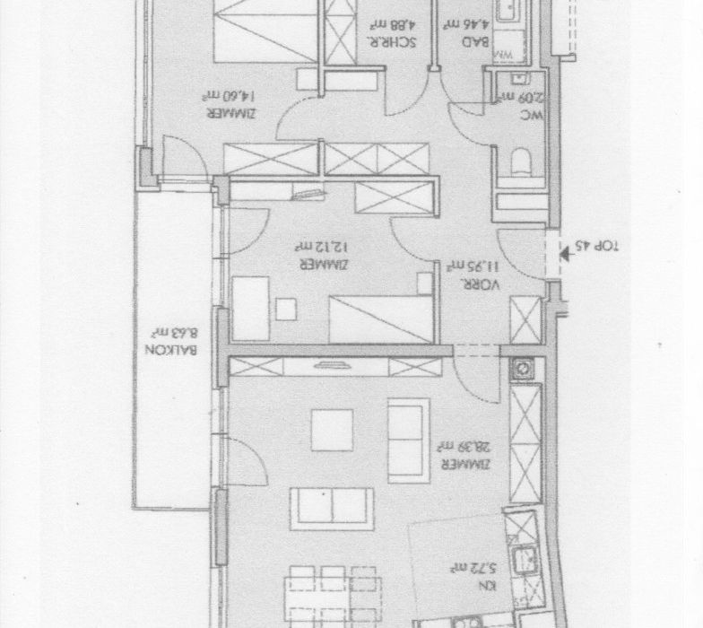
ca. 84,00 m² Wohnfläche 3 Zimmer
Partner von Infina SMK Immo Treuhand Immobilienmakler 
Partner von Infina SMK Immo Treuhand Immobilienmakler
595.000 € Kaufpreis der Immobilie Kreditvergleich von über 120 Banken mit Infina.
Immobilie finanzieren
Mehr Informationen zur Immobilie: Detaillierte Einblicke in dieses Objekt.
Zurück zur Übersicht

Objektstandort

1050 Wien, Margareten, , Wien Adresse anfragen

Directions Icon Fahrtzeit berechnen
Preisinformationen
Kaufpreis 595.000 €
Grundbucheintragung: 1.1 %
Grunderwerbsteuer: 3.5 %
Was kann ich mir leisten?
Jetzt berechnen

Objektinformationen

Objektart: Wohnung
Unterobjektart: Dachgeschoß
Nutzungsart: Wohnen
Bauart: Neubau
Zustand: gepflegt
barrierefrei: Ja

Rauminformationen & Flächen

Wohnfläche: ca. 84,00 m²
Kellerfläche: ca. 3,00 m²
Balkonfläche: ca. 9,00 m²
Anzahl Stellplätze: 1
Anzahl Zimmer: 3
Anzahl WC: 1
Anzahl Bäder: 1

Ausstattung

Befeuerung: Fernwärme
Heizungsart: Zentralheizung
Fahrstuhl: Personenaufzug
Fernsehen: Kabel / Satelliten-TV
Stellplatzart: Garage
Extras: Gartennutzung, Rollstuhlgerecht, Wasch- / Trockenraum
Energietyp: Niedrigenergiehaus
Räume: WG geeignet, Räume veränderbar
Bauweise: Massiv

Beschreibung *

RUHELAGE – HELLES 3 ZIMMER DACHGESCHOSSAPARTMENT MIT BALKON UND TIEFGARAGENPLATZ

Dieses lichtdurchflutete, ruhig gelegene 3-Zimmer Apartment mit einem 9 m² großem Balkon befindet sich im 1. Dachgeschoss in der Margaretenstraße
und bietet beste Infrastruktur und Verkehrsanbindung, einen barrierefreiem Zugang, einen Tiefgaragenplatz und einen vorteilhaften Grundriss.

Die ca. 84 m² Wohnfläche gliedert sich in:
Vorzimmer, Wohn-Esszimmer mit integrierter Küche, Schlafzimmer, Kinderzimmer,
Schrankraum, Badezimmer mit Badewanne, Waschtisch und Waschmaschinenanschluss, WC mit Handwaschbecken,

Die gediegene Ausstattung reicht von:
Neuwertige Küche ausgestattet mit allen Geräten, Parkettböden im Wohnbereich,
Fenster und Terrassentüren mit Raffstore, Gegensprechanlage, Rauschmelder
Der Balkon ist vom Wohn-Esszimmer und vom Schlafzimmer begehbar.

Weiteres verfügt das Apartment über einen Gemeinschaftsgarten im Innenhof, einem
ca. 3 m² großen Kellerabteil. Gemeinschaftsabstellräume für Fahrräder und Kinderwägen
sowie einer Waschküche.

Besonders erwähnenswert ist die ruhige Lage:
füßläufig erreichbar sind Nahversorger des täglichen Lebens, Apotheke, Ärzte, Kindergarten, Schulen, Gastronomiezone, Schlossquadrat
Der nahe gelegene Park Am Hundsturm sowie das Einsiedlerbad lädt zum entspannen ein.

Öffentliche Anbindung U4 (Margaretengürtel) erreichbar in ca. 10 Minuten zu Fuß.


Um Sie bemüht:
Fr. Bruckner, Tel.: 0664/1000944, Email: erna.bruckner@smkimmo-bruckner.at

Es wird darauf hingewiesen, dass die angeführten Daten, ausschließliche auf Informationen
des Verkäufers oder Dritter (z.B. Behörden) beruhen, so dass für die Richtigkeit keine
Gewähr übernommen werden wird!

Auf Grund der gesetzlichen Nachweispflicht gegenüber dem Eigentümer bitten wir Sie um Verständnis, dass wir nur Anfragen mit vollständigem Namen, korrekter Telefonnummer und E-Mailadresse bearbeiten können. Ihre Daten werden selbstverständlich vertraulich behandelt.

*Der Vertrag kommt nicht mit der INFINA Credit Broker GmbH zustande. Das Objekt wird von einem externen Immobilienunternehmen angeboten. Allfällige aus dem Vertragsabschluss resultierende Rechte sind ausschließlich gegenüber dem anbietenden Immobilienunternehmen geltend zu machen. Wir weisen Sie darauf hin, dass die gemachten Angaben und Informationen lediglich unverbindliche Vorabinformationen sind und daher ohne Gewähr erfolgen.

Energieausweis & Heizung
HWB (kWh/m2/Jahr): 24
HWB Energieklasse: Energieeffizienzklasse A
Heizung: Zentralheizung
Befeuerung: Fernwärme
Partner von Infina SMK Immo Treuhand Immobilienmakler

Jetzt Experten kontaktieren

Immobilie kaufen: Das passende Angebot finden

Der Kauf einer Immobilie ist eine wichtige Entscheidung – sei es für die Eigennutzung oder zur Vermietung. Mit unserem Portal unterstützen wir Sie dabei, die richtige Immobilie zu kaufen. Nutzen Sie unsere Suchmöglichkeiten, um gezielt eine Immobilie zu suchen, die Ihren Vorstellungen entspricht. Unsere Immobilienangebote decken eine breite Palette ab: vom Einfamilienhaus über die Eigentumswohnung bis hin zum Grundstück für Ihr Bauvorhaben. Mit uns können Sie sicher und unkompliziert Eigentum erwerben – ob für die private Nutzung oder als Investition als Immobilie. Erkunden Sie jetzt unsere Angebote und finden Sie die perfekte Lösung, die zu Ihren Wohn- oder Anlagezielen passt.

Fundiertes Wissen für Ihre Entscheidung, eine Immobilie zu kaufen

Bereiten Sie sich bestens vor: Infina stellt Ihnen kostenlos über 300 Ratgeber und Beiträge zu den Themen Immobilie, Finanzierung, Zinsen und Recht zur Verfügung. Nutzen Sie unser umfassendes Wissen, um richtige Entscheidungen zu treffen.

Bei jedem Kauf einer Immobilie oder eines Grundstücks ist es wichtig, die passende Finanzierung zu finden. Mit seiner eigenen Vertriebsorganisation ist Infina als Wohnbau-Finanz-Experte an über 100 Standorten in ganz Österreich vertreten und vermittelt Finanzierungen an über 120 Banken und Bausparkassen. Nutzen Sie unseren kostenlosen Kreditvergleich für den passenden Wohnkredit: 

Kreditvergleich

Kostenlos und unverbindlich

Immobilie mieten: Ihr neues Zuhause wartet

Die Entscheidung, eine Immobilie zu mieten, bietet Flexibilität und zahlreiche Möglichkeiten – ob eine Wohnung für den Alltag oder ein Haus für die Familie. Bei Infina können Sie gezielt sowohl eine Wohnung suchen als auch ein Haus suchen, das Ihren Bedürfnissen entspricht. Unsere Angebote erleichtern es Ihnen, eine Mietwohnung zu suchen und Ihre ideale Wohnung finden zu können. Entdecken Sie vielfältige Optionen, um die passende Immobilie zu finden und Ihre Wohnträume zu verwirklichen. Starten Sie noch heute Ihre Suche und profitieren Sie von einer großen Auswahl an Mietobjekten in Ihrer Wunschregion.

Hilfreiche Informationen zu Immobilie mieten

Starten Sie gut vorbereitet in Ihre Mietentscheidung: Infina stellt Ihnen vielseitige Ratgeber und Beiträge zu Themen wie Immobilie, Mietrecht, Finanzierung und Wohntrends zur Verfügung. Verschaffen Sie sich einen Überblick über alle relevanten Aspekte und gestalten Sie Ihren Weg ins neue Zuhause einfacher und sicherer.

Erfolgreich zur neuen Immobilie

Mit Infina haben Sie einen verlässlichen Partner an Ihrer Seite, der Sie von der ersten Beratung bis zum erfolgreichen Abschluss ganzheitlich unterstützt. Erfahren Sie hier, wie wir gemeinsam Ihren Immobilienerfolg gestalten.

Starten Sie jetzt Ihre Immobiliensuche

Nach zahlreichen Informationen rund um die Themen Immobilie kaufen und Immobilie mieten können Sie nun den nächsten Schritt machen. Starten Sie die Immobiliensuche, um Ihr neues Zuhause oder Ihre nächste Investition zu finden und entdecken Sie die passenden Angebote:

Das innovative Portal für Immobilien und Finanzierung 

Als Kunde von Infina profitieren Sie von unserer umfangreichen und unabhängigen Expertise als Teil einer wachsenden, unabhängigen Immobilien- und Finanzierungsnetzwerkgruppe. Bereits 50.000 Kunden hat Infina erfolgreich bei Ihrem Vorhaben begleitet. Infina bietet Ihnen eine umfassende Beratung in allen Bereichen rund um Ihre Immobilienvorhaben:

Die passende Finanzierung für Ihre Immobilie

Mit Infina erhalten Sie nicht nur eine unabhängige Beratung, sondern auch die passende Finanzierungslösung für Ihre Immobilie. Aus den Angeboten von über 120 Banken und Bausparkassen vermitteln wir Ihnen das, was perfekt zu Ihren Bedürfnissen passt. Wir begleiten Sie professionell und verlässlich – von der ersten Beratung bis zum erfolgreichen Abschluss.

Kreditvergleich

Kostenlos und unverbindlich

Wir holen das Beste für Sie heraus

Verkaufen Sie Ihre Immobilie mit uns & profitieren Sie von unserer Expertise. Wir bringen Ihre Immobilie optimal auf den Markt & erzielen den besten Preis. 

Kontaktieren Sie uns jetzt.

Jetzt Experten kontaktieren
Junge Frau im pinken Blazer hält ein Modellhaus in der linken Hand und zeigt mit der rechten Hand nach oben, als hätte sie eine Idee. Sie lächelt und blickt leicht nach oben – symbolisch für Inspiration oder Immobilienberatung.