INFINA LOGO
Entspannt zur Immobilie Persönlich & kompetent beraten Finanzierbarkeit sofort überprüfbar
649.000 €
Kostenlos &
unverbindlich.
Kontakt aufnehmen

ERSTBEZUG TOP 02: Exklusives Reihenmittelhaus in absoluter Top-Lage

Obj. Nr.: 105633

ca. 132,33 m² Wohnfläche 5 Zimmer
Partner von Infina ASW Immobilien Immobilienmakler 
Partner von Infina ASW Immobilien Immobilienmakler
649.000 € Kaufpreis der Immobilie Kreditvergleich von über 120 Banken mit Infina.
Immobilie finanzieren
Mehr Informationen zur Immobilie: Detaillierte Einblicke in dieses Objekt.
Zurück zur Übersicht

Objektstandort

4073 Thalham, Eiselmeiergasse B, Linz-Land, Oberösterreich

Directions Icon Fahrtzeit berechnen
Preisinformationen
Kaufpreis 649.000 €
1 Stellplatz Freiplatz 1 Stellplatz Garage
Grundbucheintragung: 1.1 %
Grunderwerbsteuer: 3.5 %
Was kann ich mir leisten?
Jetzt berechnen
Maklerprovision:
3,00 % des Kaufpreises zzgl. 20 % USt.

Objektinformationen

Objektart: Haus
Unterobjektart: Reihenmittelhaus
Nutzungsart: Wohnen
Zustand: Erstbezug
Baujahr: 2026

Rauminformationen & Flächen

Grundstücksfläche: ca. 207,00 m²
Wohnfläche: ca. 132,33 m²
Gartenfläche: ca. 93,00 m²
Kellerfläche: ca. 10,89 m²
Balkonfläche: ca. 4,21 m²
Terrassenfläche: ca. 12,62 m²
Garagenfläche: ca. 19,73 m²
Anzahl Balkone: 1
Anzahl Terrassen: 1
Anzahl Stellplätze: 1
Anzahl Zimmer: 5
Anzahl WC: 3
Anzahl Bäder: 2

Ausstattung

Boden: Dielen
Befeuerung: Luftwärmepumpe
Heizungsart: Fußbodenheizung
Bad: Dusche, Badewanne, Bad mit Fenster
Stellplatzart: Garage, Parkplatz

Lage

Ländliche, ruhige, sonnige exklusiv Lage
Thalham gehört zu den beliebtesten Wohngegenden von Wilhering und zeichnet sich durch erstklassige Lebensqualität sowie weitläufige Grünflächen aus. Die exklusive Lage des Objekts bietet viel Raum zur Erholung und einen direkten Zugang zur Natur.

Ländlich und dennoch stadtnah gelegen, überzeugt die Umgebung mit einer guten Infrastruktur. So erreicht man in ca. 15 Minuten mit dem Auto sowohl Leonding als auch Eferding. Die nächsten Nahversorger befinden sich rund 2 km entfernt. Die nächstgelegene LILO-Haltestelle (Kirchberg-Thürnau) ist fußläufig erreichbar.

Beschreibung *

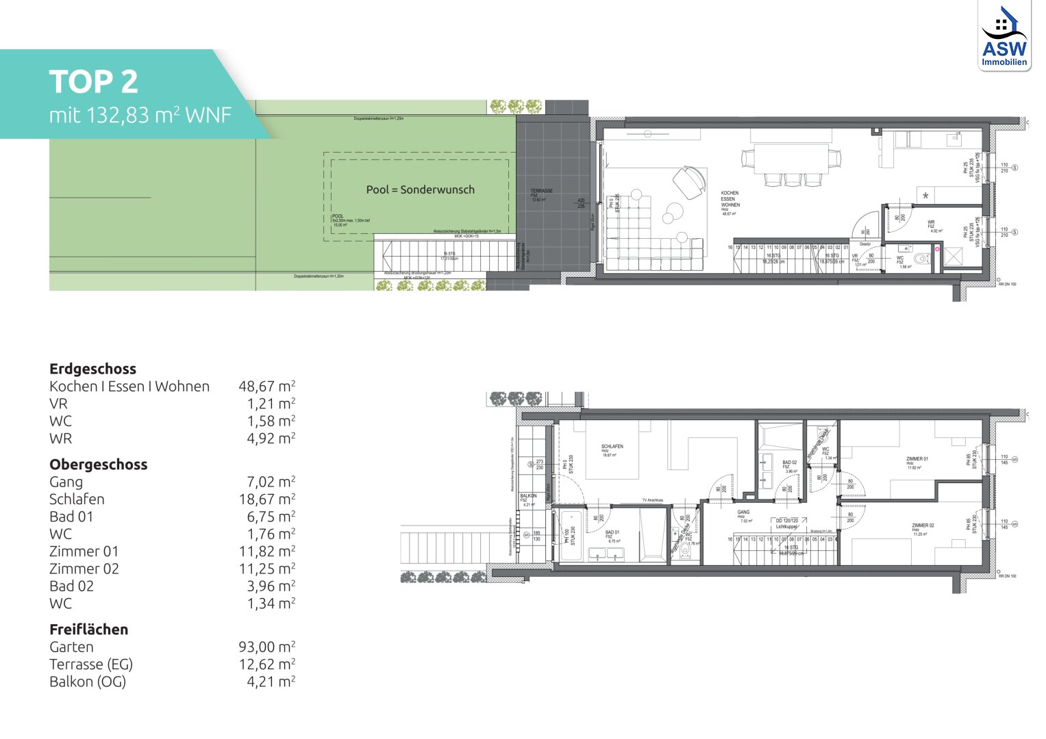
In ruhiger Siedlungslage im begehrten, Ortsteil Thalham entsteht dieses exklusive Neubauprojekt. Gebaut werden 3 Reihenhäuser mit ca. 131–135 m² Wohnfläche, aufgeteilt auf drei Ebenen.

Das Hauptaugenmerk bei der Planung lag auf der optimalen Ausnutzung der bebaubaren Fläche und der großzügigen Gestaltung der Wohn- und Nebenräume. Vom Eingangsbereich im Kellergeschoss gelangt man zu einem abgetrennten Garderobenraum, zur Garage, einem Kellerraum sowie zum angrenzenden Haustechnikraum.

Über eine Treppe erreicht man das Erdgeschoss mit offenem Wohnkonzept. Hier finden Sie viel Platz für eine großzügige Küche, die direkt an das Esszimmer anschließt. Vom Wohnzimmer aus gelangt man über die Terrasse in den sonnigen Garten. Außerdem befindet sich im Erdgeschoss ein abgetrennter Vorraum mit Zugang zu einer Toilette sowie ein Wirtschaftsraum.

Das Obergeschoss bietet ein geräumiges Schlafzimmer mit eigenem Bad, separater Toilette und Zugang zum Balkon. Darüber hinaus gibt es ein zweites Badezimmer, eine weitere Toilette sowie zwei Kinderzimmer.

Jedes Haus verfügt über eine Garage, einen Stellplatz im Freien und einen kleinen Vorgarten. TOP 1 und  TOP 3 verfügen zusätzlich über eine zweite Terrasse, die über das Esszimmer zugänglich ist.

Exklusives Eckreihenhaus mit hochwertiger Ausstattung – Baubeginn bereits erfolgt!

Dieses  modern geplante Eckreihenhaus  überzeugt durch durchdachtes Raumkonzept, hochwertige Materialien und großzügige Freiflächen. Das Haus erstreckt sich über  drei Ebenen  und wird  schlüsselfertig  übergeben – die genaue Ausstattung entnehmen Sie der Bau- und Ausstattungsbeschreibung.

Raumaufteilung:

  • Eingangsgeschoss:  Großzügige Diele mit angrenzenden Wirtschaftsraum, Kellerraum, Haustechnikraum und direkter Zugang zur Garage (19,73 m²). Außenstellplatz und Einfahrt (31m²).

  • Erdgeschoss:  Offener Wohn-, Ess- und Kochbereich (48,67 m²) mit Zugang zur Terrasse und Garten, zusätzlich WC und Wirtschaftsraum.

  • Obergeschoss:  Schlafzimmer mit eigenem Bad und WC, zwei weitere Zimmer, zusätzliches Bad und WC, sowie Balkon.

Freiflächen:
Schöner  Garten (93 m²) , Terrasse (12,62 m²)  und  Balkon (4,21 m²)  bieten viel Platz zum Entspannen und Genießen.

Besonderheit:  Auf Wunsch kann ein  Pool  realisiert werden.


Details:
Eingangsgeschoss

Diele: 7,59 m²
WR: 5,79 m²
Keller: 10,89 m²
HT I ET: 8,26 m²

Garage: 19,73 m²
Vorgarten (Außenstellplatz + Einfahrt): 31,00 m² 

Erdgeschoss
Kochen I Essen I Wohnen: 48,67 m²
VR: 1,21 m²
WC: 1,58 m²
WR: 4,92 m²

Obergeschoss
Gang: 7,02 m²
Schlafen: 18,67 m²
Bad 01: 6,75 m²
WC: 1,76 m²
Zimmer 01: 11,82 m²
Zimmer 02: 11,25 m²
Bad 02: 3,96 m²
WC: 1,43 m²

Freiflächen
Garten: 93,00 m²
Terrasse (EG): 12,62 m²
Balkon (OG): 4,21 m²


Lassen auch Sie sich von diesem Neubauprojekt überzeugen und vereinbaren Sie einen unverbindlichen Beratungs- und Besichtigungstermin per E-Mail unter r .lakovsek@aswimmo.at
Wir möchten höflich darauf hinweisen, dass im Falle eines Kaufs eine ortsübliche Maklerprovision zu bezahlen ist.

Wir weisen darauf hin, dass zwischen dem Vermittler und dem zu vermittelnden Dritten ein familiäres oder wirtschaftliches Naheverhältnis besteht.

Der Vermittler ist als Doppelmakler tätig.


*Der Vertrag kommt nicht mit der INFINA Credit Broker GmbH zustande. Das Objekt wird von einem externen Immobilienunternehmen angeboten. Allfällige aus dem Vertragsabschluss resultierende Rechte sind ausschließlich gegenüber dem anbietenden Immobilienunternehmen geltend zu machen. Wir weisen Sie darauf hin, dass die gemachten Angaben und Informationen lediglich unverbindliche Vorabinformationen sind und daher ohne Gewähr erfolgen. Der Vermittler ist als Doppelmakler tätig.

Energieausweis & Heizung
HWB (kWh/m2/Jahr): 40
HWB Energieklasse B
fGEE: 0.74
fGEE Energieklasse B
Gültig bis: 09.01.2032
Heizung: Fußbodenheizung
Befeuerung: Luftwärmepumpe
Dokumente & Videos Pläne Pläne Dokument 1
Partner von Infina ASW Immobilien Immobilienmakler
Verkehr:
Autobahnanschluss: 9410 m
Bahnhof: 620 m
Straßenbahn: 6750 m
Bus: 270 m
Flughafen: 5310 m
Sonstige:
Geldautomat: 1330 m
Post: 1400 m
Polizei: 5060 m
Bank: 2690 m
Kinder & Schulen:
Universität: 8240 m
Schule: 1960 m
Höhere Schule: 9770 m
Kindergarten: 1840 m
Nahversorgung:
Bäckerei: 2720 m
Einkaufszentrum: 6710 m
Supermarkt: 1400 m
Gesundheit:
Apotheke: 2050 m
Krankenhaus: 9390 m
Arzt: 2740 m
Klinik: 2140 m

Jetzt Experten kontaktieren

Immobilie kaufen: Das passende Angebot finden

Der Kauf einer Immobilie ist eine wichtige Entscheidung – sei es für die Eigennutzung oder zur Vermietung. Mit unserem Portal unterstützen wir Sie dabei, die richtige Immobilie zu kaufen. Nutzen Sie unsere Suchmöglichkeiten, um gezielt eine Immobilie zu suchen, die Ihren Vorstellungen entspricht. Unsere Immobilienangebote decken eine breite Palette ab: vom Einfamilienhaus über die Eigentumswohnung bis hin zum Grundstück für Ihr Bauvorhaben. Mit uns können Sie sicher und unkompliziert Eigentum erwerben – ob für die private Nutzung oder als Investition als Immobilie. Erkunden Sie jetzt unsere Angebote und finden Sie die perfekte Lösung, die zu Ihren Wohn- oder Anlagezielen passt.

Fundiertes Wissen für Ihre Entscheidung, eine Immobilie zu kaufen

Bereiten Sie sich bestens vor: Infina stellt Ihnen kostenlos über 300 Ratgeber und Beiträge zu den Themen Immobilie, Finanzierung, Zinsen und Recht zur Verfügung. Nutzen Sie unser umfassendes Wissen, um richtige Entscheidungen zu treffen.

Bei jedem Kauf einer Immobilie oder eines Grundstücks ist es wichtig, die passende Finanzierung zu finden. Mit seiner eigenen Vertriebsorganisation ist Infina als Wohnbau-Finanz-Experte an über 100 Standorten in ganz Österreich vertreten und vermittelt Finanzierungen an über 150 Banken und Bausparkassen. Nutzen Sie unseren kostenlosen Kreditvergleich für den passenden Wohnkredit: 

Kreditvergleich

Kostenlos und unverbindlich

Immobilie mieten: Ihr neues Zuhause wartet

Die Entscheidung, eine Immobilie zu mieten, bietet Flexibilität und zahlreiche Möglichkeiten – ob eine Wohnung für den Alltag oder ein Haus für die Familie. Bei Infina können Sie gezielt sowohl eine Wohnung suchen als auch ein Haus suchen, das Ihren Bedürfnissen entspricht. Unsere Angebote erleichtern es Ihnen, eine Mietwohnung zu suchen und Ihre ideale Wohnung finden zu können. Entdecken Sie vielfältige Optionen, um die passende Immobilie zu finden und Ihre Wohnträume zu verwirklichen. Starten Sie noch heute Ihre Suche und profitieren Sie von einer großen Auswahl an Mietobjekten in Ihrer Wunschregion.

Hilfreiche Informationen zu Immobilie mieten

Starten Sie gut vorbereitet in Ihre Mietentscheidung: Infina stellt Ihnen vielseitige Ratgeber und Beiträge zu Themen wie Immobilie, Mietrecht, Finanzierung und Wohntrends zur Verfügung. Verschaffen Sie sich einen Überblick über alle relevanten Aspekte und gestalten Sie Ihren Weg ins neue Zuhause einfacher und sicherer.

Erfolgreich zur neuen Immobilie

Mit Infina haben Sie einen verlässlichen Partner an Ihrer Seite, der Sie von der ersten Beratung bis zum erfolgreichen Abschluss ganzheitlich unterstützt. Erfahren Sie hier, wie wir gemeinsam Ihren Immobilienerfolg gestalten.

Starten Sie jetzt Ihre Immobiliensuche

Nach zahlreichen Informationen rund um die Themen Immobilie kaufen und Immobilie mieten können Sie nun den nächsten Schritt machen. Starten Sie die Immobiliensuche, um Ihr neues Zuhause oder Ihre nächste Investition zu finden und entdecken Sie die passenden Angebote:

Das innovative Portal für Immobilien und Finanzierung 

Als Kunde von Infina profitieren Sie von unserer umfangreichen und unabhängigen Expertise als Teil einer wachsenden, unabhängigen Immobilien- und Finanzierungsnetzwerkgruppe. Bereits 50.000 Kunden hat Infina erfolgreich bei Ihrem Vorhaben begleitet. Infina bietet Ihnen eine umfassende Beratung in allen Bereichen rund um Ihre Immobilienvorhaben:

Die passende Finanzierung für Ihre Immobilie

Mit Infina erhalten Sie nicht nur eine unabhängige Beratung, sondern auch die passende Finanzierungslösung für Ihre Immobilie. Aus den Angeboten von über 150 Banken und Bausparkassen vermitteln wir Ihnen das, was perfekt zu Ihren Bedürfnissen passt. Wir begleiten Sie professionell und verlässlich – von der ersten Beratung bis zum erfolgreichen Abschluss.

Kreditvergleich

Kostenlos und unverbindlich

Wir holen das Beste für Sie heraus

Verkaufen Sie Ihre Immobilie mit uns & profitieren Sie von unserer Expertise. Wir bringen Ihre Immobilie optimal auf den Markt & erzielen den besten Preis. 

Kontaktieren Sie uns jetzt.

Jetzt Experten kontaktieren
Junge Frau im pinken Blazer hält ein Modellhaus in der linken Hand und zeigt mit der rechten Hand nach oben, als hätte sie eine Idee. Sie lächelt und blickt leicht nach oben – symbolisch für Inspiration oder Immobilienberatung.