Obj. Nr.: 11819
            
 
                            2700 Wiener Neustadt, Ackergasse 11, Wiener Neustadt (Stadt), Niederösterreich
ERSTBEZUG! Neu fertiggestellte Reihenhäuser in moderner Holzbauweise, die nicht nur nachhaltig, sondern auch unglaublich wohnlich sind. Perfekt für alle, die von einem Zuhause mit klarem Konzept, viel Licht und einer grünen Umgebung träumen. Direkt beim Wiener Neustädter Kanal – liebevoll das „Canale Grande von Niederösterreich“ genannt – wohnen Sie dort, wo andere spazieren gehen. Viel Natur, viel Ruhe und trotzdem top angebunden: Der Bahnhof Civitas Nova liegt gleich ums Eck.
Architektur zum Wohlfühlen
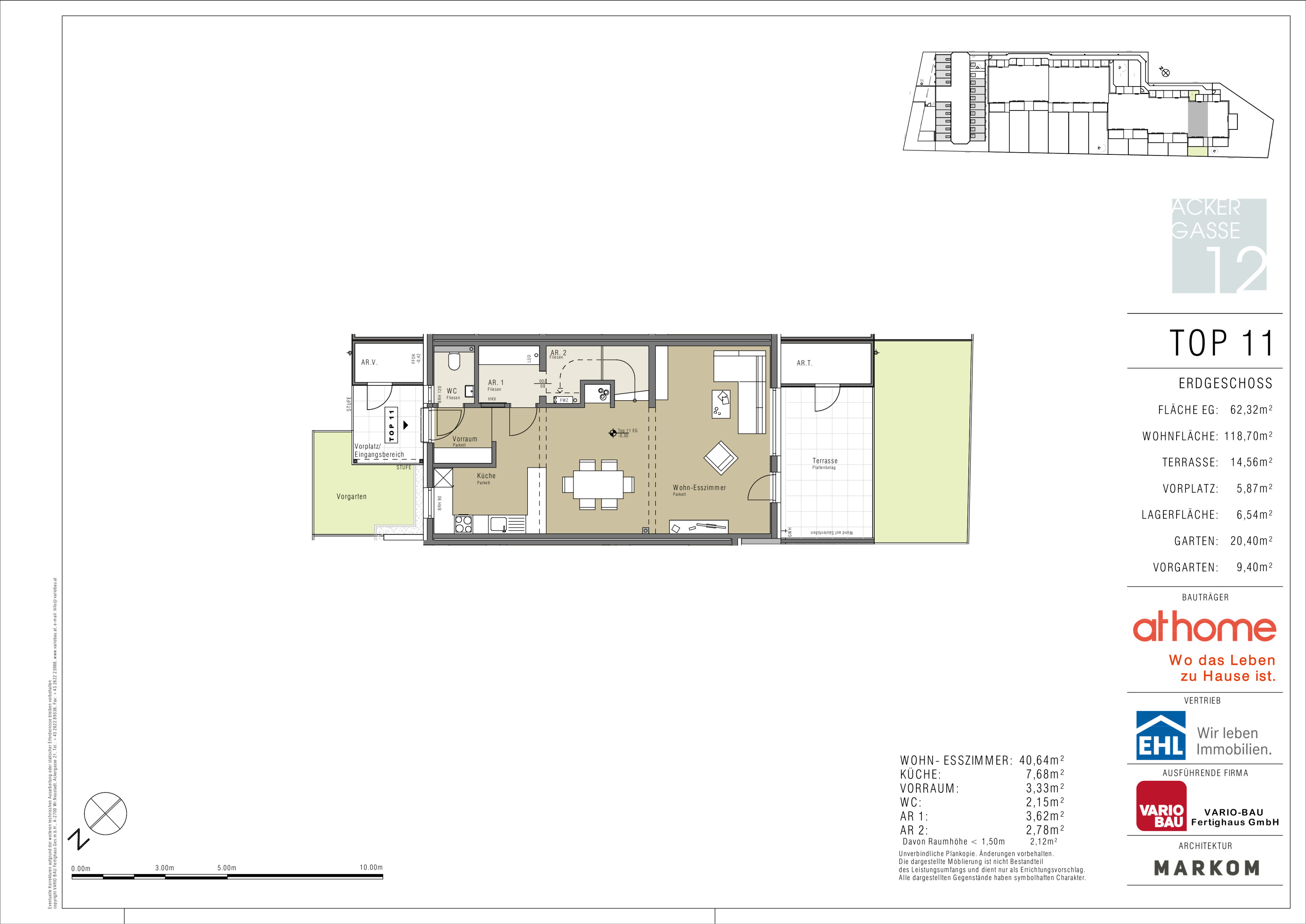
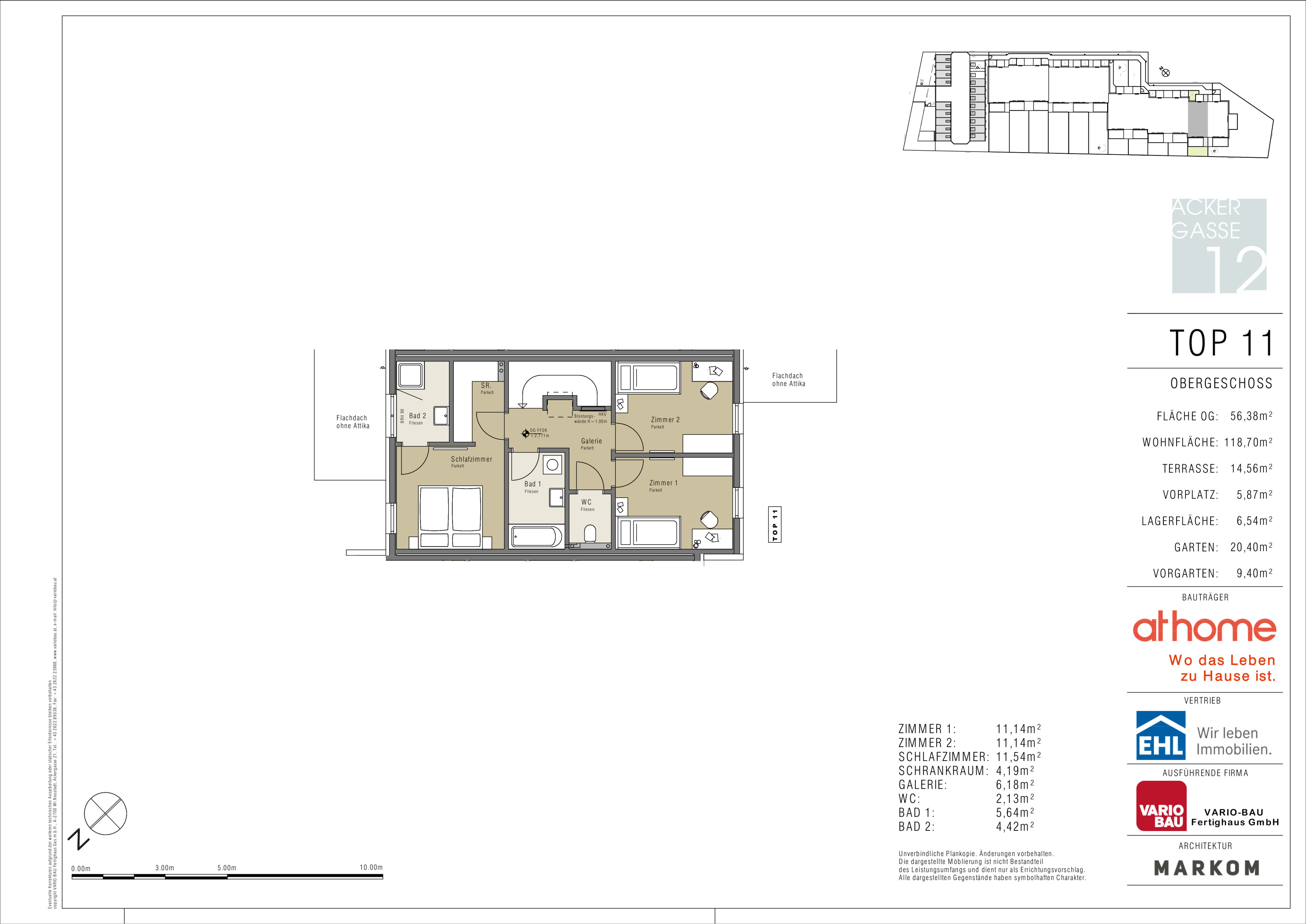
Von Anfang an durchdacht: Nachhaltigkeit trifft auf Funktionalität, modernes Design auf gemütliches Wohngefühl. Auf ca. 118 m² Wohnfläche finden Sie den Raum, den Sie für Ihr Familienleben brauchen:
Dank Südost-Ausrichtung sind die Räume wunderbar hell und schaffen eine Atmosphäre, die einfach gute Laune macht.
Ihr neues Zuhause auf einen Blick
Ausstattung, die begeistert
Vorbereitung für Photovoltaik, Klimaanlage & Alarmanlage
Lage mit Lebensqualität
Die Kombination aus Natur und urbanem Komfort macht diese Reihenhäuser so besonders. Direkt am Kanal mit Radwegen, Spaziermöglichkeiten und viel Grün – und trotzdem mitten in einer Stadt mit allen Vorzügen: Schulen, Kindergärten, Einkaufsmöglichkeiten und Freizeitangebote liegen nur wenige Minuten entfernt. Mit der Bahn sind Sie bestens angebunden – egal ob Richtung Wien oder in die Region.
Bezugsfertig. Förderbar. Provisionsfrei.
Ihr Eigenheim wartet – und es bringt alles mit, was modernes, nachhaltiges und leistbares Wohnen ausmacht.
© 2025, PROPERTY PHOTOS
Wir weisen darauf hin, dass zwischen dem Vermittler und dem zu vermittelnden Dritten ein familiäres oder wirtschaftliches Naheverhältnis besteht.
Der Vermittler ist als Doppelmakler tätig.
Infrastruktur / Entfernungen
    Gesundheit
    
    Arzt <1.500m
    
    Apotheke <1.000m
    
    Klinik <3.500m
    
    Krankenhaus <2.000m
    
    
    Kinder & Schulen
    
    Schule <500m
    
    Kindergarten <750m
    
    Höhere Schule <2.500m
    
    Universität <1.250m
    
    
    Nahversorgung
    
    Supermarkt <500m
    
    Bäckerei <1.000m
    
    Einkaufszentrum <1.000m
    
    
    Sonstige
    
    Bank <1.000m
    
    Geldautomat <1.000m
    
    Post <750m
    
    Polizei <500m
    
    
    Verkehr
    
    Bus <500m
    
    Autobahnanschluss <4.250m
    
    Bahnhof <500m
    
    Flughafen <1.500m
    
    
    Angaben Entfernung Luftlinie / Quelle: OpenStreetMap
*Der Vertrag kommt nicht mit der INFINA Credit Broker GmbH zustande. Das Objekt wird von einem externen Immobilienunternehmen angeboten. Allfällige aus dem Vertragsabschluss resultierende Rechte sind ausschließlich gegenüber dem anbietenden Immobilienunternehmen geltend zu machen. Wir weisen Sie darauf hin, dass die gemachten Angaben und Informationen lediglich unverbindliche Vorabinformationen sind und daher ohne Gewähr erfolgen.
Der Kauf einer Immobilie ist eine wichtige Entscheidung – sei es für die Eigennutzung oder zur Vermietung. Mit unserem Portal unterstützen wir Sie dabei, die richtige Immobilie zu kaufen. Nutzen Sie unsere Suchmöglichkeiten, um gezielt eine Immobilie zu suchen, die Ihren Vorstellungen entspricht. Unsere Immobilienangebote decken eine breite Palette ab: vom Einfamilienhaus über die Eigentumswohnung bis hin zum Grundstück für Ihr Bauvorhaben. Mit uns können Sie sicher und unkompliziert Eigentum erwerben – ob für die private Nutzung oder als Investition als Immobilie. Erkunden Sie jetzt unsere Angebote und finden Sie die perfekte Lösung, die zu Ihren Wohn- oder Anlagezielen passt.
Bereiten Sie sich bestens vor: Infina stellt Ihnen kostenlos über 300 Ratgeber und Beiträge zu den Themen Immobilie, Finanzierung, Zinsen und Recht zur Verfügung. Nutzen Sie unser umfassendes Wissen, um richtige Entscheidungen zu treffen.
Bei jedem Kauf einer Immobilie oder eines Grundstücks ist es wichtig, die passende Finanzierung zu finden. Mit seiner eigenen Vertriebsorganisation ist Infina als Wohnbau-Finanz-Experte an über 100 Standorten in ganz Österreich vertreten und vermittelt Finanzierungen an über 120 Banken und Bausparkassen. Nutzen Sie unseren kostenlosen Kreditvergleich für den passenden Wohnkredit:
Die Entscheidung, eine Immobilie zu mieten, bietet Flexibilität und zahlreiche Möglichkeiten – ob eine Wohnung für den Alltag oder ein Haus für die Familie. Bei Infina können Sie gezielt sowohl eine Wohnung suchen als auch ein Haus suchen, das Ihren Bedürfnissen entspricht. Unsere Angebote erleichtern es Ihnen, eine Mietwohnung zu suchen und Ihre ideale Wohnung finden zu können. Entdecken Sie vielfältige Optionen, um die passende Immobilie zu finden und Ihre Wohnträume zu verwirklichen. Starten Sie noch heute Ihre Suche und profitieren Sie von einer großen Auswahl an Mietobjekten in Ihrer Wunschregion.
Starten Sie gut vorbereitet in Ihre Mietentscheidung: Infina stellt Ihnen vielseitige Ratgeber und Beiträge zu Themen wie Immobilie, Mietrecht, Finanzierung und Wohntrends zur Verfügung. Verschaffen Sie sich einen Überblick über alle relevanten Aspekte und gestalten Sie Ihren Weg ins neue Zuhause einfacher und sicherer.
Mit Infina haben Sie einen verlässlichen Partner an Ihrer Seite, der Sie von der ersten Beratung bis zum erfolgreichen Abschluss ganzheitlich unterstützt. Erfahren Sie hier, wie wir gemeinsam Ihren Immobilienerfolg gestalten.
Nach zahlreichen Informationen rund um die Themen Immobilie kaufen und Immobilie mieten können Sie nun den nächsten Schritt machen. Starten Sie die Immobiliensuche, um Ihr neues Zuhause oder Ihre nächste Investition zu finden und entdecken Sie die passenden Angebote:
Als Kunde von Infina profitieren Sie von unserer umfangreichen und unabhängigen Expertise als Teil einer wachsenden, unabhängigen Immobilien- und Finanzierungsnetzwerkgruppe. Bereits 50.000 Kunden hat Infina erfolgreich bei Ihrem Vorhaben begleitet. Infina bietet Ihnen eine umfassende Beratung in allen Bereichen rund um Ihre Immobilienvorhaben:
Mit Infina erhalten Sie nicht nur eine unabhängige Beratung, sondern auch die passende Finanzierungslösung für Ihre Immobilie. Aus den Angeboten von über 120 Banken und Bausparkassen vermitteln wir Ihnen das, was perfekt zu Ihren Bedürfnissen passt. Wir begleiten Sie professionell und verlässlich – von der ersten Beratung bis zum erfolgreichen Abschluss.