INFINA LOGO
Entspannt zur Immobilie Persönlich & kompetent beraten Finanzierbarkeit sofort überprüfbar
499.000 €
Kostenlos &
unverbindlich.
Kontakt aufnehmen

Ihr neues Zuhause in Völkermarkt – top modern, zentrale Bestlage, schlüsselfertig

Obj. Nr.: 141796

ca. 131,93 m² Wohnfläche
Partner von Infina Immo-hoch2 Immobilienmakler 
Partner von Infina Immo-hoch2 Immobilienmakler
499.000 € Kaufpreis der Immobilie Kreditvergleich von über 150 Banken mit Infina.
Immobilie finanzieren
Mehr Informationen zur Immobilie: Detaillierte Einblicke in dieses Objekt.
Zurück zur Übersicht

Objektstandort

9100 Völkermarkt, Kärnten

Directions Icon Fahrtzeit berechnen
Preisinformationen
Kaufpreis 499.000 €
2 Stellplatz Freiplatz
Grundbucheintragung: 1.1 %
Grunderwerbsteuer: 3.5 %
Was kann ich mir leisten?
Jetzt berechnen
Maklerprovision:
3,00 % des Kaufpreises zzgl. 20 % USt.

Objektinformationen

Objektart: Haus
Unterobjektart: Doppelhaushälfte
Nutzungsart: Wohnen, Anlage
Bauart: Neubau
Zustand: Erstbezug
Baujahr: 2026

Rauminformationen & Flächen

Wohnfläche: ca. 131,93 m²
Terrassenfläche: ca. 18,11 m²
Stellplatzfläche: ca. 38,00 m²
Anzahl Stellplätze: 2

Ausstattung

Boden: Fliesen, Parkett
Befeuerung: Luftwärmepumpe
Heizungsart: Fußbodenheizung
Bad: Dusche, Badewanne, Bad mit Fenster
Stellplatzart: Carport, Parkplatz
WCs: Gäste-WC
Dachform: Flachdach
Ausbaustufe: Schlüsselfertig mit Bodenplatte

Lage

Die Neubauhäuser befinden sich in der ruhigen St. Ruprechter Straße in Völkermarkt, in leichter Hanglage mit viel Grün und Privatsphäre. Trotz der idyllischen Lage sind alle wichtigen Einrichtungen bequem erreichbar: Einkaufsmöglichkeiten, Schulen und Kindergarten liegen nur wenige Minuten entfernt, das Stadtzentrum von Völkermarkt ist in kurzer Zeit erreichbar. Die Umgebung bietet ideale Bedingungen für Familien und alle, die naturnah und dennoch zentral wohnen möchten.

Beschreibung *

Ihr neues Zuhause in Völkermarkt – modernes Wohnen in ruhiger Hanglage

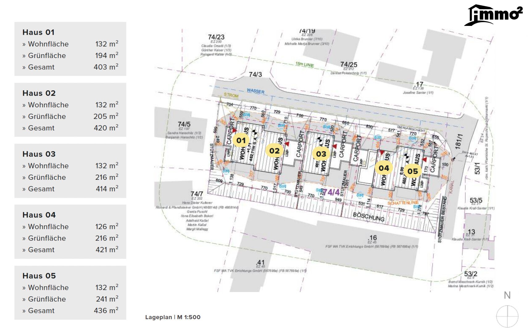
In der begehrten St. Ruprechter Straße in Völkermarkt entstehen fünf hochwertige Wohneinheiten, die modernes Design, durchdachte Grundrisse und naturnahes Wohnen perfekt vereinen. Die stilvollen Doppel- und Reihenhäuser bieten auf zwei Ebenen großzügige Wohnflächen und überzeugen mit privatem Garten, Terrasse und hochwertiger Ausstattung – ideal für Familien oder alle, die komfortabel und sorgenfrei wohnen möchten.

IMMO-HOCH2-HIGHLIGHTS:

  • Adresse:  St. Ruprechter Straße, 9100 Völkermarkt
  • Lage:  Ruhige Hanglage mit viel Privatsphäre, naturnah und dennoch gut angebunden
  • Wohnfläche:  ca. 126–132 m²
  • Zimmer:  Großzügige Raumaufteilung auf zwei Ebenen (ideal für Familien)
  • Küche:  Offener Wohn-/Essbereich – perfekt für individuelle Küchengestaltung
  • Baujahr:  Neubau / Erstbezug
  • Energieeffizienz:  Luftwärmepumpe, Fußbodenheizung, 3-fach-Isolierverglasung
  • Besonderheiten:  Eigener Garten (ca. 194–241 m²), Terrasse (ca. 18–21 m²), Carport, massive Bauweise, schlüsselfertig

🔥 AKTIONSBONUS – NUR BIS 30.06. SICHERN 🔥

Nutzen Sie jetzt eine einmalige Gelegenheit und profitieren Sie jetzt noch für kurze Zeit:

  •  Gebührenersparnis  bei Kauf bis 30.06. bei gesetzlichen Gegebenheiten bei Hauptwohnsitzmeldung:
    • 1,1% Grundbucheintragungsgebühr
    • 1,2% Pfandrechteintragungsgebühr
  • 👉  Gesamtersparnis:  mehrere Tausend Euro möglich!

Komfort und Qualität

Diese modernen Neubauten überzeugen durch ihre massive Ziegelbauweise und eine hochwertige, zeitgemäße Ausstattung. Die Kombination aus Luftwärmepumpe und Fußbodenheizung sorgt für ein angenehmes Raumklima und niedrige Betriebskosten. Großzügige Fensterflächen schaffen helle, freundliche Wohnräume, während die privaten Gärten und Terrassen zusätzlichen Wohnkomfort im Freien bieten.

Dank der schlüsselfertigen Ausführung können Sie ohne zusätzlichen Aufwand direkt einziehen und Ihr neues Zuhause genießen.

Beste Lage – ruhig und dennoch gut angebunden

Die St. Ruprechter Straße bietet eine ideale Kombination aus Ruhe und Alltagstauglichkeit:

  • Natur & Erholung:  Ruhige Hanglage mit viel Grün und hoher Lebensqualität
  • Einkaufsmöglichkeiten:  In wenigen Minuten erreichbar
  • Schulen & Kindergarten:  Perfekt für Familien
  • Verkehrsanbindung:  Gute Erreichbarkeit des Stadtzentrums von Völkermarkt

Zusammenfassung

Dieses Neubauprojekt in Völkermarkt vereint moderne Architektur, hochwertige Bauweise und durchdachte Grundrisse zu einem perfekten Gesamtpaket. Ob als Familienheim oder wertbeständige Investition – hier profitieren Sie von energieeffizientem Wohnen, großzügigen Außenflächen und einer ruhigen, attraktiven Lage.

Ein besonderes Plus: Für dieses Projekt ist eine Wohnbauförderung des Landes Kärnten möglich, wodurch sich attraktive finanzielle Vorteile ergeben und der Traum vom Eigenheim noch leistbarer wird.

Vereinbaren Sie noch heute einen Besichtigungstermin und sichern Sie sich Ihre Wohneinheit !

Hinweis gemäß Energieausweisvorlagegesetz: Ein Energieausweis wurde vom Eigentümer bzw. Verkäufer, nach unserer Aufklärung über die generell geltende Vorlagepflicht, sowie Aufforderung zu seiner Erstellung noch nicht vorgelegt. Daher gilt zumindest eine dem Alter und der Art des Gebäudes entsprechende Gesamtenergieeffizienz als vereinbart. Wir übernehmen keinerlei Gewähr oder Haftung für die tatsächliche Energieeffizienz der angebotenen Immobilie.

Der Vermittler ist als Doppelmakler tätig.


*Der Vertrag kommt nicht mit der INFINA Credit Broker GmbH zustande. Das Objekt wird von einem externen Immobilienunternehmen angeboten. Allfällige aus dem Vertragsabschluss resultierende Rechte sind ausschließlich gegenüber dem anbietenden Immobilienunternehmen geltend zu machen. Wir weisen Sie darauf hin, dass die gemachten Angaben und Informationen lediglich unverbindliche Vorabinformationen sind und daher ohne Gewähr erfolgen. Der Vermittler ist als Doppelmakler tätig.

Heizung: Fußbodenheizung
Befeuerung: Luftwärmepumpe
Dokumente & Videos Pläne
Partner von Infina Immo-hoch2 Immobilienmakler
Sonstige:
Bank: 1600 m
Polizei: 870 m
Post: 1670 m
Geldautomat: 5460 m
Verkehr:
Autobahnanschluss: 2570 m
Bus: 230 m
Bahnhof: 3610 m
Nahversorgung:
Bäckerei: 5300 m
Supermarkt: 570 m
Kinder & Schulen:
Schule: 1350 m
Kindergarten: 6060 m
Gesundheit:
Apotheke: 1520 m
Arzt: 1570 m

Jetzt Experten kontaktieren

Weitere interessante Objekte

Partner von Infina
Jetzt anfragen
330.000 €
Völkermarkt
Partner von Infina
Jetzt anfragen
890.000 €
St. Kanzian am Klopeiner See
Partner von Infina
Jetzt anfragen
1.250.000 €

Immobilie kaufen: Das passende Angebot finden

Der Kauf einer Immobilie ist eine wichtige Entscheidung – sei es für die Eigennutzung oder zur Vermietung. Mit unserem Portal unterstützen wir Sie dabei, die richtige Immobilie zu kaufen. Nutzen Sie unsere Suchmöglichkeiten, um gezielt eine Immobilie zu suchen, die Ihren Vorstellungen entspricht. Unsere Immobilienangebote decken eine breite Palette ab: vom Einfamilienhaus über die Eigentumswohnung bis hin zum Grundstück für Ihr Bauvorhaben. Mit uns können Sie sicher und unkompliziert Eigentum erwerben – ob für die private Nutzung oder als Investition als Immobilie. Erkunden Sie jetzt unsere Angebote und finden Sie die perfekte Lösung, die zu Ihren Wohn- oder Anlagezielen passt.

Fundiertes Wissen für Ihre Entscheidung, eine Immobilie zu kaufen

Bereiten Sie sich bestens vor: Infina stellt Ihnen kostenlos über 300 Ratgeber und Beiträge zu den Themen Immobilie, Finanzierung, Zinsen und Recht zur Verfügung. Nutzen Sie unser umfassendes Wissen, um richtige Entscheidungen zu treffen.

Bei jedem Kauf einer Immobilie oder eines Grundstücks ist es wichtig, die passende Finanzierung zu finden. Mit seiner eigenen Vertriebsorganisation ist Infina als Wohnbau-Finanz-Experte an über 100 Standorten in ganz Österreich vertreten und vermittelt Finanzierungen an über 150 Banken und Bausparkassen. Nutzen Sie unseren kostenlosen Kreditvergleich für den passenden Wohnkredit: 

Kreditvergleich

Kostenlos und unverbindlich

Immobilie mieten: Ihr neues Zuhause wartet

Die Entscheidung, eine Immobilie zu mieten, bietet Flexibilität und zahlreiche Möglichkeiten – ob eine Wohnung für den Alltag oder ein Haus für die Familie. Bei Infina können Sie gezielt sowohl eine Wohnung suchen als auch ein Haus suchen, das Ihren Bedürfnissen entspricht. Unsere Angebote erleichtern es Ihnen, eine Mietwohnung zu suchen und Ihre ideale Wohnung finden zu können. Entdecken Sie vielfältige Optionen, um die passende Immobilie zu finden und Ihre Wohnträume zu verwirklichen. Starten Sie noch heute Ihre Suche und profitieren Sie von einer großen Auswahl an Mietobjekten in Ihrer Wunschregion.

Hilfreiche Informationen zu Immobilie mieten

Starten Sie gut vorbereitet in Ihre Mietentscheidung: Infina stellt Ihnen vielseitige Ratgeber und Beiträge zu Themen wie Immobilie, Mietrecht, Finanzierung und Wohntrends zur Verfügung. Verschaffen Sie sich einen Überblick über alle relevanten Aspekte und gestalten Sie Ihren Weg ins neue Zuhause einfacher und sicherer.

Erfolgreich zur neuen Immobilie

Mit Infina haben Sie einen verlässlichen Partner an Ihrer Seite, der Sie von der ersten Beratung bis zum erfolgreichen Abschluss ganzheitlich unterstützt. Erfahren Sie hier, wie wir gemeinsam Ihren Immobilienerfolg gestalten.

Starten Sie jetzt Ihre Immobiliensuche

Nach zahlreichen Informationen rund um die Themen Immobilie kaufen und Immobilie mieten können Sie nun den nächsten Schritt machen. Starten Sie die Immobiliensuche, um Ihr neues Zuhause oder Ihre nächste Investition zu finden und entdecken Sie die passenden Angebote:

Das innovative Portal für Immobilien und Finanzierung 

Als Kunde von Infina profitieren Sie von unserer umfangreichen und unabhängigen Expertise als Teil einer wachsenden, unabhängigen Immobilien- und Finanzierungsnetzwerkgruppe. Bereits 50.000 Kunden hat Infina erfolgreich bei Ihrem Vorhaben begleitet. Infina bietet Ihnen eine umfassende Beratung in allen Bereichen rund um Ihre Immobilienvorhaben:

Die passende Finanzierung für Ihre Immobilie

Mit Infina erhalten Sie nicht nur eine unabhängige Beratung, sondern auch die passende Finanzierungslösung für Ihre Immobilie. Aus den Angeboten von über 150 Banken und Bausparkassen vermitteln wir Ihnen das, was perfekt zu Ihren Bedürfnissen passt. Wir begleiten Sie professionell und verlässlich – von der ersten Beratung bis zum erfolgreichen Abschluss.

Kreditvergleich

Kostenlos und unverbindlich

Wir holen das Beste für Sie heraus

Verkaufen Sie Ihre Immobilie mit uns & profitieren Sie von unserer Expertise. Wir bringen Ihre Immobilie optimal auf den Markt & erzielen den besten Preis. 

Kontaktieren Sie uns jetzt.

Jetzt Experten kontaktieren
Junge Frau im pinken Blazer hält ein Modellhaus in der linken Hand und zeigt mit der rechten Hand nach oben, als hätte sie eine Idee. Sie lächelt und blickt leicht nach oben – symbolisch für Inspiration oder Immobilienberatung.