INFINA LOGO
Entspannt zur Immobilie Persönlich & kompetent beraten Finanzierbarkeit sofort überprüfbar
890.000 €
Kostenlos &
unverbindlich.
Kontakt aufnehmen

Interessantes und äußerst charmantes Wohnungspaket im Herzen des 3-Länderecks – nebst Thermenregion

Obj. Nr.: 40264

ca. 850,00 m² Nutzfläche 22 Zimmer
Partner von Infina Polke & Partner Immobilien Immobilienmakler 
Partner von Infina Polke & Partner Immobilien Immobilienmakler
890.000 € Kaufpreis der Immobilie Kreditvergleich von über 120 Banken mit Infina.
Immobilie finanzieren
Mehr Informationen zur Immobilie: Detaillierte Einblicke in dieses Objekt.
Zurück zur Übersicht

Objektstandort

8383 Jennersdorf, Burgenland Adresse anfragen

Directions Icon Fahrtzeit berechnen
Preisinformationen
Kaufpreis 890.000 €
10 Stellplatz Freiplatz: Miete € 0,00 8 Stellplatz Carport: Miete € 0,00
Grundbucheintragung: 1.1 %
Grunderwerbsteuer: 3.5 %
Was kann ich mir leisten?
Jetzt berechnen
Maklerprovision:
3,00 % des Kaufpreises zzgl. 20 % USt.

Objektinformationen

Objektart: Haus
Unterobjektart: Mehrfamilienhaus
Nutzungsart: Wohnen

Rauminformationen & Flächen

Grundstücksfläche: ca. 2.624,00 m²
Wohnfläche: ca. 696,00 m²
Nutzfläche: ca. 850,00 m²
Gartenfläche: ca. 700,00 m²
Anzahl Stellplätze: 18
Anzahl Zimmer: 22

Ausstattung

Boden: Dielen, Marmor, Parkett
Befeuerung: Holz
Heizungsart: Kamin, Zentralheizung
Küche: Wohnküche / offene Küche, Einbauküche
Bad: Dusche, Badewanne, Bidet, Bad mit Fenster
Fernsehen: Kabel / Satelliten-TV
Extras: Gartennutzung
Belüftung: Klimaanlage
WCs: Gäste-WC

Lage

Die Gemeinde bietet eine ideale Lage für eine Vielzahl an Freizeitmöglichkeiten. Die Therme Loipersdorf ist ein beliebtes Ziel für Wellness- und Entspannungssuchende, die in den verschiedenen Thermalbecken entspannen oder sich bei einer Massage verwöhnen lassen können. Sportlich aktive Menschen finden in der Nähe mehrere Golf- und Tennisplätze, um ihr Können unter Beweis zu stellen oder einfach Spaß zu haben. Die Region eignet sich auch perfekt für Wander- und Radtouren, dank der sanften Hügel und idyllischen Weinberge, die zum Erkunden einladen. Für kulturbegeisterte Besucher bietet sich die Möglichkeit, das nahegelegene Ungarn und Slowenien zu besuchen, um die vielfältigen kulturellen und historischen Sehenswürdigkeiten zu entdecken.

In der Region gibt es eine vielfältige Auswahl an kulinarischen Highlights, darunter lokale Spezialitäten, die Gäste begeistern. Die Gegend ist bekannt für ihre ausgezeichneten Weine, die in den malerischen Weinbergen angebaut werden. Besucher können in gemütlichen Weinstuben oder urigen Heurigen lokale Weine verkosten und traditionelle Gerichte genießen. Darüber hinaus bieten zahlreiche Restaurants in der Umgebung eine vielfältige Auswahl an internationalen und österreichischen Gerichten, die für jeden Gaumen etwas Passendes bieten.

Beschreibung *

Dieses exklusive Wohnungspaket bietet Ihnen die Möglichkeit, gleich sechs wunderschöne Wohnungen zu erwerben, die modernen Wohnkomfort mit naturnaher Idylle verbinden.

Gesamtüberblick des Wohnungspakets:
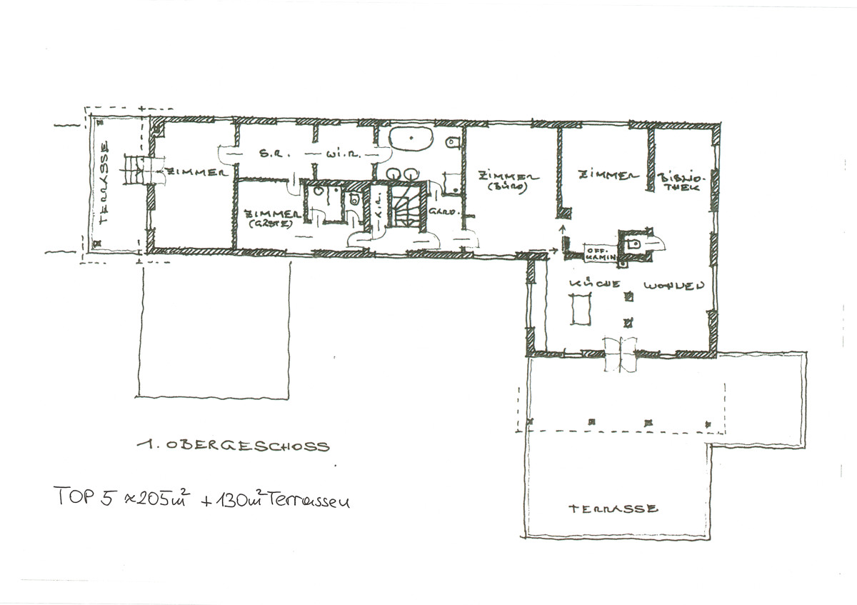
Das gesamte Gebäude umfasst sechs eigenständige Wohneinheiten (TOP 1-6) mit durchdachten Grundrissen und hochwertiger Ausstattung, die sich über mehrere Etagen erstrecken.

Die kompakten Erdgeschosswohnungen sind aktuell vermietet und bieten stabile Mieteinnahmen. Die beiden großzügigen Wohnungen im Obergeschoss werden bestandsfrei übergeben und eignen sich ideal zur Eigennutzung oder Neuvermietung

Eine besondere Oase der Entspannung:
Das Erdgeschoss beherbergt vier der Wohnungen sowie eine ca. 44 m² große Werkstatt. Ein exklusive Wellnessbereich von ca. 51 m², der separat zugänglich ist, sorgt für zusätzliche Erholung. Hier entspannen Sie in einem Whirlpool und einem Hamam, ergänzt durch eine praktische Kitchenette und einen komfortablen Erholungsbereich.

Betriebskosten:
Gemeindeabgaben
Grundsteuer B
Wasserverbrauch
Kanal vierteljährlich € 740,-
Rauchfangkehrer jährlich € 180,-
Müllverband jährlich € 568,-
Heizung jährlich € 3.500,- bis 4.000,-

*Der Vertrag kommt nicht mit der INFINA Credit Broker GmbH zustande. Das Objekt wird von einem externen Immobilienunternehmen angeboten. Allfällige aus dem Vertragsabschluss resultierende Rechte sind ausschließlich gegenüber dem anbietenden Immobilienunternehmen geltend zu machen. Wir weisen Sie darauf hin, dass die gemachten Angaben und Informationen lediglich unverbindliche Vorabinformationen sind und daher ohne Gewähr erfolgen. Der Vermittler ist als Doppelmakler tätig.

Heizung: Kamin, Zentralheizung
Befeuerung: Holz
Dokumente & Videos Pläne Pläne Pläne
Partner von Infina Polke & Partner Immobilien Immobilienmakler
Nahversorgung:
Bäckerei: 2370 m
Supermarkt: 2380 m
Einkaufszentrum: 3110 m
Verkehr:
Bahnhof: 2170 m
Bus: 310 m
Gesundheit:
Arzt: 7380 m
Apotheke: 2400 m
Klinik: 5710 m
Sonstige:
Bank: 2160 m
Geldautomat: 7610 m
Post: 2160 m
Kinder & Schulen:
Kindergarten: 5450 m
Schule: 880 m

Jetzt Experten kontaktieren

Immobilie kaufen: Das passende Angebot finden

Der Kauf einer Immobilie ist eine wichtige Entscheidung – sei es für die Eigennutzung oder zur Vermietung. Mit unserem Portal unterstützen wir Sie dabei, die richtige Immobilie zu kaufen. Nutzen Sie unsere Suchmöglichkeiten, um gezielt eine Immobilie zu suchen, die Ihren Vorstellungen entspricht. Unsere Immobilienangebote decken eine breite Palette ab: vom Einfamilienhaus über die Eigentumswohnung bis hin zum Grundstück für Ihr Bauvorhaben. Mit uns können Sie sicher und unkompliziert Eigentum erwerben – ob für die private Nutzung oder als Investition als Immobilie. Erkunden Sie jetzt unsere Angebote und finden Sie die perfekte Lösung, die zu Ihren Wohn- oder Anlagezielen passt.

Fundiertes Wissen für Ihre Entscheidung, eine Immobilie zu kaufen

Bereiten Sie sich bestens vor: Infina stellt Ihnen kostenlos über 300 Ratgeber und Beiträge zu den Themen Immobilie, Finanzierung, Zinsen und Recht zur Verfügung. Nutzen Sie unser umfassendes Wissen, um richtige Entscheidungen zu treffen.

Bei jedem Kauf einer Immobilie oder eines Grundstücks ist es wichtig, die passende Finanzierung zu finden. Mit seiner eigenen Vertriebsorganisation ist Infina als Wohnbau-Finanz-Experte an über 100 Standorten in ganz Österreich vertreten und vermittelt Finanzierungen an über 150 Banken und Bausparkassen. Nutzen Sie unseren kostenlosen Kreditvergleich für den passenden Wohnkredit: 

Kreditvergleich

Kostenlos und unverbindlich

Immobilie mieten: Ihr neues Zuhause wartet

Die Entscheidung, eine Immobilie zu mieten, bietet Flexibilität und zahlreiche Möglichkeiten – ob eine Wohnung für den Alltag oder ein Haus für die Familie. Bei Infina können Sie gezielt sowohl eine Wohnung suchen als auch ein Haus suchen, das Ihren Bedürfnissen entspricht. Unsere Angebote erleichtern es Ihnen, eine Mietwohnung zu suchen und Ihre ideale Wohnung finden zu können. Entdecken Sie vielfältige Optionen, um die passende Immobilie zu finden und Ihre Wohnträume zu verwirklichen. Starten Sie noch heute Ihre Suche und profitieren Sie von einer großen Auswahl an Mietobjekten in Ihrer Wunschregion.

Hilfreiche Informationen zu Immobilie mieten

Starten Sie gut vorbereitet in Ihre Mietentscheidung: Infina stellt Ihnen vielseitige Ratgeber und Beiträge zu Themen wie Immobilie, Mietrecht, Finanzierung und Wohntrends zur Verfügung. Verschaffen Sie sich einen Überblick über alle relevanten Aspekte und gestalten Sie Ihren Weg ins neue Zuhause einfacher und sicherer.

Erfolgreich zur neuen Immobilie

Mit Infina haben Sie einen verlässlichen Partner an Ihrer Seite, der Sie von der ersten Beratung bis zum erfolgreichen Abschluss ganzheitlich unterstützt. Erfahren Sie hier, wie wir gemeinsam Ihren Immobilienerfolg gestalten.

Starten Sie jetzt Ihre Immobiliensuche

Nach zahlreichen Informationen rund um die Themen Immobilie kaufen und Immobilie mieten können Sie nun den nächsten Schritt machen. Starten Sie die Immobiliensuche, um Ihr neues Zuhause oder Ihre nächste Investition zu finden und entdecken Sie die passenden Angebote:

Das innovative Portal für Immobilien und Finanzierung 

Als Kunde von Infina profitieren Sie von unserer umfangreichen und unabhängigen Expertise als Teil einer wachsenden, unabhängigen Immobilien- und Finanzierungsnetzwerkgruppe. Bereits 50.000 Kunden hat Infina erfolgreich bei Ihrem Vorhaben begleitet. Infina bietet Ihnen eine umfassende Beratung in allen Bereichen rund um Ihre Immobilienvorhaben:

Die passende Finanzierung für Ihre Immobilie

Mit Infina erhalten Sie nicht nur eine unabhängige Beratung, sondern auch die passende Finanzierungslösung für Ihre Immobilie. Aus den Angeboten von über 150 Banken und Bausparkassen vermitteln wir Ihnen das, was perfekt zu Ihren Bedürfnissen passt. Wir begleiten Sie professionell und verlässlich – von der ersten Beratung bis zum erfolgreichen Abschluss.

Kreditvergleich

Kostenlos und unverbindlich

Wir holen das Beste für Sie heraus

Verkaufen Sie Ihre Immobilie mit uns & profitieren Sie von unserer Expertise. Wir bringen Ihre Immobilie optimal auf den Markt & erzielen den besten Preis. 

Kontaktieren Sie uns jetzt.

Jetzt Experten kontaktieren
Junge Frau im pinken Blazer hält ein Modellhaus in der linken Hand und zeigt mit der rechten Hand nach oben, als hätte sie eine Idee. Sie lächelt und blickt leicht nach oben – symbolisch für Inspiration oder Immobilienberatung.