Obj. Nr.: 19672
            
 
                            2860 Kirchschlag in der Buckligen Welt, Wiener Neustadt, Niederösterreich Adresse anfragen
Im Falle der Notwendigkeit einer Fremdfinanzierung Ihrer Wunschimmobilie ermittelt unser Wohnbau-Finanzierungsexperte gerne die optimale Finanzierungslösung und findet das passende Zins- und Konditionsangebot für Sie. Er vergleicht die aktuellen Angebote aller relevanten Banken und Bausparkassen. Der Angebotsvergleich kann aus einem Portfolio von über 120 Banken erfolgen. Das Erstgespräch ist für Sie kostenfrei und unverbindlich, gerne auch bei Ihnen vor Ort. So sparen Sie Ihre wertvolle Zeit und erhalten eine professionelle und unabhängige Finanzierungslösung vom Spezialisten. Sprechen Sie uns wegen eines Termins gerne an!
Zum Verkauf gelangt ein traumhaftes Einfamilienhaus am Waldrand mit Fernblick auf die Burgruine.
Wohnen, wo andere Urlaub machen! Dieses großzügige, moderne Einfamilienhaus in Holzriegelbauweise wurde 2014 errichtet und liegt in absoluter Ruhelage direkt am Waldrand – mit herrlichem Blick auf die Burgruine Kirchschlag und freiem Ausblick ohne direkte Nachbarn. Die ca. 260 m² grosse Nutzfläche ist auf drei Ebenen unterteilt (KG, EG, OG). Im ganzen Haus ist eine Zentrale Staubsaugeranlage und ein Glasfaseranschluss für ultraschnelles Internet verbaut. Das traumhafte Haus wurde als Niedrigenergiehaus in Holzriegelbauweise erbaut. Es überzeugt mit moderner Wohnraumlüftung zur Kühlung im Sommer. Beheizt wird mittels Erdwärme. Zum Objekt gehört ein verpflichtend zu übernehmendes Inventar im Wert von 40.000 EUR (nicht im Kaufpreis enthalten). Dieses umfasst unter anderem eine hochwertige Kücheneinrichtung, Badezimmermöbel im Obergeschoss und im Keller, einen Esstisch mit Stühlen, eine Garderobe mit Spiegelkasten, einen hochwertig verbauten Waschraum sowie eine praktische Werkzeugbank.
Die Betriebskosten belaufen sich auf ca. 550 € pro Quartal.
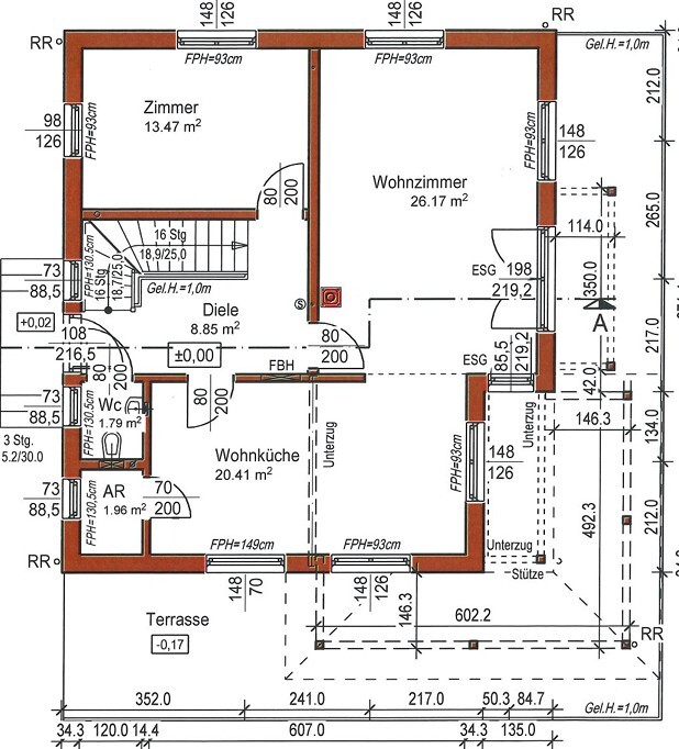
Einen voll ausgebautem Keller ebenerdig zugänglich mit eigenem Eingang, inkl. Fußbodenheizung in allen Räumen, Badezimmer und vorbereitetem Küchenanschluss. Der Keller kann ohne viel Aufwand als eigene Wohn Nutzeinheit adaptiert werden. Die fußbodenbeheizte Garage mit Platz für 2 PKWs bietet zusätzlich einen Starkstromanschluss für E-Lade Station und einen Wasseranschluss.
Das Erdgeschoss ist ebenerdig mit eigenen Hauseingang zugänglich und bietet ca. 72 m² Wohnfläche. Diese teilt sich in eine grosszügige Einbauküche mit hochwertigen Bosch-Geräten, ein Wohnzimmer mit Zugang zu einen der Highlights des Hauses, die weitläufige ca. 48 m² große Terrasse, diese ist optimal um im Sommer die Tage ausklingen zu lassen. Ein Kachelofen mit externer Zuluft – für behagliche Wärme für kalte Wintertage befindet sich ebenfalls im Wohnzimmer. Weiters finden Sie im Erdgeschoss ein Zimmer, welches als Büro genutzt werden kann sowie ein Gäste WC.
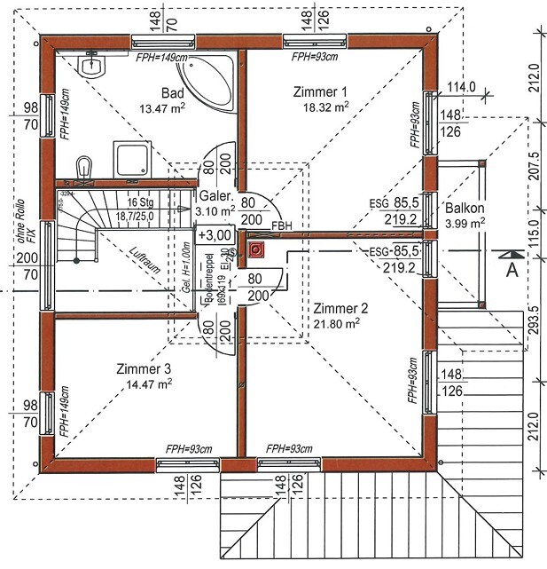
In dem ca. 68 m² großen Obergeschoss (ohne Dachschrägen) finden Sie drei großzügig angelegte Zimmer sowie einen ostseitig ausgerichteten Balkon und ein voll ausgestattetes, modernes, großes Badezimmer mit Wanne, Dusche und Toilette.
Zusätzlich überzeugt das Objekt mit einem einzigartigen Außenbereich: Ein großzügiges, ca. 1.357 m² großes und gepflegtes Grundstück mit direktem Zugang zum Wald, eine ost- und südseitig ausgerichtete Terrasse mit Außenbeleuchtung und Steckdosen, die Möglichkeit zum Poolanbau sowie eine vorbereitete Photovoltaikanlage mit vorhandener Montagemöglichkeit.
Absolute Ruhelage im Grünen – ideal für Naturfreunde und Familien. Das Haus überzeugt mit zentraler Lage in Kirchschlag in der Buckligen Welt, das Ortszentrum ist fußläufig in wenigen Minuten erreichbar wo sich Supermarkt, Ärzte, Apotheke und Gasthäuser befinden. Volksschule und Mittelschule sind in unmittelbarer Nähe. Mit dem Auto erreichen Sie in nur zirka einer Stunde den Neusiedleersee. Wien und Graz sind ebenfalls je nach in etwas mehr als 1 Stunde erreichbar.
Gerne lassen wir Ihnen bei ernsthaftem Interesse - vor Kaufanbotlegung - weitere vertraulichen Dokumente zu dieser Liegenschaft zukommen, welche nicht veröffentlicht werden dürfen.
Für Besichtigungsmöglichkeiten und nähere Informationen stehen wir Ihnen gerne zur Verfügung.
    Stephan Wallner
    
    national - Tel:
    0664 5228831
    
    international - Tel:
    +43 664 5228831
    
    e-mail:
    wallner@lifestyle-properties.at
Wir weisen darauf hin, dass zwischen dem Vermittler und dem zu vermittelnden Dritten ein familiäres oder wirtschaftliches Naheverhältnis besteht.
Der Vermittler ist als Doppelmakler tätig.
*Der Vertrag kommt nicht mit der INFINA Credit Broker GmbH zustande. Das Objekt wird von einem externen Immobilienunternehmen angeboten. Allfällige aus dem Vertragsabschluss resultierende Rechte sind ausschließlich gegenüber dem anbietenden Immobilienunternehmen geltend zu machen. Wir weisen Sie darauf hin, dass die gemachten Angaben und Informationen lediglich unverbindliche Vorabinformationen sind und daher ohne Gewähr erfolgen.
Der Kauf einer Immobilie ist eine wichtige Entscheidung – sei es für die Eigennutzung oder zur Vermietung. Mit unserem Portal unterstützen wir Sie dabei, die richtige Immobilie zu kaufen. Nutzen Sie unsere Suchmöglichkeiten, um gezielt eine Immobilie zu suchen, die Ihren Vorstellungen entspricht. Unsere Immobilienangebote decken eine breite Palette ab: vom Einfamilienhaus über die Eigentumswohnung bis hin zum Grundstück für Ihr Bauvorhaben. Mit uns können Sie sicher und unkompliziert Eigentum erwerben – ob für die private Nutzung oder als Investition als Immobilie. Erkunden Sie jetzt unsere Angebote und finden Sie die perfekte Lösung, die zu Ihren Wohn- oder Anlagezielen passt.
Bereiten Sie sich bestens vor: Infina stellt Ihnen kostenlos über 300 Ratgeber und Beiträge zu den Themen Immobilie, Finanzierung, Zinsen und Recht zur Verfügung. Nutzen Sie unser umfassendes Wissen, um richtige Entscheidungen zu treffen.
Bei jedem Kauf einer Immobilie oder eines Grundstücks ist es wichtig, die passende Finanzierung zu finden. Mit seiner eigenen Vertriebsorganisation ist Infina als Wohnbau-Finanz-Experte an über 100 Standorten in ganz Österreich vertreten und vermittelt Finanzierungen an über 120 Banken und Bausparkassen. Nutzen Sie unseren kostenlosen Kreditvergleich für den passenden Wohnkredit:
Die Entscheidung, eine Immobilie zu mieten, bietet Flexibilität und zahlreiche Möglichkeiten – ob eine Wohnung für den Alltag oder ein Haus für die Familie. Bei Infina können Sie gezielt sowohl eine Wohnung suchen als auch ein Haus suchen, das Ihren Bedürfnissen entspricht. Unsere Angebote erleichtern es Ihnen, eine Mietwohnung zu suchen und Ihre ideale Wohnung finden zu können. Entdecken Sie vielfältige Optionen, um die passende Immobilie zu finden und Ihre Wohnträume zu verwirklichen. Starten Sie noch heute Ihre Suche und profitieren Sie von einer großen Auswahl an Mietobjekten in Ihrer Wunschregion.
Starten Sie gut vorbereitet in Ihre Mietentscheidung: Infina stellt Ihnen vielseitige Ratgeber und Beiträge zu Themen wie Immobilie, Mietrecht, Finanzierung und Wohntrends zur Verfügung. Verschaffen Sie sich einen Überblick über alle relevanten Aspekte und gestalten Sie Ihren Weg ins neue Zuhause einfacher und sicherer.
Mit Infina haben Sie einen verlässlichen Partner an Ihrer Seite, der Sie von der ersten Beratung bis zum erfolgreichen Abschluss ganzheitlich unterstützt. Erfahren Sie hier, wie wir gemeinsam Ihren Immobilienerfolg gestalten.
Nach zahlreichen Informationen rund um die Themen Immobilie kaufen und Immobilie mieten können Sie nun den nächsten Schritt machen. Starten Sie die Immobiliensuche, um Ihr neues Zuhause oder Ihre nächste Investition zu finden und entdecken Sie die passenden Angebote:
Als Kunde von Infina profitieren Sie von unserer umfangreichen und unabhängigen Expertise als Teil einer wachsenden, unabhängigen Immobilien- und Finanzierungsnetzwerkgruppe. Bereits 50.000 Kunden hat Infina erfolgreich bei Ihrem Vorhaben begleitet. Infina bietet Ihnen eine umfassende Beratung in allen Bereichen rund um Ihre Immobilienvorhaben:
Mit Infina erhalten Sie nicht nur eine unabhängige Beratung, sondern auch die passende Finanzierungslösung für Ihre Immobilie. Aus den Angeboten von über 120 Banken und Bausparkassen vermitteln wir Ihnen das, was perfekt zu Ihren Bedürfnissen passt. Wir begleiten Sie professionell und verlässlich – von der ersten Beratung bis zum erfolgreichen Abschluss.