INFINA LOGO
Entspannt zur Immobilie Persönlich & kompetent beraten Finanzierbarkeit sofort überprüfbar
467.000 € 3.756 €/m²
Kostenlos &
unverbindlich.
Kontakt aufnehmen

Wohnqualität und Freiraum für die ganze Familie I Luftwärmepumpe uind Photovoltaik I 2 Stellplätze

Obj. Nr.: 50758

Infina approved
Infina approved
ca. 124,35 m² Wohnfläche 4 Zimmer
467.000 € Kaufpreis der Immobilie Kreditvergleich von über 120 Banken mit Infina.
Immobilie finanzieren
Mehr Informationen zur Immobilie: Detaillierte Einblicke in dieses Objekt.
Zurück zur Übersicht

Objektstandort

3580 Horn, Niederösterreich Adresse anfragen

Directions Icon Fahrtzeit berechnen
Preisinformationen
Kaufpreis 467.000 €
Grundbucheintragung: 1.1 %
Grunderwerbsteuer: 3.5 %
Was kann ich mir leisten?
Jetzt berechnen
Maklerprovision:
16.812,00 € inkl. 20 % USt.

Objektinformationen

Objektart: Haus
Unterobjektart: Doppelhaushälfte
Nutzungsart: Wohnen, Anlage
Bauart: Neubau
Zustand: Erstbezug
Baujahr: 2026
Zustandsbewertung: sehr gut
schlüsselfertig: Ja
belagsfertig: Ja

Rauminformationen & Flächen

Grundstücksfläche: ca. 338,42 m²
Wohnfläche: ca. 124,35 m²
Gartenfläche: ca. 186,59 m²
Terrassenfläche: ca. 13,47 m²
Anzahl Gärten: 2
Anzahl Terrassen: 1
Anzahl Stellplätze: 2
Anzahl Zimmer: 4
Anzahl WC: 2
Anzahl Bäder: 1
Anzahl Abstellräume: 3
Raumhöhe: ca. 2,60 m

Ausstattung

Befeuerung: Luftwärmepumpe
Heizungsart: Fußbodenheizung
Balkon: Südbalkon / -terrasse, Südostbalkon / -terrasse
Bad: Bad mit Fenster, Badewanne, Dusche, Bad mit WC
Stellplatzart: Parkplatz
Extras: Abstellraum, Gartennutzung
Räume: WG geeignet
Fenster: Außenliegender Sonnenschutz, Doppel- / Mehrfachverglasung
WCs: Getrennte Toiletten, Gäste-WC
Dachform: Flachdach
Bauweise: Massiv, Ziegel

Lage

Mödring ist mit rund 500 Einwohnern und einer Fläche von etwa 9 km² die größte der vier Katastralgemeinden der Stadtgemeinde Horn. Die nur wenige Meter entfernte Bushaltestelle sorgt für eine sehr gute Anbindung an das öffentliche Verkehrsnetz.

Alle Einrichtungen des täglichen Bedarfs – von Nahversorgern über medizinische Versorgung bis hin zu Kindergarten und sämtlichen Schulstufen – befinden sich in der nur 2 Kilometer entfernten Bezirkshauptstadt Horn.

Die Wohnanlage „Zwischen Reben“ liegt in einer ruhigen, dennoch zentralen Umgebung und überzeugt zudem durch ihre ideale süd-westliche Ausrichtung, die viele Sonnenstunden garantiert.

 

Verkehr:

- Bushaltestelle Mödring: ca. 700m,

- Bahnhof Horn: ca. 10min mit dem Rad oder 6min mit dem Auto.

 

Nahversorgung:

- Spar: ca. 3min mit dem Auto,

- Hofer ca. 8min mit dem Auto.

 

Bildung:

- Kindergarten: ca. 2min mit dem Auto,

- Volksschule: ca. 4min mit dem Auto,

- Gymnasium: ca. 5min mit dem Auto.

Beschreibung

„Zwischen Reben“ steht für ein hohes Maß an Wohnqualität und Freiraum für die ganze Familie. Diese moderne Doppelhaushälfte entsteht auf einem Grundstück mit ca. 338,42 m² und einem sonnigen Garten mit ca. 186,59 m² – ideal für Familien, die Natur, Ruhe und viel Platz schätzen.

Die harmonische Architektur fügt sich perfekt in das Landschaftsbild ein und überzeugt durch ein durchdachtes Raumkonzept sowie eine einladende Terrasse, die viel Freiheit und Lebensqualität bietet. Hier entsteht ein Zuhause, das Raum für Entspannung, Familienzeit und persönliche Gestaltung lässt.

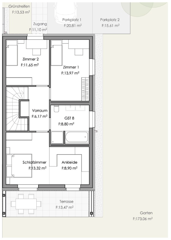
Beim Betreten der ca. 124,35 m² Wohnfläche gelangt man über den Vorraum in den offenen, lichtdurchfluteten Wohnbereich. Der großzügige Wohn-/Essbereich mit angrenzender Küche schafft ein einladendes Zentrum für das tägliche Familienleben und führt direkt auf die Terrasse mit anschließendem Garten – ein idealer Rückzugsort für Kinder, Hobbygärtner oder gemütliche Stunden im Freien. Ein Gäste-WC, ein Abstellraum und der Technikraum komplettieren das Erdgeschoss.

Über die Treppe öffnet sich das Obergeschoss mit zwei gut geschnittenen Kinderzimmern, einem großzügigen Elternschlafzimmer mit eigenem Schrankraum sowie einem Badezimmer, das Raum für individuelle Gestaltung lässt. Große 3-fach-verglaste Fensterflächen und eine Raumhöhe von ca. 2,60 m sorgen in allen Räumen für viel Licht und ein angenehmes Raumgefühl.

Die Doppelhaushälfte wird belagsfertig angeboten – perfekt für alle, die ihr neues Zuhause nach eigenen Vorstellungen fertigstellen möchten.
Für zusätzlichen Komfort steht auf Wunsch eine schlüsselfertige Ausführung gegen Aufpreis zur Verfügung. Bereits in der Standardausführung bieten wir hochwertige Produkte wie hochwertige Landhausdielen, moderne Feinsteinzeug-Fliesen, Dusche und Badewanne zu einem leistbaren Preis ab € 45.000,- an.

Der südlich orientierte Garten garantiert viele Sonnenstunden und bietet dank der leicht versetzten Bauweise auch auf der eigenen Terrasse viel Privatsphäre. Zwei Autoabstellplätze direkt vor dem Haus runden das Angebot ab.

Die Ziegelmassivbauweise mit effizienter Wärmedämmung sorgt für ein angenehmes Raumklima zu jeder Jahreszeit. Eine Wärmepumpe mit Fußbodenheizung, unterstützt durch eine Photovoltaikanlage, ermöglicht energieeffizientes und kostenschonendes Wohnen. Auf Wunsch kann die Anlage auch zur Kühlung im Sommer genutzt werden. Das Gebäude wird auf Bodenplatte errichtet und ist nicht unterkellert.

Raumaufteilung

Erdgeschoss:

  • Wohnen/Essen ca. 24,96 m²

  • Küche ca. 19,67 m²

  • Vorraum, WC, Abstellraum, Haustechnik

Obergeschoss:

  • Schlafzimmer + Ankleide
  • Kinderzimmer ca. 13,97 m² & ca. 11,65 m²

  • Bad/WC ca. 8,61 m²

  • Vorraum

Grundstück & Außenflächen:

  • Grundstück ca. 338,42 m²

  • Terrasse ca. 13,47 m²

  • Garten ca. 186,59 m²

  • 2 PKW-Stellplätze (ca. 20,81 m² & 15,61 m²)

  • Zugang ca. 11,10 m²

Übersicht der verfügbaren weiteren Objekte

  • Haus 1 DHH: ca. 124,35 m² WNFl | Grundstück ca. 377,76 m² | Kaufpreis belagsfertig: € 467.000

  • Haus 2 DHH: ca. 124,35 m² WNFl | Grundstück ca. 346,42 m² | Kaufpreis belagsfertig: € 461.000

  • Haus 3 DHH: ca. 124,35 m² WNFl | Grundstück ca. 369,48 m² | Kaufpreis belagsfertig: € 463.000

  • Haus 4 DHH: ca. 124,35 m² WNFl | Grundstück ca. 338,42 m² | Kaufpreis belagsfertig: € 459.000

  • Haus 5 DHH: ca. 124,35 m² WNFl | Grundstück ca. 514,38 m² | Kaufpreis belagsfertig: € 480.000

  • Haus 6 DHH: ca. 124,35 m² WNFl | Grundstück ca. 514,10 m² | Kaufpreis belagsfertig: € 480.000


Wir weisen Sie darauf hin, dass die gemachten Angaben und Informationen lediglich unverbindliche Vorabinformationen sind und daher ohne Gewähr erfolgen. Der Vermittler ist als Doppelmakler tätig.

Energieausweis & Heizung
HWB (kWh/m2/Jahr): 43
HWB Energieklasse B
fGEE: 0.69
fGEE Energieklasse B
Heizung: Fußbodenheizung
Befeuerung: Luftwärmepumpe
Dokumente & Videos Pläne Pläne Pläne
Sebastian Scheuermann
Infina Immobilien: Sebastian Scheuermann +43 676 4207846
sebastian.scheuermann@infina-partner.at
Verkehr:
Bus: 400 m
Bahnhof: 3050 m
Nahversorgung:
Bäckerei: 2720 m
Supermarkt: 1420 m
Einkaufszentrum: 2700 m
Kinder & Schulen:
Höhere Schule: 5970 m
Schule: 1940 m
Kindergarten: 2470 m
Gesundheit:
Apotheke: 2370 m
Arzt: 2500 m
Krankenhaus: 2400 m
Klinik: 2520 m
Sonstige:
Bank: 2560 m
Polizei: 2820 m
Post: 2740 m

Jetzt Experten kontaktieren

Immobilie kaufen: Das passende Angebot finden

Der Kauf einer Immobilie ist eine wichtige Entscheidung – sei es für die Eigennutzung oder zur Vermietung. Mit unserem Portal unterstützen wir Sie dabei, die richtige Immobilie zu kaufen. Nutzen Sie unsere Suchmöglichkeiten, um gezielt eine Immobilie zu suchen, die Ihren Vorstellungen entspricht. Unsere Immobilienangebote decken eine breite Palette ab: vom Einfamilienhaus über die Eigentumswohnung bis hin zum Grundstück für Ihr Bauvorhaben. Mit uns können Sie sicher und unkompliziert Eigentum erwerben – ob für die private Nutzung oder als Investition als Immobilie. Erkunden Sie jetzt unsere Angebote und finden Sie die perfekte Lösung, die zu Ihren Wohn- oder Anlagezielen passt.

Fundiertes Wissen für Ihre Entscheidung, eine Immobilie zu kaufen

Bereiten Sie sich bestens vor: Infina stellt Ihnen kostenlos über 300 Ratgeber und Beiträge zu den Themen Immobilie, Finanzierung, Zinsen und Recht zur Verfügung. Nutzen Sie unser umfassendes Wissen, um richtige Entscheidungen zu treffen.

Bei jedem Kauf einer Immobilie oder eines Grundstücks ist es wichtig, die passende Finanzierung zu finden. Mit seiner eigenen Vertriebsorganisation ist Infina als Wohnbau-Finanz-Experte an über 100 Standorten in ganz Österreich vertreten und vermittelt Finanzierungen an über 150 Banken und Bausparkassen. Nutzen Sie unseren kostenlosen Kreditvergleich für den passenden Wohnkredit: 

Kreditvergleich

Kostenlos und unverbindlich

Immobilie mieten: Ihr neues Zuhause wartet

Die Entscheidung, eine Immobilie zu mieten, bietet Flexibilität und zahlreiche Möglichkeiten – ob eine Wohnung für den Alltag oder ein Haus für die Familie. Bei Infina können Sie gezielt sowohl eine Wohnung suchen als auch ein Haus suchen, das Ihren Bedürfnissen entspricht. Unsere Angebote erleichtern es Ihnen, eine Mietwohnung zu suchen und Ihre ideale Wohnung finden zu können. Entdecken Sie vielfältige Optionen, um die passende Immobilie zu finden und Ihre Wohnträume zu verwirklichen. Starten Sie noch heute Ihre Suche und profitieren Sie von einer großen Auswahl an Mietobjekten in Ihrer Wunschregion.

Hilfreiche Informationen zu Immobilie mieten

Starten Sie gut vorbereitet in Ihre Mietentscheidung: Infina stellt Ihnen vielseitige Ratgeber und Beiträge zu Themen wie Immobilie, Mietrecht, Finanzierung und Wohntrends zur Verfügung. Verschaffen Sie sich einen Überblick über alle relevanten Aspekte und gestalten Sie Ihren Weg ins neue Zuhause einfacher und sicherer.

Erfolgreich zur neuen Immobilie

Mit Infina haben Sie einen verlässlichen Partner an Ihrer Seite, der Sie von der ersten Beratung bis zum erfolgreichen Abschluss ganzheitlich unterstützt. Erfahren Sie hier, wie wir gemeinsam Ihren Immobilienerfolg gestalten.

Starten Sie jetzt Ihre Immobiliensuche

Nach zahlreichen Informationen rund um die Themen Immobilie kaufen und Immobilie mieten können Sie nun den nächsten Schritt machen. Starten Sie die Immobiliensuche, um Ihr neues Zuhause oder Ihre nächste Investition zu finden und entdecken Sie die passenden Angebote:

Das innovative Portal für Immobilien und Finanzierung 

Als Kunde von Infina profitieren Sie von unserer umfangreichen und unabhängigen Expertise als Teil einer wachsenden, unabhängigen Immobilien- und Finanzierungsnetzwerkgruppe. Bereits 50.000 Kunden hat Infina erfolgreich bei Ihrem Vorhaben begleitet. Infina bietet Ihnen eine umfassende Beratung in allen Bereichen rund um Ihre Immobilienvorhaben:

Die passende Finanzierung für Ihre Immobilie

Mit Infina erhalten Sie nicht nur eine unabhängige Beratung, sondern auch die passende Finanzierungslösung für Ihre Immobilie. Aus den Angeboten von über 150 Banken und Bausparkassen vermitteln wir Ihnen das, was perfekt zu Ihren Bedürfnissen passt. Wir begleiten Sie professionell und verlässlich – von der ersten Beratung bis zum erfolgreichen Abschluss.

Kreditvergleich

Kostenlos und unverbindlich

Wir holen das Beste für Sie heraus

Verkaufen Sie Ihre Immobilie mit uns & profitieren Sie von unserer Expertise. Wir bringen Ihre Immobilie optimal auf den Markt & erzielen den besten Preis. 

Kontaktieren Sie uns jetzt.

Jetzt Experten kontaktieren
Junge Frau im pinken Blazer hält ein Modellhaus in der linken Hand und zeigt mit der rechten Hand nach oben, als hätte sie eine Idee. Sie lächelt und blickt leicht nach oben – symbolisch für Inspiration oder Immobilienberatung.