INFINA LOGO
Entspannt zur Immobilie Persönlich & kompetent beraten Finanzierbarkeit sofort überprüfbar
1.480.000 €
Kostenlos &
unverbindlich.
Kontakt aufnehmen

Neuwertiges Traumhaus Nähe Faaker See: Garten, Terrasse, top Ausstattung.

Obj. Nr.: 42247

ca. 207,00 m² Wohnfläche
Partner von Infina lebensraum Immobilienmakler 
Partner von Infina lebensraum Immobilienmakler
1.480.000 € Kaufpreis der Immobilie Kreditvergleich von über 120 Banken mit Infina.
Immobilie finanzieren
Mehr Informationen zur Immobilie: Detaillierte Einblicke in dieses Objekt.

Objektstandort

9582 Oberaichwald, Villach-Land, Kärnten Adresse anfragen

Directions Icon Fahrtzeit berechnen
Preisinformationen
Kaufpreis 1.480.000 €
Betriebskosten inkl. USt. 400,00 €
Heizkosten inkl. USt. 100,00 €
6 Stellplatz Freiplatz 2 Stellplatz Garage
Grundbucheintragung: 1.1 %
Grunderwerbsteuer: 3.5 %
Was kann ich mir leisten?
Jetzt berechnen
Maklerprovision:
3,00 % des Kaufpreises zzgl. 20 % USt.

Objektinformationen

Objektart: Haus
Nutzungsart: Wohnen
Bauart: Neubau
Zustand: neuwertig
Baujahr: 2023
Erschließung: Vollerschlossen

Rauminformationen & Flächen

Grundstücksfläche: ca. 4.159,00 m²
Wohnfläche: ca. 207,00 m²
Anzahl Balkone: 1
Anzahl Terrassen: 1
Anzahl Stellplätze: 6
Anzahl WC: 3

Ausstattung

Boden: Fliesen, Dielen, Marmor, Parkett
Befeuerung: Luftwärmepumpe
Heizungsart: Fußbodenheizung, Zentralheizung
Küche: Wohnküche / offene Küche
Bad: Bad mit Fenster
Fernsehen: Kabel / Satelliten-TV
Stellplatzart: Carport, Garage, Parkplatz
Extras: Gartennutzung, Abstellraum, Fahrradraum
Räume: Räume veränderbar
Fenster: Rollladen
Dachform: Pultdach, Satteldach
Bauweise: Massiv, Holz
Ausbaustufe: Schlüsselfertig mit Bodenplatte

Lage

Willkommen in Oberaichwald, einem idyllischen Ort in direkter Nähe zum Faaker See in Kärnten! Dieses traumhafte Haus liegt in sonniger Südausrichtung und bietet einen perfekten Rückzugsort. Nur wenige Minuten entfernt finden Sie den malerischen Faaker See, der zum Schwimmen und Entspannen einlädt. Die Stadt Villach und die beeindruckende Gerlitzen sind ebenfalls schnell erreichbar. Zudem profitieren Sie von der Nähe zu Schulen und Busverbindungen, die für eine optimale Anbindung sorgen. Hier wird Ihr Wohntraum Wirklichkeit!

Beschreibung *

Diese beeindruckende Immobilie bietet Ihnen nicht nur ein modernes und neuwertiges Wohngefühl: Es wurde ein antikes, bäuerliches Haus komplett neu aufgebaut, somit wird Moderne mit Antike verbunden. Lebensqualität, die Sie begeistert, wird in dieser Sonderimmobilie perfekt vereint. Mit einer großzügigen Wohnfläche von 207 m², aufgeteilt in das Haupthaus mit einer Wohnfläche von 140m² und eine komplette Wohnung im Nebenhaus mit ca. 67m². Dieses Haus ist ideal für Familien oder für all jene, die viel Platz zum Entfalten suchen. Die Nutzung der im Nebenhaus befindlichen Wohnung als Luxus-Ferien-Appartement ist möglich.

Exzellente Bauqualität und die durchdachte Raumaufteilung machen dieses Haus ebenso einzigartig, wie auch die Höhe der Räume, die sich bis in die Badezimmer widerspiegelt. Jedes Zimmer wurde mit Liebe zum Detail gestaltet und bietet Ihnen höchsten Komfort. Die hochwertigen Bodenbälge sorgen nicht nur für eine harmonische Atmosphäre, sondern auch für Wärme und Behaglichkeit dank der Fußbodenheizung, die in den meisten Bereichen installiert ist. Im Wohn- Esszimmer befindet sich zusätzlich ein Schwedenofen, der mit einem Sichtfenster nicht nur für behagliche Wärme sorgt, sondern auch Entspannung pur bietet.

Die offene Wohnküche lädt zu geselligen Abenden mit Freunden und Familie ein. Hier können Sie kulinarische Meisterwerke kreieren und genießen, während Sie den herrlichen Ausblick auf die umliegenden Berge und die grüne Landschaft auf sich wirken lassen. Die großen, bodentiefen Fenster lassen viel Licht in die Räume strömen und bieten einen atemberaubenden Fernblick, der Sie jeden Tag aufs Neue begeistern wird.

Das Badezimmer ist ein wahres Highlight dieser Immobilie. Es wird zum perfekten Rückzugsort, um nach einem langen Tag zu entspannen. Mit insgesamt drei WCs sind Sie bestens ausgestattet, um auch bei Besuchern keine Kompromisse eingehen zu müssen.

Der Garten und die Terrasse sind weitere Schätze dieses Anwesens, die Ihnen die Möglichkeit bieten, die Natur in vollen Zügen zu genießen. Stellen Sie sich vor, wie Sie an warmen Sommertagen im Garten entspannen oder auf der Terrasse bei einem Glas Wein den Sonnenuntergang beobachten. Zwischen dem Haupt- und dem Nebenhaus ist auch noch eine Fläche, die zu einer perfekten Zusatzterrasse ausgebaut werden kann.
Im Garten sind 2 Zisternen mit je 5.000 Liter Fassungsvermögen vorhanden, die die Bewässerung des Grundstücks mit Regenwasser sichern.

Für Ihre Fahrzeuge sind zwei Garagen sowie genügend Stellplätze vorhanden, sodass Sie und Ihre Gäste stets ausreichend Platz finden. Ein Waldgrundstück hinter dem Haus bietet nicht nur Auslauf, sondern auch Ruheplätze und -oasen am eigenen Grundstück.

Die Verkehrsanbindung ist ideal, mit einer Bushaltestelle in der Nähe, die Sie auch öffentlich schnell und bequem in die umliegenden Städte bringt.

Ein weiterer Pluspunkt ist die Nähe zu Schulen, die Ihnen und Ihren Kindern eine unkomplizierte Anbindung an Bildungseinrichtungen ermöglicht.

Diese Immobilie in Oberaichwald ist nicht nur ein Ort zum Wohnen, sondern ein Lebensraum, der Ihnen und Ihrer Familie unvergessliche Momente schenken wird. Zögern Sie nicht länger und vereinbaren Sie noch heute einen Besichtigungstermin. Erleben Sie selbst, wie dieses neuwertige Haus Ihr neues Zuhause werden kann.

Ihr Traumhaus wartet auf Sie!

Die Region:

Villach besticht nicht nur durch die wunderschöne Natur und daraus resultierend durch das perfekte Freizeitangebot.
Villach bietet auch im wirtschaftlichen Bereich einiges. Sei es das Vorzeigeunternehmen Infineon, seien es andere mittelständische Unternehmen. 
Zum Faaker See sind es nur wenige Minuten mit dem Fahrrad.

Flughäfen:
Klagenfurt: ca. 30 Minuten Autofahrt, Laibach: ca. 1,5 Stunden Autofahrt, Salzburg: ca. 2 Stunden Autofahrt.

Vom Wohnraum zum Lebens(t)raum - einzigartiges Haus in der Nähe zum Faaker See.

Der Vermittler ist als Doppelmakler tätig.


*Der Vertrag kommt nicht mit der INFINA Credit Broker GmbH zustande. Das Objekt wird von einem externen Immobilienunternehmen angeboten. Allfällige aus dem Vertragsabschluss resultierende Rechte sind ausschließlich gegenüber dem anbietenden Immobilienunternehmen geltend zu machen. Wir weisen Sie darauf hin, dass die gemachten Angaben und Informationen lediglich unverbindliche Vorabinformationen sind und daher ohne Gewähr erfolgen. Der Vermittler ist als Doppelmakler tätig.

Energieausweis & Heizung
HWB (kWh/m2/Jahr): 37
HWB Energieklasse B
fGEE: 0.52
fGEE Energieklasse B
Gültig bis: 30.10.2033
Heizung: Fußbodenheizung, Zentralheizung
Befeuerung: Luftwärmepumpe
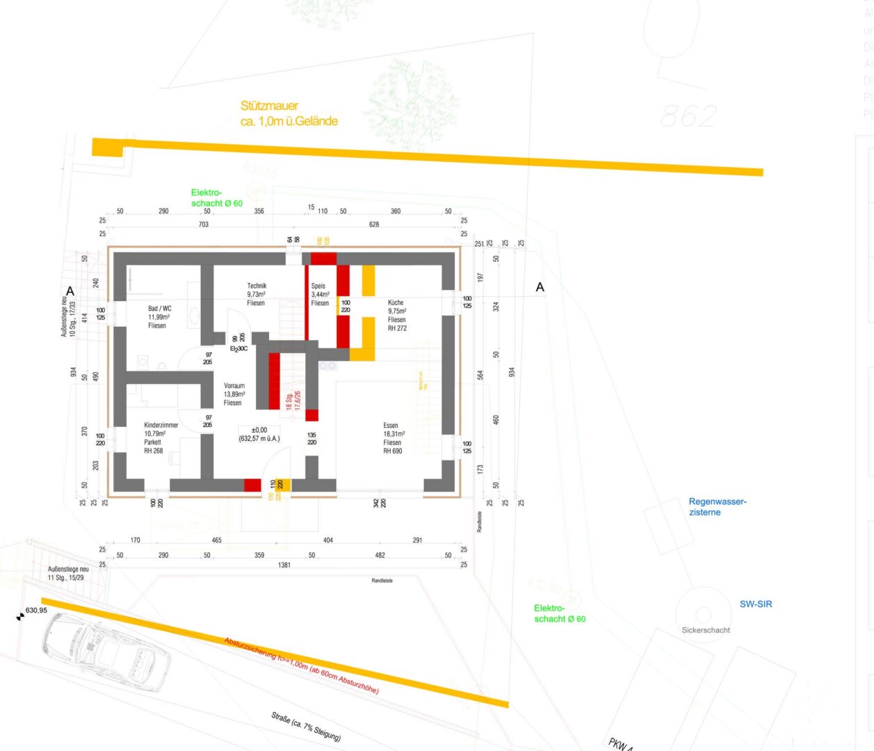
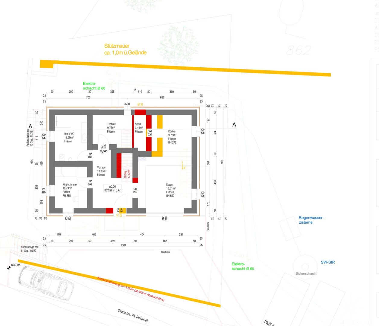
Dokumente & Videos Pläne Pläne Pläne Pläne Pläne
Partner von Infina lebensraum Immobilienmakler
Verkehr:
Autobahnanschluss: 3910 m
Bahnhof: 1090 m
Bus: 480 m
Nahversorgung:
Supermarkt: 1520 m
Bäckerei: 1710 m
Einkaufszentrum: 6800 m
Sonstige:
Post: 1390 m
Geldautomat: 1410 m
Polizei: 1390 m
Bank: 1420 m
Gesundheit:
Klinik: 7780 m
Apotheke: 1220 m
Arzt: 1130 m
Krankenhaus: 7820 m
Kinder & Schulen:
Schule: 690 m
Universität: 6100 m
Kindergarten: 4450 m

Jetzt Experten kontaktieren

Weitere interessante Objekte

Velden am Wörther See
Partner von Infina
Jetzt anfragen
1.199.000 €
Partner von Infina
Jetzt anfragen
ca. 600,00 m² Nutzfläche 15 Zimmer
195.000 €
Velden am Wörther See
Partner von Infina
Jetzt anfragen
1.450.000 €
Partner von Infina
Jetzt anfragen
ca. 130,00 m² Wohnfläche 4 Zimmer
Auf Anfrage
Partner von Infina
Jetzt anfragen
419.000 €
Velden am Wörther See
Partner von Infina
Jetzt anfragen
ca. 132,92 m² Wohnfläche 5 Zimmer
698.000 €

Immobilie kaufen: Das passende Angebot finden

Der Kauf einer Immobilie ist eine wichtige Entscheidung – sei es für die Eigennutzung oder zur Vermietung. Mit unserem Portal unterstützen wir Sie dabei, die richtige Immobilie zu kaufen. Nutzen Sie unsere Suchmöglichkeiten, um gezielt eine Immobilie zu suchen, die Ihren Vorstellungen entspricht. Unsere Immobilienangebote decken eine breite Palette ab: vom Einfamilienhaus über die Eigentumswohnung bis hin zum Grundstück für Ihr Bauvorhaben. Mit uns können Sie sicher und unkompliziert Eigentum erwerben – ob für die private Nutzung oder als Investition als Immobilie. Erkunden Sie jetzt unsere Angebote und finden Sie die perfekte Lösung, die zu Ihren Wohn- oder Anlagezielen passt.

Fundiertes Wissen für Ihre Entscheidung, eine Immobilie zu kaufen

Bereiten Sie sich bestens vor: Infina stellt Ihnen kostenlos über 300 Ratgeber und Beiträge zu den Themen Immobilie, Finanzierung, Zinsen und Recht zur Verfügung. Nutzen Sie unser umfassendes Wissen, um richtige Entscheidungen zu treffen.

Bei jedem Kauf einer Immobilie oder eines Grundstücks ist es wichtig, die passende Finanzierung zu finden. Mit seiner eigenen Vertriebsorganisation ist Infina als Wohnbau-Finanz-Experte an über 100 Standorten in ganz Österreich vertreten und vermittelt Finanzierungen an über 150 Banken und Bausparkassen. Nutzen Sie unseren kostenlosen Kreditvergleich für den passenden Wohnkredit: 

Kreditvergleich

Kostenlos und unverbindlich

Immobilie mieten: Ihr neues Zuhause wartet

Die Entscheidung, eine Immobilie zu mieten, bietet Flexibilität und zahlreiche Möglichkeiten – ob eine Wohnung für den Alltag oder ein Haus für die Familie. Bei Infina können Sie gezielt sowohl eine Wohnung suchen als auch ein Haus suchen, das Ihren Bedürfnissen entspricht. Unsere Angebote erleichtern es Ihnen, eine Mietwohnung zu suchen und Ihre ideale Wohnung finden zu können. Entdecken Sie vielfältige Optionen, um die passende Immobilie zu finden und Ihre Wohnträume zu verwirklichen. Starten Sie noch heute Ihre Suche und profitieren Sie von einer großen Auswahl an Mietobjekten in Ihrer Wunschregion.

Hilfreiche Informationen zu Immobilie mieten

Starten Sie gut vorbereitet in Ihre Mietentscheidung: Infina stellt Ihnen vielseitige Ratgeber und Beiträge zu Themen wie Immobilie, Mietrecht, Finanzierung und Wohntrends zur Verfügung. Verschaffen Sie sich einen Überblick über alle relevanten Aspekte und gestalten Sie Ihren Weg ins neue Zuhause einfacher und sicherer.

Erfolgreich zur neuen Immobilie

Mit Infina haben Sie einen verlässlichen Partner an Ihrer Seite, der Sie von der ersten Beratung bis zum erfolgreichen Abschluss ganzheitlich unterstützt. Erfahren Sie hier, wie wir gemeinsam Ihren Immobilienerfolg gestalten.

Starten Sie jetzt Ihre Immobiliensuche

Nach zahlreichen Informationen rund um die Themen Immobilie kaufen und Immobilie mieten können Sie nun den nächsten Schritt machen. Starten Sie die Immobiliensuche, um Ihr neues Zuhause oder Ihre nächste Investition zu finden und entdecken Sie die passenden Angebote:

Das innovative Portal für Immobilien und Finanzierung 

Als Kunde von Infina profitieren Sie von unserer umfangreichen und unabhängigen Expertise als Teil einer wachsenden, unabhängigen Immobilien- und Finanzierungsnetzwerkgruppe. Bereits 50.000 Kunden hat Infina erfolgreich bei Ihrem Vorhaben begleitet. Infina bietet Ihnen eine umfassende Beratung in allen Bereichen rund um Ihre Immobilienvorhaben:

Die passende Finanzierung für Ihre Immobilie

Mit Infina erhalten Sie nicht nur eine unabhängige Beratung, sondern auch die passende Finanzierungslösung für Ihre Immobilie. Aus den Angeboten von über 150 Banken und Bausparkassen vermitteln wir Ihnen das, was perfekt zu Ihren Bedürfnissen passt. Wir begleiten Sie professionell und verlässlich – von der ersten Beratung bis zum erfolgreichen Abschluss.

Kreditvergleich

Kostenlos und unverbindlich

Wir holen das Beste für Sie heraus

Verkaufen Sie Ihre Immobilie mit uns & profitieren Sie von unserer Expertise. Wir bringen Ihre Immobilie optimal auf den Markt & erzielen den besten Preis. 

Kontaktieren Sie uns jetzt.

Jetzt Experten kontaktieren
Junge Frau im pinken Blazer hält ein Modellhaus in der linken Hand und zeigt mit der rechten Hand nach oben, als hätte sie eine Idee. Sie lächelt und blickt leicht nach oben – symbolisch für Inspiration oder Immobilienberatung.