INFINA LOGO
Entspannt zur Immobilie Persönlich & kompetent beraten Finanzierbarkeit sofort überprüfbar
3.200.000 €
Kostenlos &
unverbindlich.
Kontakt aufnehmen

Grundstück in Toplage mit Baugenehmigung für 2 Luxusvillen

Obj. Nr.: 162972

ca. 548,58 m² Wohnfläche 13 Zimmer
Partner von Infina KITZIMMO - Real Estate Immobilienmakler 
Partner von Infina KITZIMMO - Real Estate Immobilienmakler
3.200.000 € Kaufpreis der Immobilie Kreditvergleich von über 150 Banken mit Infina.
Immobilie finanzieren
Mehr Informationen zur Immobilie: Detaillierte Einblicke in dieses Objekt.
Zurück zur Übersicht

Objektstandort

6352 Ellmau, Kufstein, Tirol Adresse anfragen

Directions Icon Fahrtzeit berechnen
Preisinformationen
Kaufpreis 3.200.000 €
2 Stellplatz Freiplatz: Kaufpreis € 0,00 6 Stellplatz Tiefgarage: Kaufpreis € 0,00
Grundbucheintragung: 1.1 %
Grunderwerbsteuer: 3.5 %
Was kann ich mir leisten?
Jetzt berechnen
Maklerprovision:
3,00 % des Kaufpreises zzgl. 20 % USt.

Objektinformationen

Objektart: Haus
Unterobjektart: Villa
Nutzungsart: Wohnen
Zustand: Erstbezug

Rauminformationen & Flächen

Grundstücksfläche: ca. 861,00 m²
Wohnfläche: ca. 548,58 m²
Gesamtfläche: ca. 805,35 m²
Gartenfläche: ca. 238,63 m²
Anzahl Stellplätze: 8
Anzahl Zimmer: 13

Ausstattung

Boden: Steinboden, Fliesen, Dielen
Befeuerung: Luftwärmepumpe
Heizungsart: Kamin, Fußbodenheizung
Küche: Einbauküche
Fahrstuhl: Personenaufzug
Balkon: Ostbalkon / -terrasse, Südbalkon / -terrasse, Nordbalkon / -terrasse, Westbalkon / -terrasse
Bad: Dusche, Badewanne, Bad mit Fenster
Fernsehen: Kabel / Satelliten-TV
Extras: Sauna, Wasch- / Trockenraum, Sporteinrichtungen, Wellnessbereich, Alarmanlage, Sicherheitskamera
Räume: Räume veränderbar
WCs: Gäste-WC

Beschreibung *

Zum Verkauf steht ein Baugrundstück mit Altbestand in leicht erhöhter Lage mit traumhaftem Ausblick auf den Wilden Kaiser in Ellmau.

Es liegt bereits eine rechtskräftige Baugenehmigung für zwei Luxusvillen und ein Abbruchbescheid für den Altbestand vor.

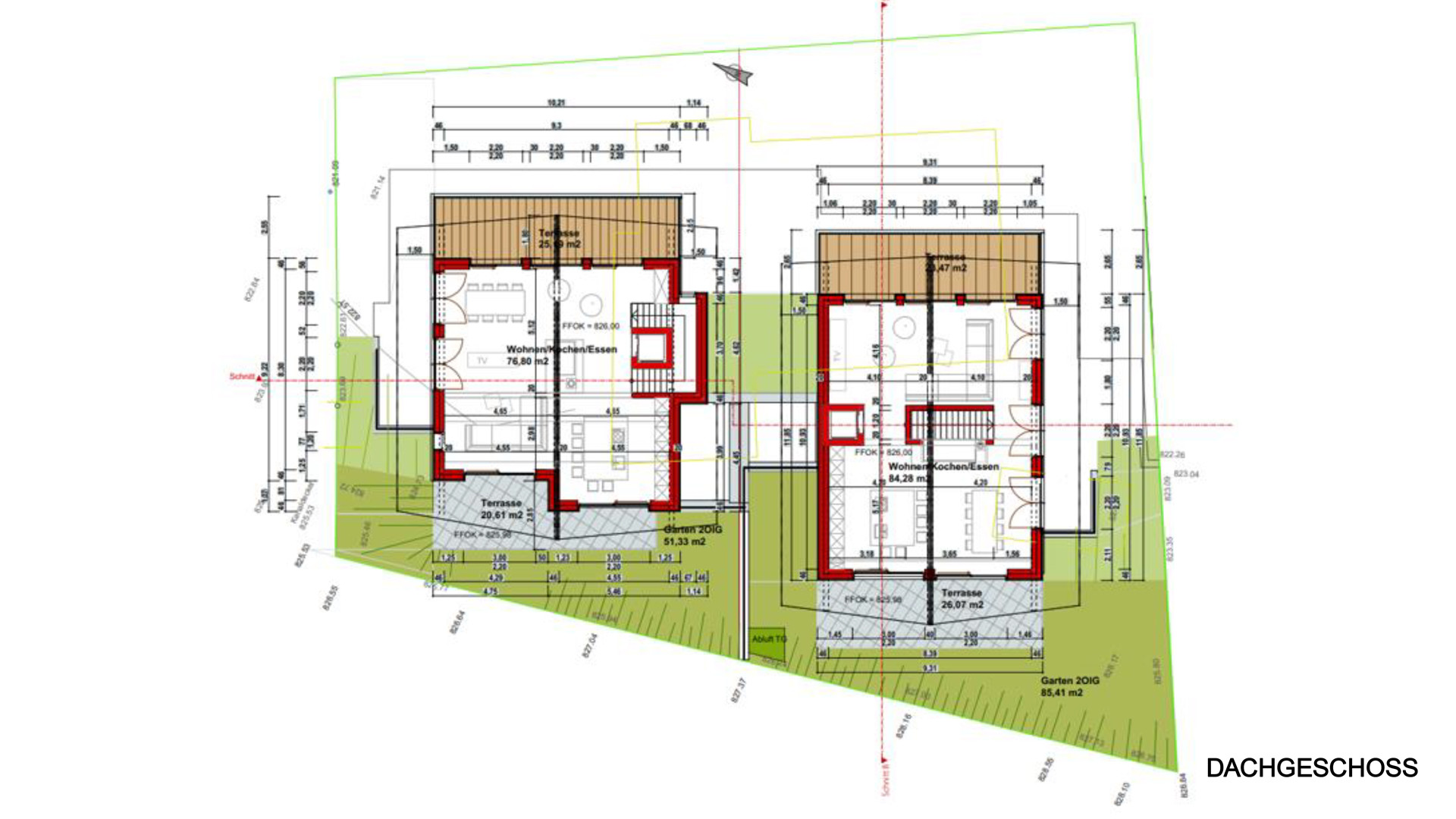
Villa 1 bietet auf 3 Etagen, verbunden über einen Lift, eine Wohn-/Nutzfläche von 314,87 m².
Drei Schlafzimmer, drei Bäder, ein Büro, einen großen Wellnessbereich mit Sauna sowie einen ca. 85 m² großen Wohn-Essbereich im Dachgeschoss.

Villa 2 bietet auf 3 Etagen, verbunden über einen Lift eine Wohn-/Nutzfläche von 311,41 m².
Drei Schlafzimmer, drei Bäder, einen großen Wellnessbereich mit Sauna sowie einen ca. 85 m² großen Wohn-Essbereich im Dachgeschoss.

Beide Villen verfügen über mehrere großzügige Terrassen und Balkone sowie Gartenflächen. Aufgrund der Hanglage hat man selbst in der unteren Etage Tageslicht und einen schönen Ausblick sowie im Dachgeschoss nach hinten einen Garten und nach vorne eine große Terrasse.

Beiden Villen stehen in der 179,07 m² großen Garage jeweils 3 Parkplätze zur Verfügung sowie ein Außenstellplatz pro Haus.
Mehrere Keller und Lagerräume sind ebenfalls vorhanden.

Verkauft wird das Baugrundstück mit Altbestand inklusive Baugenehmigung für den Neubau.
Dem neuen Eigentümer steht es frei, die Raumaufteilung bei Bedarf noch abzuändern.
Folgendes ist ebenfalls bereits erledigt:
• Oberflächenwasserprojekt
• Bodengutachten / Baugrubensicherung
• Baustelleneinrichtungsplan
• Nachbarvereinbarung wegen Hangsicherung / Hangverbau.

Der Erwerb wäre über einen Sharedeal als auch über einen Assetdeal möglich. Der Kaufpreis bei einem Sharedeal beläuft sich auf € 3,2 Mio. und bei einem Assetdeal auf € 3,6 Mio.

Der Skilift befindet sich nur ca. 400 Meter entfernt.
Das Ortszentrum sowie der Golfplatz von Ellmau ist bequem in ca. 10 bis 15 Fußminuten erreichbar.
Zahlreiche Wander- und Radwege beginnen ebenfalls in unmittelbarer Nähe.

Alles in allem ein sehr interessantes Projekt, sowohl für einen Bauträger als auch für eine Privatperson oder für einen Investor.

*Der Vertrag kommt nicht mit der INFINA Credit Broker GmbH zustande. Das Objekt wird von einem externen Immobilienunternehmen angeboten. Allfällige aus dem Vertragsabschluss resultierende Rechte sind ausschließlich gegenüber dem anbietenden Immobilienunternehmen geltend zu machen. Wir weisen Sie darauf hin, dass die gemachten Angaben und Informationen lediglich unverbindliche Vorabinformationen sind und daher ohne Gewähr erfolgen. Der Vermittler ist als Doppelmakler tätig.

Heizung: Kamin, Fußbodenheizung
Befeuerung: Luftwärmepumpe
Dokumente & Videos Pläne Pläne Pläne
Partner von Infina KITZIMMO - Real Estate Immobilienmakler
Sonstige:
Bank: 1020 m
Geldautomat: 7140 m
Post: 1110 m
Polizei: 4940 m
Verkehr:
Bahnhof: 6940 m
Bus: 290 m
Nahversorgung:
Bäckerei: 1030 m
Supermarkt: 730 m
Gesundheit:
Apotheke: 1210 m
Arzt: 250 m
Kinder & Schulen:
Schule: 840 m
Kindergarten: 750 m

Jetzt Experten kontaktieren

Immobilie kaufen: Das passende Angebot finden

Der Kauf einer Immobilie ist eine wichtige Entscheidung – sei es für die Eigennutzung oder zur Vermietung. Mit unserem Portal unterstützen wir Sie dabei, die richtige Immobilie zu kaufen. Nutzen Sie unsere Suchmöglichkeiten, um gezielt eine Immobilie zu suchen, die Ihren Vorstellungen entspricht. Unsere Immobilienangebote decken eine breite Palette ab: vom Einfamilienhaus über die Eigentumswohnung bis hin zum Grundstück für Ihr Bauvorhaben. Mit uns können Sie sicher und unkompliziert Eigentum erwerben – ob für die private Nutzung oder als Investition als Immobilie. Erkunden Sie jetzt unsere Angebote und finden Sie die perfekte Lösung, die zu Ihren Wohn- oder Anlagezielen passt.

Fundiertes Wissen für Ihre Entscheidung, eine Immobilie zu kaufen

Bereiten Sie sich bestens vor: Infina stellt Ihnen kostenlos über 300 Ratgeber und Beiträge zu den Themen Immobilie, Finanzierung, Zinsen und Recht zur Verfügung. Nutzen Sie unser umfassendes Wissen, um richtige Entscheidungen zu treffen.

Bei jedem Kauf einer Immobilie oder eines Grundstücks ist es wichtig, die passende Finanzierung zu finden. Mit seiner eigenen Vertriebsorganisation ist Infina als Wohnbau-Finanz-Experte an über 100 Standorten in ganz Österreich vertreten und vermittelt Finanzierungen an über 150 Banken und Bausparkassen. Nutzen Sie unseren kostenlosen Kreditvergleich für den passenden Wohnkredit: 

Kreditvergleich

Kostenlos und unverbindlich

Immobilie mieten: Ihr neues Zuhause wartet

Die Entscheidung, eine Immobilie zu mieten, bietet Flexibilität und zahlreiche Möglichkeiten – ob eine Wohnung für den Alltag oder ein Haus für die Familie. Bei Infina können Sie gezielt sowohl eine Wohnung suchen als auch ein Haus suchen, das Ihren Bedürfnissen entspricht. Unsere Angebote erleichtern es Ihnen, eine Mietwohnung zu suchen und Ihre ideale Wohnung finden zu können. Entdecken Sie vielfältige Optionen, um die passende Immobilie zu finden und Ihre Wohnträume zu verwirklichen. Starten Sie noch heute Ihre Suche und profitieren Sie von einer großen Auswahl an Mietobjekten in Ihrer Wunschregion.

Hilfreiche Informationen zu Immobilie mieten

Starten Sie gut vorbereitet in Ihre Mietentscheidung: Infina stellt Ihnen vielseitige Ratgeber und Beiträge zu Themen wie Immobilie, Mietrecht, Finanzierung und Wohntrends zur Verfügung. Verschaffen Sie sich einen Überblick über alle relevanten Aspekte und gestalten Sie Ihren Weg ins neue Zuhause einfacher und sicherer.

Erfolgreich zur neuen Immobilie

Mit Infina haben Sie einen verlässlichen Partner an Ihrer Seite, der Sie von der ersten Beratung bis zum erfolgreichen Abschluss ganzheitlich unterstützt. Erfahren Sie hier, wie wir gemeinsam Ihren Immobilienerfolg gestalten.

Starten Sie jetzt Ihre Immobiliensuche

Nach zahlreichen Informationen rund um die Themen Immobilie kaufen und Immobilie mieten können Sie nun den nächsten Schritt machen. Starten Sie die Immobiliensuche, um Ihr neues Zuhause oder Ihre nächste Investition zu finden und entdecken Sie die passenden Angebote:

Das innovative Portal für Immobilien und Finanzierung 

Als Kunde von Infina profitieren Sie von unserer umfangreichen und unabhängigen Expertise als Teil einer wachsenden, unabhängigen Immobilien- und Finanzierungsnetzwerkgruppe. Bereits 50.000 Kunden hat Infina erfolgreich bei Ihrem Vorhaben begleitet. Infina bietet Ihnen eine umfassende Beratung in allen Bereichen rund um Ihre Immobilienvorhaben:

Die passende Finanzierung für Ihre Immobilie

Mit Infina erhalten Sie nicht nur eine unabhängige Beratung, sondern auch die passende Finanzierungslösung für Ihre Immobilie. Aus den Angeboten von über 150 Banken und Bausparkassen vermitteln wir Ihnen das, was perfekt zu Ihren Bedürfnissen passt. Wir begleiten Sie professionell und verlässlich – von der ersten Beratung bis zum erfolgreichen Abschluss.

Kreditvergleich

Kostenlos und unverbindlich

Wir holen das Beste für Sie heraus

Verkaufen Sie Ihre Immobilie mit uns & profitieren Sie von unserer Expertise. Wir bringen Ihre Immobilie optimal auf den Markt & erzielen den besten Preis. 

Kontaktieren Sie uns jetzt.

Jetzt Experten kontaktieren
Junge Frau im pinken Blazer hält ein Modellhaus in der linken Hand und zeigt mit der rechten Hand nach oben, als hätte sie eine Idee. Sie lächelt und blickt leicht nach oben – symbolisch für Inspiration oder Immobilienberatung.