INFINA LOGO
Entspannt zur Immobilie Persönlich & kompetent beraten Finanzierbarkeit sofort überprüfbar
570.000 €
Kostenlos &
unverbindlich.
Kontakt aufnehmen

Qualitäts - Doppelhaushälfte in Ziegelmassibauweise Haus 2 Top 2

Obj. Nr.: 161698

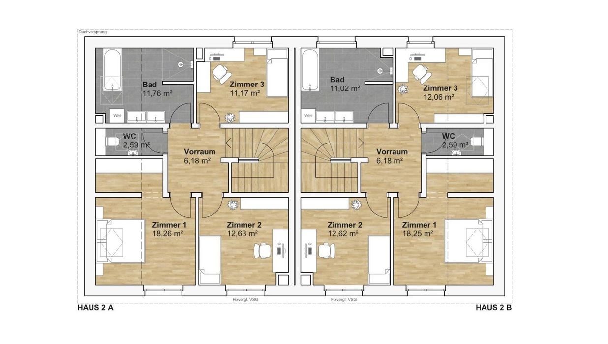
ca. 132,00 m² Wohnfläche 5 Zimmer
Partner von Infina SPL Hausbau Immobilienmakler 
Partner von Infina SPL Hausbau Immobilienmakler
570.000 € Kaufpreis der Immobilie Kreditvergleich von über 150 Banken mit Infina.
Immobilie finanzieren
Mehr Informationen zur Immobilie: Detaillierte Einblicke in dieses Objekt.
Zurück zur Übersicht

Objektstandort

2531 Gaaden, , Niederösterreich Adresse anfragen

Directions Icon Fahrtzeit berechnen
Preisinformationen
Kaufpreis 570.000 €
2 Stellplatz Freiplatz
Grundbucheintragung: 1.1 %
Grunderwerbsteuer: 3.5 %
Was kann ich mir leisten?
Jetzt berechnen
Maklerprovision:
3,00 % des Kaufpreises zzgl. 20 % USt.

Objektinformationen

Objektart: Haus
Unterobjektart: Doppelhaushälfte
Nutzungsart: Wohnen
Zustand: Erstbezug
Baujahr: 2023

Rauminformationen & Flächen

Grundstücksfläche: ca. 240,00 m²
Wohnfläche: ca. 132,00 m²
Anzahl Stellplätze: 2
Anzahl Zimmer: 5
Anzahl WC: 2
Anzahl Bäder: 1

Ausstattung

Heizungsart: Fußbodenheizung
Stellplatzart: Parkplatz
Extras: Gartennutzung
Energietyp: Niedrigenergiehaus
Räume: Räume veränderbar
Bauweise: Massiv

Beschreibung *

MODERNES DOPPELHAUS ZUM WOHLFÜHLEN Ein neues Zuhause in massiver Ziegelbauweise in Gaaden bei Mödling Mitten im Ortszentrum von Gaaden wurden diese exklusiven Doppelhäuser für Familien und Erholungssuchende errichtet. Ein durchdachtes Wohnraumkonzept mit fünf Zimmern, Terrasse und Garten, sowie Parkplatz mit zwei Stellplätzen. Die ansprechende Architektur mit klaren Linien und einem modern interpretierten Satteldach liegt voll im Trend und wird den Annehmlichkeiten für anspruchsvolles Wohnen gerecht. Erfüllen Sie sich ihren neuen Wohn(t)raum mit einem SPL-Haus. Gebaut für Ihre Zukunft. DAS WICHTIGSTE IM ÜBERBLICK Lebensraum: ca. 132 m² Wohnfläche, 5 Zimmer + Nebenräume, Grundanteil ca. 240 m² Bauweise: hochwertige Ziegelmassivbauweise Ausführung: belagsfertig plus Kaufpreis: € 570.000,00 2 Parkplätze für: € 15.000,00 Kaufnebenkosten: 3,5 % Grunderwerbsteuer, 1,1 % Grundbucheintragungsgebühr, 1 % Vertragserrichtungskosten zzgl. Ust. und Barauslagen Energiekennzahl: HWB 29, fGEE 0,60 Niedrigenergiehaus Fertigstellung/Übergabe: ab sofort verfügbar BAUWEISE: ZIEGEL Der beste Baustoff für Ihr neues Zuhause Das SPL-Haus ist in beständiger Ziegelmassivbauweise errichtet und weist eine optimale Energieeffizienz auf. Es wurde in der Ausbaustufe BELAGSFERTIG PLUS ausgeführt, was die Fertigstellung der Immobilie nach außen hin bedeutet. Im Innenbereich ist der Estrich verlegt, die Wandflächen sind verputzt, die Elektro- und Sanitärrohinstallationen sind ausgeführt, sowie die Heizanlage montiert und in Betrieb genommen. Unsere Ausbaustufe BELAGSFERTIG PLUS steht für eine überdurchschnittlich hochwertige Grundausstattung. Beste Materialien und Geräte von namhaften Herstellern unterstreichen die Qualität unserer Häuser. JETZT BESICHTIGEN Sie überlegen eine Immobilie zu kaufen oder kennen jemanden, dem unser Hausmodell gefallen könnte? Allein der Gedanke an ein neues Zuhause reicht aus, um einen unverbindlichen Besichtigungstermin wahrzunehmen. Gerne laden wir zu einem Rundgang von Haus zu Haus ein und informieren Sie über die Details und Möglichkeiten. WÜNSCHEN SIE OBJEKTDATEN ODER EINEN BESICHTIGUNGSTERMIN? Wir freuen uns auf jede Kontaktaufnahme SPL-Hausbau Beratung & Verkauf T +43 699 131 222 18 M office@spl-hausbau.at Angaben gemäß gesetzlichem Erfordernis: Heizwärmebedarf: 29.0 kWh/(m²a) Faktor Gesamtenergieeffizienz: 0.6

*Der Vertrag kommt nicht mit der INFINA Credit Broker GmbH zustande. Das Objekt wird von einem externen Immobilienunternehmen angeboten. Allfällige aus dem Vertragsabschluss resultierende Rechte sind ausschließlich gegenüber dem anbietenden Immobilienunternehmen geltend zu machen. Wir weisen Sie darauf hin, dass die gemachten Angaben und Informationen lediglich unverbindliche Vorabinformationen sind und daher ohne Gewähr erfolgen. Der Vermittler ist als Doppelmakler tätig.

Energieausweis & Heizung
HWB (kWh/m2/Jahr): 29
fGEE: 0.6
Heizung: Fußbodenheizung
Partner von Infina SPL Hausbau Immobilienmakler

Jetzt Experten kontaktieren

Immobilie kaufen: Das passende Angebot finden

Der Kauf einer Immobilie ist eine wichtige Entscheidung – sei es für die Eigennutzung oder zur Vermietung. Mit unserem Portal unterstützen wir Sie dabei, die richtige Immobilie zu kaufen. Nutzen Sie unsere Suchmöglichkeiten, um gezielt eine Immobilie zu suchen, die Ihren Vorstellungen entspricht. Unsere Immobilienangebote decken eine breite Palette ab: vom Einfamilienhaus über die Eigentumswohnung bis hin zum Grundstück für Ihr Bauvorhaben. Mit uns können Sie sicher und unkompliziert Eigentum erwerben – ob für die private Nutzung oder als Investition als Immobilie. Erkunden Sie jetzt unsere Angebote und finden Sie die perfekte Lösung, die zu Ihren Wohn- oder Anlagezielen passt.

Fundiertes Wissen für Ihre Entscheidung, eine Immobilie zu kaufen

Bereiten Sie sich bestens vor: Infina stellt Ihnen kostenlos über 300 Ratgeber und Beiträge zu den Themen Immobilie, Finanzierung, Zinsen und Recht zur Verfügung. Nutzen Sie unser umfassendes Wissen, um richtige Entscheidungen zu treffen.

Bei jedem Kauf einer Immobilie oder eines Grundstücks ist es wichtig, die passende Finanzierung zu finden. Mit seiner eigenen Vertriebsorganisation ist Infina als Wohnbau-Finanz-Experte an über 100 Standorten in ganz Österreich vertreten und vermittelt Finanzierungen an über 150 Banken und Bausparkassen. Nutzen Sie unseren kostenlosen Kreditvergleich für den passenden Wohnkredit: 

Kreditvergleich

Kostenlos und unverbindlich

Immobilie mieten: Ihr neues Zuhause wartet

Die Entscheidung, eine Immobilie zu mieten, bietet Flexibilität und zahlreiche Möglichkeiten – ob eine Wohnung für den Alltag oder ein Haus für die Familie. Bei Infina können Sie gezielt sowohl eine Wohnung suchen als auch ein Haus suchen, das Ihren Bedürfnissen entspricht. Unsere Angebote erleichtern es Ihnen, eine Mietwohnung zu suchen und Ihre ideale Wohnung finden zu können. Entdecken Sie vielfältige Optionen, um die passende Immobilie zu finden und Ihre Wohnträume zu verwirklichen. Starten Sie noch heute Ihre Suche und profitieren Sie von einer großen Auswahl an Mietobjekten in Ihrer Wunschregion.

Hilfreiche Informationen zu Immobilie mieten

Starten Sie gut vorbereitet in Ihre Mietentscheidung: Infina stellt Ihnen vielseitige Ratgeber und Beiträge zu Themen wie Immobilie, Mietrecht, Finanzierung und Wohntrends zur Verfügung. Verschaffen Sie sich einen Überblick über alle relevanten Aspekte und gestalten Sie Ihren Weg ins neue Zuhause einfacher und sicherer.

Erfolgreich zur neuen Immobilie

Mit Infina haben Sie einen verlässlichen Partner an Ihrer Seite, der Sie von der ersten Beratung bis zum erfolgreichen Abschluss ganzheitlich unterstützt. Erfahren Sie hier, wie wir gemeinsam Ihren Immobilienerfolg gestalten.

Starten Sie jetzt Ihre Immobiliensuche

Nach zahlreichen Informationen rund um die Themen Immobilie kaufen und Immobilie mieten können Sie nun den nächsten Schritt machen. Starten Sie die Immobiliensuche, um Ihr neues Zuhause oder Ihre nächste Investition zu finden und entdecken Sie die passenden Angebote:

Das innovative Portal für Immobilien und Finanzierung 

Als Kunde von Infina profitieren Sie von unserer umfangreichen und unabhängigen Expertise als Teil einer wachsenden, unabhängigen Immobilien- und Finanzierungsnetzwerkgruppe. Bereits 50.000 Kunden hat Infina erfolgreich bei Ihrem Vorhaben begleitet. Infina bietet Ihnen eine umfassende Beratung in allen Bereichen rund um Ihre Immobilienvorhaben:

Die passende Finanzierung für Ihre Immobilie

Mit Infina erhalten Sie nicht nur eine unabhängige Beratung, sondern auch die passende Finanzierungslösung für Ihre Immobilie. Aus den Angeboten von über 150 Banken und Bausparkassen vermitteln wir Ihnen das, was perfekt zu Ihren Bedürfnissen passt. Wir begleiten Sie professionell und verlässlich – von der ersten Beratung bis zum erfolgreichen Abschluss.

Kreditvergleich

Kostenlos und unverbindlich

Wir holen das Beste für Sie heraus

Verkaufen Sie Ihre Immobilie mit uns & profitieren Sie von unserer Expertise. Wir bringen Ihre Immobilie optimal auf den Markt & erzielen den besten Preis. 

Kontaktieren Sie uns jetzt.

Jetzt Experten kontaktieren
Junge Frau im pinken Blazer hält ein Modellhaus in der linken Hand und zeigt mit der rechten Hand nach oben, als hätte sie eine Idee. Sie lächelt und blickt leicht nach oben – symbolisch für Inspiration oder Immobilienberatung.