INFINA LOGO
Entspannt zur Immobilie Persönlich & kompetent beraten Finanzierbarkeit sofort überprüfbar
550.000 € 1.270 €/m²
Kostenlos &
unverbindlich.
Kontakt aufnehmen
+ 2 Bilder

Bauträger und Baufirmen aufgepasst! 3 Einfamilienhäusern mit Studie - Terrassen, Gärten, Balkonen und Carport für 2 Autos!

Obj. Nr.: 51772

ca. 736,00 m² Grundstücksfläche Kauf
Partner von Infina Alexander Ringsmuth Immobilien Immobilienmakler 
Partner von Infina Alexander Ringsmuth Immobilien Immobilienmakler
550.000 € Kaufpreis der Immobilie Kreditvergleich von über 120 Banken mit Infina.
Immobilie finanzieren
Mehr Informationen zur Immobilie: Detaillierte Einblicke in dieses Objekt.
Zurück zur Übersicht

Objektstandort

2331 Vösendorf, Mödling, Niederösterreich Adresse anfragen

Directions Icon Fahrtzeit berechnen
Preisinformationen
Kaufpreis 550.000 €
Grundbucheintragung: 1.1 %
Grunderwerbsteuer: 3.5 %
Was kann ich mir leisten?
Jetzt berechnen
Maklerprovision:
3,00 % des Kaufpreises zzgl. 20 % USt.

Objektinformationen

Objektart: Grundstück
Nutzungsart: Wohnen

Rauminformationen & Flächen

Grundstücksfläche: ca. 736,00 m²
Nutzfläche: ca. 432,95 m²

Ausstattung

Bauweise: Massiv

Lage

Ruhige und familienfreundliche Wohnlage in Vösendorf mit hervorragender Nahversorgung. Kindergärten, Schulen, Spielplätze und Einkaufsmöglichkeiten befinden sich in direkter Umgebung – ideal für Familien, die naturnah und dennoch stadtnah leben möchten.
Attraktive Wohnlage in Vösendorf mit ausgezeichneter Verkehrsanbindung: Die Nähe zur A2, S1 und Badner Bahn ermöglicht eine schnelle Erreichbarkeit von Wien. Gleichzeitig genießen Sie die Ruhe eines Wohngebiets mit hohem Freizeitwert und Nähe zur Shopping City Süd.

Beschreibung *

Zum Verkauf: Baugrundstück in Vösendorf – Ideale Gelegenheit für Investoren und Bauherren!

Wir freuen uns, Ihnen ein exklusives Baugrundstück in Vösendorf präsentieren zu dürfen – perfekt geeignet für zukunftsorientierte Investoren und Bauträger.

Grundstücksdaten im Überblick:

  • Lage: Vösendorf – eine dynamisch wachsende Gemeinde im Nahbereich von Wien.

  • Fläche: Großzügige 736 m².

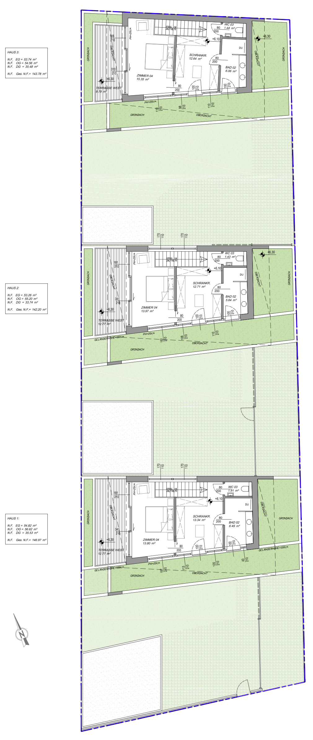
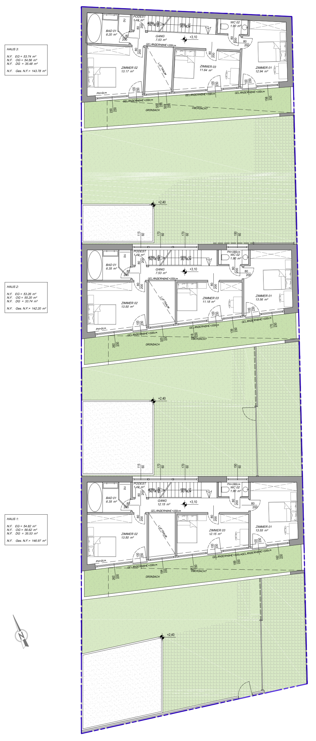
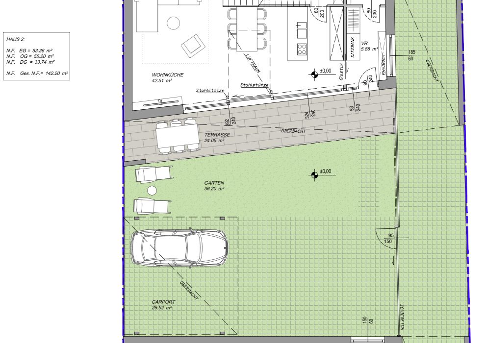
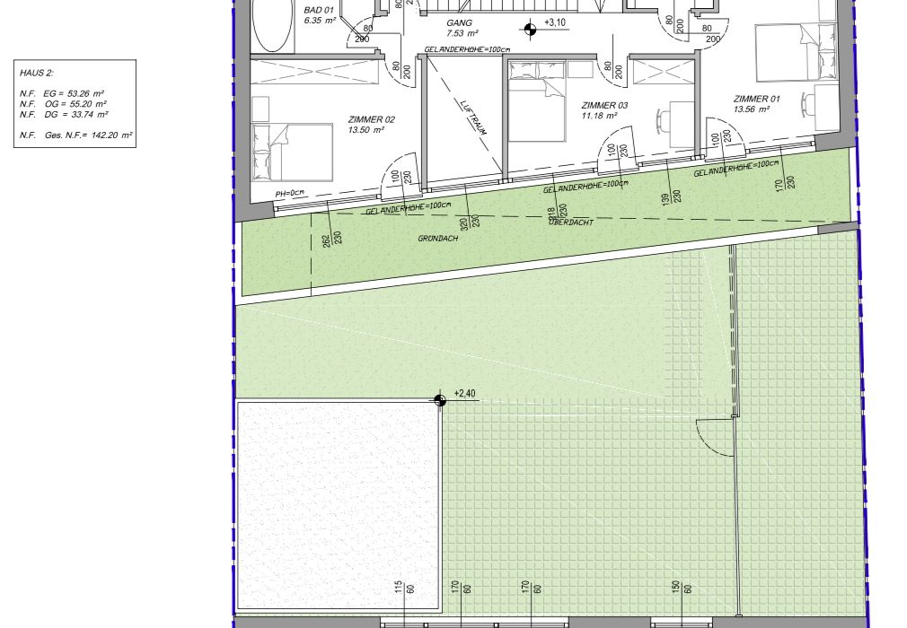
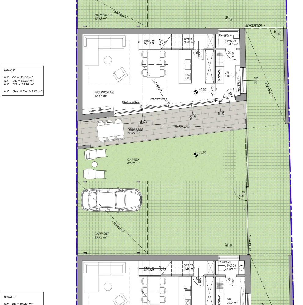
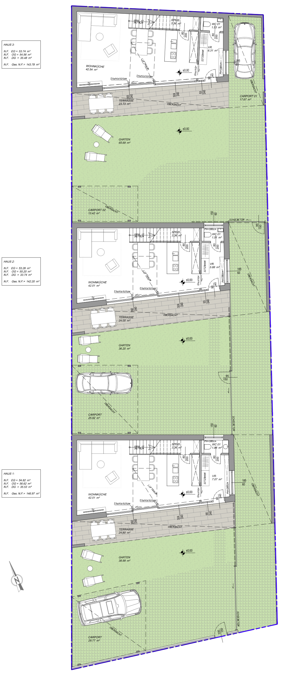
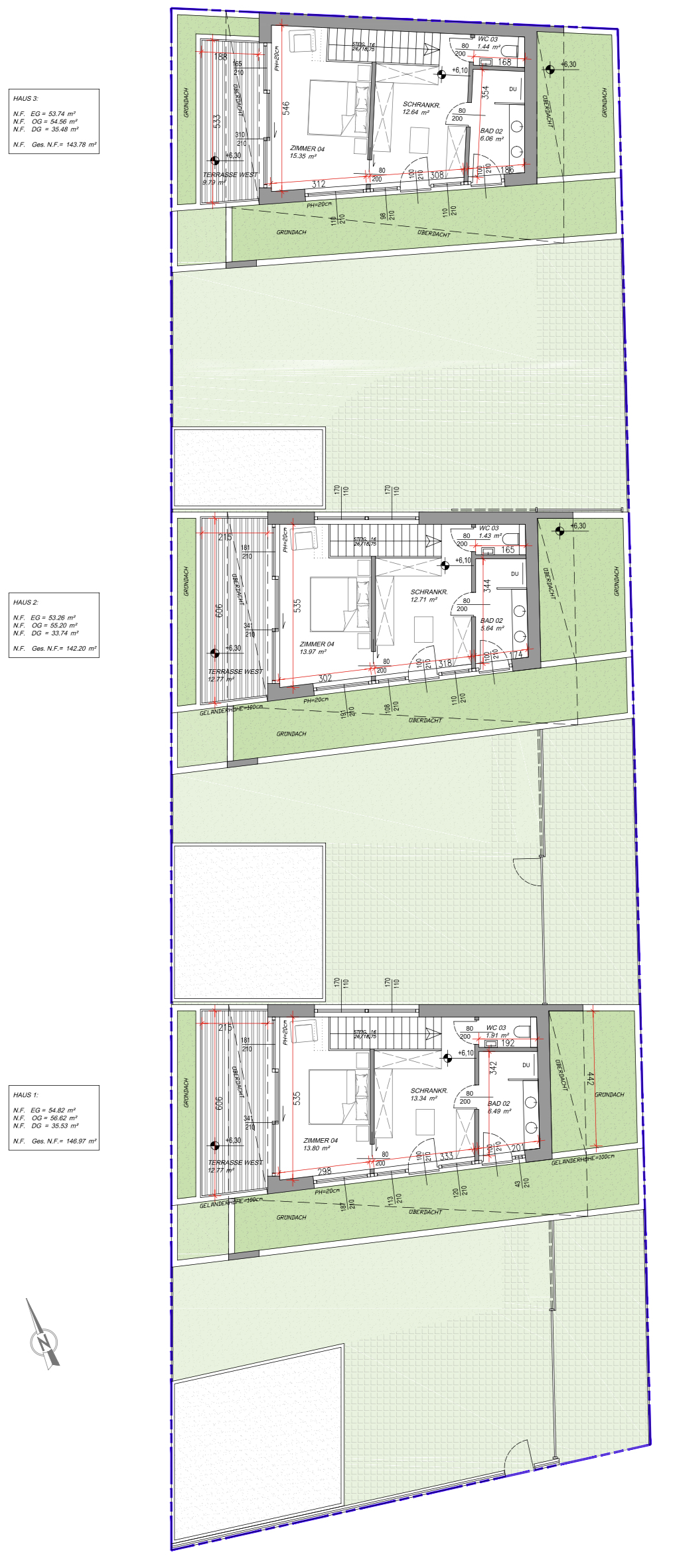
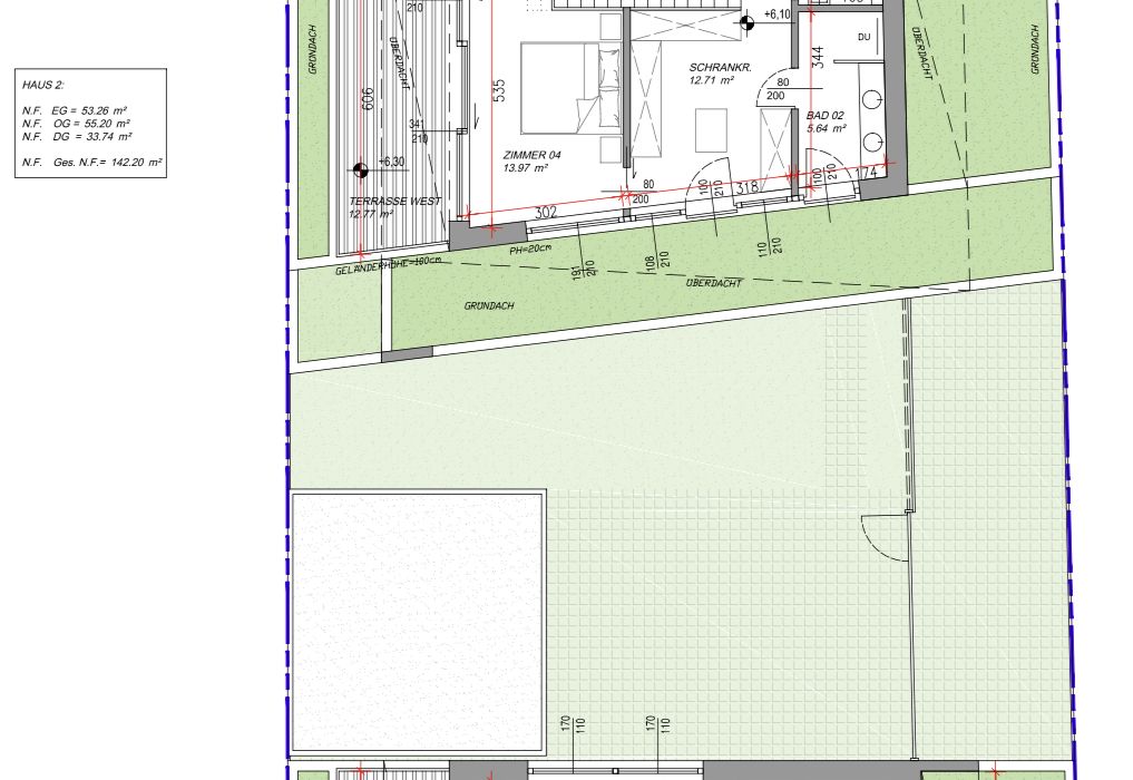
  • Baupotenzial: Ein bereits vorliegender Studie bestätigt die Möglichkeit zur Errichtung von drei Einfamilienhäusern .

Bebauungsbestimmungen:

  • Bebaubare Fläche: 33 % der Gesamtfläche

  • Bauweise: o, g, k (offen, geschlossen, gekuppelt)

  • Bauklasse I: Zulässige Gebäudehöhe bis zu 6 m

Modernes Wohnkonzept:

Das geplante Bauvorhaben sieht ein innovatives Wohnkonzept über drei Ebenen vor – Erdgeschoss, Obergeschoss und Dachgeschoss . Die Häuser bieten großzügige Wohnflächen mit viel Raum für individuelle Gestaltung und entsprechen höchsten Ansprüchen an modernes und komfortables Wohnen.

Investitionsmöglichkeit:

Dieses Grundstück in Vösendorf bietet eine hervorragende Investitionschance in einer sich dynamisch entwickelnden Region nahe Wien. Die günstigen Bebauungsvorgaben und das flexible Nutzungskonzept machen es besonders attraktiv für Investoren und Bauherren, die auf der Suche nach einem rentablen und zukunftssicheren Projekt sind.

Zusammenfassung:

  • Attraktives Baugrundstück mit 736 m² Fläche

  • Genehmigter Einreichplan für 3 Einfamilienhäusern

  • 33 % Bebaubarkeit, Bauweise o, g, k, Bauklasse I (max. 6 m Höhe)

  • Zeitgemäßes Wohnkonzept auf 3 Ebenen

  • Ausgezeichnete Lage in einer aufstrebenden Region Wiens

Kaufpreis:

  • Grundstück mit Altbestand: € 550.000,–

  • Villa 1 (im Vorverkauf): € 920.000,–

  • Villa 2 (im Vorverkauf): € 890.000,–

  • Villa 3 (im Vorverkauf): € 900.000,–

Bei erfolgreichem Geschäftsabschluss fällt eine Provision in Höhe von 3 % zzgl. 20 % USt. des Kaufpreises an.

Für weitere Informationen oder zur Vereinbarung eines Besichtigungstermins steht Ihnen Herr Alexandru Filimon gerne unter 0660 285 0330 zur Verfügung.

www.ringsmuth-immobilien.at
Wir weisen ausdrücklich auf unser wirtschaftliches Naheverhältnis mit dem Abgeber/der Abgeberin und auf unsere Vermittlungstätigkeit als Doppelmakler hin. 
Irrtum und Änderungen vorbehalten!

Hinweis gemäß Energieausweisvorlagegesetz: Ein Energieausweis wurde vom Eigentümer bzw. Verkäufer, nach unserer Aufklärung über die generell geltende Vorlagepflicht, sowie Aufforderung zu seiner Erstellung noch nicht vorgelegt. Daher gilt zumindest eine dem Alter und der Art des Gebäudes entsprechende Gesamtenergieeffizienz als vereinbart. Wir übernehmen keinerlei Gewähr oder Haftung für die tatsächliche Energieeffizienz der angebotenen Immobilie.


Infrastruktur / Entfernungen

Gesundheit
Arzt <3.000m
Apotheke <1.500m
Klinik <4.000m
Krankenhaus <4.500m

Kinder & Schulen
Schule <1.000m
Kindergarten <500m
Universität <5.500m
Höhere Schule <6.500m

Nahversorgung
Supermarkt <500m
Bäckerei <2.500m
Einkaufszentrum <2.500m

Sonstige
Geldautomat <500m
Bank <500m
Post <2.000m
Polizei <2.000m

Verkehr
Bus <500m
U-Bahn <3.500m
Straßenbahn <4.000m
Bahnhof <1.500m
Autobahnanschluss <1.500m

Angaben Entfernung Luftlinie / Quelle: OpenStreetMap


*Der Vertrag kommt nicht mit der INFINA Credit Broker GmbH zustande. Das Objekt wird von einem externen Immobilienunternehmen angeboten. Allfällige aus dem Vertragsabschluss resultierende Rechte sind ausschließlich gegenüber dem anbietenden Immobilienunternehmen geltend zu machen. Wir weisen Sie darauf hin, dass die gemachten Angaben und Informationen lediglich unverbindliche Vorabinformationen sind und daher ohne Gewähr erfolgen. Der Vermittler ist als Doppelmakler tätig.

Dokumente & Videos Pläne Pläne Pläne
Partner von Infina Alexander Ringsmuth Immobilien Immobilienmakler
Nahversorgung:
Bäckerei: 2270 m
Supermarkt: 350 m
Einkaufszentrum: 2160 m
Sonstige:
Post: 1520 m
Geldautomat: 490 m
Bank: 490 m
Polizei: 1590 m
Verkehr:
U-Bahn: 3090 m
Straßenbahn: 4100 m
Autobahnanschluss: 1380 m
Bus: 190 m
Bahnhof: 1030 m
Gesundheit:
Apotheke: 1360 m
Arzt: 1360 m
Klinik: 3750 m
Krankenhaus: 4780 m
Kinder & Schulen:
Höhere Schule: 6370 m
Universität: 5150 m
Kindergarten: 340 m
Schule: 840 m

Jetzt Experten kontaktieren

Weitere interessante Objekte

Wien
Partner von Infina
Jetzt anfragen
ca. 45,71 m² Wohnfläche 2 Zimmer
339.000 €
Wien
Partner von Infina
Jetzt anfragen
ca. 49,49 m² Wohnfläche 2 Zimmer
329.000 €
Wien
Partner von Infina
Jetzt anfragen
ca. 48,40 m² Wohnfläche 2 Zimmer
364.000 €

Immobilie kaufen: Das passende Angebot finden

Der Kauf einer Immobilie ist eine wichtige Entscheidung – sei es für die Eigennutzung oder zur Vermietung. Mit unserem Portal unterstützen wir Sie dabei, die richtige Immobilie zu kaufen. Nutzen Sie unsere Suchmöglichkeiten, um gezielt eine Immobilie zu suchen, die Ihren Vorstellungen entspricht. Unsere Immobilienangebote decken eine breite Palette ab: vom Einfamilienhaus über die Eigentumswohnung bis hin zum Grundstück für Ihr Bauvorhaben. Mit uns können Sie sicher und unkompliziert Eigentum erwerben – ob für die private Nutzung oder als Investition als Immobilie. Erkunden Sie jetzt unsere Angebote und finden Sie die perfekte Lösung, die zu Ihren Wohn- oder Anlagezielen passt.

Fundiertes Wissen für Ihre Entscheidung, eine Immobilie zu kaufen

Bereiten Sie sich bestens vor: Infina stellt Ihnen kostenlos über 300 Ratgeber und Beiträge zu den Themen Immobilie, Finanzierung, Zinsen und Recht zur Verfügung. Nutzen Sie unser umfassendes Wissen, um richtige Entscheidungen zu treffen.

Bei jedem Kauf einer Immobilie oder eines Grundstücks ist es wichtig, die passende Finanzierung zu finden. Mit seiner eigenen Vertriebsorganisation ist Infina als Wohnbau-Finanz-Experte an über 100 Standorten in ganz Österreich vertreten und vermittelt Finanzierungen an über 120 Banken und Bausparkassen. Nutzen Sie unseren kostenlosen Kreditvergleich für den passenden Wohnkredit: 

Kreditvergleich

Kostenlos und unverbindlich

Immobilie mieten: Ihr neues Zuhause wartet

Die Entscheidung, eine Immobilie zu mieten, bietet Flexibilität und zahlreiche Möglichkeiten – ob eine Wohnung für den Alltag oder ein Haus für die Familie. Bei Infina können Sie gezielt sowohl eine Wohnung suchen als auch ein Haus suchen, das Ihren Bedürfnissen entspricht. Unsere Angebote erleichtern es Ihnen, eine Mietwohnung zu suchen und Ihre ideale Wohnung finden zu können. Entdecken Sie vielfältige Optionen, um die passende Immobilie zu finden und Ihre Wohnträume zu verwirklichen. Starten Sie noch heute Ihre Suche und profitieren Sie von einer großen Auswahl an Mietobjekten in Ihrer Wunschregion.

Hilfreiche Informationen zu Immobilie mieten

Starten Sie gut vorbereitet in Ihre Mietentscheidung: Infina stellt Ihnen vielseitige Ratgeber und Beiträge zu Themen wie Immobilie, Mietrecht, Finanzierung und Wohntrends zur Verfügung. Verschaffen Sie sich einen Überblick über alle relevanten Aspekte und gestalten Sie Ihren Weg ins neue Zuhause einfacher und sicherer.

Erfolgreich zur neuen Immobilie

Mit Infina haben Sie einen verlässlichen Partner an Ihrer Seite, der Sie von der ersten Beratung bis zum erfolgreichen Abschluss ganzheitlich unterstützt. Erfahren Sie hier, wie wir gemeinsam Ihren Immobilienerfolg gestalten.

Starten Sie jetzt Ihre Immobiliensuche

Nach zahlreichen Informationen rund um die Themen Immobilie kaufen und Immobilie mieten können Sie nun den nächsten Schritt machen. Starten Sie die Immobiliensuche, um Ihr neues Zuhause oder Ihre nächste Investition zu finden und entdecken Sie die passenden Angebote:

Das innovative Portal für Immobilien und Finanzierung 

Als Kunde von Infina profitieren Sie von unserer umfangreichen und unabhängigen Expertise als Teil einer wachsenden, unabhängigen Immobilien- und Finanzierungsnetzwerkgruppe. Bereits 50.000 Kunden hat Infina erfolgreich bei Ihrem Vorhaben begleitet. Infina bietet Ihnen eine umfassende Beratung in allen Bereichen rund um Ihre Immobilienvorhaben:

Die passende Finanzierung für Ihre Immobilie

Mit Infina erhalten Sie nicht nur eine unabhängige Beratung, sondern auch die passende Finanzierungslösung für Ihre Immobilie. Aus den Angeboten von über 120 Banken und Bausparkassen vermitteln wir Ihnen das, was perfekt zu Ihren Bedürfnissen passt. Wir begleiten Sie professionell und verlässlich – von der ersten Beratung bis zum erfolgreichen Abschluss.

Kreditvergleich

Kostenlos und unverbindlich

Wir holen das Beste für Sie heraus

Verkaufen Sie Ihre Immobilie mit uns & profitieren Sie von unserer Expertise. Wir bringen Ihre Immobilie optimal auf den Markt & erzielen den besten Preis. 

Kontaktieren Sie uns jetzt.

Jetzt Experten kontaktieren
Junge Frau im pinken Blazer hält ein Modellhaus in der linken Hand und zeigt mit der rechten Hand nach oben, als hätte sie eine Idee. Sie lächelt und blickt leicht nach oben – symbolisch für Inspiration oder Immobilienberatung.