INFINA LOGO
Entspannt zur Immobilie Persönlich & kompetent beraten Finanzierbarkeit sofort überprüfbar
990.000 €
Kostenlos &
unverbindlich.
Kontakt aufnehmen

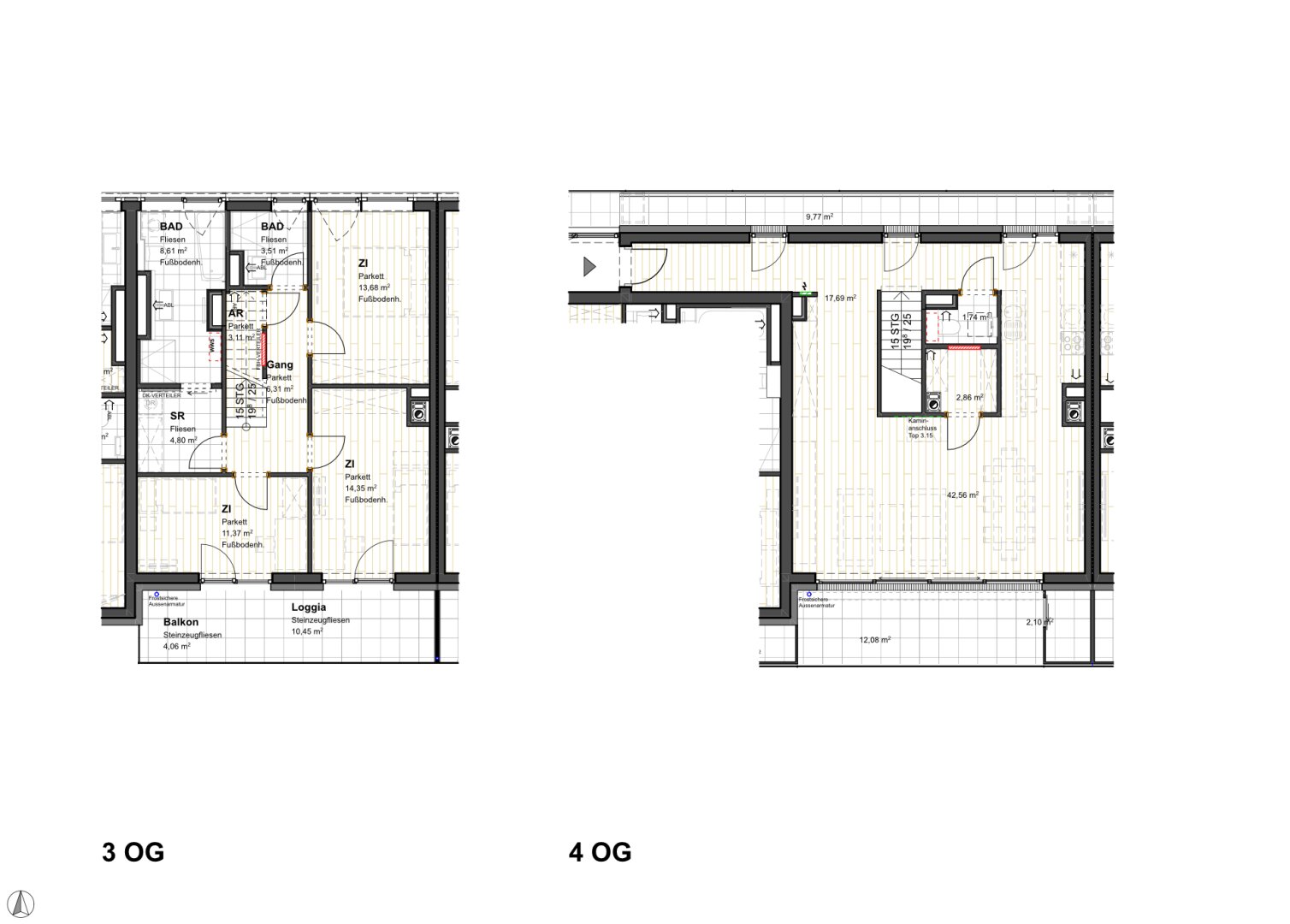
NEUBAU: Repräsentative Penthouse-Maisonette als Kanzlei / Praxis

Obj. Nr.: 100172

ca. 141,04 m² Nutzfläche 4 Zimmer
Partner von Infina S.R.E Immobilien Immobilienmakler 
Partner von Infina S.R.E Immobilien Immobilienmakler
990.000 € Kaufpreis der Immobilie Kreditvergleich von über 120 Banken mit Infina.
Immobilie finanzieren
Mehr Informationen zur Immobilie: Detaillierte Einblicke in dieses Objekt.
Zurück zur Übersicht

Objektstandort

9020 Klagenfurt am Wörthersee, Lichtenfelsgasse, Kärnten

Directions Icon Fahrtzeit berechnen
Preisinformationen
Kaufpreis 990.000 €
Betriebskosten inkl. USt. 297,69 €
Grundbucheintragung: 1.1 %
Grunderwerbsteuer: 3.5 %
Was kann ich mir leisten?
Jetzt berechnen
Maklerprovision:
3,00 % des Kaufpreises zzgl. 20 % USt.

Objektinformationen

Objektart: Büro / Praxis
Nutzungsart: Gewerbe
Bauart: Neubau
Zustand: Erstbezug
Erschließung: Vollerschlossen
barrierefrei: Ja

Rauminformationen & Flächen

Wohnfläche: ca. 130,59 m²
Nutzfläche: ca. 141,04 m²
Kellerfläche: ca. 4,13 m²
Balkonfläche: ca. 4,06 m²
Terrassenfläche: ca. 23,95 m²
Loggiafläche: ca. 10,45 m²
Anzahl Balkone: 1
Anzahl Terrassen: 2
Anzahl Loggias: 1
Anzahl Zimmer: 4
Anzahl WC: 3
Anzahl Bäder: 2

Ausstattung

Beschreibung *

Ihr Top-Standort am Klagenfurter Benediktinermarkt

Direkt am Benediktinermarkt befindet sich diese außergewöhnliche Penthouse-Maisonette über zwei Ebenen.
Die zentrale Lage, moderne Architektur und die klare Raumstruktur bieten ideale Voraussetzungen für Kanzlei, Ordination, Praxis oder Beratung.

Raumaufteilung:

Obere Ebene:
Großzügiger, lichtdurchfluteter Hauptraum mit südseitiger Terrasse – ideal als Empfangsbereich oder repräsentativer Besprechungsraum.

Untere Ebene:
Drei separat begehbare Räume – optimal als Behandlungszimmer oder Einzelbüros.
Zwei Badezimmer (Badewanne & Dusche / zusätzlich Dusche & WC).
Separater Archiv- bzw. Stauraum.

Die Einheit wird belagsfertig angeboten und nach Bemusterung entsprechend Ihrer Nutzung hochwertig fertiggestellt.

Weitere Highlights:

  • Lift vorhanden

  • Kellerabteil

  • Optional Tiefgaragenstellplatz erwerbbar

  • Ideale Lage

Eine nachhaltige Investition in eine repräsentative Geschäftsadresse im Herzen von Klagenfurt.

S.R.E Immobilien – Wir bringen Menschen und Räume zusammen. Denn Emotion ist unser Fundament.

Kaufpreis: netto EUR 990.000,-- zzgl. Ust. zzgl. Kaufnebenkosten (optional Tiefgaragenstellplatz EUR 47.000,--)

Kaufnebenkosten:

  • Grunderwerbsteuer 3,5 %
  • Grundbucheintragungsgebühr 1,1%
  • Vermittlungsprovision 3 % + 20 % Ust.
  • Vertragserrichtungskosten ca. 2 %

Allgemeiner Hinweis:
Aufgrund der Nachweispflicht gegenüber dem Eigentümer sowie in Entsprechung des FAGG (Fern- und Auswärtsgeschäfte-Gesetz) wird um Verständnis ersucht, dass nur Anfragen mit zumindest vollständigem Namen, E-Mailadresse und Telefonnummer bearbeitet werden. Ohne diese Angaben werden keine weiteren Auskünfte erteilt / keine Objektunterlagen übergeben.

Die angegebenen Daten stammen vom Eigentümer und/oder Dritten und wurden mit Sorgfalt erhoben. Für die Richtigkeit und Vollständigkeit kann jedoch keine Haftung übernommen werden. Zahlenangaben können gegebenenfalls gerundet oder geschätzt sein. Das Anbot ist freibleibend und unverbindlich. Irrtümer und Änderungen sind vorbehalten. Nachdruck/ Vervielfältigung nur mit Genehmigung der Firma S.R.E Immobilien GmbH.

Wir weisen darauf hin, dass zwischen dem Vermittler und dem zu vermittelnden Dritten ein familiäres oder wirtschaftliches Naheverhältnis besteht.

Der Vermittler ist als Doppelmakler tätig.


Infrastruktur / Entfernungen

Gesundheit
Arzt <250m
Apotheke <250m
Krankenhaus <1.000m
Klinik <750m

Kinder & Schulen
Schule <250m
Kindergarten <250m
Universität <750m
Höhere Schule <250m

Nahversorgung
Supermarkt <250m
Bäckerei <250m
Einkaufszentrum <750m

Sonstige
Bank <250m
Geldautomat <250m
Post <250m
Polizei <500m

Verkehr
Bus <250m
Autobahnanschluss <3.000m
Bahnhof <1.000m
Flughafen <3.750m

Angaben Entfernung Luftlinie / Quelle: OpenStreetMap


*Der Vertrag kommt nicht mit der INFINA Credit Broker GmbH zustande. Das Objekt wird von einem externen Immobilienunternehmen angeboten. Allfällige aus dem Vertragsabschluss resultierende Rechte sind ausschließlich gegenüber dem anbietenden Immobilienunternehmen geltend zu machen. Wir weisen Sie darauf hin, dass die gemachten Angaben und Informationen lediglich unverbindliche Vorabinformationen sind und daher ohne Gewähr erfolgen. Der Vermittler ist als Doppelmakler tätig.

Energieausweis & Heizung
HWB (kWh/m2/Jahr): 32.3
HWB Energieklasse B
fGEE: 0.9
fGEE Energieklasse B
Gültig bis: 13.10.2026
Dokumente & Videos Pläne
Partner von Infina S.R.E Immobilien Immobilienmakler
Verkehr:
Autobahnanschluss: 2980 m
Straßenbahn: 3640 m
Bus: 150 m
Flughafen: 3650 m
Bahnhof: 990 m
Nahversorgung:
Supermarkt: 260 m
Bäckerei: 120 m
Einkaufszentrum: 670 m
Sonstige:
Post: 100 m
Geldautomat: 120 m
Bank: 110 m
Polizei: 230 m
Kinder & Schulen:
Universität: 580 m
Schule: 30 m
Kindergarten: 570 m
Höhere Schule: 180 m
Gesundheit:
Arzt: 20 m
Apotheke: 180 m
Klinik: 620 m
Krankenhaus: 820 m

Jetzt Experten kontaktieren

Weitere interessante Objekte

Klagenfurt am Wörthersee
Partner von Infina
Jetzt anfragen
1.260.000 €
Klagenfurt am Wörthersee
Klagenfurt am Wörthersee
Partner von Infina
Jetzt anfragen
2.844 €
Klagenfurt am Wörthersee

Immobilie kaufen: Das passende Angebot finden

Der Kauf einer Immobilie ist eine wichtige Entscheidung – sei es für die Eigennutzung oder zur Vermietung. Mit unserem Portal unterstützen wir Sie dabei, die richtige Immobilie zu kaufen. Nutzen Sie unsere Suchmöglichkeiten, um gezielt eine Immobilie zu suchen, die Ihren Vorstellungen entspricht. Unsere Immobilienangebote decken eine breite Palette ab: vom Einfamilienhaus über die Eigentumswohnung bis hin zum Grundstück für Ihr Bauvorhaben. Mit uns können Sie sicher und unkompliziert Eigentum erwerben – ob für die private Nutzung oder als Investition als Immobilie. Erkunden Sie jetzt unsere Angebote und finden Sie die perfekte Lösung, die zu Ihren Wohn- oder Anlagezielen passt.

Fundiertes Wissen für Ihre Entscheidung, eine Immobilie zu kaufen

Bereiten Sie sich bestens vor: Infina stellt Ihnen kostenlos über 300 Ratgeber und Beiträge zu den Themen Immobilie, Finanzierung, Zinsen und Recht zur Verfügung. Nutzen Sie unser umfassendes Wissen, um richtige Entscheidungen zu treffen.

Bei jedem Kauf einer Immobilie oder eines Grundstücks ist es wichtig, die passende Finanzierung zu finden. Mit seiner eigenen Vertriebsorganisation ist Infina als Wohnbau-Finanz-Experte an über 100 Standorten in ganz Österreich vertreten und vermittelt Finanzierungen an über 150 Banken und Bausparkassen. Nutzen Sie unseren kostenlosen Kreditvergleich für den passenden Wohnkredit: 

Kreditvergleich

Kostenlos und unverbindlich

Immobilie mieten: Ihr neues Zuhause wartet

Die Entscheidung, eine Immobilie zu mieten, bietet Flexibilität und zahlreiche Möglichkeiten – ob eine Wohnung für den Alltag oder ein Haus für die Familie. Bei Infina können Sie gezielt sowohl eine Wohnung suchen als auch ein Haus suchen, das Ihren Bedürfnissen entspricht. Unsere Angebote erleichtern es Ihnen, eine Mietwohnung zu suchen und Ihre ideale Wohnung finden zu können. Entdecken Sie vielfältige Optionen, um die passende Immobilie zu finden und Ihre Wohnträume zu verwirklichen. Starten Sie noch heute Ihre Suche und profitieren Sie von einer großen Auswahl an Mietobjekten in Ihrer Wunschregion.

Hilfreiche Informationen zu Immobilie mieten

Starten Sie gut vorbereitet in Ihre Mietentscheidung: Infina stellt Ihnen vielseitige Ratgeber und Beiträge zu Themen wie Immobilie, Mietrecht, Finanzierung und Wohntrends zur Verfügung. Verschaffen Sie sich einen Überblick über alle relevanten Aspekte und gestalten Sie Ihren Weg ins neue Zuhause einfacher und sicherer.

Erfolgreich zur neuen Immobilie

Mit Infina haben Sie einen verlässlichen Partner an Ihrer Seite, der Sie von der ersten Beratung bis zum erfolgreichen Abschluss ganzheitlich unterstützt. Erfahren Sie hier, wie wir gemeinsam Ihren Immobilienerfolg gestalten.

Starten Sie jetzt Ihre Immobiliensuche

Nach zahlreichen Informationen rund um die Themen Immobilie kaufen und Immobilie mieten können Sie nun den nächsten Schritt machen. Starten Sie die Immobiliensuche, um Ihr neues Zuhause oder Ihre nächste Investition zu finden und entdecken Sie die passenden Angebote:

Das innovative Portal für Immobilien und Finanzierung 

Als Kunde von Infina profitieren Sie von unserer umfangreichen und unabhängigen Expertise als Teil einer wachsenden, unabhängigen Immobilien- und Finanzierungsnetzwerkgruppe. Bereits 50.000 Kunden hat Infina erfolgreich bei Ihrem Vorhaben begleitet. Infina bietet Ihnen eine umfassende Beratung in allen Bereichen rund um Ihre Immobilienvorhaben:

Die passende Finanzierung für Ihre Immobilie

Mit Infina erhalten Sie nicht nur eine unabhängige Beratung, sondern auch die passende Finanzierungslösung für Ihre Immobilie. Aus den Angeboten von über 150 Banken und Bausparkassen vermitteln wir Ihnen das, was perfekt zu Ihren Bedürfnissen passt. Wir begleiten Sie professionell und verlässlich – von der ersten Beratung bis zum erfolgreichen Abschluss.

Kreditvergleich

Kostenlos und unverbindlich

Wir holen das Beste für Sie heraus

Verkaufen Sie Ihre Immobilie mit uns & profitieren Sie von unserer Expertise. Wir bringen Ihre Immobilie optimal auf den Markt & erzielen den besten Preis. 

Kontaktieren Sie uns jetzt.

Jetzt Experten kontaktieren
Junge Frau im pinken Blazer hält ein Modellhaus in der linken Hand und zeigt mit der rechten Hand nach oben, als hätte sie eine Idee. Sie lächelt und blickt leicht nach oben – symbolisch für Inspiration oder Immobilienberatung.